Grundrissplanung kurz vor Bauantragstellung

4,50 Stern(e) 17 Votes
Zuletzt aktualisiert 18.11.2025
Sie befinden sich auf der Seite 20 der Diskussion zum Thema: Grundrissplanung kurz vor Bauantragstellung
>> Zum 1. Beitrag <<

R

R.Hotzenplotz


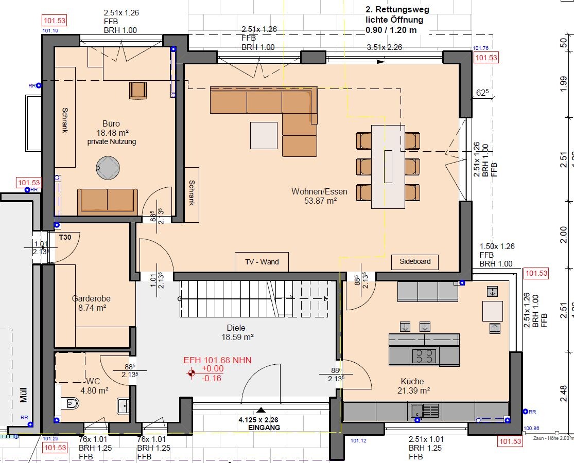
Grundriss eines Wohnbereichs mit Küche, Wohnzimmer, Büro, Garderobe, Diele, WC.
Mir wurde im Rahmen von Planungsgesprächen geraten, die Couch unbedingt an die Wand zum Büro umzuplatzieren. Wir hatten sie ja so wie sie jetzt ist für eine ideale Fernseh- und Lautpsrechersituation platziert.

Es soll aber auch tolle Lösungen für eine TV-Platzierung in der Raummitte geben ohne dass dadurch der offene Charakter des ganzen Raumes verloren geht. Kann sich das hier jemand vorstellen für diesen Raum? Ich sehe das skeptisch, denn es sind neben dem TV auch Surround-Lautsprecher vorzusehen, die seitlich aber v. a. hinter der Couch stehen müssen, was eine Platzierung der Couch direkt an der Wand ausschließt. Und auch die seitlichen Frontlautpsrecher würden ja wie ein Strich in der Landschaft herum stehen und vom Essplatz aus würde man auf die Rückseiten mit Verkabelung der Lautsprecher schauen.
 
B

Baufie

Deine Sorgen hätte ich gerne.

Ich würde den einen Schenkel der Couch an der Bürowand und den anderen vor dem Fenster platzieren. Und den Fernseher so belassen wie er im eingestellten Plan eingezeichnet ist. So hast Du auch die Möglichkeit einen Sessel zwischen Couch und Esszimmer zu stellen.
 
Y

ypg

Räusper*
Vielleicht solltest Du 11ant lieber die Inneneinrichtung machen lassen [emoji6]

Nein, mal im Ernst:
Ich bin eine von denen, die ein schickes Sofa vor dem großen Fenster nicht verteufelt. Dieses ganze "wozu eine Terrassentür, wenn sie eh zugestellt wird" gilt doch nur den Minimal-Wohnzimmern mit den spärlichen Fensterflächen.
Hier zeigt es Großzügigkeit, und wenn das Sofa nicht gerade dunkelrot ist, dann fügt sich das doch super vor der Gartenanlage und Terrasse an.

Du musst auch mal auf Dich selbst vertrauen [emoji4]
 
Zuletzt aktualisiert 18.11.2025
Im Forum Grundrissplanung / Grundstücksplanung gibt es 2536 Themen mit insgesamt 87971 Beiträgen


Ähnliche Themen zu Grundrissplanung kurz vor Bauantragstellung
Nr.ErgebnisBeiträge
1Bodentiefe Fenster - wie Sofa stellen? 12
2Wohnzimmer: Wie Sofa, TV und Schränke stellen? - Seite 532
3Neubau einer ca. 8x11 Doppelhaushälfte, Einschätzung Grundriss und Fenster - Seite 635
4Griffposition Fenster nicht mittig - Mangel? - Seite 251
5Fenster Brüstungshöhe 25 oder 50 - Höhe Absturzsicherung - Seite 428
6Bungalow 135qm: Grundriss + Fenster - Seite 12104
7Varianten zur Anordnung TV- und Sofa-Bereich! - Seite 424
8Mögliche Sofa- und TV-Position im Wohnzimmer gesucht. 15
9Bodentiefe Fenster nach außen öffnend, für mehr nutzbaren Platz innen - Seite 333
10Vorschläge zum Grundriss - Seite 18116
11Lautsprecher Anschlussdosen Wohnzimmer alternative gesucht 26
12Lautsprecher im Badezimmer u. Terrasse 19
13Lautsprecher und Fernseher im Badezimmer 15
14Einbruchsichere Fenster? - Seite 233
15Innenraum Gestaltung - Fenster 14
16Aufpreis für farbige Fenster realistisch? - Seite 319
17Gutachter Mängelfeststellung, Feststellung Einbau Fenster 10
18Riesiges Problem mit dem Kondenswasser am Fenster - Seite 334
19Trefz Fenster Preise und Erfahrungen? 14
20Fenster, Vorbaurollladen, Außenputz 10

Oben