ᐅ Einfamilienhaus vom Architekt 150m² Verbesserungsvorschläge und Ideen gesucht
Erstellt am: 02.10.19 10:32
D
DimaNDSBebauungsplan/Einschränkungen
Größe des Grundstücks: 528m²
Hang: nein
Grundflächenzahl: 0,3
Geschossflächenzahl: 0,45
Baufenster, Baulinie und –grenze: Firstrichtung O/W
Randbebauung: Garage Max 15m
Geschossigkeit: 2
Dachform: Satteldach
Ausrichtung: S/W
Maximale Höhen/Begrenzungen: 9m Fürsthöhe
Sonstiges: Schallschutzklasse IV
Anforderungen der Bauherren
Stilrichtung, Dachform, Gebäudetyp: Modern
Keller, Geschosse: kein Keller, EG, OG, Teilweise Dachboden
Anzahl der Personen, Alter: 4
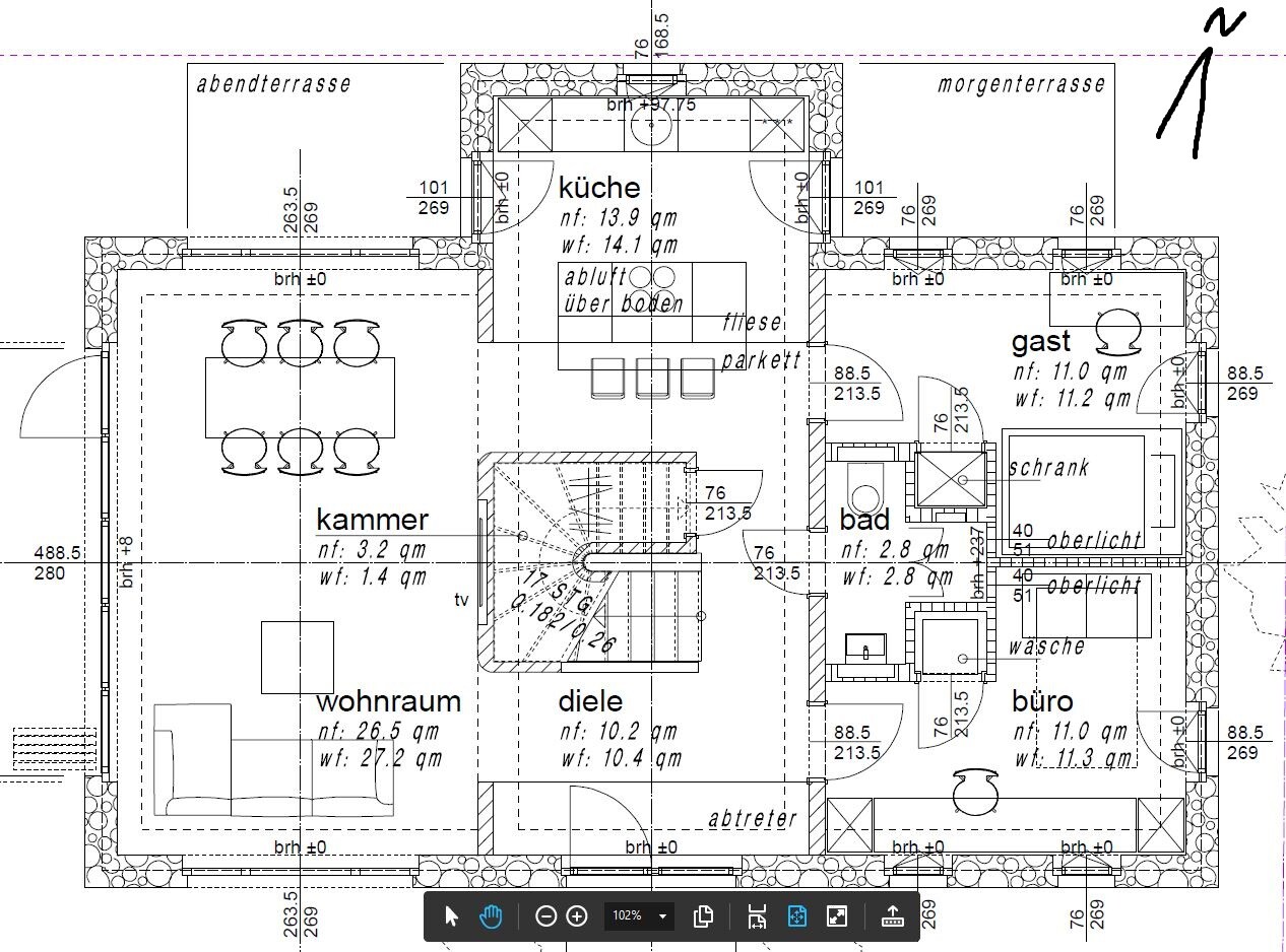
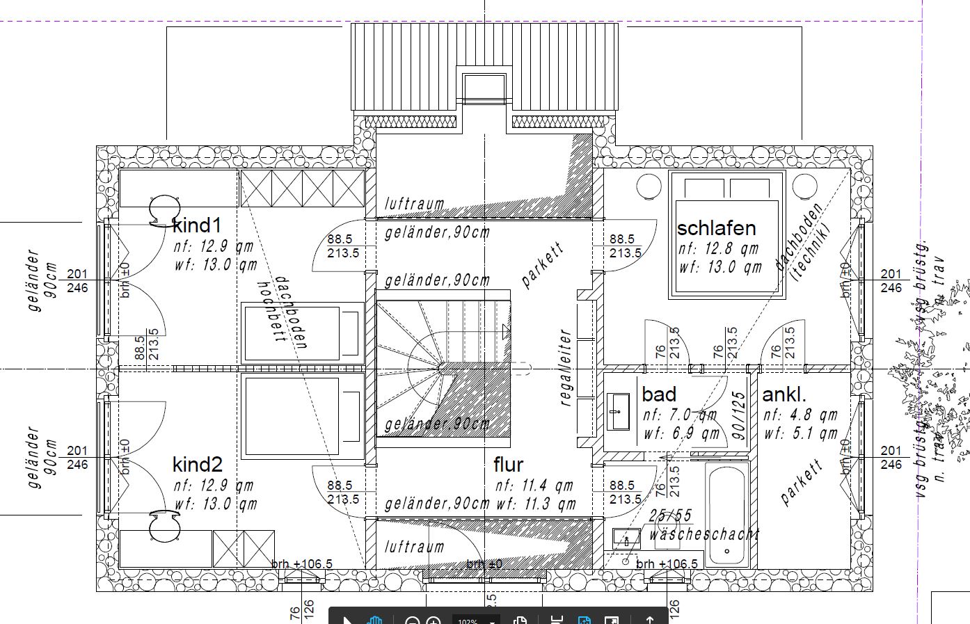
Raumbedarf im EG, OG: EG Wohnzimmer, Küche, Gäste, Büro, Gäste-WC, Abstellraum, OG 2 x Kinderzimmer, Eltern, Bad.
Büro: Familiennutzung oder Homeoffice: beides
Schlafgäste pro Jahr: 10
offene oder geschlossene Architektur: offen
konservativ oder moderne Bauweise: modern
offene Küche, Kochinsel: ja
Anzahl Essplätze: min 6
Kamin: nein
Musik/Stereowand: nein
Balkon, Dachterrasse: nein
Garage, Carport: Doppel-Stahlgarage mit Geräteraum 6x9m
Nutzgarten, Treibhaus: nein (Beet vor der Küche)
Hausentwurf
Von wem stammt die Planung: Architekt
Was gefällt besonders? Warum?: Wir lieben die Offenheit des Hauses. Die
Was gefällt nicht? Warum?: Uns gefällt der Entwurf schon sehr gut allerdings wissen wir nicht ob es mit der Technik auf dem Dachboden Probleme geben könnte. Außerdem ist der Zutritt zum Dachboden über eine Tür im Giebel gelöst was evtl. etwas komisch aussehen könnte. Hier hat sich der Architekt eine regal/Leiter Konstruktion überlegt. Eventuell ist zu wenig Abstell- und Staumöglichkeiten für Dinge die man nicht ständig braucht wie Weihnachtsdeko etc.
Preisschätzung lt Architekt/Planer: 330T€ Inkl. Außenanlagen, und Küche
Persönliches Preislimit fürs Haus, inkl. Ausstattung: 350T€
favorisierte Heiztechnik: Gas oder Wärmepumpe. Je nachdem ob es sich wegen der Schallschutzklasse eh zum KFW 55 Haus entwickelt. Hier müssen wir noch Beratung einholen.
Wenn Ihr verzichten müsst, auf welche Details/Ausbauten
-könnt Ihr verzichten: Ankleidezimmer
-könnt Ihr nicht verzichten: allgemeine Offenheit des Hauses.
Warum ist der Entwurf so geworden, wie er jetzt ist? ZB
Entsprechende/Welche Wünsche wurden vom Architekten umgesetzt?: Schlafzimmer nach Osten, Wohnzimmer nach Westen, Abendsonne in der Küche.
Was macht ihn in Euren Augen besonders gut oder schlecht?: Gut: Es ist kein Standard Haus das man schon 100x in den Bauträgerkatalogen gesehen hat. Schlecht: Relativ viel Platzverschwendung durch die Offenheit.
Was ist die wichtigste/grundlegende Frage zum Grundriss in 130 Zeichen zusammengefasst?
Was würdet Ihr anders machen bzw. verbessern? Haben wir etwas übersehen was später zu Problemen führen könnte?
Leider kann ich keine PDFs hochladen. Dort würden auch die Maße stehen. Zur Orientierung: Das Wohnzimmer ist genau 4m breit.



Größe des Grundstücks: 528m²
Hang: nein
Grundflächenzahl: 0,3
Geschossflächenzahl: 0,45
Baufenster, Baulinie und –grenze: Firstrichtung O/W
Randbebauung: Garage Max 15m
Geschossigkeit: 2
Dachform: Satteldach
Ausrichtung: S/W
Maximale Höhen/Begrenzungen: 9m Fürsthöhe
Sonstiges: Schallschutzklasse IV
Anforderungen der Bauherren
Stilrichtung, Dachform, Gebäudetyp: Modern
Keller, Geschosse: kein Keller, EG, OG, Teilweise Dachboden
Anzahl der Personen, Alter: 4
Raumbedarf im EG, OG: EG Wohnzimmer, Küche, Gäste, Büro, Gäste-WC, Abstellraum, OG 2 x Kinderzimmer, Eltern, Bad.
Büro: Familiennutzung oder Homeoffice: beides
Schlafgäste pro Jahr: 10
offene oder geschlossene Architektur: offen
konservativ oder moderne Bauweise: modern
offene Küche, Kochinsel: ja
Anzahl Essplätze: min 6
Kamin: nein
Musik/Stereowand: nein
Balkon, Dachterrasse: nein
Garage, Carport: Doppel-Stahlgarage mit Geräteraum 6x9m
Nutzgarten, Treibhaus: nein (Beet vor der Küche)
Hausentwurf
Von wem stammt die Planung: Architekt
Was gefällt besonders? Warum?: Wir lieben die Offenheit des Hauses. Die
Was gefällt nicht? Warum?: Uns gefällt der Entwurf schon sehr gut allerdings wissen wir nicht ob es mit der Technik auf dem Dachboden Probleme geben könnte. Außerdem ist der Zutritt zum Dachboden über eine Tür im Giebel gelöst was evtl. etwas komisch aussehen könnte. Hier hat sich der Architekt eine regal/Leiter Konstruktion überlegt. Eventuell ist zu wenig Abstell- und Staumöglichkeiten für Dinge die man nicht ständig braucht wie Weihnachtsdeko etc.
Preisschätzung lt Architekt/Planer: 330T€ Inkl. Außenanlagen, und Küche
Persönliches Preislimit fürs Haus, inkl. Ausstattung: 350T€
favorisierte Heiztechnik: Gas oder Wärmepumpe. Je nachdem ob es sich wegen der Schallschutzklasse eh zum KFW 55 Haus entwickelt. Hier müssen wir noch Beratung einholen.
Wenn Ihr verzichten müsst, auf welche Details/Ausbauten
-könnt Ihr verzichten: Ankleidezimmer
-könnt Ihr nicht verzichten: allgemeine Offenheit des Hauses.
Warum ist der Entwurf so geworden, wie er jetzt ist? ZB
Entsprechende/Welche Wünsche wurden vom Architekten umgesetzt?: Schlafzimmer nach Osten, Wohnzimmer nach Westen, Abendsonne in der Küche.
Was macht ihn in Euren Augen besonders gut oder schlecht?: Gut: Es ist kein Standard Haus das man schon 100x in den Bauträgerkatalogen gesehen hat. Schlecht: Relativ viel Platzverschwendung durch die Offenheit.
Was ist die wichtigste/grundlegende Frage zum Grundriss in 130 Zeichen zusammengefasst?
Was würdet Ihr anders machen bzw. verbessern? Haben wir etwas übersehen was später zu Problemen führen könnte?
Leider kann ich keine PDFs hochladen. Dort würden auch die Maße stehen. Zur Orientierung: Das Wohnzimmer ist genau 4m breit.
1. Budget ohne viel Eigenleistung wird das nichts
2. durch die Offenheit wird viel Geld ohne Nutzen verbraten
3. Grundriss unbedingt mit richtigen Möbeln im Maßstab versehen
Ohne Maße kann man schwer was sagen
Wohnzimmer wo kommt der Fernseh hin? Spiele, DVD‘s, Bücher?
Tisch ist in Wirklichkeit nicht so großzügig
Gästezimmer wo soll ein Bett hin
2. durch die Offenheit wird viel Geld ohne Nutzen verbraten
3. Grundriss unbedingt mit richtigen Möbeln im Maßstab versehen
Ohne Maße kann man schwer was sagen
Wohnzimmer wo kommt der Fernseh hin? Spiele, DVD‘s, Bücher?
Tisch ist in Wirklichkeit nicht so großzügig
Gästezimmer wo soll ein Bett hin
Hä? Wo steht jetzt die Waschmaschine? Im Büro?
Und wie muss man sich den Dachboden vorstellen? Wie kommt Ihr da hoch? Warum nutzt man nicht die Treppe bis ganz hoch?
Kann man noch nen Lageplan dazu bekommen?
Gibt's jetzt ne Garage oder nicht? Wenn ja wo?
Was auf den ersten Blick blöd ist:
WC im EG ohne Fenster bei einem Neubau is dünne. Bad im OG ist ein Chaos - die Trennung macht es zwergig und nervig eng. Bad-Zugang aus dem Schlafzimmer übertrieben - die 3 Schritte auf den Flur schafft man selbst mit 90.
Ankleidetür muss nach planrechts.
2x Luftraum mit 2 Kindern - die sind immer wach, sobald Ihr Euch bewegt.
Und wie muss man sich den Dachboden vorstellen? Wie kommt Ihr da hoch? Warum nutzt man nicht die Treppe bis ganz hoch?
Kann man noch nen Lageplan dazu bekommen?
Gibt's jetzt ne Garage oder nicht? Wenn ja wo?
Was auf den ersten Blick blöd ist:
WC im EG ohne Fenster bei einem Neubau is dünne. Bad im OG ist ein Chaos - die Trennung macht es zwergig und nervig eng. Bad-Zugang aus dem Schlafzimmer übertrieben - die 3 Schritte auf den Flur schafft man selbst mit 90.
Ankleidetür muss nach planrechts.
2x Luftraum mit 2 Kindern - die sind immer wach, sobald Ihr Euch bewegt.
Gefällt mir leider gar nicht. Nur einige Punkte, zu denen, die schon genannt wurden.
Wohnzimmer an der Eingangsseite mit bodentiefem Fenster und das Sofa davor? Büro genauso? TV an der Wand nur mit drehbarer Halterung möglich. Wollt ihr das wirklich?
Offen wirkt der Grundriss für mich nicht. Alles ist irgendwie verschachtelt und sinnfrei. Innenliegendes WC mit Dusche, Bett im Gästezimmer in der Nische, der schrank auch wieder eingebaut bietet wenig Platz. Küche wär mir viel zu wenig Ablage- und Stellfläche. Büro ohne Möglichkeit, einen Aktenschrank zu stellen, dafür dann noch das Wäschekämmerchen und der Wäscheschacht mit drin. Bad OG hat 3 Türen - warum? Ankleide ist sehr klein. Ich seh 0 Platz für eine Garderobe im EG und auch für andere Schränke, Kommoden etc.
Das muss doch besser gehen. Wenn es euch so gefällt, dann o.k., aber meins wäre es absolut nicht.
Edit: wegen Offenheit noch die Frage. Wollt ihr zu allen Seiten tatsächlich offen sein? Habt ihr keine Nachbarn, also auf keiner Seite? Man kann ja jetzt von der Eingangsseite durchschauen bis zum Esszimmer. Rückzugsorte können manchmal auch schön und notwendig sein, ohne alle Rollläden runterzulassen.
Wohnzimmer an der Eingangsseite mit bodentiefem Fenster und das Sofa davor? Büro genauso? TV an der Wand nur mit drehbarer Halterung möglich. Wollt ihr das wirklich?
Offen wirkt der Grundriss für mich nicht. Alles ist irgendwie verschachtelt und sinnfrei. Innenliegendes WC mit Dusche, Bett im Gästezimmer in der Nische, der schrank auch wieder eingebaut bietet wenig Platz. Küche wär mir viel zu wenig Ablage- und Stellfläche. Büro ohne Möglichkeit, einen Aktenschrank zu stellen, dafür dann noch das Wäschekämmerchen und der Wäscheschacht mit drin. Bad OG hat 3 Türen - warum? Ankleide ist sehr klein. Ich seh 0 Platz für eine Garderobe im EG und auch für andere Schränke, Kommoden etc.
Das muss doch besser gehen. Wenn es euch so gefällt, dann o.k., aber meins wäre es absolut nicht.
Edit: wegen Offenheit noch die Frage. Wollt ihr zu allen Seiten tatsächlich offen sein? Habt ihr keine Nachbarn, also auf keiner Seite? Man kann ja jetzt von der Eingangsseite durchschauen bis zum Esszimmer. Rückzugsorte können manchmal auch schön und notwendig sein, ohne alle Rollläden runterzulassen.
Kannst du bitte Pläne mit Maßen einstellen?
Das Haus ist zu klein für den Grundriss. Wirkt wie eine geschrumpfte 250 qm Villa.
Die Treppe braucht viel Platz und engt Ein wie @tomtom79 bemerkt hat
Überlegt euch wie viel ist euch das Design wert.
Zwei Terrassen heißt 2x Möbel
2x zu wenig Platz für eine große Gesellschaft
Gast ich habe das Bett gefunden.
Eingang wo ist der Platz für Garderobe, Schuhschrank, Taschen etc?
Waschmaschine wirklich im Arbeitszimmer in eine Nische?
Wo Schmutzwäsche, Handwäsche, Wäscheständer, Korb mit Wäsche die gebügelt werden muss
Küche hat sehr wenig Stauraum und mir zu wenig Arbeitsfläche und Fenster
Zu Wohnzimmer hätte ich schon was geschrieben
Bad ohne Fenster
OG
Warum Treppe nicht bis zum DG?
Galerie machen das Haus sehr hellhörig, brauchen Platz.
Kinderzimmer bekommen Hochbett/offene Zimmer bis zum Dachstuhl habe ich das richtig gelesen? Hatten wir auch überlegt. Sollte ca. 5.000 Euro pro Zimmer kosten
Ankleide fast keine Stellfläche
Bad verbaut und Mini
Es gibt 120 qm Häuser die weniger Design bieten, jedoch besser geschnittene Räume, die nicht kleiner sind
Das Haus ist zu klein für den Grundriss. Wirkt wie eine geschrumpfte 250 qm Villa.
Die Treppe braucht viel Platz und engt Ein wie @tomtom79 bemerkt hat
Überlegt euch wie viel ist euch das Design wert.
Zwei Terrassen heißt 2x Möbel
2x zu wenig Platz für eine große Gesellschaft
Gast ich habe das Bett gefunden.
Eingang wo ist der Platz für Garderobe, Schuhschrank, Taschen etc?
Waschmaschine wirklich im Arbeitszimmer in eine Nische?
Wo Schmutzwäsche, Handwäsche, Wäscheständer, Korb mit Wäsche die gebügelt werden muss
Küche hat sehr wenig Stauraum und mir zu wenig Arbeitsfläche und Fenster
Zu Wohnzimmer hätte ich schon was geschrieben
Bad ohne Fenster
OG
Warum Treppe nicht bis zum DG?
Galerie machen das Haus sehr hellhörig, brauchen Platz.
Kinderzimmer bekommen Hochbett/offene Zimmer bis zum Dachstuhl habe ich das richtig gelesen? Hatten wir auch überlegt. Sollte ca. 5.000 Euro pro Zimmer kosten
Ankleide fast keine Stellfläche
Bad verbaut und Mini
Es gibt 120 qm Häuser die weniger Design bieten, jedoch besser geschnittene Räume, die nicht kleiner sind
Ähnliche Themen