ᐅ Grundriss Einfamilienhaus - Problemfall Küche
Erstellt am: 28.04.16 14:51
Hallo zusammen,
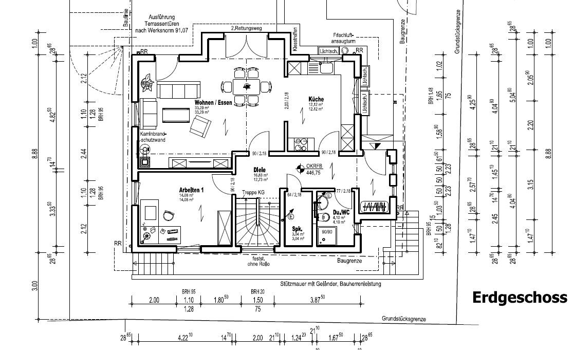
wir haben endlich unsere ersten Vorabzüge bekommen und sind dabei diese genauer zu Begutachten. Eigentlich passt soweit alles, bis auf das Thema Küche.
So wie sie auf dem Plan ist, sind wir aktuell sehr unglücklich - da meiner Meinung nach, wenig Platz für hochschränke und ziemlich langer Weg von einer Seite zur anderen. Auch der Platz des Herds auf dem Plan, ist natürlich, Quatsch. Das Problem ist, dass wir aktuell keine komplette Wand, ohne Unterbrechung, haben.
Aktuell sind wir am überlegen, ob
1) wir die Tür vom Flur in die Küche entfernen
2) wir die Türe nach ganz links oder rechts verschieben
3) wir ein Fenster weglassen (ungern) oder zumindest verkleinern bzw. verschieben
4) wir den Durchbruch zum Wohnzimmer etwas verkleinern (da soll dann eine Schiebetür hinkommen)
Mein Traum, wäre eigentlich noch ein kleiner Tresen mit 1-2 Sitzgelegenheiten.
Allerdings kann ich mir das im aktuellen Grundriss nur schwer vorstellen.
Habt ihr vielleicht noch ein paar Ideen Tipps für uns?
Auch gerne zum Rest des EGs.
Danke schon einmal!

wir haben endlich unsere ersten Vorabzüge bekommen und sind dabei diese genauer zu Begutachten. Eigentlich passt soweit alles, bis auf das Thema Küche.
So wie sie auf dem Plan ist, sind wir aktuell sehr unglücklich - da meiner Meinung nach, wenig Platz für hochschränke und ziemlich langer Weg von einer Seite zur anderen. Auch der Platz des Herds auf dem Plan, ist natürlich, Quatsch. Das Problem ist, dass wir aktuell keine komplette Wand, ohne Unterbrechung, haben.
Aktuell sind wir am überlegen, ob
1) wir die Tür vom Flur in die Küche entfernen
2) wir die Türe nach ganz links oder rechts verschieben
3) wir ein Fenster weglassen (ungern) oder zumindest verkleinern bzw. verschieben
4) wir den Durchbruch zum Wohnzimmer etwas verkleinern (da soll dann eine Schiebetür hinkommen)
Mein Traum, wäre eigentlich noch ein kleiner Tresen mit 1-2 Sitzgelegenheiten.
Allerdings kann ich mir das im aktuellen Grundriss nur schwer vorstellen.
Habt ihr vielleicht noch ein paar Ideen Tipps für uns?
Auch gerne zum Rest des EGs.
Danke schon einmal!
T
toxicmolotof28.04.16 15:04Wer hat denn diese Küche geplant? Ich bin ja wirklich kein Fachplaner, aber das ist ja Fehlplanung hoch zehn. Maximal größter Laufweg, der möglich ist.
Da hilft auch ein Tresen nicht mehr.
Das ist kein schlechtes Konzept, das ist gar kein Konzept!
Da hilft auch ein Tresen nicht mehr.
Das ist kein schlechtes Konzept, das ist gar kein Konzept!
Wir hatten ein ähnliches Problem und haben die Tür zum Flur weg gelassen.
Soll es eine geschlossene Küche werden? Sonst könntet ihr den Durchgang verbreitern und nur ca. 70 cm an jeder Seite lassen und eine Insel in die Mitte mit einem Tresen aus dem Essbereich rein stellen.
Viel Glück
alex
Soll es eine geschlossene Küche werden? Sonst könntet ihr den Durchgang verbreitern und nur ca. 70 cm an jeder Seite lassen und eine Insel in die Mitte mit einem Tresen aus dem Essbereich rein stellen.
Viel Glück
alex
laemat schrieb:
das Fenster über der Spüle weglassen ihr bekommt dort eh Probleme mit dem Wasserhahn 😉, den Herd in die rechte Front mit rein, Apothekerschrank und Kühlschrank dort hin wo der Herd steht....Tresen...unser Tresen steht links an der Küche wo bei euch der Wandstummel ist 🙂Oder genug brüstungshöhe.Ähnliche Themen