ᐅ Einfamilienhaus,Zwei Varianten Grundriss vom Architekt
Erstellt am: 04.02.21 20:31
K
Kathianni04.02.21 20:31Bebauungsplan/Einschränkungen
Größe des Grundstücks 662qm
Hang nein
Randbebauung nein
Anzahl Stellplatz 2
Geschossigkeit 2
Dachform offen
Stilrichtung unbestimmt
Ausrichtung Süden
Maximale Höhen/Begrenzungen
weitere Vorgaben
Anforderungen der Bauherren
Stilrichtung, Dachform, Gebäudetyp keine
Keller, Geschosse ja, 2
Anzahl der Personen, Alter 4 Personen, 35, 33, 3,0
Raumbedarf im EG, OG ca 70 jeweils
Büro: Familiennutzung oder Homeoffice? Homeoffice
Schlafgäste pro Jahr 2-3
offene oder geschlossene Architektur offen
konservativ oder moderne Bauweise modern
offene Küche, Kochinsel ja
Anzahl Essplätze 6-8
Kamin ja
Musik/Stereowand nein
Balkon, Dachterrasse nein
Garage, Carport ja, ja
Nutzgarten, Treibhaus ja, nein
Hausentwurf
Von wem stammt die Planung: Architekt
-Was gefällt besonders? Warum? Tunnellkamin und die offene Küche, die ankleide mit Tür zum Badezimmer
Preisschätzung lt Architekt/Planer: 450000
Persönliches Preislimit fürs Haus, inkl Ausstattung: 600000
favorisierte Heiztechnik: Pellets
Warum ist der Entwurf so geworden, wie er jetzt ist? ZB
Standardentwurf vom Planer? Haben unsere Wünsche geäußert
Entsprechende/Welche Wünsche wurden vom Architekten umgesetzt?
Was ist die wichtigste/grundlegende Frage zum Grundriss in 130 Zeichen zusammengefasst?
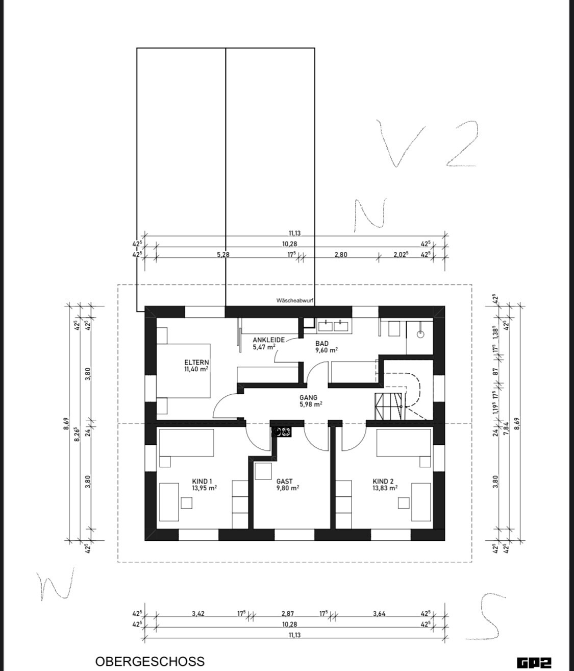
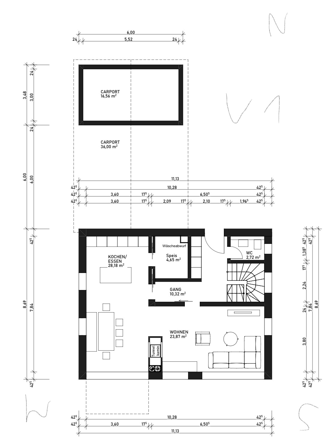
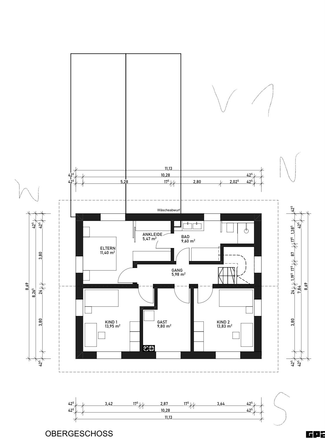
Hallo ihr Lieben. Wir haben die beiden Varianten mir unserem Architekt erarbeitet und wissen nicht so recht welche wir besser finden. Neben dem Ofen ist jeweils eine Ofenbank.
Die Fenster sind im ganzen Haus noch nicht final eingezeichnet, die müssen wir nochmal besprechen.
Zwischen Haus und Garage bauen wir einen carport, denkt ihr das Fenster aus der Küche macht Sinn auch wenn es quasi in den Carport zeigt? Wir denken uns immerhin sieht man die Kinder spielen und wer her fährt auch.
im Osten steht ein Einfamilienhaus im Süden ist eine große Wiese, im Westen die Straße, sehr wenig befahren, da sehr ländlich.
Das ist mein erster Beitrag, ich hoffe ich hab alles richtig gemacht, wenn nicht schon mal entschuldigt bitte vorab .
Freue mich über eure Anregungen. Ganz liebe Grüße







Größe des Grundstücks 662qm
Hang nein
Randbebauung nein
Anzahl Stellplatz 2
Geschossigkeit 2
Dachform offen
Stilrichtung unbestimmt
Ausrichtung Süden
Maximale Höhen/Begrenzungen
weitere Vorgaben
Anforderungen der Bauherren
Stilrichtung, Dachform, Gebäudetyp keine
Keller, Geschosse ja, 2
Anzahl der Personen, Alter 4 Personen, 35, 33, 3,0
Raumbedarf im EG, OG ca 70 jeweils
Büro: Familiennutzung oder Homeoffice? Homeoffice
Schlafgäste pro Jahr 2-3
offene oder geschlossene Architektur offen
konservativ oder moderne Bauweise modern
offene Küche, Kochinsel ja
Anzahl Essplätze 6-8
Kamin ja
Musik/Stereowand nein
Balkon, Dachterrasse nein
Garage, Carport ja, ja
Nutzgarten, Treibhaus ja, nein
Hausentwurf
Von wem stammt die Planung: Architekt
-Was gefällt besonders? Warum? Tunnellkamin und die offene Küche, die ankleide mit Tür zum Badezimmer
Preisschätzung lt Architekt/Planer: 450000
Persönliches Preislimit fürs Haus, inkl Ausstattung: 600000
favorisierte Heiztechnik: Pellets
Warum ist der Entwurf so geworden, wie er jetzt ist? ZB
Standardentwurf vom Planer? Haben unsere Wünsche geäußert
Entsprechende/Welche Wünsche wurden vom Architekten umgesetzt?
Was ist die wichtigste/grundlegende Frage zum Grundriss in 130 Zeichen zusammengefasst?
Hallo ihr Lieben. Wir haben die beiden Varianten mir unserem Architekt erarbeitet und wissen nicht so recht welche wir besser finden. Neben dem Ofen ist jeweils eine Ofenbank.
Die Fenster sind im ganzen Haus noch nicht final eingezeichnet, die müssen wir nochmal besprechen.
Zwischen Haus und Garage bauen wir einen carport, denkt ihr das Fenster aus der Küche macht Sinn auch wenn es quasi in den Carport zeigt? Wir denken uns immerhin sieht man die Kinder spielen und wer her fährt auch.
im Osten steht ein Einfamilienhaus im Süden ist eine große Wiese, im Westen die Straße, sehr wenig befahren, da sehr ländlich.
Das ist mein erster Beitrag, ich hoffe ich hab alles richtig gemacht, wenn nicht schon mal entschuldigt bitte vorab .
Freue mich über eure Anregungen. Ganz liebe Grüße
Kathianni schrieb:
ich hoffe ich hab alles richtig gemacht,Direkt falsch gemacht nicht, aber ein bißchen unnötig die zweite Version auch bebildert. Langer Rede kurzer Sinn wäre die Frage auch "Text only" dargestellt verständlich gewesen: "Wir überlegen, den im Prinzip ein- und selben Grundriss entweder mit dem Kamin beim First oder bei der Traufe zu bauen". Die Antwort ist ziemlich einfach: mit je flacher das Dach, desto mehr reine Geschmackssache, ansonsten ist der Kamin (Schornstein) an der Traufe technisch ungünstiger und optisch auffälliger. Dann würde ich ihn konsequenter auffallen lassen, nämlich außen (und material- und/oder farbmäßig abgesetzt).https://www.instagram.com/11antgmxde/
https://www.linkedin.com/company/bauen-jetzt/
P.S.: Wenn schon zweierlei Wohnzimmertüren, würde ich die in der Linie der Haustür liegende als gewöhnliche Schlagtür ausführen. Des Weiteren hatte ich eines meiner Mantren vergessen: Phantasiemaße zu mauern, ist wenig rationell und führt typischerweise zu Pfuschertaschen.
https://www.instagram.com/11antgmxde/
https://www.linkedin.com/company/bauen-jetzt/
https://www.instagram.com/11antgmxde/
https://www.linkedin.com/company/bauen-jetzt/
K
Kathianni05.02.21 03:3611ant schrieb:
Direkt falsch gemacht nicht, aber ein bißchen unnötig die zweite Version auch bebildert. Langer Rede kurzer Sinn wäre die Frage auch "Text only" dargestellt verständlich gewesen: "Wir überlegen, den im Prinzip ein- und selben Grundriss entweder mit dem Kamin beim First oder bei der Traufe zu bauen". Die Antwort ist ziemlich einfach: mit je flacher das Dach, desto mehr reine Geschmackssache, ansonsten ist der Kamin (Schornstein) an der Traufe technisch ungünstiger und optisch auffälliger. Dann würde ich ihn konsequenter auffallen lassen, nämlich außen (und material- und/oder farbmäßig abgesetzt).Danke für die Anregung. Mich interessiert. Natürlich auch was ihr grundsätzlich von dem Grundriss haltet und da sich bei beiden Varianten auch oben was ändert, dachte ich es wäre hilfreich
Dachneigung werden ich nachfragen, wir haben noch nicht darüber gesprochen, sind noch ganz am Anfang
K
Kathianni05.02.21 03:4011ant schrieb:
P.S.: Wenn schon zweierlei Wohnzimmertüren, würde ich die in der Linie der Haustür liegende als gewöhnliche Schlagtür ausführen. Des Weiteren hatte ich eines meiner Mantren vergessen: Phantasiemaße zu mauern, ist wenig rationell und führt typischerweise zu Pfuschertaschen.Würdest du die zweite Tür weg lassen? Welche zwei Wohnzimmer Türen meinst du? Und wo siehst du Phantasie Maße? Was ist denn sonst so dein Eindruck vom Grundriss?
Danke für deine Zeit.
liebe Grüße
Ähnliche Themen