ᐅ Grundrissplanung kurz vor Bauantragstellung
Erstellt am: 02.10.17 23:25
R.Hotzenplotz02.10.17 23:25
Hallo in die Runde!
Wie schon mal von einigen Usern gewünscht, erstelle ich nun mal einen neuen Thread mit der aktuellen Planung unseres Einfamilienhauses, welche unmittelbar vor dem Abschluss steht.
Das sind die Vorabzüge für den Bauantrag und ich habe die letzte Chance, noch mal drüber zu schauen und auf Unpässlichkeiten hinzuweisen.
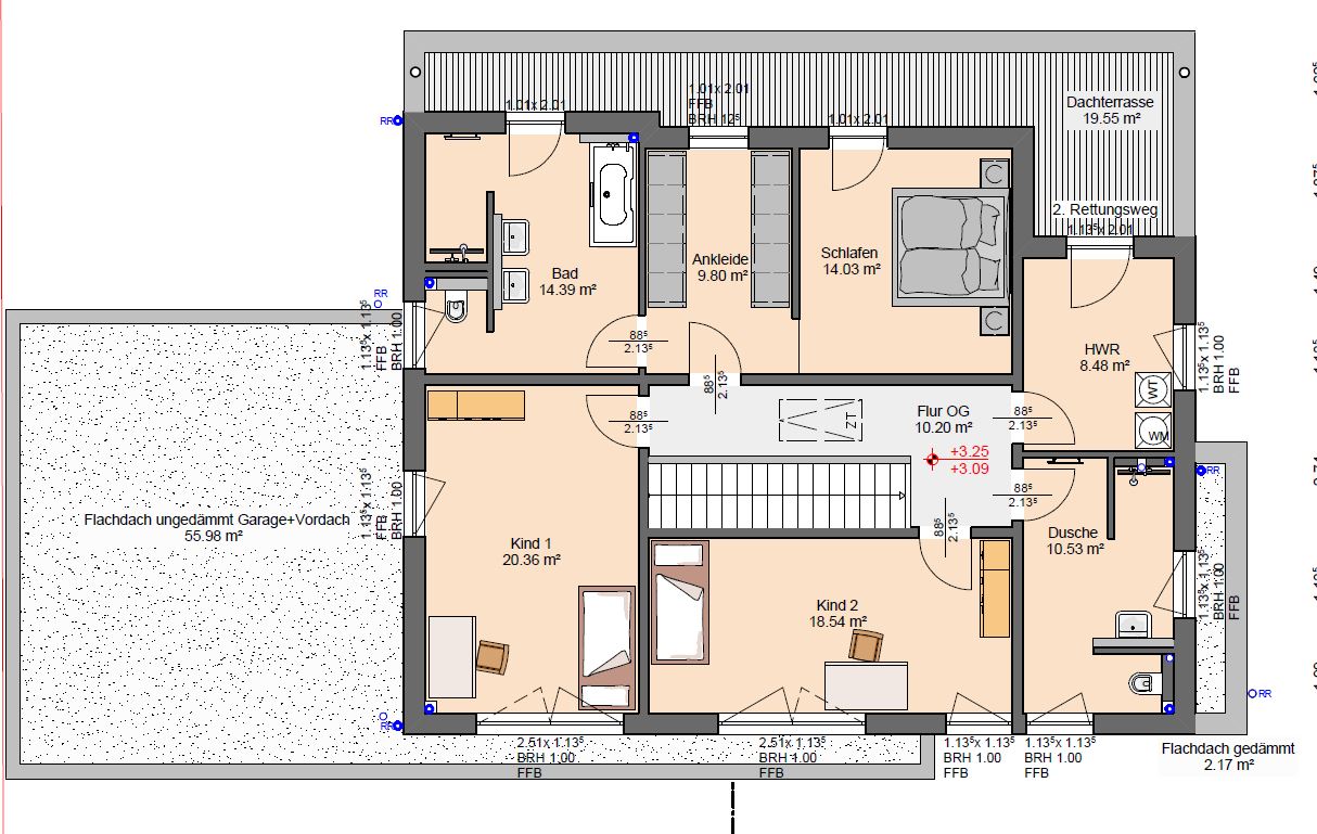
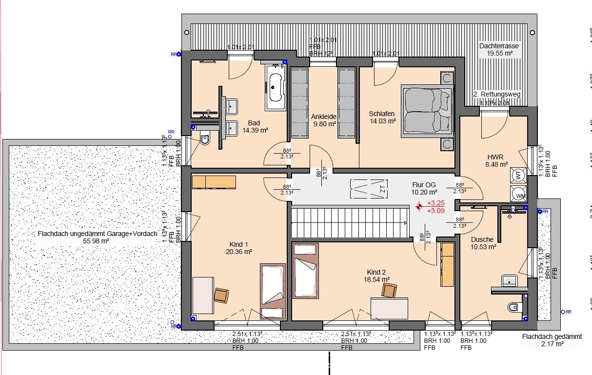
Mir erscheint nach wie vor weniger als 1,20m Fläche zwischen den beiden Schränken der Ankleide zu bestehen. Oder sehe ich das falsch? Hat man offenbar vergessen, die Räume links und rechts entsprechend anzupassen.
In Planung sind noch zwei Velux Deckenspots für die Belichtung der OG Flurs.
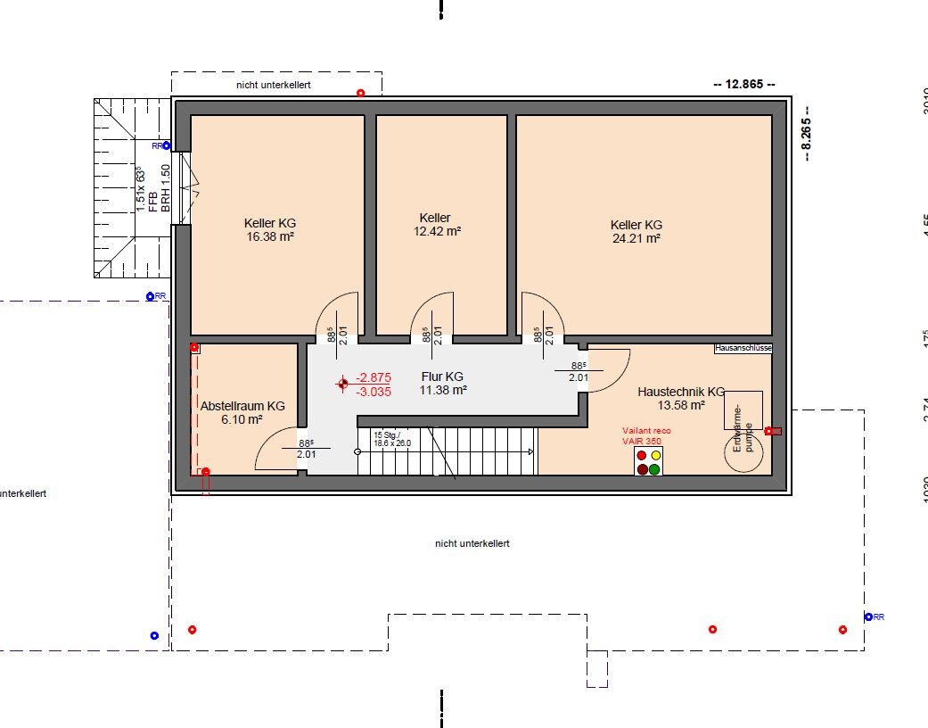
Im Keller ist auf der rechten Seite im oberen Zimmer ein Fenster analog der linken Kellerseite eine Option.
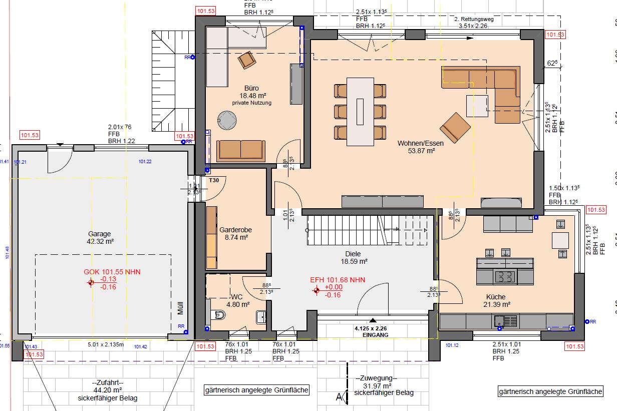
Die T30 Tür zur Garage, dazu haben wir uns noch immer nicht durchgerungen, auch wenn sie eingezeichnet ist. Vermutlich werden wir um der lieben Sicherheit willen und dem begrenzten Nutzen durch die Küche am anderen Ende des Hauses letztendlich darauf verzichten.
11ant gab noch den Hinweis, dass das rechte Fenster von Kind 2 suboptimal platziert ist. Das könne aber auch nach Bauantragstellung noch korrigiert werden. Unser Architekt sieht die Außenoptik zu stark darunter leiden, das Fenster nach links zu verschieben. Muss man sehen.










Wie schon mal von einigen Usern gewünscht, erstelle ich nun mal einen neuen Thread mit der aktuellen Planung unseres Einfamilienhauses, welche unmittelbar vor dem Abschluss steht.
Das sind die Vorabzüge für den Bauantrag und ich habe die letzte Chance, noch mal drüber zu schauen und auf Unpässlichkeiten hinzuweisen.
Mir erscheint nach wie vor weniger als 1,20m Fläche zwischen den beiden Schränken der Ankleide zu bestehen. Oder sehe ich das falsch? Hat man offenbar vergessen, die Räume links und rechts entsprechend anzupassen.
In Planung sind noch zwei Velux Deckenspots für die Belichtung der OG Flurs.
Im Keller ist auf der rechten Seite im oberen Zimmer ein Fenster analog der linken Kellerseite eine Option.
Die T30 Tür zur Garage, dazu haben wir uns noch immer nicht durchgerungen, auch wenn sie eingezeichnet ist. Vermutlich werden wir um der lieben Sicherheit willen und dem begrenzten Nutzen durch die Küche am anderen Ende des Hauses letztendlich darauf verzichten.
11ant gab noch den Hinweis, dass das rechte Fenster von Kind 2 suboptimal platziert ist. Das könne aber auch nach Bauantragstellung noch korrigiert werden. Unser Architekt sieht die Außenoptik zu stark darunter leiden, das Fenster nach links zu verschieben. Muss man sehen.
11ant03.10.17 00:58
R.Hotzenplotz schrieb:
Mir erscheint nach wie vor weniger als 1,20m Fläche zwischen den beiden Schränken der Ankleide zu bestehen.So isses. Dazu dürften ca. 15 cm fehlen (schon im Rohbaumaß). Allerdings sähe ich an dieser Stelle ohnehin eine Leichtbauwand.R.Hotzenplotz schrieb:
11ant gab noch den Hinweis, dass das rechte Fenster von Kind 2 suboptimal platziert ist. Das könne aber auch nach Bauantragstellung noch korrigiert werden. Unser Architekt sieht die Außenoptik zu stark darunter leiden, das Fenster nach links zu verschieben.Ich will es ja nicht nach (plan)links verschieben, sondern das Mauerstück zwischen Kind-2- und Bad-Fenster von 24 auf 49 verbreitern und beide Fenster von 113.5 auf 101 verschmälern, dann bleiben die "Außenkanten" dieses Fensterzwillings gleich und das "kleine" Fenster bei Kind 2 muß nicht ohne Maueranschlag leben.Schade, daß man im Schnitt nicht erkennt, wo und wie die Unterzüge nun "integriert" sind.
15° Dachneigung freuen mich als Wright-Fan natürlich.
https://www.instagram.com/11antgmxde/
https://www.linkedin.com/company/bauen-jetzt/
kaho67403.10.17 07:46
Ich find es immer besser. Die Angst wegen der T30 Tür kann ich gar nicht verstehen. Ein Einbrecher müsste erst die Garage knacken, dann die Tür und das alles, obwohl er nicht genau weiß, dass dort eine Tür ist. Also wenn das einer plant, dann kommt er sowieso rein, egal wo. Vermutlich viel eher durch die Terrassentüren. Oder was meintest Du mit Sicherheit?
R.Hotzenplotz03.10.17 09:21
kaho674 schrieb:
Die Angst wegen der T30 Tür kann ich gar nicht verstehen. Ein Einbrecher müsste erst die Garage knacken, dann die Tür und das alles, obwohl er nicht genau weiß, dass dort eine Tür ist.Zu wissen, dass dort ne Tür ist, kostet den Einbrecher einmal ausspähen, wenn ich wegfahre oder nachhause komme. Die Garage ist ja nicht wie Fort Knox gesichert und die Kripo sagte mir, wenn man einmal dort drin ist, kann man in aller Seelenruhe die Tür knacken. Das sei die größte Schwachstelle im Haus. Man kommt nicht nur durch das Tor hinein sondern auch von der Gebäuderückseite durch die rückwärtige Tür oder das (derzeit optionale) Fenster.
Aktuell haben wir die Option T30 Tür in folgender Ausführung im Vertragsentwurf.
"Als Zugang zur Garage kommt eine Funktionstür FHT30 der Baugröße 88,5/213,5 zur Ausführung. Modell Atrium21 analog der sonstigen Innentüren mit folgender technischen Ausstattung: Türblatt mit Zarge, rauchdicht, WK II, Klimaklasse, Gleitschienenschließer Geze TS 3000 V, Edelstahl-FH-Garnitur in L-Form."
WK II bzw. RC 2 ist jetzt nicht gerade das, was an dieser Stelle ausreichende Sicherheit vermittelt. Kosten dafür bereits in dieser Ausführung € 2.590.
Geplant sind übrigens vorne komplett Raffstores (von Roma, aber bisher leider ohne genaue Qualifizierung), am westlichen Kinderzimmerfenster ebenfalls. Ansonsten oben und unten Rollläden. Wobei wir noch die Option drin haben, im EG im Büro, Wohnzimmer und Esszimmer ebenfalls auf Raffstores zu gehen. Dort ist in den ersten beiden Fällen zwar Norden aber gerade dort könnte das Thema Lichtsteuerung interessant sein und gerade dort kann man auf die Komplettverdunkelung durch Rollläden verzichten. Auch hier (gerade da die Terrassentür angesprochen wurde) allerdings die Frage, ob Aluminium Rollläden noch mal signifikante Sicherheitsvorteile bringen. Tendenz dennoch eher Raffstores.
11ant schrieb:
So isses. Dazu dürften ca. 15 cm fehlen (schon im Rohbaumaß). Allerdings sähe ich an dieser Stelle ohnehin eine Leichtbauwand.Das ist blöd, zumal ich das schon bei den letzten beiden Entwürfen zurückgemeldet habe, dass hier ein Fehler vorliegt, der korrigiert werden muss. Aber so habe ich jetzt noch mal einen neuen Input bekommen hinsichtlich der Leichtbauwand. Wobei wir das Bad extra nicht unmittelbar neben dem Schlafbereich haben, um den Schlafenden nicht durch den Wasserfluss zu stören. Ob das nicht durch eine Leichtbauwand wieder problematischer wird?
Die Wand vom Schlafzimmer zum Hauswirtschaftsraum könnte für € 1.295 "aufgedoppelt" werden, damit dort bauherrenseitig ein Tresor eingebaut werden kann. Teurer Spaß. Aber wohin sonst mit dem Tresor....
Letzter Punkt. Sie wollen für die Raffstore Steuerung von Somfy einen Wind- und Sonnenwächter Solitis IB verbauen. Vermutlich lässt man sowas besser raus und verbaut im Rahmen der Hausautomatisierung eine andere Komponente.
11ant schrieb:
Ich will es ja nicht nach (plan)links verschieben, sondern das Mauerstück zwischen Kind-2- und Bad-Fenster von 24 auf 49 verbreitern und beide Fenster von 113.5 auf 101 verschmälern, dann bleiben die "Außenkanten" dieses Fensterzwillings gleich und das "kleine" Fenster bei Kind 2 muß nicht ohne Maueranschlag leben.Stimmt, das hatte ich nicht mehr auf dem Schirm. Aber sind unterschiedlich große Fenster an der Front nicht zu unruhig für das Bild? Sie zu verschieben, finde ich noch Ok aber die zwei rechten Fenster kleiner als die zwei linken?
11ant schrieb:
Schade, daß man im Schnitt nicht erkennt, wo und wie die Unterzüge nun "integriert" sind.Das kann ich gerne erfragen. Was würdest du da ganz konkret wissen wollen?
11ant schrieb:
15° Dachneigung freuen mich als Wright-Fan natürlich.Du hast mir hier ja auch toll geholfen, dass es zu so einem Ergebnis gekommen ist! Kaum vorzustellen, dass wir das nach deiner deutlichen Kritik der vermischten Baustile doch alles so stimmig hinbekommen haben. Es ist allerdings nicht 100% auszuschließen, dass das Bauamt ein Contra gibt und man doch ein Flachdach mit Überstand darauf machen muss. Unwahrscheinlich aber möglich.
A propos Bauamt:
Würdet ihr eigentlich einen Bauvertrag unterschreiben, bevor das Bauamt genehmigt hat? Man sagte mir, dass die Dämmung teurer geworden und der Preis nicht mehr so lange zu halten sei.
Ebenfalls ist noch nichts bemustert, die Elektrik nicht qualifiziert, Badezimmer wählen wir wohl morgen in einem drei- bis vierstündigen Termin mit dem Installateur beim Großhändler des GÜ.
Last but Not least:
Wie gefällt euch eigentlich der Wegfall der zwei bodentiefen Fenster links neben der Haustür? Jetzt gibt´s keine Option mehr, durch die geöffnete Tür vom WC auf die Straße zu laufen.
Ich finde, die Optik hat dadurch wenig bis kaum gelitten und wir sind fest überzeugt, dass das so die bessere Lösung ist. Hatten kurz überlegt, auf das kleine Fenster im Flur komplett zu verzichten. Belichtungstechnisch ist es unnötig aber optisch gesehen glaube ich lassen wir es besser drin.
Karlstraße03.10.17 10:46
Finde ich schön und sehr großzügig! Darf ich fragen mit wem ihr baut (GU, Architekt und Einzelvergabe...?) und was ihr kostentechnisch plant?
R.Hotzenplotz03.10.17 11:40
Karlstraße schrieb:
Darf ich fragen mit wem ihr baut (GU, Architekt und Einzelvergabe...?) und was ihr kostentechnisch plant?Das wird über GU bzw. GÜ laufen. Aller Voraussicht nach wird er der GÜ machen, der auch die Architektenplanung durchgeführt hat.
Das Haus nach Bauleistungsbeschreibung mit umfangreichen Extras liegt bei ca. € 640.000.
Dazu werden noch die Gewerke Maler, Aufwertung der Elektrik, Aufwertung der Sanitärausstattung Außenarbeiten und weitere Baunebenkosten kommen.
Summa summarum denke ich, dass es am Ende auf etwa € 880.000 hinaus laufen wird, dann aber bereits mit Küche, kompletter Beleuchtung etc.
Ähnliche Themen