ᐅ Grundrissfrage, Treppe, Fenster, Ausrichtung
Erstellt am: 26.06.15 13:29
M
Mike1234567890126.06.15 13:29Hallo zusammen,
wir haben gerade den ersten Grundrissentwurf zusammen mit unserem Bauunternehmen erarbeitet und würden uns ueber konstruktive Kritik und Verbesserungsvorschlaege freuen. Weitere Angaben zum Grundstück folgen noch, hier sind wir noch in den Verhandlungen. Die Gegend, Groesse usw. ist klar (Bebauungsplan) aber Hang, Schnitt usw. kann sich noch ändern. Grundsaetzlich haben wir als Fläche ein Rechteck ohne Besonderheiten.
Vielen Dank schon mal! 🙂
Bebauungsplan/Einschränkungen
Größe des Grundstücks: ca 800m²
Hang: ja, ca 10% von West nach Ost
Grundflächenzahl: 0,4
Geschossflächenzahl: 0,8
Baufenster, Baulinie und -grenze
Randbebauung: Ja
Anzahl Stellplatz: 1,25
Geschossigkeit: 2
Dachform: Satteldach
Stilrichtung: nicht festgelegt, Familienhaus
Ausrichtung: Ost-West (geplant)
weitere Vorgaben
Keller, Geschosse: Ja, 2
Anzahl der Personen, Alter: 4 (2,5,38,40)
Raumbedarf im EG, OG
Büro: Homeoffice
Garage, Carport: Carport


wir haben gerade den ersten Grundrissentwurf zusammen mit unserem Bauunternehmen erarbeitet und würden uns ueber konstruktive Kritik und Verbesserungsvorschlaege freuen. Weitere Angaben zum Grundstück folgen noch, hier sind wir noch in den Verhandlungen. Die Gegend, Groesse usw. ist klar (Bebauungsplan) aber Hang, Schnitt usw. kann sich noch ändern. Grundsaetzlich haben wir als Fläche ein Rechteck ohne Besonderheiten.
Vielen Dank schon mal! 🙂
Bebauungsplan/Einschränkungen
Größe des Grundstücks: ca 800m²
Hang: ja, ca 10% von West nach Ost
Grundflächenzahl: 0,4
Geschossflächenzahl: 0,8
Baufenster, Baulinie und -grenze
Randbebauung: Ja
Anzahl Stellplatz: 1,25
Geschossigkeit: 2
Dachform: Satteldach
Stilrichtung: nicht festgelegt, Familienhaus
Ausrichtung: Ost-West (geplant)
weitere Vorgaben
Keller, Geschosse: Ja, 2
Anzahl der Personen, Alter: 4 (2,5,38,40)
Raumbedarf im EG, OG
Büro: Homeoffice
Garage, Carport: Carport
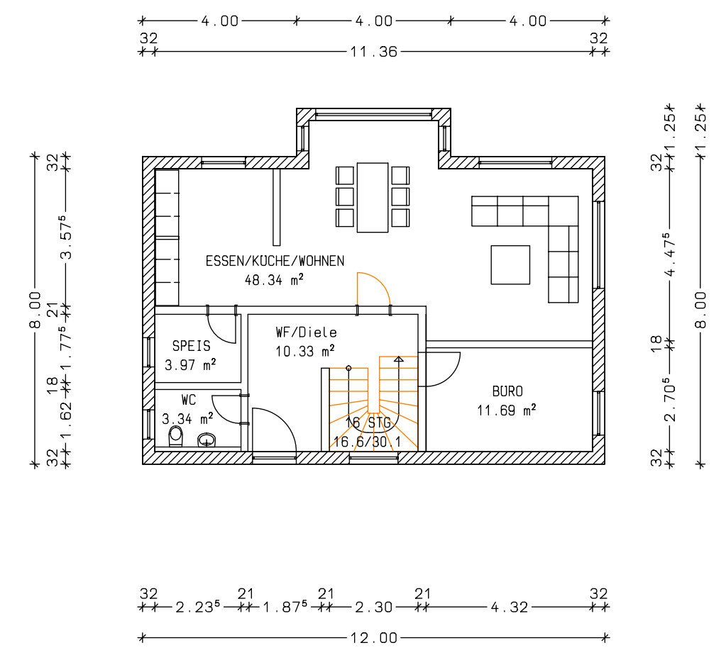
Mir ist jetzt nicht klar, wo Norden ist.
Davon abgesehen...die Tür zum WohnzimmerKüche deutlich nach links verlegen; die habt ihr verschämt hinter der Treppe versteckt. Wenn man bei euch ins Haus hereinkommt, sieht man so nur eine Wand. Die Küche solltet ihr mal möblieren, ob ihr (z.B. in einem nicht ganz geschlossenen U) alles unterbekommt.
Ich hoffe, da kommen noch einige Fenster dazu. Die Eingangsfront hat sonst Bunkercharakter.
Der Erker ist (im Obergeschoss noch mehr als im EG) überflüssig. Wenn ihr das für die Haus-Ästhetik braucht, ok.
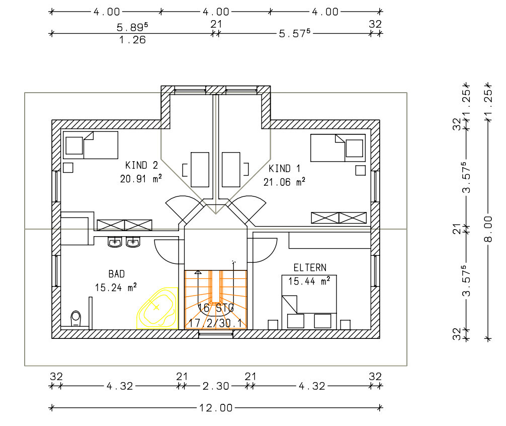
Eine Dusche ist bei 4 Personen zu wenig. Kinder, spätestens Teenager, duschen gerne ausgiebig lange, bzw. können sich seeehhhrr lange im Bad aufhalten 🙂
Davon abgesehen...die Tür zum WohnzimmerKüche deutlich nach links verlegen; die habt ihr verschämt hinter der Treppe versteckt. Wenn man bei euch ins Haus hereinkommt, sieht man so nur eine Wand. Die Küche solltet ihr mal möblieren, ob ihr (z.B. in einem nicht ganz geschlossenen U) alles unterbekommt.
Ich hoffe, da kommen noch einige Fenster dazu. Die Eingangsfront hat sonst Bunkercharakter.
Der Erker ist (im Obergeschoss noch mehr als im EG) überflüssig. Wenn ihr das für die Haus-Ästhetik braucht, ok.
Eine Dusche ist bei 4 Personen zu wenig. Kinder, spätestens Teenager, duschen gerne ausgiebig lange, bzw. können sich seeehhhrr lange im Bad aufhalten 🙂
Hallo,
irgendwie ein sehr langweiliger Grundriss. Tür zum Wohnzimmer viel zu klein und zu weit rechts, Tür zum Büro glaube ich sehr unbequem. Bad sehr groß aber irgendwie zu viel Verkehrsfläche in der Mitte.
Wo ist denn die 2-Meter-Linie?
Wie soll denn die Tür und die Treppe in den Keller funktionieren, da beginnt ja schon die Stufe vor der Bürotür oder?
irgendwie ein sehr langweiliger Grundriss. Tür zum Wohnzimmer viel zu klein und zu weit rechts, Tür zum Büro glaube ich sehr unbequem. Bad sehr groß aber irgendwie zu viel Verkehrsfläche in der Mitte.
Wo ist denn die 2-Meter-Linie?
Wie soll denn die Tür und die Treppe in den Keller funktionieren, da beginnt ja schon die Stufe vor der Bürotür oder?
M
Mike1234567890126.06.15 15:35[B]@Marv45:
Norden [/B]ist auf der kurzen Seite wo sich das Büro/Arbeitszimmer befindet.
Im Büro ist eigentlich auch ein zweites Fenster nach Osten (Eingangsbereich) - das wurde im Plan nicht eingezeichnet, ist mir leider beim einstellen nicht aufgefallen.
In der 3D Ansicht ist dieses komischerweise drinnen. Es fehlt auch ein Fenster in der Küche Richtung Süden (kurze Seite). Sorry, da hab ich beim einstellen nicht aufgepasst.
Ich frage nochmal beim Zeichner nach der aktuellsten Version. Sobald ich diese habestell ich sie nochmal ein.
Die Grundrisse sind aber die gleichen, es fehlen nur diese zwei Fenster.
Vielen Dank für den Tipp mit dem Erker und den Fenstern. Das ist eine gute Idee und hilft die Kosten etwas zu senken.
Daran haben wir vor lauter rumtueffteln gar nicht mehr gedacht.
Zu den Fenstern:
Es ist in Büro noch eins Richtung Osten (ist jetzt nicht eingezeichnet, neuer Plan folgt).
Sollte man im WC dann zwei Fenster machen oder dann das eine Richtung Süden weglassen?
Norden [/B]ist auf der kurzen Seite wo sich das Büro/Arbeitszimmer befindet.
Im Büro ist eigentlich auch ein zweites Fenster nach Osten (Eingangsbereich) - das wurde im Plan nicht eingezeichnet, ist mir leider beim einstellen nicht aufgefallen.
In der 3D Ansicht ist dieses komischerweise drinnen. Es fehlt auch ein Fenster in der Küche Richtung Süden (kurze Seite). Sorry, da hab ich beim einstellen nicht aufgepasst.
Ich frage nochmal beim Zeichner nach der aktuellsten Version. Sobald ich diese habestell ich sie nochmal ein.
Die Grundrisse sind aber die gleichen, es fehlen nur diese zwei Fenster.
Vielen Dank für den Tipp mit dem Erker und den Fenstern. Das ist eine gute Idee und hilft die Kosten etwas zu senken.
Daran haben wir vor lauter rumtueffteln gar nicht mehr gedacht.
Zu den Fenstern:
Es ist in Büro noch eins Richtung Osten (ist jetzt nicht eingezeichnet, neuer Plan folgt).
Sollte man im WC dann zwei Fenster machen oder dann das eine Richtung Süden weglassen?
M
Mike1234567890126.06.15 15:40Flo5983:
Die Treppe läuft anders rum (ist im aktuellen Plan falsch eingezeichnet, Danke für den Hinweis - neuer kommt sobald ich ihn vom Bauzeichner bekommen habe).
Büro und Kellerzugang dann immer noch ein Problem?
Danke für den Hinweis mit der Tür zum Wohnzimmer.
Die Treppe läuft anders rum (ist im aktuellen Plan falsch eingezeichnet, Danke für den Hinweis - neuer kommt sobald ich ihn vom Bauzeichner bekommen habe).
Büro und Kellerzugang dann immer noch ein Problem?
Danke für den Hinweis mit der Tür zum Wohnzimmer.
M
Musketier26.06.15 15:41Mike12345678901 schrieb:
Büro und Kellerzugang dann immer noch ein Problem?Nö, das ist die Treppe zum OG das Problem 😉
Ähnliche Themen