Grundrissplanung kurz vor Bauantragstellung

4,50 Stern(e) 17 Votes
Zuletzt aktualisiert 19.11.2025
Sie befinden sich auf der Seite 16 der Diskussion zum Thema: Grundrissplanung kurz vor Bauantragstellung
>> Zum 1. Beitrag <<

R

R.Hotzenplotz

Sie haben trotz §34 das Formular, welches als "vereinfachtes genehmigungsverfahren" gekennzeichnet ist, benutzt. Basis ist $ 68 Abs. 1 Satz 1 und 2 und § 67 Abs. 1 Satz 3 Bauordnung NRW.
 
R

R.Hotzenplotz

Zum Abschluss der Grundrissdiskussion lade ich der Vollständigkeit halber mal auszugsweise die Unterlagen des eingereichten Bauantrags hoch.

Die Möblierung passt immer noch nicht, da der Anbieter das erst in der noch nicht beauftragen Ausführungsplanung korrigieren wird!

Das hintere Garagentor ist jetzt neu, damit ein Minibagger in den Garten kommt. Rechts neben dem Haus (Frontansicht) passt das nicht.

Architekturzeichnung: Haus mit Keller, Erd- und Obergeschoss, Dachgeschoss; Baum links.


Moderne Hausansicht: Garage links, Eingangsbereich und Fensterreihe unter dem Dach.


Architekturzeichnung eines zweigeschossigen Hauses mit Dachgeschoss, Keller, Garage und Balkon.


Architektenzeichnung eines modernen zweigeschossigen Hauses mit Walmdach, Balkon und Baum rechts.


Grundstücksplan mit pink markierter Gebäudefläche und Bauflächenlayout


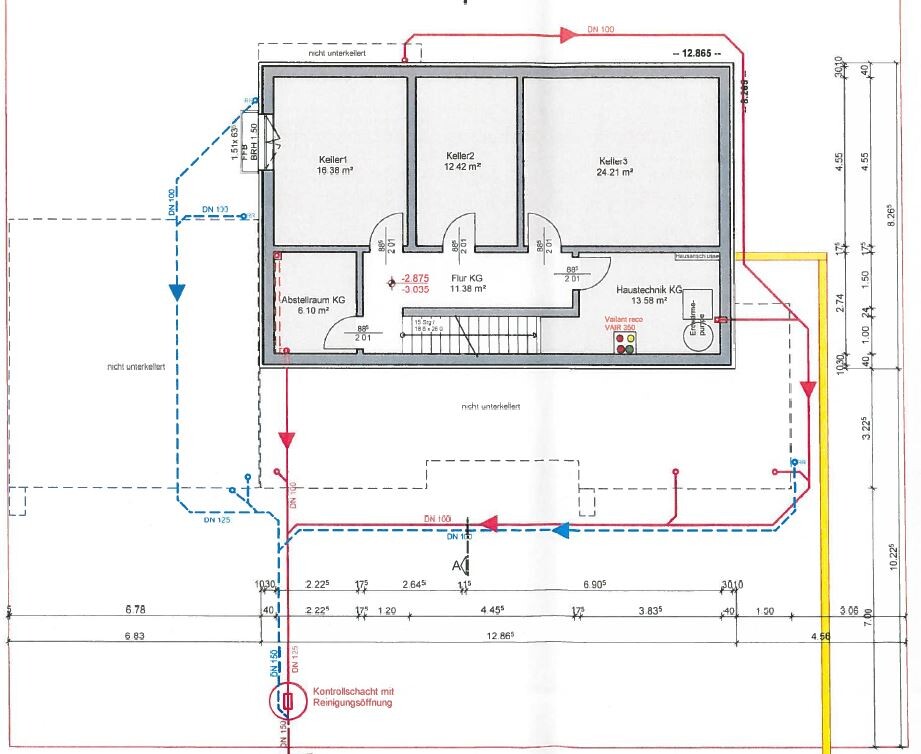
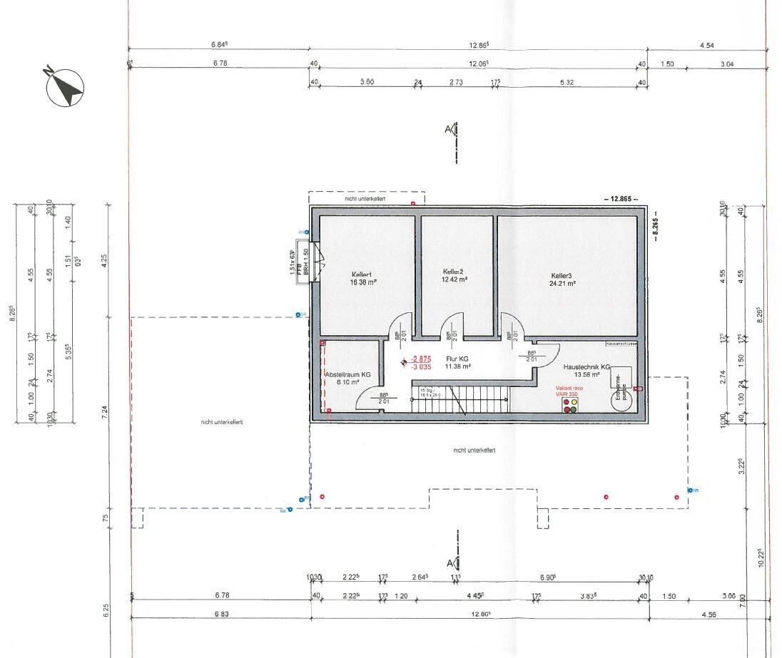
Grundriss Kellergeschoss: drei Kellerräume, Flur KG, Abstellraum KG, Haustechnik KG, Maßangaben.


Grundriss eines Hauses mit Garage, Büro, Garderobe, Diele, Küche, Wohnzimmer/Essen und WC.


Grundriss eines Hauses: Garage links, Bad, Schlafen, Ankleide, Kinderräume, Flur OG, Dachterrasse.


Dachplan eines Gebäudes mit gekreuzten Dachflächen, Maßlinien und Orientierung.


Schnitt durch ein mehrstöckiges Haus mit Keller, Erdgeschoss, Obergeschoss und Dachgeschoss.
 
R

R.Hotzenplotz

46 cm Gefälle auf 7 m Länge der Garageneinfahrt - ist das nötig ?
Der Bauberater hatte das auch bemerkt und sich nach Betrachtung der gesamten Grundstückstopographie so geäußert, dass es wohl nicht anders ginge wenn man nicht an anderer Stelle andere Nachteile in Kauf nehmen wolle (kann es leider nicht mehr genau wiedergeben aber ich hatte dem auch nicht so viel Priorität beigemessen). Ich habe das dann nicht weiter hinterfragt.
 
Zuletzt aktualisiert 19.11.2025
Im Forum Grundrissplanung / Grundstücksplanung gibt es 2536 Themen mit insgesamt 87979 Beiträgen


Ähnliche Themen zu Grundrissplanung kurz vor Bauantragstellung
Nr.ErgebnisBeiträge
1Mehrkosten Anthrazit für Fenster, Haustür und Garagentor? 21
2Garagentor, welche Farbe außer Anthrazit - Seite 429
3Elektrisches Garagentor Nachrüsten 15

Oben