Grundrissplanung kurz vor Bauantragstellung

4,50 Stern(e) 17 Votes
Zuletzt aktualisiert 21.12.2025
Sie befinden sich auf der Seite 130 der Diskussion zum Thema: Grundrissplanung kurz vor Bauantragstellung
>> Zum 1. Beitrag <<

R

R.Hotzenplotz

Das erinnerst Du wohl von Diskussionen um in der Außenwand verlaufende Rohre. Hier geht es aber um einen winzigen Durchstoß.
Ok, also offenbar winziger als das Rohr, was da oben entlang läuft. Da könnte man meinen, hier läuft eine Hauptwasserleitung entlang. Ich kläre es am Montag ab.
 
11ant

11ant

Ok, also offenbar winziger als das Rohr, was da oben entlang läuft.
Nein, genau gleich. Nur eben nicht steigend, sondern bevor es durch die Decke ins OG ginge, einen 90° Bogen machend und die Außenwand durchstoßend, mündend in ein Gitter. Wanddurchbruch 20x20 oder meinetwegen Kernbohrung 16 cm Durchmesser, Rohr Nenndurchmesser 150. Nix anderes wie bei zizzi mit der Dunstabzugshaube. Kein Staatsakt. Loch rein, Rohr durch, Steinwolle Spachtelmasse fertig. Kann jedes Mädchen, falls die Jungs zu doof sind.
 
R

R.Hotzenplotz

Ok, dann haben sie das wohl nur nicht in Erwägung gezogen, da es nicht DIN konform ist weil die DIN eine Führung durchs Dach vorsieht. Mal schauen, ob sie das dann machen, wenn ich die entsprechende DIN Abweichung akzeptiere oder ob wieder abgelehnt wird. Beim Unterputzbriefkasten, der 10cm tief ist, haben Sie eine Montage in der Poroton Wand abgelehnt, dort wo die Küche angrenzt. Wir mussten damit in die Wandspange rechts außen gehen. Und das ist kein Durchwurfbriefkasten!
 
R

R.Hotzenplotz

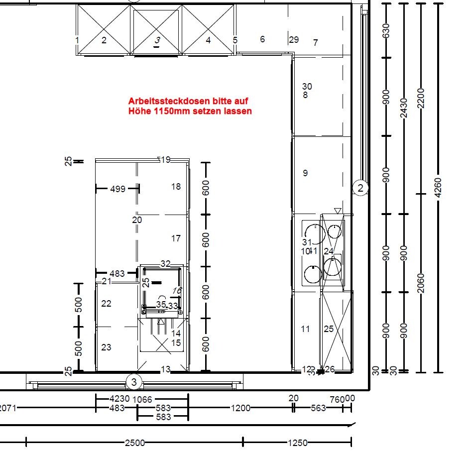
Es tut sich noch ein Problem auf, dass mir erst heute aufgefallen ist. Der Küchenplan ist gar nicht umsetzbar. In der planunteren Ecke rechts in der Küche sollte ein Hängeschrank gemäß Küchenplanung montiert werden.


Grundriss eines Raums mit Arbeitsbereich; Maße in mm, Steckdosenhöhe 1150 mm.



Technischer Plan einer Einbauküchenfront mit Schränken, Schubladen und Fensterrahmen (mm).


Wird schwierig:

Detaillierter Badgrundriss mit Sanitärinstallationen und Maßen im Planlayout



Baustelle: Lose Elektroleitungen hängen an roter Ziegelwand neben einem Fenster.


Ist es normal, dass die einfach vorliegende Küchenpläne ignorieren? Selbst wenn der Ausführungsplan das so darlegen sollte (ich sehe da einen Bodendurchbruch, nicht zwingend ein Rohr in der Ecke), gibt man dann nicht dem Kunden Bescheid, wenn er einen Küchenplan einreicht? Das ist einfach nur noch grottenschlecht.
 
H

haydee

Mh unser Küchenbauer hat sich mit dem GU abgestimmt. Ob das normal ist oder nur wir sind fast Nachbarn weiß ich nicht.
Ärgerlich ist es auf jeden Fall.
 
Zuletzt aktualisiert 21.12.2025
Im Forum Grundrissplanung / Grundstücksplanung gibt es 2552 Themen mit insgesamt 88537 Beiträgen


Ähnliche Themen zu Grundrissplanung kurz vor Bauantragstellung
Nr.ErgebnisBeiträge
1Wärmenachweis: Heizlastberechnung nach DIN 12831 oder DIN 4708? 10
2Wärmebedarfsrechnung nach DIN 12831 12
3Din 4109 Lärmende ll - Was ist zu beachten? 13
4Schallschutz nach DIN Norm 4109 für Baugenehmigung relevant? - Seite 216
5Überspannungsschutz nach DIN VDE 0100-443/543 einbauen Pflicht? - Seite 215
6Baukosten Terrassen etc. in Kostenschätzung nach DIN 27 19
7Schallschutz VDI Richtlinie 4100 & DIN 4109 im Fertighausbau 49
8Heizlastberechnung&Verlegeplan DIN: Neue Berechnung notwendig? 41
9Schallschutz DIN 4109-1 bei Reihenmittelhaus ausreichend? 19
10Planung Gäste-WC im Neubau - Wie groß muss es sein? (DIN?) 107
11Türe DIN links oder rechts - geht beides? 17
12Fensterplanung zwingend nach DIN 5034-2021-08 nötig? 13
13Treppe DIN 18065 verpflichtend oder nicht? - Seite 382
14Planerin erstellt keinerlei Berechnungen nach DIN 276 60
15Terrasse ohne Gefälle - Aus welcher DIN / Vorschrift? - Seite 314
16Bauen ohne Antenne und SAT - CAT Kabel ohne Leerrohr? - Seite 1065
17Extra Stromkreis / FI für Büro wirklich notwendig? - Seite 540
188cm dicker senkrechter Schlitz in Außenwand möglich?!? 20
19Neubau Planung - Kalkuliere ich falsch? - Seite 844
20Problem mit Anschluss Waschbecken zu Abwasserleitung/-Rohr 16

Oben