Bungalow 148m² Grundstücksplanung / Grundrissplanung

4,10 Stern(e) 20 Votes
Zuletzt aktualisiert 18.11.2025
Sie befinden sich auf der Seite 8 der Diskussion zum Thema: Bungalow 148m² Grundstücksplanung / Grundrissplanung
>> Zum 1. Beitrag <<

C

Chrisi1906

Das Walmdach hat einfach ein unverschämte Höhe, wenn darunter begehbarer Raum sein soll ... Dachhöhe mind. 1,5 x so hoch, wie das EG darunter. Einfach noch mal den Vergleich:



Da ist Dachhöhe mit 28° Neigung ca. 40 cm höher als ein normales Geschoss.

Und zum Vergleich jetzt noch mal das Walmdach mit 28° (das würde ich ein gesundes Verhältnis nennen) ... da bleibt dann aber in der Mitte nicht mehr viel und Befensterung wird auch nicht gut.
Anhang anzeigen 37445
--------------
Und dann sollte man sich die entstehende Fläche im DG trotzdem mal einteilen. Damit man weiß, warum man im EG mit Antrittsfläche Treppe mind. 5 qm verbraucht.
Hier mal eine Draufsicht aus einem alten Entwurf mit 35° Dachneigung. Du hast schon recht wenn du sagst das Dach ist sehr hoch im Vergleich zum Erdgeschoss.

Der Bauträger meinte das die Kosten für die Anhebung von 25° auf 35° Dachneigung überschaubar sind. Siehst du das auch so?

Was hältst du davon wenn man den Kniestock anhebt und nur 30° Dachneigung nimmt?


Einfamilienhaus mit dunklem Satteldach, Carport links, Baum links und Fensterfronten.
 
kbt09

kbt09

Ich halte einfach GAR nichts vom Walmdach bei dem gewünschtem Verwendungszweck .. und mit Kosten kenne ich mich auch nicht aus.

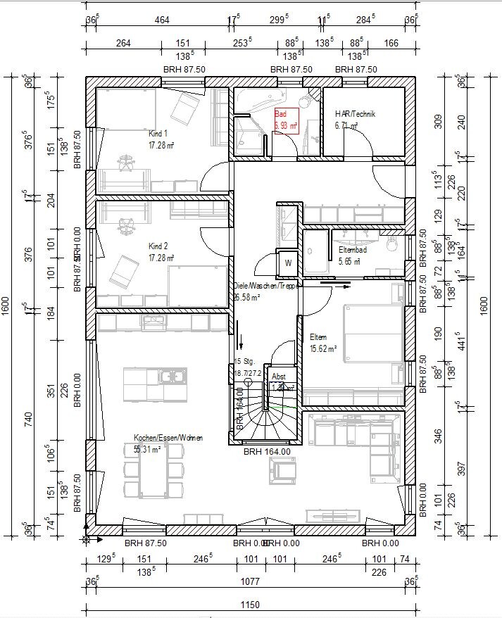
So, jetzt HAR/Technik verkleinert, denn dort denke ich eigentlich wirklich nur HAR/Technik, so dass das gehen sollte. Dafür das allgemeine Bad mit Wanne und großer Dusche. Stauraum ist ja sonst an allen Ecken und Enden des Hauses möglich.

Grundriss eines Wohnhauses mit Eltern- und Kinderzimmern, Küche/Essen/Wohnen, Bad und Flur.
... und dein Grundriss

Grundriss eines Einfamilienhauses: Küche, Wohnzimmer, zwei Schlafzimmer, Bad, WC und Treppe.


Du hast gefragt, was mir nicht gefällt
  • Treppenaufgang direkt neben der Eingangstür
  • 2. Bad direkt neben der Eingangstür (in meiner Variante bestünde auch die Möglichkeit der Bildung eines Windfangs)
  • HAR mitten zwischen den Privaträumen
  • Generell bin ich kein Fan 10 m breiter und 4 m tiefer Räume wo aneinandergereiht Kochen/Essen/Wohnen ist.
  • Das Walmdach
  • dass der Eingang zum Haus soweit im Grundstück liegt
 
11ant

11ant

Habe ich das so richtig umgesetzt?
Nein, darin kann ich meine Worte nicht wiedererkennen. Gesagt habe ich das hier:

Grundriss eines Hauses: Wohnzimmer/Essen, Küche, Bad, Flur, HWR, Schlafzimmer, zwei Kinderzimmer.


Im übrigen halte ich die Kaprizierung auf einen Bungalow nach wie vor für verfehlt; Kerstins Vorschlag in #38 für gelungen; wesentlich mehr als 30° DN hier für Quatsch; und ein Satteldach für sehr überlegenswert (wäre hier auch ein versetztes Pultdach zulässig ?) - ein Barackenlook muß sich daraus nicht zwingend ergeben.
 
Zuletzt bearbeitet:
C

Chrisi1906

Ich halte einfach GAR nichts vom Walmdach bei dem gewünschtem Verwendungszweck .. und mit Kosten kenne ich mich auch nicht aus.

So, jetzt HAR/Technik verkleinert, denn dort denke ich eigentlich wirklich nur HAR/Technik, so dass das gehen sollte. Dafür das allgemeine Bad mit Wanne und großer Dusche. Stauraum ist ja sonst an allen Ecken und Enden des Hauses möglich.
Anhang anzeigen 37449 ... und dein Grundriss
Anhang anzeigen 37450

Du hast gefragt, was mir nicht gefällt
  • Treppenaufgang direkt neben der Eingangstür
  • 2. Bad direkt neben der Eingangstür (in meiner Variante bestünde auch die Möglichkeit der Bildung eines Windfangs)
  • HAR mitten zwischen den Privaträumen
  • Generell bin ich kein Fan 10 m breiter und 4 m tiefer Räume wo aneinandergereiht Kochen/Essen/Wohnen ist.
  • Das Walmdach
  • dass der Eingang zum Haus soweit im Grundstück liegt
Der Bauträger möchte das der Hauswirtschaftsraum mindestens 10m² groß ist. Bekommt man das in Verbindung mit dem großen Bad hin?

Erstmal danke für dein Feedback. Folgende Punkte gehe ich mit und sehe ich auch so. Beim Wohn-, Ess- und Küchenbereich ist mir ehrlich gesagt nichts besseres eingefallen als diesen ca 4,5m tief und 10m lang zu machen.

  • HAR mitten zwischen den Privaträumen
  • Generell bin ich kein Fan 10 m breiter und 4 m tiefer Räume wo aneinandergereiht Kochen/Essen/Wohnen ist
Mit den anderen 4 Punkten kann ich leben.

Den Eingang des Hauses könnte man weiter vorne positionieren hat aber den Nachteil, dass das Schlafzimmer dann an das Wohnzimmer "rutscht". (hab eine Soundanlage im Wohnzimmer) Das ist in deinem Entwurf auch so. Vermutlich könnte ich damit leben, dass das Schlafzimmer direkt am Wohnzimmer angrenzt da meine Frau und ich meistens gleichzeitig ins Bett gehen.
 
kbt09

kbt09

Außerdem ist in meinem Entwurf noch der Schrank dazwischen

Der Unternehmer soll mal zeigen, was er in den 10 qm alles machen will. Hier muss keine Waschmaschine/Trockner rein, kein Lagerraum, kein nichts.
 
Zuletzt aktualisiert 18.11.2025
Im Forum Grundrissplanung / Grundstücksplanung gibt es 2536 Themen mit insgesamt 87965 Beiträgen


Ähnliche Themen zu Bungalow 148m² Grundstücksplanung / Grundrissplanung
Nr.ErgebnisBeiträge
1Planung Grundriss / Erster Entwurf für erstes Feedback 32
2Unser Grundriss-Entwurf, eure Meinungen 20
3Grundriss-Entwurf: Einfamilienhaus mit Keller; 560qm Grundstück - Seite 365
4Hauskauf, Fertighaus vom Bauträger mit Grundstück - Seite 210
5Grundriss erster Entwurf - Meinungen erwünscht 21
6Einfamilienhaus-Grundriss Entwurf 23
7Entwurf Grundriss: Planung Erdgeschoss - Seite 227
8Grundriss-Entwurf Stadtvilla mit Doppelgarage - Seite 238
9Haus-Entwurf Einfamilienhaus - Zukünftig als Zweifamilienhaus trennbar - Seite 572
10Bitte schaut kritisch über unseren Grundriss-Entwurf 13
11Grundrissplanung für schmales Grundstück, 2. Versuch. 14
12Eine weitere Walmdach Stadtvilla (240qm) - Seite 9164
13Grundstück die Zweite - Bitte um Beurteilung - Seite 544
14Grundstück mit Einschnitt Stromstation / L-Form- Ideensuche 44
15Einfamilienhaus 1,5-Geschosser ca. 150qm Grundrissplanung Do-It-Yourself Entwurf 23
16Entwurf Einfamilienhaus mit ca. 168m² Feedback - Seite 537
17Bauträger verlangt Anzahlung für Zeichnungsbeginn 42
183. Grundriss-Entwurf Neubau Einfamilienhaus 220qm 2 Vollgeschosse Dachterrasse - Seite 561
19Grundriss Einfamilienhaus ca. 300qm, Grundstück 780qm - Seite 224
20Grundriss Entwurf Neubau Einfamilienhaus - Grundstück 610qm - Meinungen erwünscht - Seite 850

Oben