Bungalow 148m² Grundstücksplanung / Grundrissplanung

4,10 Stern(e) 20 Votes
Zuletzt aktualisiert 18.11.2025
Sie befinden sich auf der Seite 26 der Diskussion zum Thema: Bungalow 148m² Grundstücksplanung / Grundrissplanung
>> Zum 1. Beitrag <<

C

Chrisi1906

Den von Katja meinst Du ? - den habe ich bzgl. seiner zwei Treppen nicht verstanden.

Ja, klar. Holzbalken oder Beton. Aber wieso meinst Du ausgerechnet bei Sattel würde er Beton nehmen wollen ?
Ja, genau. Ist nur so eine Vermutung.


Ja, könnte man. Ich meinte aber eher beim Bungalow ohne Dachausbau: Wohnen und Schlafen mit offener Dachuntersicht, höherem Teil des Daches und Oberlichtern im Versatz (Firststirn); niedrigere Seite nur Spitzboden.
Sorry aber das verstehe ich nicht, wie meinst du das?
 
kaho674

kaho674

Pultdach? Über die Länge? Das sieht doch dann aus, wie ein großer Kuhstall, oder?

Das Dach über die Treppe planunten zu erschließen, ist nicht so schön, wie die aus #140. Es würde ja ein langer Flur entstehen. Bei Pult müsste man erst mal überlegen, wie das aussehen könnte.

Was hast Du eigentlich gegen Winkelbungalow?
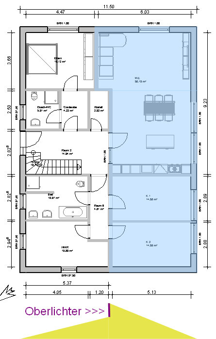
Ich finde den Ansatz aus #145 ein gutes Beispiel. Hier noch mal in groß.


Grundrissplan eines Hauses mit Küche, Essbereich, Wohnzimmer, Schlafzimmern und Terrasse
 
C

Chrisi1906

Pultdach? Über die Länge? Das sieht doch dann aus, wie ein großer Kuhstall, oder?

Das Dach über die Treppe planunten zu erschließen, ist nicht so schön, wie die aus #140. Es würde ja ein langer Flur entstehen. Bei Pult müsste man erst mal überlegen, wie das aussehen könnte.

Was hast Du eigentlich gegen Winkelbungalow?
Ich finde den Ansatz aus #145 ein gutes Beispiel. Hier noch mal in groß.

Anhang anzeigen 37607
Ja, mit Kuhstall hast du recht. *lach* Aber wenn ich Pultdach mit Satteldach bei der Länge vergleiche, kommen wir auch zum Kuhstall. Zum Glück sind die Geschmäcker verschieden!

Ich habe nichts gegen Winkelbungalows. Ich wollte sogar zuerst einen Winkelbungalow, habe es aber später aufgegeben weil ich die Zimmer nicht so gut unterbekommen habe. Das war aber noch mit Büro unten. Was mich ein bisschen abschreckt an dem Grundriss sind die vielen Schrägen. Aber da müsste sich doch bestimmt was machen lassen oder? Vielleicht muss ich mich auch erst mal dran gewöhnen.
 
11ant

11ant

Y

ypg

200m weit weg ist ein großes Blockhaus.
Es kann sein das die Sonne hinter diesem Haus verschwindet.
Du hast Sorgen. Normale Wohngebiete haben alle 20 Meter ein Häuschen, bei 200 Metern spricht man bei uns von Eremitendasein... ob die Sonne dort untergeht, verschwindet, wie auch immer kann man wohl als Sorge außen vor lassen.
Eine Frage zum unteren Grundriss habe ich noch. Wenn man die Treppe unten nimmt... Könnte man dann ein versetztes Pultdach nehmen? Also das der linke Bereich im Bungalow noch Zimmer hat?

Von der Optik her so...
Das ist kein Bungalow
 
kbt09

kbt09

Bei Winkelbungalow würde ich sowas versuchen:

Anhang anzeigen 37603
So habe ich auch erst gedacht, das schließt aber im Sommer dann wirklich West/Nordwest-Abendsonne komplett aus. Und ich muss sagen, gerade diese Sonne finde ich an Sommerabenden wirklich richtig gut. Daher hatte ich den Bungalow mal gedreht


Immerhin würde eine Terrasse (sprich Haus) hier frühestens nach 6 bis 7 m von der Grundstücksgrenze aus gesehen beginnen. Und, man hätte richtige Abschottung Richtung Nachbar.

Bad vom Allraum aus hat mich auch etwas gestört. Habe schon überlegt, die Treppe im Winkel nach oben zu führen, dann wäre das auch vermeidbar.

Wg. Hauswirtschaftsraum . das sollte technisch machbar sein und ich würde sowieso 2 Carports wählen bzw. beim Hauswirtschaftsraum definitiv Carport mit Raum hintendran. D. h. Zuleitungen können direkt neben dem Haus zum Hauswirtschaftsraum, über das Material der Einfahrt müsste man sich dann entsprechende Gedanken machen. Auf jeden Fall käme man da an die Zuleitungen auf Dauer auch wieder ran.

Auf Terrassenseite könnte man dann auch eine Garage wählen.
 
Zuletzt aktualisiert 18.11.2025
Im Forum Grundrissplanung / Grundstücksplanung gibt es 2536 Themen mit insgesamt 87971 Beiträgen


Ähnliche Themen zu Bungalow 148m² Grundstücksplanung / Grundrissplanung
Nr.ErgebnisBeiträge
1 2 Vollgeschosse, Durchgang Garage, Hauswirtschaftsraum unter Treppe 25
2Grundrissfrage, Garage, Treppe 33
3Zusätzlicher Hauswirtschaftsraum im OG für Waschmaschine etc. 13
4Reicht der Hauswirtschaftsraum auch als Abstellkammer aus? - Seite 222
5Grundriss 170m2 - Hauswirtschaftsraum zu klein? Verbesserungsvorschläge? - Seite 342
6Minimale Grundfläche - Hauswirtschaftsraum und AZ im EG - Ohne Keller 19
7Einfamilienhaus zwei Vollgeschosse, Pultdach, kein Keller 31
8Erstentwurf: 2-geschossig mit versetztem Pultdach - Seite 328
9Grundriss eines barrierefreien Bungalow - Seite 34229
10Kleines Grundstück und Winkelbungalow 26
11Winkelbungalow, Terrasse ganz oder halb überdachen? 57
12Grundriss Neubau Einfamilienhaus Winkelbungalow 130qm - Seite 215
13Grundriss Winkelbungalow 150m² mit Erweiterungsmöglichkeiten - Seite 1698
14Winkelbungalow auf Grundstück 800m2 - Finanziell machbar? - Seite 316
15Fitness-Ecke im Hauswirtschaftsraum? 27
16Technik / Hauswirtschaftsraum im OG Meinungen? 27
17Fußbodenheizung auch im Technikraum / Hauswirtschaftsraum - Seite 319
18Heizungsanlage passt nicht wie geplant in den Hauswirtschaftsraum 27
19Schallschutztür im Hauswirtschaftsraum notwendig? Erfahrungen? 22
20Hauswirtschaftsraum streichen - Welche Farbe? Latexfarbe? - Seite 216

Oben