Bungalow 148m² Grundstücksplanung / Grundrissplanung

4,10 Stern(e) 20 Votes
Zuletzt aktualisiert 18.11.2025
Sie befinden sich auf der Seite 6 der Diskussion zum Thema: Bungalow 148m² Grundstücksplanung / Grundrissplanung
>> Zum 1. Beitrag <<

C

Chrisi1906

Kam ja Keim Feedback zu #19. Man kann ja wenigstens sagen, dass es schlecht ist und warum.
Ich finde das Wohnzimmer zu klein und ein Abstellraum fehlt. Ich hätte auch am liebsten einen rechteckigen Bungalow. Das Haus wird in der Größe ziemlich weit rechts vom Grundstück stehen (westlich). Damit verliere ich wieder gute Sonnenlage.

Die Idee mit der Garage finde ich super.
 
C

Chrisi1906

Durch die Schrägstellung wirkt die Mehrlänge und der Radstand auch in die Breite / Spurweite hinein - nicht äquivalent, aber ein bißchen. Und auf der Wegstrecke des Ein- bzw. Ausfahrens summiert sich das, als wäre der längere Wagen effektiv doch breiter.


Als Gegenvorschlag (Relaunch) gefällt mir das gut so. Meine Alternative ("minimalinvasiv" im Sinne gleichbleibender Module, nur anders angeordnet) wäre: die Einheit Treppe - Eingang - WC zu spiegeln (Treppe planunten, WC planoben) # das Bad "hochschieben" (also an die Küche) # dadurch kommen die Kinder zusammen und die Bereiche sind blockweise" Wohnen - Naßräume - Schlafen" zusammengefaßt # ggf. auch Eltern / Hauswirtschaftsraum spiegeln # Küche 90° gegen den Uhrzeigersinn drehen, mit Fenstern zwischen Arbeitsfläche und Oberschränken.
Habe ich das so richtig umgesetzt?


Grundriss eines Hauses mit Treppenhaus: Wohnen/Essen, Küche, Bad, WC, HWR, AR, mehrere Schlafzimmer.
 
kbt09

kbt09

Zunächst mal Walmdach .. hast du schon mal über die Neigung nachgedacht? Und, was da an Raum entsteht und wie schlecht der unter dem Dach zu belichten ist?

Beispiel 38° an den Längsseiten, 45° an den kurzen Seiten

Ein weißes Einfamilienhaus mit rotem Dach, grüner Wiese und Glasfronten mit Blick ins Innere.

Einfamilienhaus mit rotem Satteldach, weißen Wänden und Fenstern auf grünem Rasen.


ergibt folgenden möglichen Grundriss

Grundriss eines rechteckigen Dachgeschoss-Raums mit zentraler Treppe und Maßlinien.

Man sieht die 1m- und die 2m Linie. Um noch halbwegs eine schöne Beleuchtung zu haben, müssten Dachfenster ca. an der 1-m-Linie gesetzt werden.
-------------------------------
Zum Vergleich mal Satteldächer, dabei habe ich bewußt die "Löcher", die über eine normale Geschosshöhe hinausgehen, gelassen.
38° Neigung

Weißes Einfamilienhaus mit großem dunklem Satteldach, Fensterfronten und grünem Rasen

Einfamilienhaus mit grauer Fassade, dunklem Satteldach, Fenster und Tür auf grünem Rasen.

führt zu über 100qm Wohnfläche

Grundriss Dachgeschoss: großes Rechteck, Innenwand, kleinem Treppenkern im Zentrum.


28° Neigung

Weißes Einfamilienhaus mit schwarzem Dach, großen Fensterfronten und grünem Rasen.

Graues Einfamilienhaus mit dunklem Satteldach auf grüner Wiese und blauem Himmel.


führt zu immer noch 75 qm Wohnfläche

Grundriss eines großen rechteckigen Raums mit dicker Umrandung; zentrale Spiraltreppe unten.


Ich würde daher die Wahl Walmdach noch mal sehr genau überlegen.
 
kbt09

kbt09

Auch würde ich den Eingang nicht so weit nach hinten legen ... generell bin ich ja immer noch Fan der längeren, dafür aber schmaleren Variante, wenn es aber nun mal 11,5x16 m Außenmaß sein sollen, hier noch mal ein Versuch von mir.

Grundriss eines Hauses mit Doppelgarage auf Grundstück, Maßangaben sichtbar


Keine Garage .. nur ein "Schuppen" für Fahrräder usw. Die helle Fläche ist dann Carport-Überdachung. Grün bedeutet im Schuppen Eingangstür .. so sollte man halbwegs auch die Fahrräder dort hineinbringen.
Zusätzlich könnte auch ein Besucherauto noch davor stehen und hält noch genügend Abstand zum Eingang ein.


Grundriss eines Hauses: Kochen/Essen/Wohnen, 2 Kinderzimmer, Eltern, Bad, Flur, Treppe.

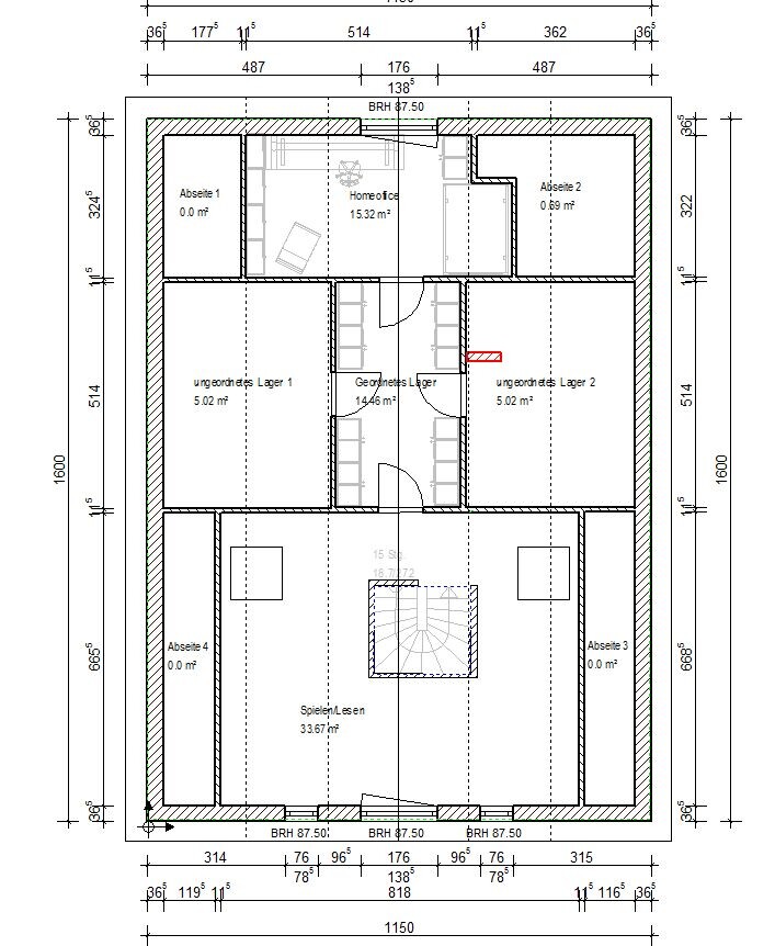
Grundriss eines Gebäudes: Homeoffice, Lagerflächen und Spiel-/Lesebereich mit Treppenhaus.


Wesentliche Punkte der Grundrisse:
  • Treppe weg direkt vom Eingang
  • Ausreichend Garderobenplatz am Eingang für Schuhe, Jacken etc. (ca. 350 cm)
  • Technik HAR ... hier passt dann eher mal noch der Kinderwagen oder so mit rein
  • kleines Bad für Kinder und Gäste mit Wanne, evtl. im Estrich reingesetzt, dann kann man in späteren Jahren da vielleicht auch eine bodentiefe Dusche integrieren
  • Flur genutzt für Waschplatz mit Waschmaschine/Trockner, darüber Arbeitsplatte zum Zusammenlegen, GEsamtbreite ca. 150 cm, davor Lamellenvorhang. Daneben Kämmerchen für Wäschesammlung. Dort könnte auch Vorrat Toilettenpapier etc. sein. Eben erreichbar von allen Privaträumen.
  • Elternschlafzimmer mit "Masterbad" ... bodentiefe Dusche, 2 Waschbecken, 25 cm tiefer Stauraum für Kosmetika etc.
  • Treppe am Flurende mit Stauraum darunter für Staubsauger, Wischer, kleine Küchenvorräte wie Getränkekisten etc. Zentral im Haus gelegen. Die Treppe hat mit Brüstungshöhe 165 cm Fenster Richtung Wohnen/Essen .. so kommt Licht in den Flur
  • Dann Kochen/Essen/Wohnen, mit großer Insel, großzügigem Platz für Esstisch (eingezeichnet 100x200 cm) und der ruhigen Ecke für Sofa/TV/Sound, der dann keinen mehr stört, weil Richtung Eltern auch noch die Kleiderschränke stehen.
  • OG Richtung Südosten offener Spielraum mit ca. 110 cm hoher Brüstung um die Treppe, 2 Dachfenster und die Fenster Richtung Südosten.
  • Dann der "Ordnungsgang mit 4 Schränken a 2m, auch 2 m hoch, so etwas bekommt man immer mal günstig und hier kann dann alles verstaut werden, was sich gut in Schränken verstauen lässt. Sondergarderobe, Jahreszeitendeko, Spiele, Akten usw. Rechts und links davon "Lagerraum ungeordnet", also eher so Sachen wie Skier, Koffer, Surfboard und was einem sonst noch so einfällt.
  • Richtung Nordwesten dann das Homeoffice-Zimmer. Da würde auch ein Gästebett mit 140 cm Breite noch passen. Man kann von dort auch mal schnell den Paketboten informieren, wenn man nach dem Klingeln nicht schnell runterkommt .
  • Im DG würde ich (rot umrandet) Wasser/WC-Anschluss vorsehen. Durch Umgestaltung könnte man dort locker 4 Zimmer und ein kleines Bad unterbringen. Und da das Masterbad direkt untendrunter liegt, sollte das nicht so aufwendig sein.
Generell finde ich aber meine erste Variante immer noch sehr erstrebenswert. Da hatte ich Satteldach mit 22° geplant.

Weißes Einfamilienhaus mit dunklem Satteldach, Dachfenster, offener Eingang auf Rasen


Weißes Einfamilienhaus mit dunklem Satteldach, Glasfronten und Garten.


Isometrischer Hausgrundriss: Wohnzimmer, Küche, Esszimmer, Schlafzimmer, Treppen


3D-Top-Down-Grundriss eines Hauses mit mehreren Zimmern, Fluren und Möbeln; grüne Außenfläche.
 
Zuletzt aktualisiert 18.11.2025
Im Forum Grundrissplanung / Grundstücksplanung gibt es 2536 Themen mit insgesamt 87971 Beiträgen


Ähnliche Themen zu Bungalow 148m² Grundstücksplanung / Grundrissplanung
Nr.ErgebnisBeiträge
1Grundriss Einfamilienhaus, 230 qm Wohnfläche, Osthang, Bauhausstil - Seite 1375
2Grundriss Einfamilienhaus mit 240m² mit Einliegerwohnung 75m² und Garage 39
3 2 Vollgeschosse, Durchgang Garage, Hauswirtschaftsraum unter Treppe 25
4Grundriss Einfamilienhaus (ca. 170 qm) mit Garage - Hanglage 35
5Grundriss 140 m2 Einfamilienhaus mit Garage - Hausausrichtung ok? - Seite 218
6Grundriss Einfamilienhaus ca. 135 m³, Grundriss. Garage, 1,5 Geschossig, 4 Personen 11
7Bungalow mit 140qm und Garage im Grundriss 13
8Grundriss EG + OG für Doppelhaushälfte 29
9Grundriss Erstskizze - Verbesserungswürdig? - Seite 542
10Grundriss Stadtvilla - Bitte um Anregungen 60
11Grundriss - Eure Meinungen erwünscht! 24
12Grundriss Schlauchhaus L-Form Dreieckiges Grundstück samt Eiche - Seite 46529
13Grundriss Stadtvilla 155qm - eure Meinung ist gefragt - Seite 247
14Grundriss-Optimierung | Doppelhaushälfte am Hang mit 192m² Wohnfläche 87
15Durchsicht Grundriss-Planung Einfamilienhaus mit Vollgeschossen 15
16Grundriss 175qm Satteldach ohne Keller - Seite 2136
17Grundriss-Entwurf: Einfamilienhaus; 140qm; ohne Keller; 730qm Grundstück 54
18Grundriss. Meinungen, Ideen und konstruktive Kritiken. - Seite 424
19Grundriss-Entwurf Stadtvilla mit Doppelgarage - Seite 238
20Treppe im Flur, Grundriss steht eigentlich schon :o( 20

Oben