Bungalow 148m² Grundstücksplanung / Grundrissplanung

4,10 Stern(e) 20 Votes
Zuletzt aktualisiert 20.11.2025
Sie befinden sich auf der Seite 35 der Diskussion zum Thema: Bungalow 148m² Grundstücksplanung / Grundrissplanung
>> Zum 1. Beitrag <<

kbt09

kbt09

Ich stelle noch mal die Erschließung des Dachbodens in Frage ... und, wenn es denn dann ein Walmdach sein soll, meine Variante 1 noch mal mit 22° Walmdach und verbreitertem Carport/Abstellraum-Bereich.

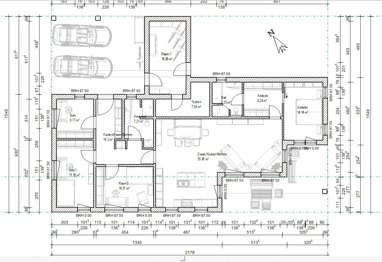
Grundriss eines Einfamilienhauses mit Doppelgarage, Wohnzimmer, Essen, Küche, Schlafzimmer, Büro.

Weißes Einfamilienhaus mit rotem Dach und Terrasse mit Holztisch und Stühlen auf grünem Rasen.


Grundriss eines Gebäudes auf einem Parzellenplan mit Parkplätzen und Nordpfeil.


Einfamilienhaus mit rotem Walmdach, Carport und zwei roten Autos auf grünem Rasen
 
kaho674

kaho674

Siehe Zeichnung in Beitrag #154: diejenige mit dem Verlauf zwischen Hauswirtschaftsraum-Flur-Abstell-Schlafen einerseits und Kind-Kind-Kochess-Wohn auf der anderen Seite. Die zöge ich bis unter die Firstpfette hoch.
Ja, und das führt zu schmalen Räumen, die man sehr schlecht nutzen kann.


Grundriss: linke unausgebaute Fläche, rote Linie trennt schmale Räume, rechter 2m, Oberlichter.


Das Rote ist die "Firstwand", richtig? Du teilst den gut nutzbaren Raum unter dem First in 2 Teile ob nun gleich groß oder nicht - egal. Das blaue ist die geschätzte 2m Linie bei einem 35° Dach - was ja schon hoch ist. Da bleibt in der Mitte nichts bis wenig. Was genau versteh ich hier falsch?
 
kaho674

kaho674

Die Wohnräume (Essen / Wohnen) gefallen mir so auch am besten.
Nachteile:
-Hauswirtschaftsraum zwischen Schlafzimmer und Kinderzimmer. Was haltet ihr davon Waschmaschine und Trockner in dem Fall in den AR zu legen? Das müsste die ganze Sache entschärfen, jedoch hat man dann den "Lärm" am Wohnzimmer
-Bad am Schlafzimmer
-Diele wenig kaum Platz für Garderobe (nur unterhalb der Treppe)
-Diele hat zu wenig Licht durch die schmale Tür (Vielleicht kann man hier mit einer Glastür was machen)
-relativ kleines Wohnzimmer aber damit können wir leben
Waschmaschine verlegen ist ne Option. Ich würde mir eher ganz leise Geräte kaufen. Hab ich mit meinen Kühlschrank auch gemacht

Beim Bad am Schlafzimmer habe ich die lautesten Rohre (WC, Dusche) schon an die andere Wand befördert. Die Wand zum Schlafzimmer würde ich vermutlich auch etwas dicker machen. Die Frage ist, wie sich die Badgänge so verteilen mit Kindern. Vermutlich seid Ihr die letzten im Bad?

Die Diele ist zu eng - hier braucht das Haus noch mehr Länge (was schon bald absurd wird).

Licht ist kein Problem - Neben die Tür kann man ein Glaselement setzen. Das kann ruhig vorm Treppenantritt sein. Tür selbst mit großem Glasteil.

Lass die Wand weg zwischen Wohnzimmer und Essbereich. Groß genug?

Aber vielleicht fängt man noch mal von vorne an. Hab da noch nen Gedanken....
 
kaho674

kaho674

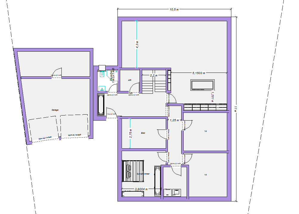
Hier mal eine Version 17m x 10,5 + Vorhaus. Ich find das gar nicht so schlecht, vor allem, weil die Familie viel Platz im Wohnraum hätte. Außerdem wird man nicht vom Autoüberfahren. Der Waschmaschinen-Raum könnte ja klein sein, wenn die Technik nach oben kann. Allerdings gibt's ein Problem. Kein Licht in der Diele. Hier müsste man evtl. mit Velux-Spots arbeiten. Oder gleich die Decke im Flur öffnen, wie ich es schon mal vorgeschlafen hatte und dann Doppelflügelfenster. Das wär ziemlich cool.


Grundriss eines Hauses: Garage links, Treppe, Flur, Bad, Zimmer, und großer Raum rechts oben.





Dachfenster mit Montagerahmen und Lüftungsrohr
 
Zuletzt aktualisiert 20.11.2025
Im Forum Grundrissplanung / Grundstücksplanung gibt es 2535 Themen mit insgesamt 87978 Beiträgen


Ähnliche Themen zu Bungalow 148m² Grundstücksplanung / Grundrissplanung
Nr.ErgebnisBeiträge
1Bungalow mit Walmdach - Dachausbau sinnvoll? 21
2Ankleide/Schlafzimmer Problem - Grundrissdiskussion 25
3Gestaltung Schlafzimmer 35
4Grundriss Elternbad und Durchgang zu Schlafzimmer 13
5Größe vom Schlafzimmer und Kinderzimmer - Seite 238
6Extra-Bad vom Schlafzimmer oder doch Abstellraum? - Seite 329
7Schaltung - Schlafzimmer - Deckenleuchte / Nachttischlampe 12
8Keine Fußbodenheizung im Schlafzimmer? - Seite 322
9Grundriss Schlafzimmer, Ankleide und Bad en Suite - Seite 536
10Zehnder Kontrollierte-Wohnraumlüftung ppm Messung Schlafzimmer 22
11Einrichtung Ankleidezimmer Tür zum Badezimmer - Seite 334
12Verbindung Schlafzimmer / Ankleidezimmer / Bad - Seite 316
13Grundriss Neubau Bungalow 100 qm - Seite 446
14Schätzung Baukosten Einfamilienhaus mit Doppelgarage und Walmdach 51
15Frontansicht Stadtvilla Walmdach oder Zeltdach? 16
16Walmdach - ideale Neigung? - Seite 220
17Grundrissplanung 2 Geschosse und Walmdach - Seite 959
18Neubau 220 qm Stadtvilla Walmdach, 2 Vollgeschosse 53
19Entwurf Einfamilienhaus 250 m^2, 2 Vollgeschosse mit Walmdach 70
20Eine weitere Walmdach Stadtvilla (240qm) - Seite 8164

Oben