ᐅ Bungalow 148m² Grundstücksplanung / Grundrissplanung
Erstellt am: 13.08.19 00:11
C
Chrisi190613.08.19 00:11Hallo zusammen,
das ist mein 3. Beitrag den ich hier im Forum erstelle. Daher erst mal vielen Dank für die bisherigen Tipps, die ich von euch erhalten habe. Ich denke, ich habe schon jetzt viel dazugelernt.
Die bisher erstellen Beiträge habe ich unten verlinkt. Damit es zu keinen Missverständnissen kommt werde ich alle notwendigen Informationen noch mal auflisten. Es macht daher nur bedingt Sinn die alten Beiträge zu lesen. Der Vollständigkeit halber habe ich sie hier aufgelistet.
https://www.hausbau-forum.de/threads/grundrissplanung-Bungalow-170qm.31445/
https://www.hausbau-forum.de/threads/grobe-Grundstücksplanung-819m.31558/
Zur Vorauswahl standen 3 grobe Grundrisse. Einer davon war von Yvonne, der zweite von kbt09 und der dritte vom Planer/uns. Vielen Dank an euch zwei für die guten Ideen! Nach längere Überlegungszeit und Rücksprache mit dem Bauträger möchten wir den dritten Grundriss weiterverfolgen.
Jetzt zum eigentlich Thema.
Ende April 2019 haben wir ein Grundstück (Grundstücken. Nr. 10) reserviert und begonnen mit der grundrissplanung. Das Grundstück ist Bauträger gebunden und leider hat sich der Planer nicht als der kreativste (und mich eingeschlossen) herausgestellt. Vorletzte Woche hatten wir wieder einen Termin mit dem Bauträger und haben über die oben genannten 3 Varianten gesprochen. Wir haben uns dann für eine Variante entschieden und möchten diese weiterverfolgen. Dazu haben wir jetzt einen Entwurf bekommen, der aber mit Sicherheit noch verbesserungswürdig ist.
Aus diesem Grund möchte ich den Grundriss hier erneut zur Diskussion zu stellen und hoffe auf Feedback / Ideen / Anregungen / Tipps. Vielleicht seht ihr auch (wieder) direkt Dinge, die "gar nicht gehen" bzw. nicht alltagstauglich sind. Ich selbst habe auch schon ein paar Sachen gesehen die ich ändern würde, da wir wahrscheinlich eh noch einiges verändern habe ich meine eigenen Verbesserungsvorschläge erst mal nicht weiter in den Grundriss einbringen lassen. Auch haben der Planer und ich noch nicht über Türen und Fenster gesprochen.
Anbei erneut der ausgefüllte Fragebogen.
Bebauungsplan/Einschränkungen
Größe des Grundstücks: 819m²
Hang NEIN
Grundflächenzahl 0,4 (zulässige Überschreitung 25 von 100)
Geschossflächenzahl 0,6
Baufenster, Baulinie und -grenze: Auf der Nord-Ost Seite ca 31m tief, West Seite ca35m tief, Grundstücksbreite vorn an der Straße 18,7m und die hintere Linie (Bebauungsgrenze) ca 27m. Das große Problem am Grundstück ist die schmale Grundstücksbreite vorn. Je nachdem wie das Haus ausgerichtet wird haben wir nach der 3m Baugrenze auf der Seite die zur Straße zeigt ca19,5m bis ca20,4m zur Verfügung. Das heißt, wenn das Haus parallel zur Straße ausgerichtet ist sind es 19,5m und parallel zum Nachbarn in Nord-Östlicher Richtung 20,1m.
Randbebauung: 3m
Anzahl Stellplatz: keine Vorgabe
Geschossigkeit: maximal 2 Vollgeschosse
Dachform: Satteldach, Walmdach
weitere Vorgaben: Garage muss 5m Abstand zur Grundstücksgrenze haben.
Anforderungen der Bauherren
Stilrichtung, Dachform, Gebäudetyp: Bungalow mit Walmdach
Keller, Geschosse: kein Keller da Grundwasserstand sehr hoch
Anzahl der Personen, Alter: 4 Personen im Alter von 36 Jahren (Frau), 37 Jahren (Mann), 2 Jahren (Kind), 7 Monaten (Kind)
Raumbedarf im EG, OG:
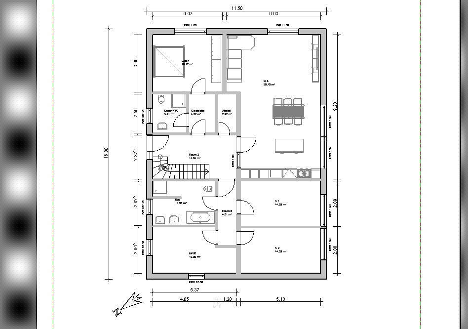
EG: Wohnen/Essen/Kochen, Hauswirtschaftsraum, Gäste-WC mit Dusche, Diele (Flur) mit Garderobe und Treppe ins DG, Kinderzimmer, Schlafzimmer, BAD und Abstellraum.
DG: Büro, Spielzimmer für Kinder und zusätzliche Abstellfläche.
Büro: Familiennutzung oder Homeoffice? Homeoffice
Schlafgäste pro Jahr: 1-2x
offene oder geschlossene Architektur: ein mix aus beidem
konservativ oder moderne Bauweise: ein mix aus beidem
offene Küche, Kochinsel: offene Küche mit Kochinsel wäre schön ist aber kein muss, geschlossene Küche hat auch seine Vorteile
Anzahl Essplätze: 4, mit der Option auf 6-8 wäre schön ist aber kein muss
Kamin: nein
Musik/Stereowand: Soundanlage im Wohnzimmer.
Balkon, Dachterrasse: nein
Garage, Carport: Es muss Platz für 2 Autos vorhanden sein. Aktuell könnte ich mir eine Garage (3x6) und Carport (3,6) vorstellen.
Nutzgarten, Treibhaus: nein
weitere Wünsche/Besonderheiten/Tagesablauf, gern auch Begründungen, warum dieses oder das nicht sein soll
Hausentwurf
Von wem stammt die Planung:
-Planer des Bauträgers / Do-it-Yourself
Was gefällt besonders? Warum?
-Im Bereich der Garderobe und hinter der Treppe sollte genug Platz vorhanden sein um Jacken, Schuhe, ect. zu verstauen.
-Kinderzimmer haben eine angenehme Größe und sind praktisch gleich groß.
-Wohnzimmer/Küche nah am Eingang und auch Garage
-Abstellraum hat eine gute (zentrale) Lage
-
Was gefällt nicht? Warum?
-Garage / Carport sehr weit hinten (damit könnte ich aber vermutlich leben)
-Hauswirtschaftsraum vergleichsweise groß und lang
-Küche aus meiner Sicht etwas zu groß
-Wohnzimmer hat nur die gewünschte Minimalgröße und könnte 5m² mehr vertragen
-Hauptbad liegt zwischen beiden Kinderzimmer und die Lärmbelästigung beim Duschen und Benutzung der Toilette sollte vermutlich sehr hoch sein
-Hauptbad könnte minimal größer sein
-zwischen Garage und Grundstücksgrenze entsteht eine tote Fläche wo vermutlich später das Unkraut wächst. Hat da jemand eine Idee wie man dem entgegen wirkt?
-die Garage ist aktuell mit 9m Länge geplant, davon soll 6m für die Garage sein und 3m für einen Geräteraum. Die aktuelle Position direkt hinter der Garage finde ich nicht optimal
Preisschätzung lt Architekt/Planer: bisher keine neue Preisschätzung erhalten
Persönliches Preislimit fürs Haus, inkl Ausstattung: 400.000
favorisierte Heiztechnik: Wärmepumpe
Warum ist der Entwurf so geworden, wie er jetzt ist? ZB
Ideen vom Planer und Do-it-Yourself Ideen von mir
Was ist die wichtigste/grundlegende Frage zum Grundriss in 130 Zeichen zusammengefasst?
Das Hauptbad liegt zwischen den Kinderzimmern. Wie können wir die Lärmbelästigung auf ein Minimum reduzieren?
Stellt euch vor ich fahre mit einem Skoda Superb in die Garage. Da die Garage an der Grundstücksgrenze sitzt und die Einfahrt zwischen Haus und Grundstücksgrenze schmaler wird muss ich leicht schräg reinfahren. Bereitet das im alltäglichen Leben Probleme? Siehe auch Bilder.
Nehmen wir an statt Garage und Carport bauen wir eine Doppelgarage direkt am Bungalow. Muss man da beim Hausbau irgendwas berücksichtigen?





das ist mein 3. Beitrag den ich hier im Forum erstelle. Daher erst mal vielen Dank für die bisherigen Tipps, die ich von euch erhalten habe. Ich denke, ich habe schon jetzt viel dazugelernt.
Die bisher erstellen Beiträge habe ich unten verlinkt. Damit es zu keinen Missverständnissen kommt werde ich alle notwendigen Informationen noch mal auflisten. Es macht daher nur bedingt Sinn die alten Beiträge zu lesen. Der Vollständigkeit halber habe ich sie hier aufgelistet.
https://www.hausbau-forum.de/threads/grundrissplanung-Bungalow-170qm.31445/
https://www.hausbau-forum.de/threads/grobe-Grundstücksplanung-819m.31558/
Zur Vorauswahl standen 3 grobe Grundrisse. Einer davon war von Yvonne, der zweite von kbt09 und der dritte vom Planer/uns. Vielen Dank an euch zwei für die guten Ideen! Nach längere Überlegungszeit und Rücksprache mit dem Bauträger möchten wir den dritten Grundriss weiterverfolgen.
ypg schrieb:
Wenn ich sage, dass das Grundstück nicht einfach ist, dann untertreibe ich.
Vielleicht ist das ein Ansatz?
kbt09 schrieb:
Ich habe mal den Ansatz aus den Grundrisseinpassungen weiterverfolgt.
Jetzt zum eigentlich Thema.
Ende April 2019 haben wir ein Grundstück (Grundstücken. Nr. 10) reserviert und begonnen mit der grundrissplanung. Das Grundstück ist Bauträger gebunden und leider hat sich der Planer nicht als der kreativste (und mich eingeschlossen) herausgestellt. Vorletzte Woche hatten wir wieder einen Termin mit dem Bauträger und haben über die oben genannten 3 Varianten gesprochen. Wir haben uns dann für eine Variante entschieden und möchten diese weiterverfolgen. Dazu haben wir jetzt einen Entwurf bekommen, der aber mit Sicherheit noch verbesserungswürdig ist.
Aus diesem Grund möchte ich den Grundriss hier erneut zur Diskussion zu stellen und hoffe auf Feedback / Ideen / Anregungen / Tipps. Vielleicht seht ihr auch (wieder) direkt Dinge, die "gar nicht gehen" bzw. nicht alltagstauglich sind. Ich selbst habe auch schon ein paar Sachen gesehen die ich ändern würde, da wir wahrscheinlich eh noch einiges verändern habe ich meine eigenen Verbesserungsvorschläge erst mal nicht weiter in den Grundriss einbringen lassen. Auch haben der Planer und ich noch nicht über Türen und Fenster gesprochen.
Anbei erneut der ausgefüllte Fragebogen.
Bebauungsplan/Einschränkungen
Größe des Grundstücks: 819m²
Hang NEIN
Grundflächenzahl 0,4 (zulässige Überschreitung 25 von 100)
Geschossflächenzahl 0,6
Baufenster, Baulinie und -grenze: Auf der Nord-Ost Seite ca 31m tief, West Seite ca35m tief, Grundstücksbreite vorn an der Straße 18,7m und die hintere Linie (Bebauungsgrenze) ca 27m. Das große Problem am Grundstück ist die schmale Grundstücksbreite vorn. Je nachdem wie das Haus ausgerichtet wird haben wir nach der 3m Baugrenze auf der Seite die zur Straße zeigt ca19,5m bis ca20,4m zur Verfügung. Das heißt, wenn das Haus parallel zur Straße ausgerichtet ist sind es 19,5m und parallel zum Nachbarn in Nord-Östlicher Richtung 20,1m.
Randbebauung: 3m
Anzahl Stellplatz: keine Vorgabe
Geschossigkeit: maximal 2 Vollgeschosse
Dachform: Satteldach, Walmdach
weitere Vorgaben: Garage muss 5m Abstand zur Grundstücksgrenze haben.
Anforderungen der Bauherren
Stilrichtung, Dachform, Gebäudetyp: Bungalow mit Walmdach
Keller, Geschosse: kein Keller da Grundwasserstand sehr hoch
Anzahl der Personen, Alter: 4 Personen im Alter von 36 Jahren (Frau), 37 Jahren (Mann), 2 Jahren (Kind), 7 Monaten (Kind)
Raumbedarf im EG, OG:
EG: Wohnen/Essen/Kochen, Hauswirtschaftsraum, Gäste-WC mit Dusche, Diele (Flur) mit Garderobe und Treppe ins DG, Kinderzimmer, Schlafzimmer, BAD und Abstellraum.
DG: Büro, Spielzimmer für Kinder und zusätzliche Abstellfläche.
Büro: Familiennutzung oder Homeoffice? Homeoffice
Schlafgäste pro Jahr: 1-2x
offene oder geschlossene Architektur: ein mix aus beidem
konservativ oder moderne Bauweise: ein mix aus beidem
offene Küche, Kochinsel: offene Küche mit Kochinsel wäre schön ist aber kein muss, geschlossene Küche hat auch seine Vorteile
Anzahl Essplätze: 4, mit der Option auf 6-8 wäre schön ist aber kein muss
Kamin: nein
Musik/Stereowand: Soundanlage im Wohnzimmer.
Balkon, Dachterrasse: nein
Garage, Carport: Es muss Platz für 2 Autos vorhanden sein. Aktuell könnte ich mir eine Garage (3x6) und Carport (3,6) vorstellen.
Nutzgarten, Treibhaus: nein
weitere Wünsche/Besonderheiten/Tagesablauf, gern auch Begründungen, warum dieses oder das nicht sein soll
Hausentwurf
Von wem stammt die Planung:
-Planer des Bauträgers / Do-it-Yourself
Was gefällt besonders? Warum?
-Im Bereich der Garderobe und hinter der Treppe sollte genug Platz vorhanden sein um Jacken, Schuhe, ect. zu verstauen.
-Kinderzimmer haben eine angenehme Größe und sind praktisch gleich groß.
-Wohnzimmer/Küche nah am Eingang und auch Garage
-Abstellraum hat eine gute (zentrale) Lage
-
Was gefällt nicht? Warum?
-Garage / Carport sehr weit hinten (damit könnte ich aber vermutlich leben)
-Hauswirtschaftsraum vergleichsweise groß und lang
-Küche aus meiner Sicht etwas zu groß
-Wohnzimmer hat nur die gewünschte Minimalgröße und könnte 5m² mehr vertragen
-Hauptbad liegt zwischen beiden Kinderzimmer und die Lärmbelästigung beim Duschen und Benutzung der Toilette sollte vermutlich sehr hoch sein
-Hauptbad könnte minimal größer sein
-zwischen Garage und Grundstücksgrenze entsteht eine tote Fläche wo vermutlich später das Unkraut wächst. Hat da jemand eine Idee wie man dem entgegen wirkt?
-die Garage ist aktuell mit 9m Länge geplant, davon soll 6m für die Garage sein und 3m für einen Geräteraum. Die aktuelle Position direkt hinter der Garage finde ich nicht optimal
Preisschätzung lt Architekt/Planer: bisher keine neue Preisschätzung erhalten
Persönliches Preislimit fürs Haus, inkl Ausstattung: 400.000
favorisierte Heiztechnik: Wärmepumpe
Warum ist der Entwurf so geworden, wie er jetzt ist? ZB
Ideen vom Planer und Do-it-Yourself Ideen von mir
Was ist die wichtigste/grundlegende Frage zum Grundriss in 130 Zeichen zusammengefasst?
Das Hauptbad liegt zwischen den Kinderzimmern. Wie können wir die Lärmbelästigung auf ein Minimum reduzieren?
Stellt euch vor ich fahre mit einem Skoda Superb in die Garage. Da die Garage an der Grundstücksgrenze sitzt und die Einfahrt zwischen Haus und Grundstücksgrenze schmaler wird muss ich leicht schräg reinfahren. Bereitet das im alltäglichen Leben Probleme? Siehe auch Bilder.
Nehmen wir an statt Garage und Carport bauen wir eine Doppelgarage direkt am Bungalow. Muss man da beim Hausbau irgendwas berücksichtigen?
Mein Lieblingshaus ist es noch immer nicht geworden aber es "wird" allmählich.
https://www.instagram.com/11antgmxde/
https://www.linkedin.com/company/bauen-jetzt/
Chrisi1906 schrieb:Eine Bauwichgarage, ich vermute mal Beton in ca. 280 cm Innenbreite, wird mit dem Superb in schräg schon gedämpft vergnüglich. Entweder Deine Frage war nur hypothetisch und der Superb mag in Wirklichkeit wohl doch nur ein Octavia sein, dann ist es weniger "dramatisch"; oder der Superb ist ernst gemeint, dann nimm´ die Garage etwas größer (oder dreh´ sie grenzparallel, dann wird eben der Carport nach hinten etwas breiter). Letzteres vermeidet dann das Schmuddeldreieck zwischen Garage und Grenze, und schafft im Carport ein bißchen Platz für Fahrräder, eine Regentonne oder dergleichen.
Stellt euch vor ich fahre mit einem Skoda Superb in die Garage. Da die Garage an der Grundstücksgrenze sitzt und die Einfahrt zwischen Haus und Grundstücksgrenze schmaler wird muss ich leicht schräg reinfahren. Bereitet das im alltäglichen Leben Probleme?
https://www.instagram.com/11antgmxde/
https://www.linkedin.com/company/bauen-jetzt/
W
WilhelmRo13.08.19 07:41Mir fällt nur der "verschwendete" Platz hinter der Kochinsel auf. Was macht man da?
Also, grundsätzlich machbar. Besser als alles andere.
Mich würde stören, dass jeder Schlafraum irgendwie Kontakt zu ner Wasserleitung hat. Aber wer weiß, vlt. ist das zu vorsichtig von mir gedacht.
Bevor ich anfange und zB. zu einer Doppeltür zum Allraum rate und die Kinderzimmer-Tür nach planunten zu verschieben, würde ich dennoch versuchen, mal die Raumaufteilung etwas zu würfeln, um einen noch besseren Ablauf zu bekommen.
- Eventuell also Schlafzimmer nach planoben, Allraum als L-Form, Kinderzimmer nebeneinander usw. hab aber leider keine Zeit, das weiter zu denken.
- Eventuell nach Ziehen der Kinderzimmer-Tür oder Raumwürfeln den Allraum etwas weiter zum Flur öffnen. Das muss man aber individuell betrachten.
Mich würde stören, dass jeder Schlafraum irgendwie Kontakt zu ner Wasserleitung hat. Aber wer weiß, vlt. ist das zu vorsichtig von mir gedacht.
Bevor ich anfange und zB. zu einer Doppeltür zum Allraum rate und die Kinderzimmer-Tür nach planunten zu verschieben, würde ich dennoch versuchen, mal die Raumaufteilung etwas zu würfeln, um einen noch besseren Ablauf zu bekommen.
- Eventuell also Schlafzimmer nach planoben, Allraum als L-Form, Kinderzimmer nebeneinander usw. hab aber leider keine Zeit, das weiter zu denken.
- Eventuell nach Ziehen der Kinderzimmer-Tür oder Raumwürfeln den Allraum etwas weiter zum Flur öffnen. Das muss man aber individuell betrachten.
J
j.bautsch13.08.19 10:01stimme ypg zu, die Raumaufteilung könnte besser sein und fände ein L beim allraum auch besser.
zu @WilhelmRo die Küche funktioniert so eh nicht da die abstände der Insel zur Zeile zu klein sind und die Insel auch nicht tief genug ist, so ergibt sich der "leere" Raum dann eh nicht mehr sollte also nach einer vernünftigen küchenplanung (mit der ich wirklich frühzeitig anfangen würde) nicht mehr so leer sein
zu @WilhelmRo die Küche funktioniert so eh nicht da die abstände der Insel zur Zeile zu klein sind und die Insel auch nicht tief genug ist, so ergibt sich der "leere" Raum dann eh nicht mehr sollte also nach einer vernünftigen küchenplanung (mit der ich wirklich frühzeitig anfangen würde) nicht mehr so leer sein
Ähnliche Themen