Bungalow 148m² Grundstücksplanung / Grundrissplanung

4,10 Stern(e) 20 Votes
Zuletzt aktualisiert 22.11.2025
Sie befinden sich auf der Seite 40 der Diskussion zum Thema: Bungalow 148m² Grundstücksplanung / Grundrissplanung
>> Zum 1. Beitrag <<

E

Escroda

Gilt das auch für Carports
Nein - muss nur 3m Abstand halten.
Ich find's wohl lustig, wie beharrlich hier an der falschen Grundstücksgeometrie festgehalten wird. IMHO macht es für die Ausrichtung auf dem Grundstück durchaus einen Unterschied, ob die Straßen- und Baugrenze eine Gerade oder ein Kreisbogen ist.
 
M

Matthew03

Das war innerhalb weniger Stunden:
Ich denke, wir bleiben bei Walmdach mit 35° Dachneigung.
und

Ich weiß, heute kam die Frage nach der Dachform.
...inklusive Bildern von "schönem Satteldach".


Man sehe es mir also nach, dass:

Ich denke, dass Satteldach bei Euren Wünschen gesetzt ist.
ich das noch nicht so recht glauben mag da das zitierte sogar nur ein kleiner Teil von mehreren Dach"sprüngen" in diesem Thread war
 
C

Chrisi1906

Nein - muss nur 3m Abstand halten.
Ich find's wohl lustig, wie beharrlich hier an der falschen Grundstücksgeometrie festgehalten wird. IMHO macht es für die Ausrichtung auf dem Grundstück durchaus einen Unterschied, ob die Straßen- und Baugrenze eine Gerade oder ein Kreisbogen ist.
Der BU versicherte mir das die Grenzpunkte stimmen, leider ist er momentan nicht in der Lage mir Zeichnungen mit einem Kreisbogen anzubieten. Statt dich hier lustig zu machen, erkläre doch mal warum du das Haus wegen dem Kreisbogen anders setzen würdest?

@all
Ich denke, Matthew03 hat nicht ganz unrecht wenn er sagt das ich eine Pause brauche. Ihr habt alle viele gute Ideen und Grundrisse geliefert. Hut ab vor der Leistung! Ich habe alles ausgedruckt und werde die nochmals mit meiner Frau durchgehen. Da man mir Beratungsresistenz vorwirft und das ich keine klaren Aussagen mache, möchte ich euch die Chance geben zu sagen was ich klarer und deutlicher formulieren muss.

Ich Fang mal an...
-Dach und Dachgeschoss

@kaho674 Kannst du mir einen Grundriss von dem letzten Haus schicken mit mehr Meter und m² Angaben? Vielen Dank!
 
11ant

11ant

Statt dich hier lustig zu machen, erkläre doch mal warum du das Haus wegen dem Kreisbogen anders setzen würdest?
Er macht sich nicht lustig, sondern merkt lediglich seine Erheiterung an. Und er würde das Haus nicht anders setzen, sondern aus einem genauer dargestellten Verlauf der Kurve lediglich besser erkennen können, daß möglicherweise eine andere Position besser wäre (oder eine scheinbar passende eben nur scheinbar paßt). Selbst ein Vierundzwanzigeck ist immer noch kein Kreis, da kann durchaus sein, daß ein "gerade" scheinbar passender Punkt immerhin im Dezimeterbereich "im Strafraum" liegt.

Da man mir Beratungsresistenz vorwirft und das ich keine klaren Aussagen mache,
Auch klare Aussagen - aber als Wechseldusche von Hühs und Hotts - können verwirren. Ich habe mir den Vergleich mit dem Beitrag von StanSch erlaubt, weil es dort ebenfalls ein Hin undher um Fixpunkte gab, die abwechselnd mal heilig waren und ein andermal doch wieder ganz anders gelöst werden durften (und zurück).
 
kaho674

kaho674

Sehe die "Bogenfrage" der Baugrenze unkritisch. Ob der ganze Baukörper nun etwas nach oben oder unten rutscht ist doch für eine erste Idee nicht entscheidend.

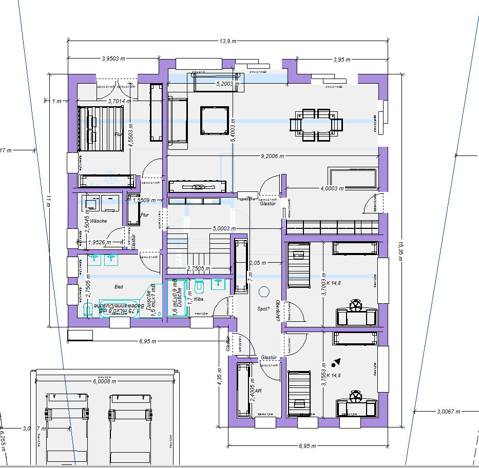
@kaho674 Kannst du mir einen Grundriss von dem letzten Haus schicken mit mehr Meter und m² Angaben? Vielen Dank!
Klar, ein paar Maße (der zeigt manchmal 4 Stellen hinterm Komma an - bitte ignorieren).


Grundriss eines Hauses mit mehreren Zimmern, Bad, Küche, Flur und Garage mit Maßen



m² musst Du selbst ausrechnen - kann mein Programm nicht bzw. rechnet das falsch aus.
Außenwände sind mit 40cm, innen mit 20cm pauschal geplant.
Das OG lass ich weg, da das ohne die Schrägen zu kennen, wirklich keinen Sinn hat über Maße zu sprechen. Einen Entwurf mit ca. 31° Satteldach hast Du ja.
Treppe ist kein Podest (90 breit, 1/2 gewendelt) - da dürfte aber genug Platz sein auch für 1m Breite.
 
Zuletzt aktualisiert 22.11.2025
Im Forum Grundrissplanung / Grundstücksplanung gibt es 2535 Themen mit insgesamt 87992 Beiträgen


Ähnliche Themen zu Bungalow 148m² Grundstücksplanung / Grundrissplanung
Nr.ErgebnisBeiträge
1Einfamilienhaus Entwurf - ca. 160-170qm / Innovatives Satteldach 71
2Einfamilienhaus - Meinungen zu unserem Entwurf - Seite 11159
3Einfamilienhaus ca. 155qm + ELW40qm. Erster Entwurf. Verbesserungsvorschläge? 52
4Neubau Einfamilienhaus ca. 190m² mit Doppelgarage ohne Keller - Entwurf Nr. 3 42
5Optimierung Grundriss Einfamilienhaus mit 180qm Satteldach ohne Keller 17
6Entwurf für Anbau/Umbau von Einfamilienhaus zu ZFS 17
7Satteldach und Dachschräge planen 17
8Pultdach oder Satteldach? Wir müssen uns entscheiden - Seite 216
9Stadtvilla oder klassisches Satteldach-Haus? Vorteile? Kosten? - Seite 251
10Grundriss Einfamilienhaus Satteldach - Bitte um eure Tipps 10
11Grundriss Einfamilienhaus mit Satteldach 32
12Stattvilla mit "Satteldach" oder Flachdach 37
13Dachplanung - Nur Satteldach oder Krüppelwalmdach erlaubt - Seite 215
14Kosteneinsparung durch zurückgesetztes Satteldach 22
15Satteldach als Nutzfläche 12
16Dachüberstand beim Satteldach als Fassadenschutz? 26
17Haus 140qm Wohnfläche, ohne Keller, Massiv, Satteldach - Kosten? 12
18Klassisches Einfamilienhaus Satteldach ~130qm 18
19Staffelgeschoss, Dachgeschoss, Satteldach, Flachdach 11
20Bungalow mit Satteldach, Randbebauung, 8×17 Meter - Seite 11143

Oben