Bungalow 148m² Grundstücksplanung / Grundrissplanung

4,10 Stern(e) 20 Votes
Zuletzt aktualisiert 18.11.2025
Sie befinden sich auf der Seite 44 der Diskussion zum Thema: Bungalow 148m² Grundstücksplanung / Grundrissplanung
>> Zum 1. Beitrag <<

C

Chrisi1906

Wir haben ja auch einen Bungalow gebaut. Erfahrungen daraus mit 2 kleinen Kinder:
Technikraum weg von den Kinderzimmern. Das Anspringen der Heizung oder das Rödeln der Waschmaschine reißt die Kleinen aus dem Schlaf und euch auch.
Die Kinder können bei uns von ihren Zimmern ins Wohnzimmer schauen. Das war nicht bewusst gemacht, aber hat dazu geführt, dass beide sehr früh in ihren Zimmern spielen. Ist definitiv kein Muss, aber recht praktisch in den ersten Jahren.
Das Bad neben den Kinderzimmern stört scheinbar gar nicht. Weder das Baby, noch der 5Jährige lassen sich von der Klospülung stören. Lautes Trällern in der Dusche sollte man trotzdem vermeiden.
Lasst die Treppe nach oben für den Anfang weg. Ihr seid jung und könnt die klassische Luke nehmen. Wenn ihr dann wirklich im Alter eine Treppe nach oben gebrauchen könnt, rupft ihr einfach die Wände eines Kinderzimmers weg (ist bei einem Bungalow ja easy) und setzt da eine Treppe hin. Spart euch jetzt Geld und Platz. bei einem Treppenaufgang in den Dachboden benötigt ihr entweder eine speziell dichtende Tür oder ihr müsst oben zwingend ausbauen. Unsere Nachbarn haben das nicht gewusst und nach einem Jahr gab es schon oben Schimmel. Aber gerade der Dachboden oben als Puffer beschert im Sommer angenehme Temperaturen im Haus. Die Nachbarschaft saß im Hochsommer gerne bei uns, da die in ihren Hütten brutzelten und wir angenehme 24 Grad hatten.
Dann achtet auf eine gute Verschattung, das ist Gold wert und ihr könnt etwas größere Fenster nehmen, damit genug Licht rein kommt.
Guckt mal, ob ihr zum Wohnzimmer hin eine Doppeltür mit Verglasung hin bekommt. Gerade beim Bungalow bringt das angenehmes Licht in den Flur.
Lasst die Tür zum Wohntrakt weg. Das macht den Flur nur unnötig dunkel und wird eh immer auf sein. Hatten wir ursprünglich in unseren Plänen auch und ist irgendwie Murks.
Mein Vorschlag: lasst die Treppe weg, dreht quasi das Bad und erzeugt so einen breiteren Flur im Wohntrakt. Das erzeugt ein offeneres Wohnkonzept und ist vom Feeling her so viel angenehmer.
Das Waschmaschine und Trockner stören wenn diese am Schlafzimmer liegen kann ich bestätigen. Wir haben 2 Türen zwischen Schlafzimmer und Abstellraum in der aktuellen Wohnung und beide Geräte stehen im Abstellraum. Auch deine Aussagen im Bad kann ich komplett bestätigen. Daher würde ich die Dusche nicht direkt auf der Seite des Badezimmers belassen.

Der Plan war oben einen Dachausbau zu machen. Im Alter reicht uns locker eine 4-Raumwohnung / Haus und da brauchen wir das Dach nicht mehr. Es geht eigentlich um jetzt wenn die Kinder klein sind. Wir brauchen 2 Kinderzimmer und noch ein Büro, letztes sollte dann ins Dachgeschoss. Treppe weg geht daher nicht.

Danke auch für die restlichen Tipps. Tür zum Wohntrakt weglassen denken wir drüber nach.

Echt? Ne der ist doch Mist, da musst Du immer durch die Küche. Da tät ich eher das Original nehmen. Weiß gar nicht mehr, was an dem besser sein soll, als an dem hier:

Maße sind auch längst verramscht, sorry.
Warum denn der jetzt aus dem ersten Beitrag? Es gibt auch andere Grundrisse wo man durch die Küche muss wenn man ins Wohnzimmer will. Oder ist dir die Entfernung einfach zu groß?

Vorteile sind im Vergleich zu dem im Eingangspost. L-Form für Wohn, Küche und Essbereich. Klar abgegrenzter Bereich für Privat- und Wohnräume. Es gibt aber auch Nachteile.

Ich dachte das ist schon kein schlechter Entwurf. Hier unten der Betrag von dir... Nur Hauswirtschaftsraum und Bad sind getauscht...

Ist der jetzt nur Mist weil er nicht perfekt ist oder warum?

Ich würde mit den Wohnräumen ja gern mal in diese Richtung gehen:

Anhang anzeigen 37602

Aber da bekomm ich keine Treppe mehr rein und die Zimmer liegen wieder an den "lauten" Räumen. Was meint Ihr?
 
kaho674

kaho674

Grundsätzlich ist der Eingang durch die Küche eher eine Notlösung. Ich fand den aus #239 besser aber ich vermute, Du willst Deine Garage, richtig?

Lass doch erst mal den Planer sich allein quälen. Vielleicht hat der noch Ideen.
 
C

Chrisi1906

Grundsätzlich ist der Eingang durch die Küche eher eine Notlösung. Ich fand den aus #239 besser aber ich vermute, Du willst Deine Garage, richtig?

Lass doch erst mal den Planer sich allein quälen. Vielleicht hat der noch Ideen.
Eine Garage wäre schön, keine Frage. Aber der Preis von ca 286.000 schreckt mich etwas ab. Ich hab mir ganz am Anfang eine Liste mit meinen Zielen beim Hausbau gemacht und da steht ganz oben guter Preis.

Außerdem wer sagt das es keine Garage geben kann?

Du hast recht, ich lass den Planer jetzt mal machen und danach schauen wir weiter.


Grundriss eines Einfamilienhauses mit Garage für zwei Autos, Wohnzimmer, Küche und Schlafzimmern.
 
E

Evolith

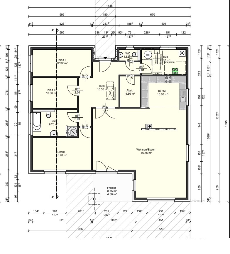
Sonst schau dir doch mal wirklich unseren Grundriss an. Der könnte für dich sehr gut passen. Wenn du die Küche quasi zu machst, dann hast ein Büro und die freistehende Mittelwand kannst etwas verschieben, dass die Küche da gut hin passt.

Grundriss eines Hauses: Wohnen/Essen, Küche, Bad, WC, Flur, Eltern- und Kinderzimmer, Freisitz.
 
Zuletzt aktualisiert 18.11.2025
Im Forum Grundrissplanung / Grundstücksplanung gibt es 2536 Themen mit insgesamt 87965 Beiträgen


Ähnliche Themen zu Bungalow 148m² Grundstücksplanung / Grundrissplanung
Nr.ErgebnisBeiträge
1Extra-Bad vom Schlafzimmer oder doch Abstellraum? 29
2Grundriss, längliches Einfamilienhaus, integrierte Garage kein Keller 16
3Grundriss Bungalow 150qm geschlossene Küche, überdachte Terrasse 40
4Grundriss Zugang von Küche in Speis / Abstellraum - Seite 329
5Küche und Abstellraum Etagenwohnung Grundriss optimieren 34
6Abluft im Schlafzimmer - Zuluft im Abstellraum - Seite 224
7Bungalow mit 140qm und Garage im Grundriss 13
8Lage von Haus & Garage im Baufenster planen *Vorplanung* - Seite 2129
9Grundrissplanungen Einfamilienhaus und Garage - Seite 332
10Grundriss 140 m2 Einfamilienhaus mit Garage - Hausausrichtung ok? 18
11Grundrissplanung Einfamilienhaus (190 qm) mit Garage 18
12Einfamilienhaus 172qm mit Garage und Sauna - Seite 654
13Einfamilienhaus-Grundriss 170 qm für 4 Personen mit Garage 20
14Einfamilienhaus mit 135 qm Wohnfläche plus KG mit integrierter Garage/Büro 19
15Holzdecke und Teilisolierung für Keller mit Garage 15
16Grundriss Bungalow 150qm mit Garage - Seite 1379
17Grundriss: 150qm Einfamilienhaus+Einliegerwohnung - Carport / Garage + Schuppen / Werkstatt - Seite 545
18Unser Häuschen, eure Meinung 31
19Technikraum in Garage einbauen? Ist dies möglich? - Seite 335
20Grundriss, Ideen zur räumlichen Trennung innerhalb der Küche 23

Oben