Entwurf Einfamilienhaus mit ca. 168m² Feedback

4,70 Stern(e) 7 Votes
Zuletzt aktualisiert 26.12.2025
Sie befinden sich auf der Seite 5 der Diskussion zum Thema: Entwurf Einfamilienhaus mit ca. 168m² Feedback
>> Zum 1. Beitrag <<

H

HappyEnd

Nun ist mein letzter Post schon einige Zeit her und ich würde gerne den aktuellsten Stand mit Euch teilen.

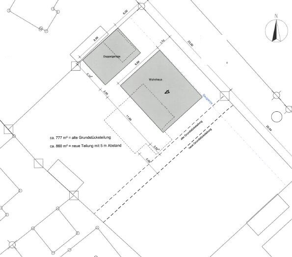
Unser relativ großes Grundstück ca. 1400qm werden wir vorerst nicht teilen + verkaufen. Wir wollen es uns min. 10 Jahre offen halten (davor wären bei Verkauf Steuern fällig), was mit dem Grundstück passieren soll.

Wir haben das Haus auf 10*12m (185qm im EG + OG) vergrößert, einen überdachten Durchgang zwischen Garage und Haus, die Variante direkter Zugang hat uns nicht mehr so gefallen. Unser Grundstück liegt an einer Spielstraße, wird aber trotzdem relativ gut befahren und auf unserer Seite befindet sich kein Bordstein. Das Haus werden wir auf die Baugrenze 3 Meter ran an die Straße bauen. Die Einfahrt / Eingang bietet somit mehr Platz für die kids und hat einen direkten Durchgang in den Garten.


Wir haben lange hin und her überlegt, ob wir die Küche und das Wohnzimmer tauschen wollen und sind bei der Ursprungsvariante geblieben und wollen das Büro im Erdgeschoss belassen. Wir spendieren der Küche Richtung SO eine Schiebetüre und es soll eine kleine Terrasse für Grill, Kräuter und eine Sitzgelegenheit für den Kaffee am Morgen geben.

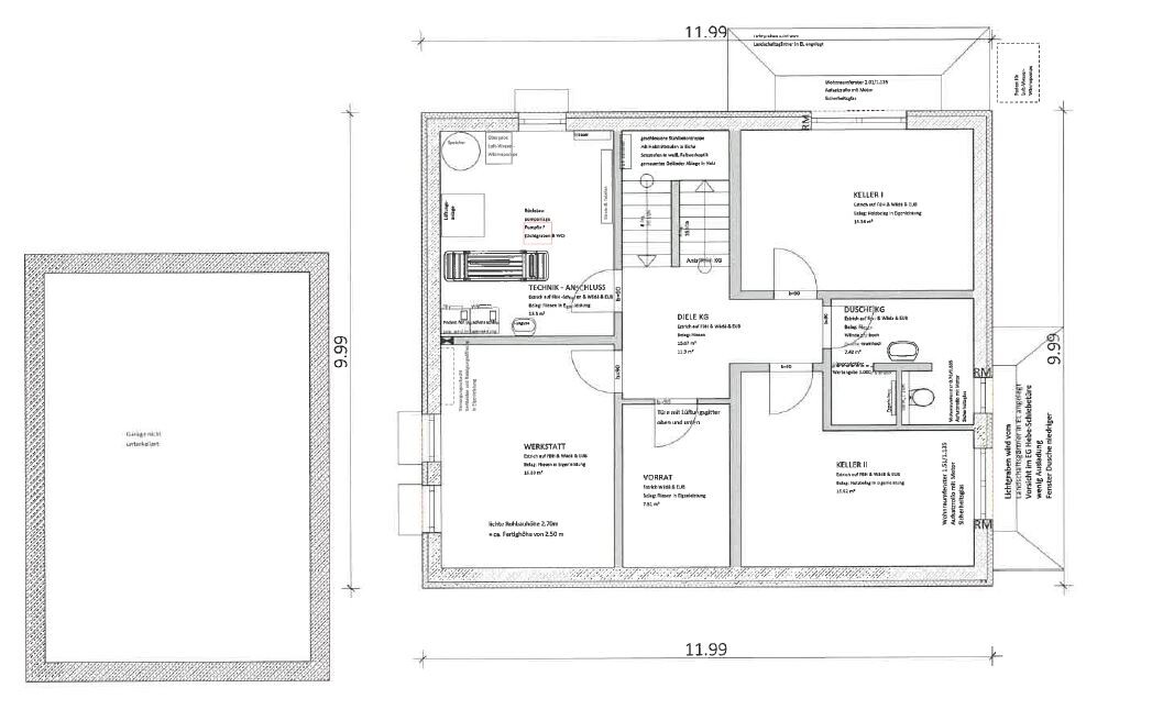
Im Keller haben wir dem Zimmer + Badezimmer Richtung SO ebenfalls einen Lichtgraben spendiert. Die neuste Erkenntnis durch einen Bodengutachten eines Nachbarn ist, dass relativ bald Fels kommt (ab ca. 2 Meter). Was das jetzt im Detail für die Lichtgräben bzw. Entwässerung bedeutet, vermag ich zum jetzigen Zeitpunkt und Unwissenheit nicht einzuschätzen.


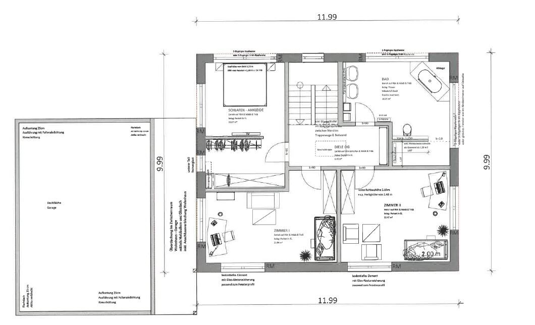
Das OG haben wir nicht groß angepasst, wir haben dem Schlafzimmer mehr Durchgang zwischen (TV-) Wand und Bett spendiert. Der Flur im OG soll einen Einbauschrank erhalten. Ein Versorgungschacht von Dach in Richtung Technikraum findet auf Höhe begehbarer Kleiderschrank / Büro statt.


Wie seht ihr den neusten Entwurf, Kritiken, Tipps und Ratschläge werden gerne angenommen. Optimierungspotential sehe ich noch bei der Fenstergestaltung und bei dem großen Bad im OG.


Sorry, leider hat der GU hat bei diesen Plänen mit Bemaßungen und Qualität gegeizt. Anfrage einer neu bemaßten Variante läuft.

Grundrissplan eines Hauses mit Garage, Büro, Diele, WC, Küche und Wohn-/Essbereich.


Grundriss eines Hauses mit Schlafzimmer, Ankleide, Bad, Diele und zwei Zimmern.


Grundriss Kellergeschoss: Technik-Anschluss, Werkstatt, Vorrat, Diele, Kell. I, Kell. II, Dusche/WC


Lageplan: Grundstück mit Doppelgarage und Wohnhaus, Maßen, Nordpfeil


Zwei Ansichten eines Hauses (Südost- und Nordwestansicht) mit Baum, Auto und Menschen.


Architekturzeichnung eines zweigeschossigen Hauses mit Garage; Ansichten von Südwesten und Nordosten.
 
Marco180

Marco180

An sich recht netter Entwurf. Mir sind ein paar Dinge spontan aufgefallen.
- Fassade nordost - setze ein drittes Fensterband in die Küche EG, sorgt auch für mehr Licht
- WZ-Fenster südwest - das ist riesig, unabhängig vom Geschmack, wird das Gewächshauscharakter haben, da brauchst Du irgendwas zur Beschattung, vielleicht in Form einer Terrassenüberdachung
- Fenster Ankleide - selbe Brüstungshöhe analog der Fenster links und rechts
 
Y

ypg

Ich sehe, von der Kritik ist kaum etwas angekommen bzw umgesetzt.

im Wohnzimmer sieht man durch die „neue“ Couch ganz gut, wie „behaglich“ der Sitzbereich in dieser Ecke sein wird. Man sitzt da genau ggü der Ecke mit Blick zur Tür - schön ist das nicht. Und wenn man bedenkt, dass ein Sofa nicht in die Ecke gequetscht wird...
Der Aussenflur wird ein Windfänger und Windkanal werden.
Lichthof am Wohnbereich?
 
I

ivenh0

Der Entwurf ist doch noch sehr unausgereift.
Wir haben im EG auch 10x12m gebaut mit den gleichen Räumen (unsere Speisekammer könnte eure Garderobe sein). Schau dir den Entwurf mal an und du wirst merken, dass da mehr drin ist. Euer Wohnzimmer ist quasi nicht vorhanden und das Esszimmer viel zu groß.

OG gefällt mir irgendwie auch nicht. Euer Schlafzimmer mit Ankleide ist Mini und das Bad lächerlich groß
 
I

ivenh0

Bei euch ist die Küche auch an der falschen Stelle. Die muss an die Terrasse/ Garten. Das Wohnzimmer nicht. Also tauschen.
 
Zuletzt aktualisiert 26.12.2025
Im Forum Grundrissplanung / Grundstücksplanung gibt es 2556 Themen mit insgesamt 88595 Beiträgen


Ähnliche Themen zu Entwurf Einfamilienhaus mit ca. 168m² Feedback
Nr.ErgebnisBeiträge
1Meinungen zu unserem Grundriss Entwurf erwünscht - Seite 670
2Grundstück in Hanglage: erste Grundrissidee & bitte um Feedback 63
3Nicht-bodentiefe Fenster im Wohnzimmer unmodern? Welche Vorhänge? - Seite 217
4Grundriss-Entwurf: Einfamilienhaus mit Keller; 560qm Grundstück - Seite 765
5Grundriss Einfamilienhaus mit Doppelgarage und Terrasse - Seite 219
6Entwurf Grundriss Bungalow Meinungen - Seite 422
7Unser Grundriss-Entwurf, eure Meinungen 20
8Einfamilienhaus als Reihenmittelhaus an Hanglage - Entwurf - Seite 318
9Grundrissplanung für schmales Grundstück, 2. Versuch. 14
10Grundrissplanung Wohnzimmer und Flur zu schmal? 21
11Unser Grundriss-Entwurf für ein günstiges Haus 348
12Einfamilienhaus 160m2 mit Keller, 500m2 Grundstück - Seite 8108
13Einfamilienhaus Entwurf mit Satteldach am Rand vom Baugebiet - Seite 540
14Grundriss-Entwurf für Haus am Hang in zweiter Reihe - Seite 320
15Erster Grundriss-Entwurf ~200qm Einfamilienhaus - Seite 320
16Grundstück Nord-West-Ausrichtung - Tipps - Seite 224
17Grundriss EFH165 qm erster Entwurf - Architekt unzufrieden 74
18 Küchenplanung mit tiefen Fenster - Seite 643
19Grundriss Einfamilienhaus ca. 300qm, Grundstück 780qm - Seite 224
20Meinung zum Grundriss eines geplanten Bauhauses - Seite 323

Oben