Grundriss 140 m2 Einfamilienhaus mit Garage - Hausausrichtung ok?

4,80 Stern(e) 4 Votes
Zuletzt aktualisiert 18.11.2025
Sie befinden sich auf der Seite 2 der Diskussion zum Thema: Grundriss 140 m2 Einfamilienhaus mit Garage - Hausausrichtung ok?
>> Zum 1. Beitrag <<

11ant

11ant

wir werden nochmal am Grundriss arbeiten und auf der nördlichen Seite mit der Planung beginnen.
Schade, daß Du die Zeichnungen einstweilen wieder herausgenommen hast. Die Aufteilung fand ich vom Konzept her gar nicht so ungeschickt, bis auf natürlich die Himmelsrichtungen mit Wohnen im Norden und so. Die Garage schien mir übrigens sehr schlank geraten (vmtl. nur zweieinhalb Meter). Und das "unprofessionelle" Zeichenprogramm hat mir gefallen, das ist im Skizzenstadium m.E. völlig ausreichend.
 
P

plexo

Hallo zusammen,
ich melde mich schon zurück. Habe ein wenig recherchiert und mir das Programm RoomSketcher heruntergeladen.
Vom Grundsatz habe ich den alten Grundriss belassen, allerdings ist der Erker nun vor das Haus gerutscht und dort kommen nun Küche und Hauswirtschaftsraum unter.

Die Garage ist nun auf die rechte Seite in den Norden gewandert (Maße 9 x 3) und das Wohn-Esszimmer in den Süden.

Was aus meiner Sicht bis jetzt zumindest problematisch ist, ist das fehlende Fenster im Flur
Ich bin gespannt auf eure Kommentare

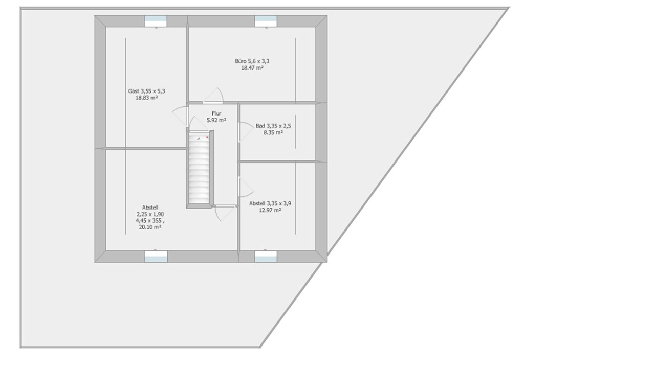
Grundriss EG

2D Grundriss eines Hauses mit Zimmern wie Wohnen, Essen, Küche, Bad und Garage



Grundriss DG

Grundrissplan eines Obergeschosses mit Treppe und Zimmern
 
H

haydee

Ihr quetscht ein Raumprogramm in das EG und oben ist massiv Platz übrig. Finde das suboptimal.
Warum verteilt ihr nicht die Räume großzügig über das ganze Haus
Übrigens ist die Treppe zu kurz

Zeichnet mal bitte Möbel ein
 
P

plexo

@haydee die Treppe hat 3,25 Meter, 3,5 sind wohl realistischer?! Wir würden gerne im EG schlafen und auch nicht auf eine Ankleide verzichten. Welche Räume könnte man sonst noch nach oben verlegen. Da käme mir eigentlich nur der Hauswirtschaftsraum in den Sinn.

@11ant die 2 m Linie ist das nicht, bin mir nicht sicher, wie man das berechnet, ab wo 2m Höhe erreicht sind. Dachneigung soll 40 Grad sein. Die Striche sollen nur die Richtung des First symbolisieren. Die Garage soll eine Innenbreite von 3m haben, es sind auf der Skizze tatsächlich nur 2,5 m, da habe ich mich vertan
 
kaho674

kaho674

Sorry, falls es schon gesagt wurde, aber müsst Ihr 2 Geschosse bauen? Die oberen Räume scheinen mir alle überflüssig. Wie wär's mit nem Bungalow?
 
Zuletzt aktualisiert 18.11.2025
Im Forum Grundrissplanung / Grundstücksplanung gibt es 2536 Themen mit insgesamt 87970 Beiträgen


Ähnliche Themen zu Grundriss 140 m2 Einfamilienhaus mit Garage - Hausausrichtung ok?
Nr.ErgebnisBeiträge
1 2 Vollgeschosse, Durchgang Garage, Hauswirtschaftsraum unter Treppe 25
2Bungalow mit 140qm und Garage im Grundriss 13
3Grundriss mit Garage auf Grundstück realisierbar? - Seite 329
4Grundriss Einfamilienhaus (ca. 170 qm) mit Garage - Hanglage 35
5Zugang von der Garage in den Hauswirtschaftsraum - Seite 349
6Grundriss Einfamilienhaus ca. 135 m³, Grundriss. Garage, 1,5 Geschossig, 4 Personen 11
7Meinungen f. Grundriss Einfamilienhaus ca. 160qm - Seite 429
8Grundriss EG + OG für Doppelhaushälfte 29
9Grundriss. Meinungen, Ideen und konstruktive Kritiken. - Seite 424
10Grundriss, bitte um Tipps und Anregungen, Einfamilienhaus 160m² 20
11Grundriss Einfamilienhaus, ca. 200qm ohne Keller - Einschätzung - Seite 25172
12Grundriss-Entwurf Stadtvilla mit Doppelgarage - Seite 238
13Grundriss Erstskizze - Verbesserungswürdig? - Seite 542
14Grundriss/Grundrissideen Einfamilienhaus 180m², 3 Kinderzimmer - Seite 446
15Grundriss Stadtvilla 160 qm, ohne Keller - Eure Meinungen dazu? 167
16Einfamilienhaus, ca 140 m², 2 Kinderzimmer - Was haltet ihr vom Grundriss? - Seite 267
17Grundriss Stadtvilla 150 m2- Eure Meinung ist gefragt :-) 45
18Grundriss Stadtvilla 155qm - eure Meinung ist gefragt - Seite 247
19Grundriss-Planung, 2 Vollgeschosse, ca. 130-140 qm ohne Keller - Seite 21192
20Grundriss Haus mit Einliegerwohnung - Verbesserungsvorschläge? - Seite 33221

Oben