auf welchen dieser Grundrisse können wir weiter aufbauen?

5,00 Stern(e) 6 Votes
Zuletzt aktualisiert 19.11.2025
Sie befinden sich auf der Seite 29 der Diskussion zum Thema: auf welchen dieser Grundrisse können wir weiter aufbauen?
>> Zum 1. Beitrag <<

S

StanSch

Ich probiere mich weiter .

Wenn das Haus 10 Meter breit ist, dann kann man die Bereiche Kochen/Essen/Wohnen entweder auf diese Breite, also eigentlich nur 9,30 Meter verteilen und diesen Bereich tiefer machen. Oder aber nutzt einen L-Raum uns lässt den Bereich der in den Hintergrund soll um die Ecke verschwinden. Hierbei hätte man dann die 9,30 Meter zum Garten für 2 Bereiche, dafür nicht ganz so tief.

Was ist denn eigentlich mit dem 3. Grundriss aus dem Eingangsthread?

Grundriss: Garage, Terrasse, Kochen, Essen/Wohnen, Diele, HWR, Arbeiten, WC, Stellplatz.

Grundriss eines Hauses: zwei Kinderzimmer, Elternzimmer, Flur, Abstellraum, Bad.

Vielleicht zieht man das Arbeitszimmer noch etwas hoch, damit der Bereich vorm WC etwas größer wird. Die Wand zwischen Küchen und Wohnzimmer könnte auch weg oder zum Garten hin halbhoch werden. Im Flur oben gehört natürlich noch ein Fenster. Den Flur oben könnte man auch noch etwas breiter machen, falls dieser zu eng sein sollte. Dann würden die eigentlich zu großen Kinderzimmer etwas kleiner werden.

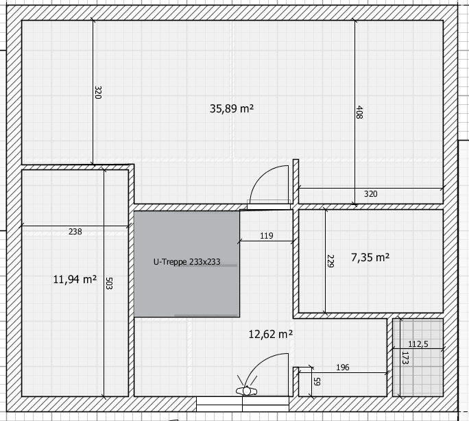
Und dann hätte ich hier noch einen Grundriss (ohne Fenster und Türen), aufbauend auf dem Danwood P 151.3.

Grundriss eines Wohnhauses: Mehrere Räume, zentrale U-Treppe, beschriftete Flächengrößen.

Grundriss eines Gebäudes: mehrere rechteckige Räume um eine zentrale U-Treppe, Größenangaben in m²

Kann sein, dass die U-Treppe etwas zu groß ist. Die Treppe könnte man vielleicht auch noch etwas nach unten ziehen. Der Antritt wäre noch offen. Angedacht hätte ich diesen vor der Tür zum Wohnzimmer, so dass der Bereich unter der Treppe rechts unten begehbar wäre.

Des Weiteren hätte ich noch den Park 151W von Danwood. Vielleicht kann auf diesem auch aufbauen?

Grundriss eines Hauses: Wohnen/Essen, Küche, Diele, Zimmer, WC, Technikraum

Grundriss einer Etage mit drei Zimmern, Bad, Flur, Garderobe und Treppenhaus.
 
S

StanSch

Dich für Mitdiskutanten verständlich auszudrücken - egal ob Wege oder Zwischenstadien betreffend - ist auf der Grafikebene m.E. offenbar nicht Deine Domäne
Das die erstellten Bilder mit Word nicht der Hingucker sind ist mir schon klar, aber man hat nicht immer ein entsprechendes Programm verfügbar.
Und SweetHome ist jetzt auch sicherlich nicht das Architekten-Programm, aber Bemaßungen sind drin. Kannst Du ein optisch ansprechenderes Programm empfehlen?

Aber für den nächsten Schritt (Treppe und das Darunter) sehe ich Dich entweder wieder eine Riege Mitdiskutanten ermüden bis verschleißen, oder Du suchst eine geeignete andere Kommunikationsebene, um Dich dem Weiterplaner mitzuteilen.
Aber auch die verbale Kommunikation ist nicht immer einfach .

Ist ja auch ne offene Holztreppe
Stimmt. Nun stelle Dir aber mal vor, dass die Betontreppe weiß gestrichen ist und gerade aus die Tür eine Glastür ist und links in der Wand der garderobenschrank mit Schiebetüren eingelassen ist.

Hm, finde es eher nicht so harmonisch.
Davon ab werden wir oben wohl höchstwahrscheinlich keine bodentiefen Fenster haben.
 
H

haydee

Beim Danwood sind die Zimmer sehr klein.
Wenn dir die Größe der Schlafräume reicht, würde ich das Büro ins OG nehmen und das Zimmer unten dem Wohnzimmer zuschlagen.
Dein Wohn-Essbereich ist so klein wie in meiner alten Wohnung. Das war zu zweit schon eng, zu dritt eine Katastrophe und zu 4 würde ich Platzangst bekommen.
 
S

StanSch

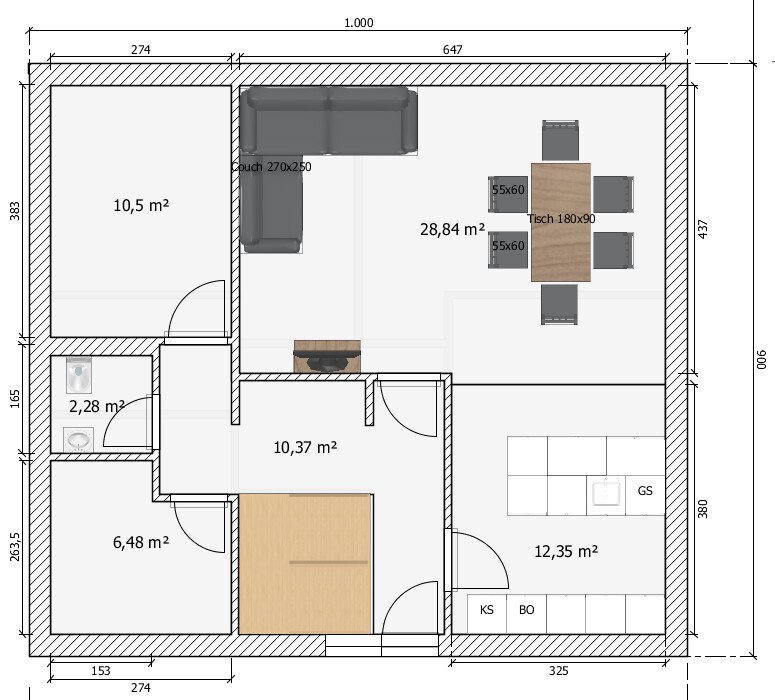
Hier mal der angepasste Danwood 151W:

Einmal Arbeitszimmer zum Garten:

Grundriss eines Wohnhauses: Wohnzimmer mit Sofa, Esstisch, Küche, Bad, Flur, m²-Angaben.


Und einmal die Küche zum Garten:

Grundriss eines Apartments: Wohnzimmer mit Esstisch und Sofa, Küche, Bad, Büro und Flur.


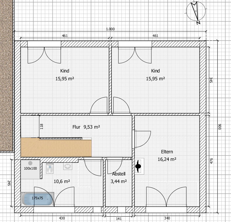
Oben geht es sicherlich noch ein wenig geordneter:

Grundriss einer Wohnung: zwei große Räume oben, mehrere Nebenräume, Kleiderschrank und Bett


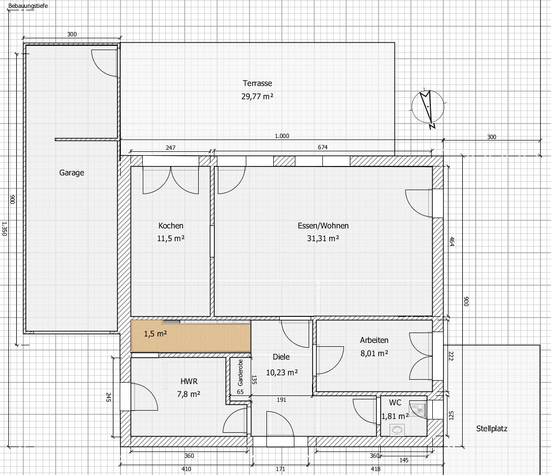
Dann aufbauend auf dem Solution 151:

Grundriss: Wohnzimmer/Essen 33 m², Diele 5,25 m², HWR 8,74 m², WC 2,41 m², weitere Räume.


Grundriss: Flur Mitte; 2 Kind-Zimmer oben; Eltern rechts unten; Bad links unten; Abstell unten.


Und noch eine Variante der Stadtvilla 138 von HC mit einer U-Treppe, wobei der Flur im OG schon unglaublich groß ist:

Grundriss eines Hauses mit Küchen, Essen/Wohnen, Diele, HWR, WC, Arbeiten und U-Treppe.


Grundriss eines Hauses mit zwei Kinderzimmer, Elternzimmer, Bad, Flur, Abstellraum und U-Treppe


Aber mittlerweile glaube ich, man kann hier noch so viel Ideen posten, es wird immer etwas zu nörgeln geben und wenn es nur die grundsätzliche Nicht-Affinität zu Designaspekten ist .
 
Zuletzt aktualisiert 19.11.2025
Im Forum Grundrissplanung / Grundstücksplanung gibt es 2535 Themen mit insgesamt 87977 Beiträgen


Ähnliche Themen zu auf welchen dieser Grundrisse können wir weiter aufbauen?
Nr.ErgebnisBeiträge
1Bodenplatte für Danwood Bungalow? Firma für komplette Arbeiten? - Seite 211
2Treppe im Flur, Grundriss steht eigentlich schon :o( - Seite 320
3Grundrissfrage, Treppe, Fenster, Ausrichtung 12
4Grundriss für 150qm Einfamilienhaus mit Wohnzimmer nach Norden 21
5Platzierung der Möbel im Wohnzimmer im Grundriss 10
6Eure Meinung zum Grundriss für das EG 28
7Grundriss Einfamilienhaus mit Keller 19
8Grundriss für 11m x 8,25m ok? - Seite 543
9Grundriss Satteldachhaus 172 qm - Bitte um eure Meinungen 23
10Feedback zu Einfamilienhaus Grundriss 200 m² Stadtvilla mit Walmdach o 32
11Unser Grundriss-Entwurf für ein günstiges Haus - Seite 50348
12Grundriss ca. 170 m² Einfamilienhaus, ohne Keller mit Carport - Seite 889
13Planungsphase Grundriss Einfamilienhaus - Seite 315
14Ein erster Grundriss unseres Architekten...Eure Meinung bitte - Seite 527
15Grundriss - Auf der Suche nach Tipps und Ideen von Experten - Seite 211
16Grundriss Einfamilienhaus 2 Vollgeschosse 195 qm Satteldach in Bayern - Seite 425
17Meinungen zu Grundriss "Haus am Hang" erbeten 31
18Grundriss - Eure Meinungen, Ideen und Vorschläge 31
19Entwurf Grundriss: Planung Erdgeschoss - Seite 227
20Danwood Komplettangebot vs. Separatbeauftragung Architekt - Seite 213

Oben