auf welchen dieser Grundrisse können wir weiter aufbauen?

5,00 Stern(e) 6 Votes
Zuletzt aktualisiert 08.01.2026
Sie befinden sich auf der Seite 10 der Diskussion zum Thema: auf welchen dieser Grundrisse können wir weiter aufbauen?
>> Zum 1. Beitrag <<

S

StanSch

So, wir sind bei Beitrag 55 und vieles dreht sich um die Vergangenheit in einem anderem Forum.

Die wenigstens Antworten gingen auf die eigentlichen Fragen ein. Bisher habe ich Feedback von @haydee, @kaho674, @montessalet und @ypg bekommen.

Leider hab ich die Grundrisse etwas unglücklich dargestellt. Alle 4 sprechen vom 1. Grundriss. Nur ist damit der des Architekten gemeint, also der Signus mit TV-Bereich hinter der Treppe, oder der selbst gezeichnete mit dem quadratischen Wohn-/Esszimmer? @kaho674 und @montessalet hab ich so verstanden, das sie den Signus besser finden.

Bei jeder. Oder wolltest Du in irgend einer Variante keine Garage bauen?
Die Garage ist kein Muss, aber wir brauchen eine Möglichkeit um Gartenutensilien und Fahrräder usw. unterzustellen und vor allem an die Fahrräder so dran zu kommen, dass man diese nicht durch den ganzen Garten schieben muss .

Nur ist es so, dass am TE jegliches Argument abprallt. Dann ist es halt so. Nach knapp 200 Beiträgen und vielen Alternativen wollte der TE immer noch auf 8,5 Meter Tiefe seine gerade Treppe verbauen.
Aber nicht auf 8,5 Meter Haustiefe möglich, ohne gravierende Abstriche zu tätigen!
noch dass er auf eine gerade Treppe besteht.
Wir sprechen hier aber über einen 9 m tiefen Grundriss!
Und das es eine gerade Treppe sein muss sage ich auch nicht.
OK, scheinbar ist eine 1/4 gewendelte Treppe im Austritt irgendwie immer noch eine gerade Treppe, aber sie ist kein Muss. Im letzten Entwurf des Architekten ist dieser mit einer Stufe in den Austritt gegangen. Hierdurch wird die Treppe ca. 25-30 cm kürzer, aber halt auch breiter.

Ich kann Dir noch ein drittes Forum nennen, vielleicht reden die Dir in den Mund.
Darum geht es doch gar nicht.
Wenn man aber nicht sachlich zum Thema beitragen möchte, dann muss man diesen Thread doch nicht mit Dingen vollmüllen. Der Thread im anderen Forum ist Vergangenheit, hier spielt die Gegenwart und vielleicht auch die Zukunft.

Hingegen sind das Aufzeigen von Vor- und Nachteilen sowie Alternativen bei Dingen, die nicht "fix" sind sinnvoll und sehr hilfreich. Wäre doch sinnvoll, sich auf diesen konstruktiven Weg zu begeben bei den Kommentaren.
Meinungen abholen ist in der Regel ein Zeichen, dass sich die TE selbst hinterfragen, sich mit anderen Meinungen und Optionen aktiv auseinandersetzen. Das muss aber nicht zwingend heissen, dass man die eigene Meinung verlassen und sich einem Diktat der Opponenten unterwerfen muss. Selber denken finde ich immer noch sinnvoll. Selber entscheiden auch.
Ich finde übrigens sowohl deine wie auch kahos Äusserungen hilfreich und durchdacht: Ihr setzt euch mit den Fragen aktiv auseinander und bringt eigene Meinungen, Erfahrungen und Optionen ein - genau das braucht es hier und den TE hilft, vielleicht bessere Lösungen zu finden.
Genau darum soll es hier doch gehen *Daumen hoch*.

Inklusive Grundstück lässt sich das schwer beurteilen.
Wie viel das Grundstück wert ist, ist schwierig zu sagen.
Den Bodenrichtwert kann man auch nur bedingt als Grundlage nehmen ... dort wurde seit sehr vielen Jahren nichts mehr neu gebaut.
Im Preis sind letztendlich ja auch noch Dinge wie die Anliegerstraße und Erschließung. Des Weiteren sind im Preis schon elektr. Rollos, gewisse Fliesenarbeiten und die Pflasterungen der Terrasse, Zufahrt und des Eingangs enthalten.

Das sagte auch keiner. Wie kommst Du auf den Unfug?
Kann dir leider wieder nicht folgen ... Männer und Frauen denken unterschiedlich .
 
kaho674

kaho674

Dieses Angebot für 450 Riesen - für wie viel Grundflächen-qm ist das gedacht? Genau die 9x10? Man könnte also z.B. auch 11,25 x 8 machen?
 
S

StanSch

Die Terrasse kommt so oder so in den Süden. Niemals...
Bei der Idee von @ypg würde es in etwa so aussehen.
Und dann ist doch ein Teil der Eck-Terrasse zwischen Garage von Haus 9 und dem eigenen Haus. Und die Garage von Haus 10 könnte in der Theorie noch weiter geschoben werden. Zudem ist die Ecke auch nicht sehr tief, wenn dort noch ein Carport oder Garage davor kommen soll. Das EG-Fenster auf der West-Seite müsste dann doch im Bereich der West-Terrasse sein. Ein Fenster unter einem Carport bringt doch nur bedingt etwas, oder?

Bei einem 10x9 m Haus wäre die Grünfläche hinter der Terrasse tiefer als bei einem 8x11,25 m Haus. Das Grundstück ist halt leider mit ca. 23,8 m nicht sonderlich tief.

Dieses Angebot für 450 Riesen - für wie viel Grundflächen-qm ist das gedacht? Genau die 9x10? Man könnte also z.B. auch 11,25 x 8 machen?
So hab ich es immer verstanden. Der Preis bezog sich auf die Grundfläche.

Lageplan: Haus 10 links, Haus 9 rechts, Carport 6x5 m, Garage 9 m, Terrassen, Garten.
 
H

haydee

Ich meinte dem vom Architekten.

Deiner mit dem fast quadratischen Wohn-Essraum ist extrem schwer zu möblieren.

Geräte/Abstellraum + Carport würde ich bevorzugen. Wenn die Fahrräder in die Garage kommen, steht die auch den ganzen Tag offen. Kinder machen die nicht auf und zu
 
kaho674

kaho674

Dieses ganze Terrassengefasel halte ich für gequirlte Schifferscheiße. Wo Du Deine Terrasse hin machen willst, kannst Du doch entscheiden, wie Du lustig bist. Niemand zwingt Dich, eine Eckterrasse zu machen. Und der 1m mehr im Garten bringt Dir dort sehr wenig. Im Haus ist der Gewinn aber möglicherweise riesig.

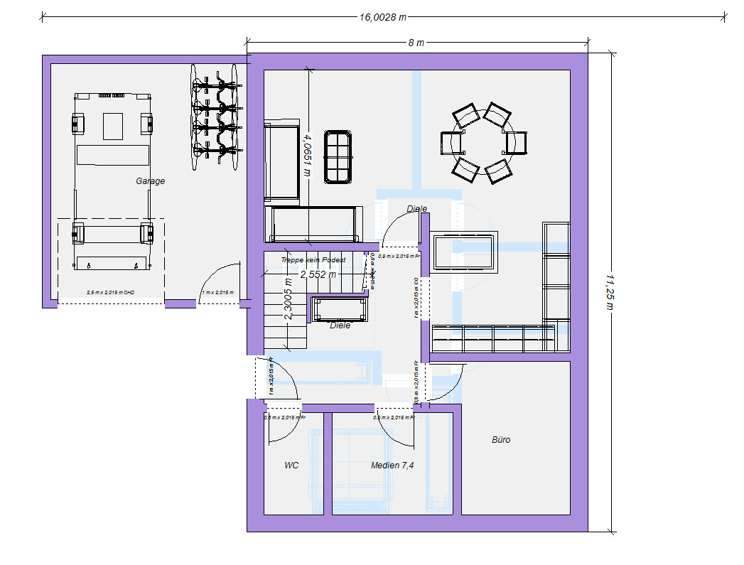
Hier mal ein Beispiel mit der 8m Breite und 5m Garage. Da passen die Fahrräder und weiterer Schlamm sehr gut mit rein. Das Haus kann die Westsonne rein lassen und die Terrasse kommt natürlich in den Süden.
Fenster spar ich mir mal für die Skizze.


Grundriss eines Hauses: Bad, Abstellen, Schlafzimmer, Galerie und Essbereich; Außengarage mit Auto.

Grundriss eines Hauses: Garage mit Auto, Wohnzimmer offen, Esstisch, Büro, Medienraum, WC, Treppe.
 
Zuletzt aktualisiert 08.01.2026
Im Forum Grundrissplanung / Grundstücksplanung gibt es 2565 Themen mit insgesamt 88787 Beiträgen


Ähnliche Themen zu auf welchen dieser Grundrisse können wir weiter aufbauen?
Nr.ErgebnisBeiträge
1Erster Grundriss-Versuch für Kettenhaus auf kleinem Grundstück - Seite 494
2Garage, Carport oder beides? 12
3Grundriss Einfamilienhaus ca. 135 m³, Grundriss. Garage, 1,5 Geschossig, 4 Personen 11
4Grundriss für Generationenhaus auf anspruchsvollem Grundstück 16
5Grundriss Einfamilienhaus, leichte Hanglage, NW-Ausrichtung - Seite 675
6Grundriss Stadtvilla 150 m2- Eure Meinung ist gefragt :-) 45
7Grundriss: Doppelhaushälfte 8x12m Meinungen und kreative Ideen erwünscht :-) 123
8Grundriss 175qm Satteldach ohne Keller - Seite 14136
9Grundriss Neubau Einfamilienhaus zweigeschossig 200 m² - Seite 5106
10Grundriss mit Garage auf Grundstück realisierbar? - Seite 329
11Bebaute Fläche: Gehören Garage / Carport zur bebauten Fläche? 19
12Grundriss Bungalow 150qm geschlossene Küche, überdachte Terrasse - Seite 440
13Einfamilienhaus-Grundriss 170 qm für 4 Personen mit Garage 20
14Grundriss ca. 170 m² Einfamilienhaus, ohne Keller mit Carport - Seite 489
15Haus, Garage / Carport auf dem Grundstück platzieren - Seite 493
16Grundriss 140 m2 Einfamilienhaus mit Garage - Hausausrichtung ok? - Seite 218
17Grundriss Bungalow 150qm mit Garage 79
18Grundriss: 150qm Einfamilienhaus+Einliegerwohnung - Carport / Garage + Schuppen / Werkstatt - Seite 245
19Haus und Garage, Carport Platzierung auf Hinterliegergrundstück 12
20Grundriss Einfamilienhaus mit 240m² mit Einliegerwohnung 75m² und Garage 39

Oben