Ein erster Grundriss unseres Architekten...Eure Meinung bitte

4,30 Stern(e) 3 Votes
Zuletzt aktualisiert 21.11.2025
Sie befinden sich auf der Seite 5 der Diskussion zum Thema: Ein erster Grundriss unseres Architekten...Eure Meinung bitte
>> Zum 1. Beitrag <<

G

Grobi82

@Bauexperte
@ypg

EG:

Hier würde ich Dir immer noch anraten, den Bereich von Flur, wie von Küche zum tiefer gelegenen Wohn-/Esszimmer über jeweils eine Schiebetüre abzuschließen; Glas wäre mein Mittel der Wahl. *Ich* bin aber auch weder Fan von Durchzug, noch Gerüchen im gesamten Geschoss
Ich glaube darauf wird es hinauslaufen...neben der angesprochenen Funktionalität würde es schick aussehen.

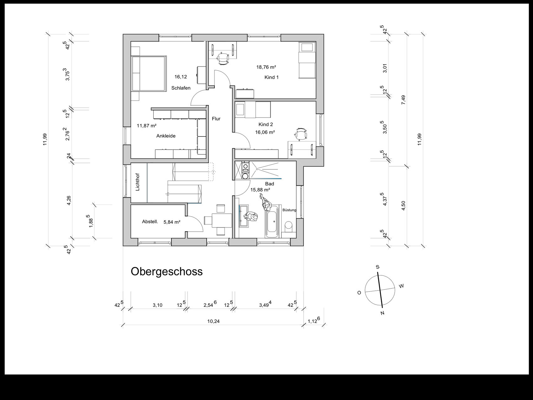
Ich frage mich, was das OG repräsentieren soll? Ist euer Planer ein schlichter "Ja-Sager" oder seid ihr lernresistent und er hat aufgegeben? Einen Abstellraum im OG einzuplanen, ist durchaus eine kluge Entscheidung; ihn mehr oder weniger als gefangenen Raum zu planen, schlicht naiv. Ganz davon ab, daß der Platz hinter der Treppe - mutig als Flur bezeichnet - keinen Sinn ergibt; ein Flur dient als Verteiler, nicht dazu, in eine Sackgasse zu münden. Oder ist Kommunikation via Brüstung (Treppe) das Thema? Dass das Masterbad erneut über einem Wohnraum entwässert werden muß, muß ich auch nicht verstehen.
Der Abstellraum hinter der Brüstung (ex-kleines Bad) soll noch etwas in Richtung Freifläche Flur vergrößert werden und zudem mit einer Tür in Richtung Flur versehen werden. Diese fehlte weil unser Planer hier ein kleines Bad vorgeschlagen hat. Über die unsere Persönlichkeit oder um die des Planers möchte ich mich nicht auslassen, aber wir sind auf keinen Fall beratungsresistent oder verlangen die Umsetzung von bestimmten Themen. Unser aller Ziel ist es, mit den Gegebenheiten einen uns zusagenden Grundriss zu schaffen. Die Entwässerung des Bades über den Wohnraum (Büro) ist sicherlich nicht die beste Lösung, allerdings können wir damit leben, da das Bad an dieser Stelle bleiben soll. Der Vorschlag/Entwurf von @ypg finde ich auf jeden Fall interessant aber ich habe Bedenken, dass das Bad zum einen zu schmal wird und zum anderen das Obergeschoss inkl. Treppe zu einer Dunkelkammer wird. Das einzige Fenster wäre dann nämlich an der Südseite...


Da die Dame des Hauses jetzt auch auf den direkten Zugang zum Bad verzichtet (so wie ich es verstehe, wegen dem Verzicht Kinderbad, was ich aber auch gut nachvollziehen kann), könnte die Möglichkeit bestehen, dass sie die nächsten Wochen vernünftig wird und sich eingesteht, dass es funktionellere Nutzungen von Wohnflächen gibt als Galerieräume und Freiflächen. Aber wenn der Platz eh über ist, dann bin ich natürlich auch gern solidarische Dame
Die Dame des Hauses lässt sich des Öfteren auch mal überzeugen und umstimmen. Das Dogma Schlafzimmer-Ankleide-Bad hat sie aufgegeben.
Wie oben bereits geschrieben empfinde ich das Bad an der Nordseite als recht eng...(wir hatten genau diesen Entwurf schon einmal mit unserem Planer durchgesprochen). Problem ist insbesondere der Teil, wo bei Dir die Dusche geplant ist. Hier sind es nur 1,10 m Breite (Rohbaumaß).

Nichtsdestotrotz möchte ich mich herzlich für Eure Hilfsbereitschaft, Ideen und Anregungen bedanken. Es hilft uns, ein Gefühl für die gesamte Planung zu entwickeln und kreiert zu dem auch neue Ideen und Gedanken.

Hinsichtlich Lage, Größe, Anordnung der Fenster gebe ich Euch recht...habe bisher immer nur den Grundriss präsentiert. Das werde ich bei meinem nächsten Post korrigieren und auch Ansichten beifügen.
 
B

Bauexperte

Hallo,

Der Vorschlag/Entwurf von @ypg finde ich auf jeden Fall interessant aber ich habe Bedenken, dass das Bad zum einen zu schmal wird und zum anderen das Obergeschoss inkl. Treppe zu einer Dunkelkammer wird. Das einzige Fenster wäre dann nämlich an der Südseite...
Yvonne hat meine Gedanken - erweitert um eine Galerie - aus post #12 aufgegriffen. Dadurch wirkt *ihr* OG wesentlich stimmiger; das Bad ist keineswegs schmal; der Raum hinter der Treppe mittels bodengleicher Dusche optimal ausgenutzt; die Anschlüsse liegen übereinander.

Was Deine Sorge der Belichtung betrifft, so halte ich sie für vernachlässigbar. Zum einen kommt genug Licht über die Galerie nach vorne, zum anderen kannst Du - wenn es die Dachkonstruktion zulässt - zusätzlich einen Tageslichtspot einbauen lassen.

Grüße, Bauexperte
 
Y

ypg

Ich hab extra die 3D- Grafik eingestellt, damit man die immer noch befriedigende Breite des Bades sehen kann. Das Bad wirkt elegant und hat großzügigere Verkehrsfläche als so manch anderes Bad.
Eventuell, kannst Du ja dennoch Ideen aufgreifen und zB nur Abstell mit Bad tauschen. Wände zu den Kinderzimmern vermitteln (Schornstein) und das Fenster an der Treppe wieder für den vorderen Teil des Flures "freilegen".
Insgesamt hast Du im OG mehr Fläche als genug zur Verfügung, was die Planung nicht gerade leichter macht
 
G

Grobi82

Nochmals Danke an Euch alle für Eure Rückmeldungen und Tipps

Nach ein paar Tagen Pause melde ich mich nun nochmals mit einem neuen Entwurf, der uns mittlerweile richtig gut gefällt.

Unterschiede zu den vorherigen Versionen:

- Treppe im UG wendet um 180 Grad, was das Problem des schmalen Gästebades löst

- im OG wurde der Flur verkürzt, das Kinderzimmer 1 vergrößert. Die Tür sitzt aber noch nicht optimal

- Lichthof statt schmalem Durchgang hinter der Treppe zum OG

Bitte stört Euch nicht an den Angaben zu den Fenstern. Diese sind noch nicht final angepasst und die Brüstungshöhen stimmen auch noch nicht.


Hätte nun nochmals eine Bitte an die Experten:

Habt ihr Ideen wie wir das Wohn-/Esszimmer möblieren könnten? Wo könnte der Fernseher hängen? Uns schwebt ein Pelletofen plan unten an der Wand zur Flurtreppe vor. Wäre es möglich, dass man diesen als Raumtrenner plan unten nach oben konzipiert und den Fernseher dann dort Auf der Seite Richtung Osten befestigt? Oder gibt es so etwas nur bei normalen Kaminöfen?

Freue mich sehr auf Eure Ideen und Rückmeldungen.

Grundriss Erdgeschoss: Garage, Küche, Wohn-Esszimmer, Büro, Bad, Diele und Terrasse.


Grundriss Obergeschoss: Schlafzimmer, Ankleide, Flur, 2 Kinderzimmer, Bad, Abstellraum, Lichthof
 
Zuletzt aktualisiert 21.11.2025
Im Forum Grundrissplanung / Grundstücksplanung gibt es 2535 Themen mit insgesamt 87978 Beiträgen


Ähnliche Themen zu Ein erster Grundriss unseres Architekten...Eure Meinung bitte
Nr.ErgebnisBeiträge
1Grundriss-Entwurf: Einfamilienhaus mit 4 Schlafzimmern und Büro, 160qm - Seite 1482
2Entwurf EFH, 2 Vollgeschosse, Satteldach, kein Keller, Doppelgarage - Seite 331
3Planung unseres Einfamilienhaus - Was meint ihr zum Entwurf? - Seite 656
4Entwurf Grundriss Bungalow Meinungen 22
5Grundriss-Entwurf Stadtvilla mit Doppelgarage - Seite 238
6Entwurf Grundriss Einfamilienhaus (als Zweifamilienhaus im Alter möglich) in Hanglage - Seite 753
7Grundriss Entwurf Neubau Einfamilienhaus - Grundstück 610qm - Meinungen erwünscht - Seite 850
8Grundriss Einfamilienhaus geplant, Fenster gefallen uns 43
9Hausbau 2.0 - erster Grundriss-Entwurf 155
10Unser Grundriss-Entwurf für ein günstiges Haus - Seite 4348
11Eure Meinungen zu unserem Grundriss und Angebot - Seite 322
12Bungalow120 Meinung Tipps Grundriss 20
13Entwurf - alle Richtungen bei Neubau vom Einfamilienhaus 91
14Grundrissfrage, Garage, Treppe 33
15Grundriss HAUS FÜR ZWEI" auf etwa 150qm stellt sich vor - Seite 14171
16Grundriss Einfamilienhaus ~165m² plus Keller - Seite 7165
17Grundrissfrage: Tausch gerader Treppe durch L-Treppe 31
18Grundriss Einfamilienhaus 2 Vollgeschosse 195 qm Satteldach in Bayern - Seite 425
19Grundriss Entwurf Einfamilienhaus mit 10% Südhang. Hauseingang Podesttreppe - Seite 754
20Standard-Grundriss für Stadtvilla mit 130qm - Seite 425

Oben