auf welchen dieser Grundrisse können wir weiter aufbauen?

5,00 Stern(e) 6 Votes
Zuletzt aktualisiert 24.12.2025
Sie befinden sich auf der Seite 45 der Diskussion zum Thema: auf welchen dieser Grundrisse können wir weiter aufbauen?
>> Zum 1. Beitrag <<

H

haydee

Ich finde jeder hat das Recht den Wohnraum zu nutzen.
Was sagt meine über 90 Jahre alte Nachbarin „Kinderspielzeug ist keine Unordnung“

Dein Haus ist nicht groß
Möglichkeit 1
- dich mit den kleinen Räumen abfinden. Evtl auf das abgeschlossene Treppenhaus verzichten
Möglichkeit 2
- größer Bauen
Möglichkeit 3
- abklären ob Keller möglich ist.
Nicht so ein schwammiges es könnte eventuell
Haustechnik nach unten,
Arbeitszimmer mit Lichthof nach unten
Abstellraum nach unten
Grundriss dafür 10 x 8,5 oder gar 10 x 8
 
kaho674

kaho674

Wir sind gerade erst von einem 150x90 Esstisch auf einen 180x90 (+90 cm Ausziehoption) umgestiegen und möchten diese Größe nicht mehr missen.
...

Hab die an die 3,2 Meter Breite und die etwas längere Treppe und der Länge der Couch angepasst.
Keine Lust mehr, Dir die Welt zu erklären. Nimm den Entwurf vom BT. Ich bin hier raus.
 
kbt09

kbt09

Ja, das kann man ja auch anders machen:

Küchenhalbinsel mit 70 cm Tiefe und Trockenbauwand in Arbeitsplattenhöhe (Arbeitsplatte geht noch drüber), also insgesamt gut 85 cm Tiefe.

Tisch dann quer angedockt.

Terrassentür (90 cm) zwischen den Zeilen (Abstand 100 cm). Planoben hinter dem Tisch ein Sitzfenster, also Brüstungshöhe in typischer Stuhlhöhe, dann kann der Tisch für Feierlichkeiten gedreht werden und das Sitzfenster als Sitzplatz genutzt werden.

Tisch mit 180x90

Grundriss eines Wohn- und Essbereichs: Küche links, Esstisch, Sofa rechts, Flur.


und Tisch auf 270 x90

Grundriss eines Wohn- und Essbereichs: rechte Seite Couch, linke Küche mit Esstisch, Flur dazwischen.
 
S

StanSch

Keine Lust mehr, Dir die Welt zu erklären.
Brauchst Du auch nicht ... die Welt besteht übrigens nicht nur aus Grundrissen .

Ja, das kann man ja auch anders machen:
Vielen Dank für die Anregung.
Eng ist es leider trotzdem:
5,5 Meter innen - 60er Schrank - 120 Verkehrsfläche - 70er Schrank + Trockenwand = 2,85 Meter ... das ist nicht viel.
3 Meter sollten es schon mindestens sein, man sitzt doch nicht nur gerade am Tisch.

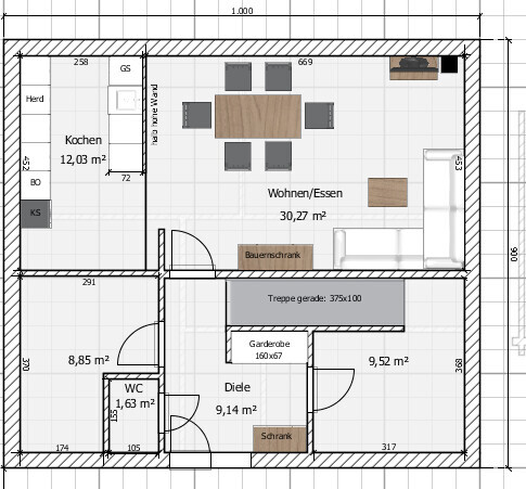
Meine Frau gefällt diese Enge nicht und hat sich nun auch auf die Suche gemacht und den Etos von KH gefunden. Ich habe es nachgezeichnet. Oben ist es wie immer kein Problem, unten müsste man schauen, wie man Arbeitszimmer, WC und Hauswirtschaftsraum verteilt. Der Wohnbereich hat übrigens über 42 m² und vielleicht kann das Treppenhaus auch noch was nach planunten.

Klar, gleich kommt wieder wer und sagt, dass der 10,85 Meter breit ist. Ist dann so .

2D-Grundriss eines Hauses mit Küche, Essbereich und Wohnzimmer


2D-Hausgrundriss mit Elternschlafzimmer, zwei Kinderschlafzimmer, Flur, Bad und Treppe.
 
kbt09

kbt09

Und, ist da jetzt echt mehr Platz? Und wer sagt, dass 120 cm Abstand sein müssen, ich schrieb von 100 cm. Ist viel praktischer, wenn Kochfeld und Spüle getrennt sind. Habe selber sogar nur 93 cm.

Also 60+100+70+15=245 cm ... bleiben 305 cm ... wovon der Tisch 180 cm einnimmt. Also noch 125 cm nach planrechts. Und, es ist zusammen, was zusammen gehört .. Essen und Kochen .
 
Zuletzt aktualisiert 24.12.2025
Im Forum Grundrissplanung / Grundstücksplanung gibt es 2555 Themen mit insgesamt 88581 Beiträgen


Ähnliche Themen zu auf welchen dieser Grundrisse können wir weiter aufbauen?
Nr.ErgebnisBeiträge
1Grundriss Einfamilienhaus ca. 140m² - Abtrennbares Treppenhaus - Seite 435
2Rollputz im Treppenhaus - wie auftragen? 20
3Licht in Treppenhaus bringen? 10
4Unterste Schubladen beim Ikea Pax Schrank einbauen 14
5Lichtleiste Komplement für Ikea Pax Schrank 10
6Ikea Pax Schrank 2 Meter breit, Schienen für Schiebetüren fehlen - Seite 211
7Kleiner weißer Ikea Schrank mit floraler Tür? 12
8Ikea Utrusta Hebe-Scharnier in Faktum Schrank einbauen - Seite 212
9Aktionen Ikea Pax Schrank - Seite 221
10Schuhe an der Terrasse; wohin damit? Wäre ein Schrank die Lösung? - Seite 228
11Idee Schlafzimmer - Bett / Schrank Anordnung 32
12IKEA Besta Schrank in sich schief - Was kann man tun? - Seite 211
13Schrank mit Luft-Wasser-Wärmepumpe, Wasserspeicher.. Kennt ihn jemand? 24
14Schrank für Hauswirtschaftsraum 21
15Schrank vor gedämmter Außenwand - Schimmelgefahr? 10
16IKEA Godmorgon Schrank - Wie kombinieren und befestigen? - Seite 1065
17Küche - fehlender Schrank - Einbehalt gerechtfertigt? 13
18Ikea Utrusta Scharnier am Schrank montieren, Montageanleitung - Seite 216

Oben