auf welchen dieser Grundrisse können wir weiter aufbauen?

5,00 Stern(e) 6 Votes
Zuletzt aktualisiert 22.11.2025
Sie befinden sich auf der Seite 24 der Diskussion zum Thema: auf welchen dieser Grundrisse können wir weiter aufbauen?
>> Zum 1. Beitrag <<

S

StanSch

Zur Fernsehabstands-Frage
OK, verstanden: die TV-Frage ist wirklich eine sehr individuelle Sache.

Für andere Sachen gibt es bei diesem Grundriss keine Lösung. Im EG sind Eingangsbereich, Diele und Esszimmer alles ungemütliche Schlauchzimmer.
Wo Katja "Schlauch" in den Grundriss geschrieben hat, sehe ich das weniger dramatisch.
So unterschiedlich können die Meinungen doch sein.
Ob der Essbereich nun tatsächlich schlauchig ist oder nicht ... kein Plan.
Aber im Eingangsbereich stimmt es schon und dieser Bereich zwischen Treppe und Hauswirtschaftsraum halt, Würde dieser denn immer noch schlauchig wirken, wenn man die Treppe um 180° dreht? Dann wird der Eingangsbereich doch größer.

Was stört dich denn sonst am Grundriss?

andererseits aber nur Reihenhäuser noch weniger Seitenfenster hätten, finde ich ebenso merkwürdig.
Stimmt schon!

Deine Kämmerchenmalerei ist nicht nur nicht hübsch, sondern auch tatsächlich nur vielleicht lesbar: sie läßt schwer erkennen, wo da nun die Innovation stecken soll. Also bleibt sie auch ohne Resonanz von mir.
Es ist der von @kaho674 , nur oben in soweit angepasst, dass das Schlafzimmer nicht mehr über dem Hauswirtschaftsraum und der Abstellraum nicht mehr auf der Südseite ist. Zusätzlich noch ein schmaler Flur zur Eingangsseite, um dort ein Fenster zu platzieren. Oder ist das Quatsch? Kann man auch ein Fenster oben im Treppenhaus machen ohne direkten Zugang? Wäre fürs Fensterputzen nicht so prickelnd, aber man kann nicht alles haben.
Im Moment haben wir im Wohnzimmer auch eine 5 Meter hohe Fensterfront ... Spaß macht das auch nicht, aber mit ner Leiter klappt das schon.
 
H

halmi

du findest also dass die genannten Punkte bei den zwei Grundrissen identisch sind? Der Zugang zum WC ist doch das absolut kleinste Problem an deinem Grundrissentwurf.

Evlt. brauchst du weniger eine Bauberatung als mehr einen Augenarzt
 
kaho674

kaho674

Hier noch die U-Treppen-Standard-Alternative zur Diskussion. TE kennt sie schon. Treppe wie immer kein Podest - Programmfehler.
Ziel war mehr Platz zum Wohnen unten.

Da der TE + Frau das Gegenteil einer Messi-Familie zu sein scheinen (man kommt zu zweit mit 3m Schrank aus und da ist noch Luft ), wurde der Stellplatz im Schlafzimmer auf 1 Schrank reduziert.


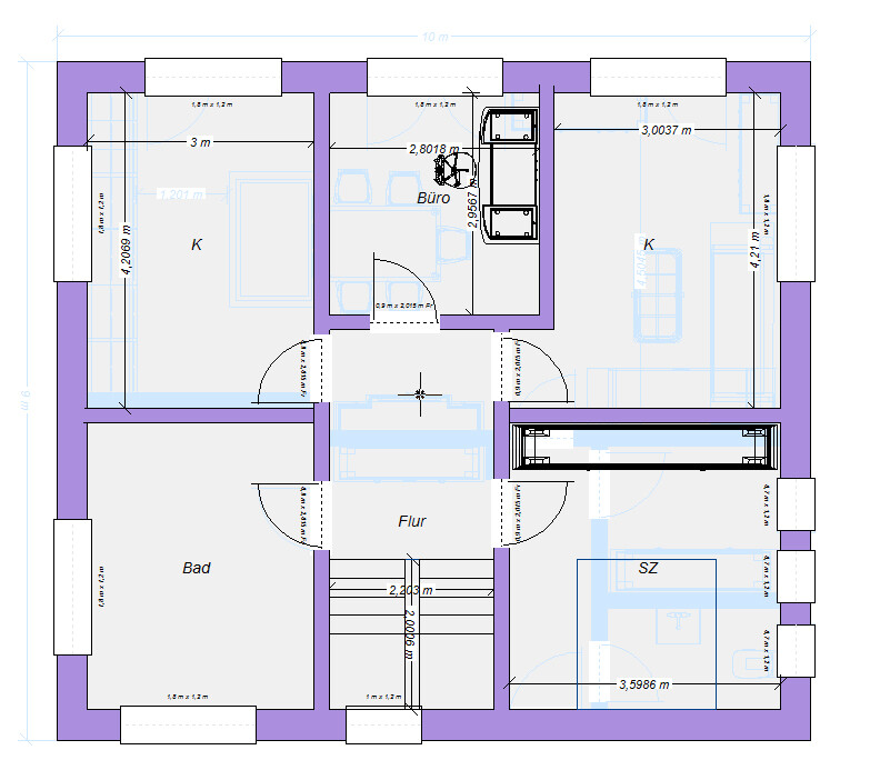
Grundriss eines Hauses mit Bad, Flur, SZ, Küche (K) und Büro.

Grundriss eines Wohn- und Arbeitsraums mit Tischgruppe, Möbeln, Türen, WC und Abstellraum.
 
Y

ypg

ob Schlauch oder nicht, hängt von den Maßen und Umständen ab. 3 Meter im Essbereich werden nicht schlauchig in der Optik, wenn dort an einer Wand Terrassenfenster liegen.
Garderobenflur ist nicht schwer: 60cm für den Hauptgarderoben-Schrank, ein Meter für den Gang. Wenn das nicht ist, dann belügt man sich selbst und man sollte das Papier zusammenknüllen.
Wenn man sich mal vom PC wegbewegt und nicht ständig mit Programmen arbeitet, die nicht vermaßen, sieht man das natürlich nicht. Ein Gefühl dafür bekommt man auch nicht so ohne weiteres.
Eine komfortable Treppe sollte mind. ein Meter missen. Dann muss der Flur 2 Meter sein. Putz kommt auch noch auf die Wände. Und wo kommt bei ner Betontreppe das Geländer hin? Wozu soll die Betontreppe hier gut sein? Der Vorteil einer Holztreppe ist, dass sie ohne Setzstufen transparenter erscheint, sodass man mehr Raum hat. Beton ist massiv, ist ein Klopper. Würde sich eher anbieten bei @kaho674 s Vorschlag am Eingang, 1/4 gewendelt.
Oder bei ganz anderen Treppenlagen. Die hier bekommst Du nicht mehr weg.

Das eine ist abhängig vom anderen. Wenn Du als Laie planst, solltest Du Engpässe vermeiden. 3 Meter werden selten drei Meter werden. Das gilt übrigens auch für den Garten. Man baut nicht, damit man überall an Ecken und Wänden hängen bleibt.
Bei Detailsplänen sollte man mal zum Fachmann gehen. Da geht es auch um Machbarkeit - nicht zuletzt sieht man, welche Fensterfront vom Laien und welche vom Fachmann kommt (siehe Deine Ansichten im Eingangspost und mein Anhang, wo ich günstige 160er Deiner „Signus-Stadtvilla“ verpasst habe)

Und mal ganz ehrlich: wer das Geld hat, sich einen Pool in den Garten zu stellen, der sollte auch mal ein paar Kröten für nen Fachmann locker machen können
 
Zuletzt aktualisiert 22.11.2025
Im Forum Grundrissplanung / Grundstücksplanung gibt es 2535 Themen mit insgesamt 87984 Beiträgen


Ähnliche Themen zu auf welchen dieser Grundrisse können wir weiter aufbauen?
Nr.ErgebnisBeiträge
1Idee Schlafzimmer - Bett / Schrank Anordnung 32
2Flur und Wohn-/Essbereich selben Bodenbelag? 50
3Schrank für Hauswirtschaftsraum 21
4Grundriss Bungalow 140qm - Anregungen? - Seite 293
5Hausanschlusssäule im Garten vs. Hausanschluss direkt im Hauswirtschaftsraum 35
6Extra-Bad vom Schlafzimmer oder doch Abstellraum? - Seite 329
7Parkett von Flur in Zimmer durchlegen - Seite 217
8Welcher Bodenbelag im Eingang/Flur? Wer hat Erfahrungen? Bilder? 14
9 2 Vollgeschosse, Durchgang Garage, Hauswirtschaftsraum unter Treppe 25
10Wasserbedarf Garten/Jahr --> Lohnt sich Zisterne? - Seite 953
11Technik / Hauswirtschaftsraum im OG Meinungen? - Seite 227
12Pfiffige Schlafzimmer Idee mit Ankleide gesucht 19
13Kleiner weißer Ikea Schrank mit floraler Tür? 12
14Schuhe an der Terrasse; wohin damit? Wäre ein Schrank die Lösung? - Seite 228
15Probleme bei der Flur-Möblierung, wer hat Ideen? - Seite 443
16Ikea Pax Hauswirtschaftsraum/Waschküche System? - Was habt ihr? 64
17Einrichtung Hauswirtschaftsraum - geeignete Schranksysteme 22
18Reicht der Hauswirtschaftsraum auch als Abstellkammer aus? - Seite 422
19Grundriss Schlafzimmer mit Bad und Ankleide 62
20Unser Grundriss, Wohn-Essbereich - Eure Meinung - Seite 216

Oben