Grundriss Stadtvilla 160qm - Bitte um Tipps!

4,30 Stern(e) 8 Votes
Zuletzt aktualisiert 11.01.2026
Sie befinden sich auf der Seite 34 der Diskussion zum Thema: Grundriss Stadtvilla 160qm - Bitte um Tipps!
>> Zum 1. Beitrag <<

B

Bauherrin92

Hallo zusammen,
zu später Stunde haben wir endlichen die Pläne bekommen. Und ich bin so genervt, dass (mal wieder) nicht alles was wir angemerkt haben, umgesetzt wurde. Fenster nicht angepasst, Öffnung Flur-Küche fehlt, keine Podesttreppe wie ausgemacht (!!!). Ich bin grad echt so sauer....die Kommunikation ist so schwierig. Aber ok, Samstag der nächste Termin, ich hoffe da wird uns etwas besser zugehört.

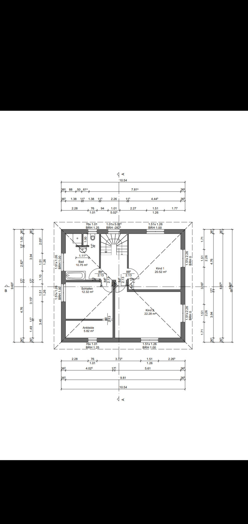
Wo seht ihr noch Optimierungsbedarf?

OG sind wir bis auf die Fenster zufrieden. Im Bad kommt das T weg.

Norden ist links. Garage kommt in den Westen (unten).

Grundriss eines Hauses: Treppenhaus in Mitte, Schlafzimmer, Ankleide, Bad, zwei Kinderzimmer.


Grundriss eines Hauses: Kellerräume, Haustechnik, Vorraum, Treppenhaus mit Maßangaben.


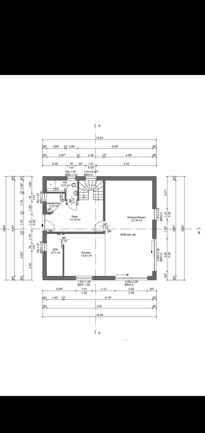
Grundriss eines Wohnhauses: Diele, Wohnzimmer, Küche, Speisekammer, Garderobe, WC, Treppe.
 
11ant

11ant

J

j.bautsch

auf die Badplanung würde ich noch mal ein Auge werfen. gerade gibt es einen schönen Thread wo plötzlich jemandem klar wurde das die dusche so sehr viel Bad unter Wasser setzen wird es sei denn man setzt eine Tür davor. guckst du hier
 
B

Bauherrin92

Noch eine Anmerkung: Die Garage kommt an die Westgrenze zum Nachbarn, 1.40m Abstand zum Haus, Haus berührt die östliche 3m Baugrenze, Haus 8m zur Straße, Garage 5m zur Straße (Norden)
 
Zuletzt aktualisiert 11.01.2026
Im Forum Grundrissplanung / Grundstücksplanung gibt es 2565 Themen mit insgesamt 88793 Beiträgen


Ähnliche Themen zu Grundriss Stadtvilla 160qm - Bitte um Tipps!
Nr.ErgebnisBeiträge
1Fenster im Gäste-WC/Gästezimmer trotz Garage möglich? 33
2Garage direkt an Einfamilienhaus. Fundament ausreichend? - Seite 220
3Grundriss mit Garage auf Grundstück realisierbar? - Seite 229
4Tür Haus/Garage: Nebeneingangstür als Brandschutztür? 27
5Welche Fenster und Türen empfehlenswert? 21
6Bau Garage auf Grenze geht lt. Architekt nicht. - Seite 211
7Grundriss Einfamilienhaus mit Garage, eigenplanung 17
8Aufmusterung Elektro, Q2, Badfliesen, Drempel, bodentiefe Fenster - Seite 223
9Lage von Haus & Garage im Baufenster planen *Vorplanung* - Seite 15129
10Grundrissplanungen Einfamilienhaus und Garage - Seite 232
11Haus, Garage / Carport auf dem Grundstück platzieren - Seite 493
12Stadtvilla 160-170 m², Problematik Anschluss Windfang mit Garage - Seite 332
13Grundrissplanung Einfamilienhaus (190 qm) mit Garage - Seite 218
14Einfamilienhaus mit Garage am leichten Hang - Seite 217
15Angebot Baukosten gerechtfertigt - gemauerte Garage 9x6 m 14
16hoher und beheizter Sport-Raum neben der Garage? - Ideen gesucht - Seite 656
17Öffnungsmöglichkeit der Fenster mit Kontrollierte-Wohnraumlüftung - Ideen zur Planung - Seite 1060
18Holzdecke und Teilisolierung für Keller mit Garage - Seite 215
19Grundrissplanung für eine Stadtvilla mit Garage 46
20Hauswirtschaftsraum Raum ohne Fenster - Lüftungsanlage ausreichend? 26

Oben