Stadtvilla 160-170 m², Problematik Anschluss Windfang mit Garage

4,50 Stern(e) 4 Votes
Zuletzt aktualisiert 27.11.2025
Sie befinden sich auf der Seite 3 der Diskussion zum Thema: Stadtvilla 160-170 m², Problematik Anschluss Windfang mit Garage
>> Zum 1. Beitrag <<

kbt09

kbt09

hm .... hmm ... weiß man gar nicht so recht, wie man anfangen soll.

  • Garage
    wie sollen die Fahrräder in den Fahrradabstellbereich kommen?
  • "Windfang" und Diele ... Garderobenplatz? Nirgendwo passen 60 cm tiefe Schränke, ok, unter der Treppe ... aber warum den Windfang? Warum nicht einfach nur Überdachung oder so, dann können da auch die Fahrräder in den Garagenanbau geschoben werden.
  • Küche 17 qm .. aber Arbeitsfläche wie in einer 6 qm Küche, warum muss da z. B. planlinks noch die Terrassentür Richtung Garage sein?
    Tisch in Küche steht im Durchgang zum Esszimmer.
  • Wohnbereich .. Sofa direkt vor bodentiefem Fenster ... warum?
  • Gäste/Arbeiten haben insgesamt genausoviel qm wie die beiden Kinderzimmer. 275 cm .. mein Gott, da ein 140er Jugendbett und daneben ist kaum noch Platz.
  • Eltern fast 24 qm .. aber in der Ankleide ungünstige Fensterpositionierung, dadurch keine 2 Schrankreihen durchgehend möglich, Eingang in Schlafbereich neben dem Kopfteil vom Bett
  • 14 qm Bad und gleich am Eingang mal eine Engstelle durch Schamwände
Gedanken zu 1 bis 2 m Hausverlängerung .. da dürfte dann das Budget eng werden.
 
C

Crossy

Ich hab jetzt nichts dazu gefunden, aber sind denn tatsächlich 3 Kinder geplant. Wenn nicht find ich 2x Gast bzw. Arbeiten Platzverschwendung. Würde die Situation oben auch merklich entspannen.

Ich kann in vielen Punkten kbt nur zustimmen.

Kinderzimmer sind furchtbar schmal. da würde ich mindestens mit 3 m planen
Fenster in der Ankleide zerstört euch die Möglichkeit einer großzügigen Möblierung
Kopfteil neben Tür finde ich sehr ungemütlich
Bad größer als Kinderzimmer. Sowas versteh ich nicht.
Ich würd die Küche zum EZ öffnen und mir einen zweiten Essplatz sparen. Tisch dann um 90 Grad drehen, dass gibt schon etwas mehr Platz.
Ich würde die Küche so ändern, dass ich einen 2 Zeiler mit Halbinsel stellen kann. (Also kleine Terrassentür zur Garage streichen und lange Fensterfront zum Garten aufteilen, sodass eine Halbinsel gestellt werden kann.)
Überlegt wirklich wo die Garderobe hinkommen soll.

Und was veranschlagt der GU denn für den Entwurf? Deine Änderungswünsche sind ja Minimum 20 qm mehr. Das wird ordentlich kosten.
 
11ant

11ant

Wenn das Auto wirklich ein vorwärts eingeparkter Linkslenker ist, ist der Durchgang zu den Fahrrädern auf der falschen Seite und derjenige zum Haus ebenso. Bzw. bei rückwärts eingeparktem Auto ist das Tor zu schmal, selbst für nichtblonde Männer

Nordkind und Gast würde ich tauschen. Zwei Gästezimmer, zwei Essplätze: da würde ich eher an dieser Stelle das Konzept klären, als dem Haus einen Meter anzustückeln.
 
Y

ypg

Andererseits sind ja nur zwei Vollgeschosse erlaubt. Wie groß dürfte in diesem Gedankenspiel ein Dachausbau denn sein, um keine Probleme beim Bauantrag zu bekommen?
Ein Dachausbau wird hier kein Vollgeschoss.
Ist denn die maximale Haushöhe definiert?

Könnte man unter Berücksichtigung der Dachschrägen und der Grundfläche überhaupt ein/zwei brauchbare Räume realisieren?
Das kannst Du Dir selbst zeichnen, wenn Du mit Karopapier den Schnitt zeichnest.

Ich würd unten im EG erst mal aufräumen.
Der Windfang ist als Windfang völlig über.
Entweder er wird zur Garage zugeschlagen oder er bleibt in der thermischen Hülle und würd zum Hauswirtschaftsraum.
So wie jetzt ist er jedenfalls unnötiger Kostenfresser.
Küche genauso. Hat Kerstin ja schon alles aufgezählt.
Mehr Küchenzeilen hatte ich in meiner Mietwohnung und auch im Reihenhaus. Für die Küche 17qm zu veranschlagen, ist mehr als dekadent, zumindest für den eingezeichneten „Nutzen“.
Eine Hausvergrösserung entzerrt zwar mistige Grundrisse, reißt aber die Finanzierung nach unten.
Mein Vorschlag:
Hauswirtschaftsraum in diesen Windfang. Den dann nach hinten schieben.
Eingang ist Eingang. Im NO-O Gast und WC, dann bleibt O-W für den Allraum.

Bad im OG auf normale 10qm bringen.
Die Verlängerung der Treppenwand bringt mehr negatives als Gewinn.
 
H

Hemingway84

Wir sind in der Planung wieder einen Schritt weiter und haben dabei eure Anmerkungen z.T. mit in den Grundriss einmassiert. Der Windfang ist erst mal gestrichen. Bei der Garage steht noch im Raum eine durchgehende Überdachung zum Haus herzustellen. Mal schauen. Einige Kleinigkeiten sind noch nicht stimmig, z. B. Fenstergrößen. Aber das sollte sich die Tage glattziehen lassen. Anmerkungen wie immer gern willkommen .

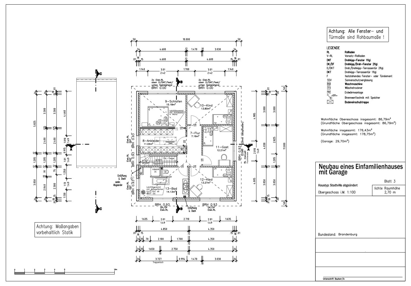
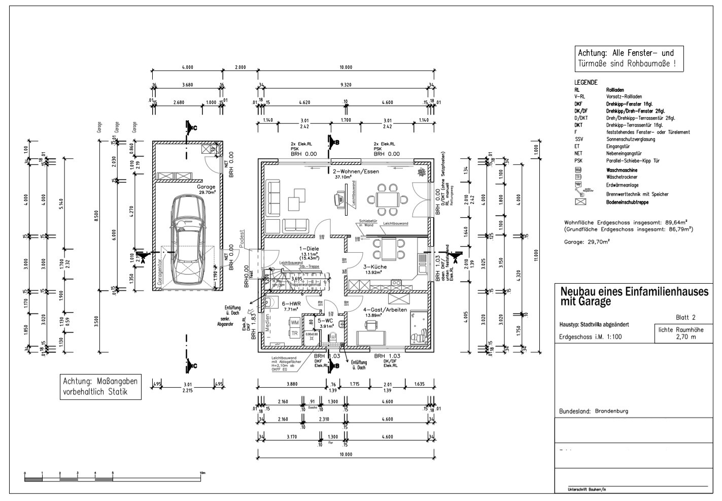
Grundriss eines Einfamilienhauses mit Garage, Wohn-/Essbereich, Küche


Grundriss eines Einfamilienhauses mit Garage und detaillierten Maßangaben.


Technische Zeichnung: Schnitt A-A und B-B eines Einfamilienhauses mit Garage, Maße sichtbar


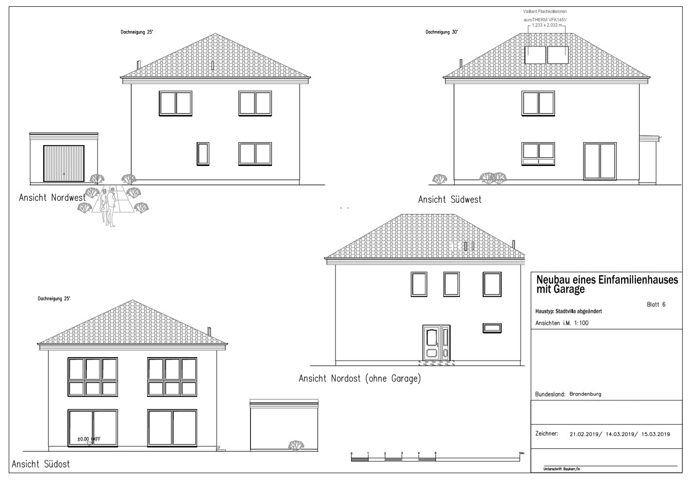
Architekturplan: Neubau eines Einfamilienhauses mit Garage; Ansichten Nordost/Südwest.


Neubau eines Einfamilienhauses mit Garage; Architektenplan mit vier Gebäudeseiten
 
C

Curly

Die Wohnzimmertür wird immer im Weg sein, wenn sie offen steht kommt man kaum zwischen Esstisch und Couch durch. Ich persönlich finde den Wohnraum auch zu klein um den Fernseher als Raumteiler aufzustellen.

LG
Sabine
 
Zuletzt aktualisiert 27.11.2025
Im Forum Grundrissplanung / Grundstücksplanung gibt es 2536 Themen mit insgesamt 88018 Beiträgen


Ähnliche Themen zu Stadtvilla 160-170 m², Problematik Anschluss Windfang mit Garage
Nr.ErgebnisBeiträge
1 2 Vollgeschosse, Durchgang Garage, Hauswirtschaftsraum unter Treppe 25
2Grundrissbeurteilung mit Ansichten 17
3Grundrissplanungen Einfamilienhaus und Garage - Seite 232
4Grundrissplanung Einfamilienhaus (190 qm) mit Garage - Seite 218
5Grundriss Bungalow 150qm geschlossene Küche, überdachte Terrasse 40
6Einfamilienhaus-Grundriss 170 qm für 4 Personen mit Garage 20
7Grundriss 3 Kinderzimmer Einfamilienhaus - Potenziale? 43
8Umbau geschlossene in Offene Küche 15
9Hanghaus 235 qm mit Garage im Keller auf 3600 qm Grundstück 15
10Entwurf Einfamilienhaus mit 3 Kinderzimmer, Keller und Grenzbebauung 32
11 Küchenplanung mit tiefen Fenster - Seite 643
12Fenster im Gäste-WC/Gästezimmer trotz Garage möglich? 33
13Umbau Kinderzimmer - Fenster in zwei Fenster aufteilen? 20
14Terrassentür ungleich Fenster, oder? 21
15Geschlossene oder offene Küche ? 11
16Bungalow mit 140qm und Garage im Grundriss 13
17Entwurf Einfamilienhaus mit Garage/Carport - bitte um Bewertung 22
18Haus ohne Garage und Keller? Ausbau Dachboden? Fresswarze? - Seite 585
19Grundriss Einfamilienhaus mit Garage 18
20Grundstück - Baufenster - Lage von Haus und Garage 44

Oben