Grundriss Stadtvilla 160qm - Bitte um Tipps!

4,30 Stern(e) 8 Votes
Zuletzt aktualisiert 22.11.2025
Sie befinden sich auf der Seite 25 der Diskussion zum Thema: Grundriss Stadtvilla 160qm - Bitte um Tipps!
>> Zum 1. Beitrag <<

kaho674

kaho674

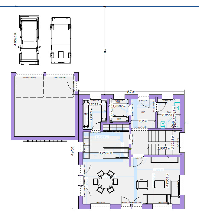
Update :
Ich würde die 8m bis zur Straße Abstand wählen. Dazu Hauseingangsüberdachung bis zu Garage. Fenster der Küche so gerade noch frei.
Im OG jetzt Tür- / Wandabstände maximal ausgereizt, damit genug Platz für's Bett ist.


Grundriss eines Hauses: Wohn-/Essbereich, Küche, Schlafzimmer, Bad, Treppen, Außenparkplätze.


Grundriss eines Hauses: mehrere Zimmer, Türen, Möbel und Maßangaben.


Zweistöckiges graues Haus mit Flachdach-Anbau, vielen Fensterfronten; blauer PKW steht auf Gras.


Kamin wäre noch ein Problem.
 
kbt09

kbt09

... @kaho674 ... Katja ... echt klasse, wie du dich immer wieder einbringst.

Was ich als TE mal überlegen würde ... Keller ja, aber, was soll da untergebracht werden? Gartenmöbel? Rasenmäher usw? .. Außenzugang?

Was ist mit Fahrrädern? Die Garage bietet dafür keinen Platz.
 
kaho674

kaho674

Is Quark. Ich sehe kaum einen Vorteil von #145, gegenüber dem Ausgangsentwurf. Ich würde bei #1 in Garderobe, Speisekammer und Ankleide die Fenster korrigieren, damit man ordentliche Schränke stellen kann und dann ist der vermutlich das, was Ihr wollt.
 
B

Bauherrin92

Dazu Hauseingangsüberdachung bis zu Garage
Die Garagentüre würde ich nach hinten zum Garten setzen, hat so keinen Mehrwert wenn direkt daneben das Garagentor ist wo ich rausgehen kann.

Die Kinderzimmer sind ja richtig klein, hmm...muss ich zeichnen sobald ich dazu komme.

Keller ja, aber, was soll da untergebracht werden? Gartenmöbel? Rasenmäher usw? .. Außenzugang?


Was ist mit Fahrrädern? Die Garage bietet dafür keinen Platz.
Gartenhäuschen, Keller, ....
Außenzugang ist ja eher Luxus, nicht zwingend notwendig.

Is Quark. Ich sehe kaum einen Vorteil von #145, gegenüber dem Ausgangsentwurf.
Wieso Quark? Was würdest du denn anders/besser machen? (Ohne den Stil zu verändern wie beim letzten Entwurf)
 
B

Bauherrin92

Die Geschosshöhe ist die Höhe, die die Treppe überwinden muss. Da ist neben der Raumhöhe auch sowas wie Decke und Fußbodenaufbau dabei. Letztere liegen meist bei roundabout 30cm Höhe + lichte Raumhöhe = irgendwas um die 2,90m Geschosshöhe. Ansonsten müsstest Du die von den 2,63 abziehen und die Raumhöhe wäre nur 2,30m.
Bei uns steht: 2,63 m Rohbau-Raumhöhe

Ich würde ja eher die Küche im Osten lassen.
Die Küche ist Wurst mir gehts um das Esszimmer das im Westen sein soll.
 
kbt09

kbt09

Keller ja, aber, was soll da untergebracht werden? Gartenmöbel? Rasenmäher usw? .. Außenzugang?

Was ist mit Fahrrädern? Die Garage bietet dafür keinen Platz.
Und du antwortest:
Gartenhäuschen, Keller, ....
Außenzugang ist ja eher Luxus, nicht zwingend notwendig.
Ja, was soll denn nun in den Keller ... und, ist dir der Transportweg klar? Und was soll in ein wostehendes Gartenhäuschen?
 
Zuletzt aktualisiert 22.11.2025
Im Forum Grundrissplanung / Grundstücksplanung gibt es 2535 Themen mit insgesamt 87992 Beiträgen


Ähnliche Themen zu Grundriss Stadtvilla 160qm - Bitte um Tipps!
Nr.ErgebnisBeiträge
1Grundriss Einfamilienhaus 136m² mit Garage & Keller 17
2Einfamilienhaus mit >180qm / Keller / Garage 68
3Holzdecke und Teilisolierung für Keller mit Garage 15
4Einfamilienhaus 2 Stockwerke ohne Keller -Grundriss -Kosten -Umsetzbarkeit? 24
5Grundriss Einfamilienhaus, ca. 200qm ohne Keller - Einschätzung - Seite 23172
6Grundstück - Baufenster - Lage von Haus und Garage - Seite 644
7Einfamilienhaus ohne Keller - Diskussion Grundriss 19
8Grundrissplanung Stadtvilla Neubau mit Keller 36
9Grundrissentwurf Stadtvilla mit Keller Verbesserungsvorschlag? - Seite 677
10Grundrissplanung für eine Stadtvilla mit Garage 46
11Grundriss Einfamilienhaus 2 Vollgeschosse +Keller ca. 130m² Wohnfläche 30
12Grundriss Einfamilienhaus 154m2 + Keller in Hanglage 40
13Erstes Angebot, 157m2 mit Keller, KFW 70, Garage 14
14Keller oder Garage, oder Keller mit integrierter Garage - Seite 214
15Bauen ohne Keller - Carport, Garage? 18
16Hanghaus 235 qm mit Garage im Keller auf 3600 qm Grundstück 15
17Grundriss für Einfamilienhaus mit 200m² mit Einliegerwohnung 75 +Keller 140m² +Garage 56m² 59
18Grundriss Einfamilienhaus mit Keller und Garage - Seite 950
19Kostenschätzung m2 Wohnfläche Hanghaus mit Keller und Garage - Seite 387
20Fenster im Gäste-WC/Gästezimmer trotz Garage möglich? 33

Oben