Grundriss eines barrierefreien Bungalow

4,70 Stern(e) 6 Votes
Zuletzt aktualisiert 22.11.2025
Sie befinden sich auf der Seite 15 der Diskussion zum Thema: Grundriss eines barrierefreien Bungalow
>> Zum 1. Beitrag <<

kbt09

kbt09

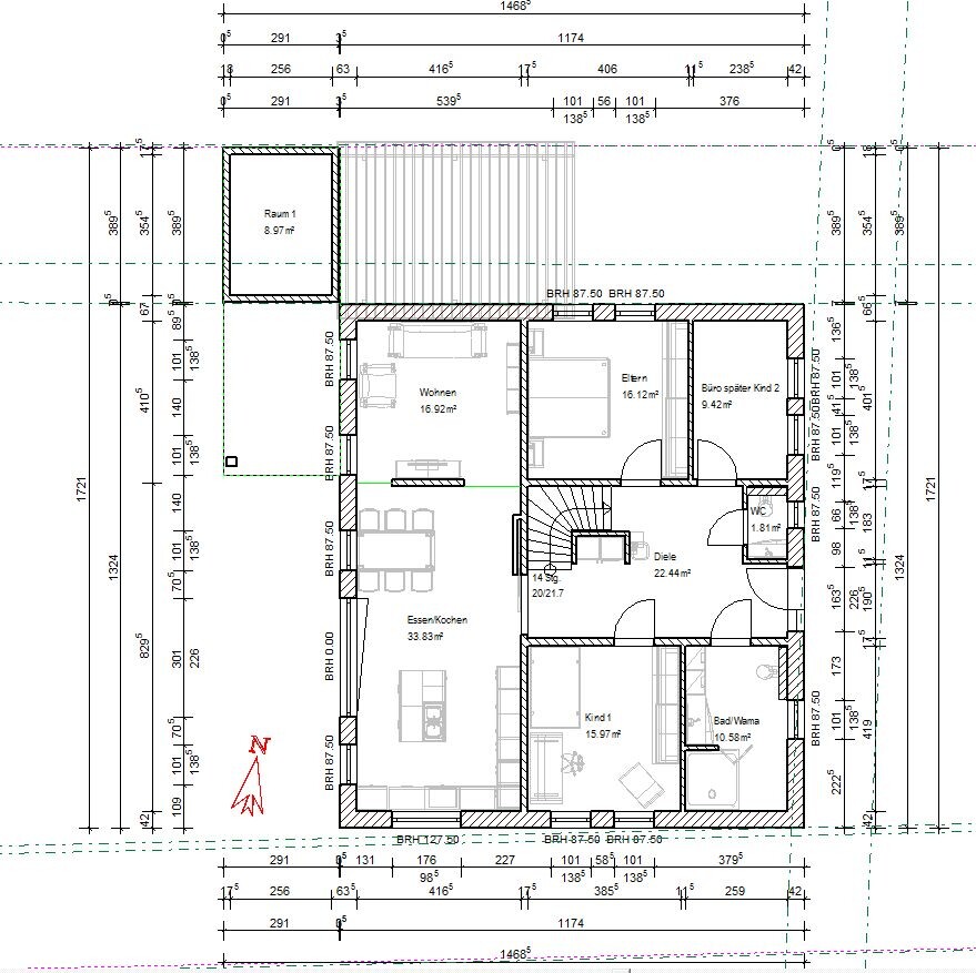
Na .. da bin ich mal wieder und stelle mal ein anderes Konzept vor .

Der Hausvorschlag in Beitrag 24 hat aktuell
138 qm Wohnfläche bei 164 qm Bruttogrundfläche

Mein Vorschlag wird im EG 127 qm Wohnfläche bei 156 qm Bruttogrundfläche haben, was den Preis senken sollte. Des Weiteren verzichte ich auf den Winkel vom Bungalow, was die Dachkonstruktion vereinfachen und damit auch noch günstiger werden lassen sollte.

Da ich den Angaben nicht entnehmen konnte, ob Walmdach vorgeschrieben ist, habe ich Walmdach mit 35° Dachneigung gewählt, persönlich würde ich wohl eher ein Satteldach bevorzugen.

Grundsätzlich würde ich eine Raumspartreppe, also eher nicht ideale Steigung und Auftritt fest mit einplanen.

Weitere Voraussetzung: Heizung und Anschlüsse in den Dachboden ... weiß nicht, ob das so gut geht, hat man aber schon öfter gelesen.

Im EG könnte man dann:
  • Schlafzimmer mit Platz für bis zu 4 m Kleiderschrank
  • Kind 1- Zimmer Richtung Süden
  • Großes Bad, wo auch Waschmaschine/Trockner unterkommen können
  • einen großen gradlinigen Wohn/Ess/Kochbereich mit direktem geradem Terrassenzugang und ausreichend Bewegungsflächen für Rollstuhl
  • Gäste-WC
  • Rollstuhlparkplatz unter der Treppe
  • Multifunktionszimmer unterbringen.
DG würde ich vorbereiten mit:
  • Abtrennung zu Stauraum
  • Abtrennung zu Bad und hier wenigstens aktuell WC und Waschbecken einplanen. Evtl. später mal eine Badewanne
  • Abtrennung Technik
  • Bereich um die Treppe könnte zunächst alles offen bleiben
Multifunktionszimmer im EG?? Da stelle ich mir vor, dass es aktuell erst mal als Arbeitszimmer dient. Ist dann Kind 2 unterwegs, kann das DG zum Büro umgearbeitet werden und das Kind 2 im Multifunktionszimmer im EG unterkommen. Ist Kind 2 dann so 8 bis 10 Jahre alt, wird das Zimmer evtl. zu klein, Kind 2 könnte dann ins DG hochwandern und das Büro wandert wieder in das Multifunktionszimmer.

Zieht Kind 2 irgendwann aus, dann kann das DG entweder Gästezimmer, auch für Kind 2 und evtl. Familie werden. Es ist aber auch vorstellbar, dass Kind 1 immer noch zuhause lebt und vielleicht auch etwas erwachsener leben möchte. Man könnte dann (das wird ja frühestens in ca. 20 Jahren sein) überlegen, die Treppe doch durch einen Homelift wie Climbee schon schrieb zu ersetzen (kein Treppenlift) und Kind 1 einen Wohnbereich unter dem Dach geben. Den Badbereich dort dann so umarbeiten, dass wenigstens WC-Nutzung mit Rollstuhl möglich ist. Aber, dieser letzte Akt ist schon sehr weite Zukunftsmusik.

Generell denke ich, dass so die von mir verplanten Zimmer (bis auf Gäste-WC alle mit 101 cm Türen, zum Wohnbereich sogar 150 cm), alle gut erreichbar sind. im Hauptaufenthaltsbereich Essen/Kochen/Wohnen gibt es gerade klare Durchgangsbereiche, die ausreichend breit sind.

Das DG bietet im Norden Platz für weiteren Stauraum (Jahreszeiten-Deko, Winter- Sommerzubehör usw.).

Carport etwas weiter zurückgesetzt, Anbau dazu bildet den Terrassenwinkel.

Insgesamt müßte man mit genauer Grundstücksvermaßung feststellen, wie weit man das Haus von der Straße wegsetzen muss. Ideal wäre nur 3 m.

Vielleicht muss man die bisherigen Prämissen noch mal durchdenken.


Grundriss eines Einfamilienhauses mit Wohnen, Essen/Kochen, Eltern- und Kinderzimmer, Diele, Bad, WC.

Grundriss eines Hauses: zentrale Diele, Treppe, Bad, Raum3, Raum4, Technik, Maßlinien, Nordpfeil


Top-Ansicht eines Hauses: offener Wohn-/Essbereich, Küche, Treppen, Schlafzimmer, Terrasse


Vogelperspektive eines Wohnungsgrundrisses: Wohnzimmer links, Küche unten, Schlafzimmer oben, Treppe


Weißes Einfamilienhaus mit dunklem Satteldach, Dachfenstern und Glas-Schiebetür auf grünem Rasen.


Großes Haus mit dunklem Satteldach, Dachfenstern, grauer Fassade und Carport auf grünem Rasen.
 
Nordlys

Nordlys

Der Plan ist ganz gut. Zur Optik, ich nähme die Seiten des Walmdaches steiler, damit das Dach gestreckter wirkt, nicht so spitzhaubig. Das Haus sollte nicht allzu teuer zu bauen sein. Ob man oben gleich soweit geht oder es erst mal mit nem kleinen Flur und Abtrennung kalt zu warm belässt, entscheidet das Portemonnaie. Über einige Türöffnungen könnte man diskutieren. Ist auch ein wenig Ansichtssache. Natürlich ist dieser Bungalow schlichter in der Anmutung, aber egal, you get what you pay for. Dieses Modell müsste für unter 200 mit Treppe und Vorflur oben hinstellbar sein, schlüsselfertig, ohne Malen und Böden, aber gefliest in Flur. Der Preis, kein Hauswirtschaftsraum, die Waschmaschine muss ins Bad, die Technik auf den Boden.

Ich stell dazu mal unseren ein. Den müsste man jedoch von 13,5 mal 10.00 auf 14 mal 10.50 pumpen, um mehr Platz im Flur und mehr Kinderzimmer zu kriegen.
Karsten
Grundriss eines Hauses mit Wohnzimmer, Küche, Schlafzimmer, Büro, Bad, WC, Flur, HWR.
 
H

haydee

Grundriss gefällt mir besser.
Bad funktioniert nicht, Kinderzimmer könnte funktionieren.

Zizzi schaut mal bei Nullbarriere und barrierefrei wohnen vorbei. Da stehen alle notwendigen Mindestabstände und zeichnet die zusammen mit der tatsächlichen Möblierung in euren Plan ein
 
11ant

11ant

Da ich den Angaben nicht entnehmen konnte, ob Walmdach vorgeschrieben ist, habe ich Walmdach mit 35° Dachneigung gewählt, persönlich würde ich wohl eher ein Satteldach bevorzugen.
In den Ansichten und dem DG-Grundriss kann man sehr schön sehen, wie viel mehr Steilheit beim Walmdach nötig ist, um trotz der Neigung auch der "Giebelseiten" im OG noch brauchbare Geschossfläche zusammenzubekommen.
 
Zuletzt aktualisiert 22.11.2025
Im Forum Grundrissplanung / Grundstücksplanung gibt es 2535 Themen mit insgesamt 87984 Beiträgen


Ähnliche Themen zu Grundriss eines barrierefreien Bungalow
Nr.ErgebnisBeiträge
1Grundriss Bungalow 140 qm (Walmdach) 34
2Planung Gäste-WC im Neubau - Wie groß muss es sein? (DIN?) - Seite 14107
3Bungalow 148m² Grundstücksplanung / Grundrissplanung - Seite 45280
4Grundriss Bungalow - Was gibt es zu beachten? - Seite 8164
5Grundrissplanung Bungalow 170qm 40
6Grundriss Bungalow 150m² - Meinungen erwünscht - Seite 430
7Stadtvilla mit gerader Treppe, offene moderne Bauweise, 140m² 18
8Grundrissfinalisierung Bungalow 130m² für 4 Personen - Seite 9199
9Grundriss Neubau Bungalow 100 qm 46
10Grundriss Bungalow ca. 135m² Eure Meinungen? 45
11Grundriss Bungalow mit 140 qm - passt der Stauraum? 175
12Grundriss Bungalow 160qm - Ihre Einschätzungen? 15
13Planung Einfamilienhaus in Norden NRW´s - Meinungen zur Planung gewünscht... - Seite 213
14Grundriss-Vergleich Aura und Signum 10
15WC-Fenster Gäste-WC neben der Eingangstür - inzwischen nogo? 44
16Gäste-WC: Decke abhängen oder Rohr verkleiden? - Seite 216
17Einfamilienhaus - Kapitänshaus - 150m² - Neubau - Tipps benötigt 20
18Welchen Fertighaus-Anbieter - Preise, Erfahrungen? - Seite 21212
19Lichtanschluss falsche Stelle Gäste-WC 29
20Grundrissoptimierung Stadtvilla + Aufschüttüberlegung - Seite 1341277

Oben