Grundriss eines barrierefreien Bungalow

4,70 Stern(e) 6 Votes
Zuletzt aktualisiert 24.11.2025
Sie befinden sich auf der Seite 25 der Diskussion zum Thema: Grundriss eines barrierefreien Bungalow
>> Zum 1. Beitrag <<

Z

zizzi

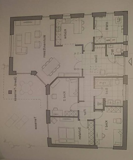
Zu Grundriss, der dir gefällt --- mal gedreht, so dass Norden planoben ist, wie die anderen Grundrisse in Beitrag 141.:
Anhang anzeigen 17010

Ich fürchte, das Haus ist noch breiter als 13,74 m und passt dann mit einem behindertemgerechten Carport überhaupt nicht mehr.

Zu dem angepaßten GU-Grundriss ...
Das Wohnzimmer immer schrecklicher, Möblierung gar nicht angepasst.
Ansonsten werden im behindertengerechtem Kinderzimmer durch die neue Eingangssituation unnötige und hinderliche Ecken geschaffen.
--------------------------

Warum muss es denn unbedingt ein Winkelbungalow werden?
Ich denke, W-Bungalow mir 130 qm und 2 KZ, 1 EZ und 1 GZ passt besser, weil jedes Zimmer soll ein Fenster haben und beim viereckige Bungalow gibt's zu wenig Außenwände.
 
Y

ypg

Ich denke, W-Bungalow mir 130 qm und 2 KZ, 1 EZ und 1 GZ passt besser, weil jedes Zimmer soll ein Fenster haben und beim viereckige Bungalow gibt's zu wenig Außenwände.
Ich hab noch keinen rechteckigen Bungalow gesehen, wo ein Raum _kein_ Zimmer hatte. Außer es ist ein ü 259qm-Bungalow, wo dann mal ein Abstellraum kein Fenster hat.
Du versteifst Dich auf das Non-Perfekte. Sicher: die Randbedingungen sind keinesfalls ideal, aber die Vorschläge von Kerstin (@kbt09) ergeben mehr Sinn und Lebensqualität als dieser Winkelbungalow in allen Facetten.
Wenn Du eine Nische auf der Terrasse haben willst, dann nehme einen Sichtschutzzaun.
 
Climbee

Climbee

Ich denke, W-Bungalow mir 130 qm und 2 KZ, 1 EZ und 1 GZ passt besser, weil jedes Zimmer soll ein Fenster haben und beim viereckige Bungalow gibt's zu wenig Außenwände.

Einen größeren Schwachsinn habe ich ja noch nie gehört oder gelesen...
Wie kommst du da darauf? Die meisten Häuser sind rechteckig und i.d.R., wenn sie freistehend sind, hat auch jedes Zimmer seine) Fenster.

Ich bin jetzt mal etwas provokativ, aber vielleicht hilft es:

Bis jetzt ist die Frage, warum es ein Winkelbungalow werden MUSS, immer noch nicht beantwortet worden.
Im Prinzip gibt es keine Gründe, die zwingend dafür sprechen, ganz im Gegenteil:
Jede Ecke mehr kostet auch mehr. Also: ein rechtwinkliger Bungalow mit gleicher Grundfläche ist billiger als ein Winkelbungalow. Nochmal sparen kann man, wenn man die Grundfläche verkleinert und auf 2 Geschosse geht.
Gerade wenn es ein barrierefreies, behindertengerechtes Haus werden soll, sollte man jede Ecke, jeden Winkel vermeiden (und jede Wand, die man nicht zwingend braucht), ein Winkelbungalow hat da schon mal mehr als nötig. Warum an dieser Hausform fest halten wenn die Maßgabe doch behindertengerecht ist?

kbt hat einen in meinen Augen (und da steh ich nicht allein da) sehr guten, praktikablen Vorschlag gemacht. Wenn ich mich recht erinnere, bist du nicht einmal ansatzweise darauf eingegangen. Egal... geht ich jetzt nicht weiter darauf ein. Du bist mit einer weiteren Variante des suboptimalen Winkelbungalows gekommen.

Beratungsresistent, würde ich mal sagen...

Du hast auch bei Reha-Kids nach Meinungen zu dem Bungalow gefragt, daher weiß ich, daß dein Sohn den Rolli nicht allein steuern kann und das dies auch in Zukunft nicht sicher ist. Ggf. kann er das mal mit einigen Einschränkungen aber ein versierter Rollifahrer wird er wohl nicht werden. Heißt: gerade so jemand braucht möglichst gerade und ausreichend breite "Fahrbahnen". Gerade und Winkelbungalow... tja, sei ehrlich, das paßt einfach nicht.

Ich sag es jetzt mal frank und frei: Ihr habt euch in den Winkelbungalow verbissen, das ist euer Wunsch. Leider habt ihr ein behindertes Kind und jetzt muß der Wunschtraum passend gemacht werden.
Das wird immer eine Kompromisslösung sein.

Ich mache euch das nicht zum Vorwurf, wirklich nicht. Man gibt viel Geld für das eigene Haus aus, da sollte man schon auch seine Träume verwirklichen. Aber dann sei bitte ehrlich und sage klar: wir wollen einen Winkelbungalow, weil uns das so gut gefällt. Wir wollen das Haus nach unseren Vorstellungen aber bestmöglich behindertengerecht planen.
Das ist ok. Ihr seid nicht nur Eltern eines behinderten Kindes, sondern auch ein Paar mit eigenen Wünschen und Vorstellungen und dazu habt ihr jedes Recht.
Aber dann hätte kbt sich nicht die Zeit nehmen müssen um einen guten Vorschlag zu erarbeiten, der ja eh nie die Chance hat, weil eben nicht euer Traumhaus.

Ich würde mir wirklich wünschen, daß Du hier eine klare Aussage machst, denn sonst wird das hier zur Farce.

Entweder ihr wollt in erster Linie ein Haus für euren Sohn bauen; behindertengerecht und für die nächsten 20 Jahre passend. Dann verabschiedet euch von dem Winkelbungalow und schaut euch kbts Entwurf noch mal an.

Oder seid so ehrlich und sagt: wir wünschen uns einen Winkelbungalow, weil uns das so sehr gefällt. Der soll bestmöglich an die Bedürfnisse unseres behinderten Sohnes angepaßt sein, bitte helft uns dabei.
Das ist eine klare Aussage und völlig ok, aber es ist halt kein Haus mehr, daß als oberste Prämisse "behindertengerecht" ist.
 
11ant

11ant

Einen größeren Schwachsinn habe ich ja noch nie gehört oder gelesen...
Schwachsinn, na ja, sagen wir: Milchmädchenlogik. Ein L-Grundriss hat gegenüber einem Rechteckgrundriss mehr Umfassungswände, ja, und damit mehr Wände für Fenster, soweit klar. Aber jede Medaille hat zwei Seiten: da, wo dadurch mehr Haustiefe entsteht, kommt es dadurch auch zu nicht in voller Tiefe durchlichteten Räumen. Per Saldo ist das gehüpft wie gesprungen, also für den "Prinzipvorteil" neutral.

Was man beim L-Grundriss jedoch garantiert "mehr" bekommt, ist ein teureres Dach. Meist gleich doppelt, wenn man es aus Optikgründen als Walmdach nehmen will. Walmdach L statt Satteldach über Rechteck kostet etwa so viel mehr wie auf die Fläche von Arbeitszimmer und Kind 2 an Baukosten entfällt, nur mal so ins Verhältnis gesetzt. Das holt man mit Eigenleistung beim Carport nicht wieder herein.
 
Nordlys

Nordlys

Ich hab da schon länger nichts mehr zu gesagt. Und der Parallelentwurf kbt ist echt ok. Aber ichnhabe schon verstanden, dass es L Form sein soll. Das ist eben gesetzt. Ich mach mein Ding, egal was die andern labern. Lindenberg. Ok, steh dazu und nimm dessen Nachteile bewusst in Kauf. Behindertengerecht kriegt man auch den Winkel. Nurver wird bestimmt teurer. Klar teurer. Welchen Kompromiss wollt ihr? Billig, L, Behindertengerecht. Walmdach, das wird nichts. Übrigens, das von Dir aus so einem Katalog rausfotografierte Haus find ich auch ganz gut.
Noch ein Gedanke. Bei uns war der Traum auch erst Winkel. Das fiel dann der Kassenlage zum Opfer. Und jetzt wohnen wir rechteckig. Und da man meist im Haus ist und nicht immer drumrum tapert, muss ich sagen, von innen ist es völlig egal, ob L oder Rechteck.
Von innen auch völlig egal ob graue Fenster oder nicht, man guckt auf den gleichen Garten auch durch grau nicht anders. Alte Bauhausregel, Form follows function. Karsten
 
Zuletzt aktualisiert 24.11.2025
Im Forum Grundrissplanung / Grundstücksplanung gibt es 2536 Themen mit insgesamt 88008 Beiträgen


Ähnliche Themen zu Grundriss eines barrierefreien Bungalow
Nr.ErgebnisBeiträge
1Winkelbungalow, Terrasse ganz oder halb überdachen? 57
2Grundriss Einfamilienhaus geplant, Fenster gefallen uns 43
3Grundriss Neubau Einfamilienhaus: Fenster/Türen/Innenwände Größe/Anordnung ok? 20
4Bungalow 135qm: Grundriss + Fenster - Seite 7104
5alternativer Grundriss Bungalow 140m² - Seite 984
6 Küchenplanung mit tiefen Fenster 43
7Grundriss Bungalow - Was gibt es zu beachten? - Seite 5164
8Dachgeschoss Grundriss im Bestand - Seite 561
9Grundriss-Planung Einfamilienhaus 230-235 m² auf zwei Vollgeschossen - Seite 283
10Anregungen zum Grundriss Einfamilienhaus ca. 175 qm, Satteldachhaus - Seite 16167
11Bungalow Grundriss Max. 140 m² - Masse laut der Norm ok? 64
12Meinungen zum Grundriss Bungalow - Seite 442
13Grundriss die IV! :-) - Seite 318
14Eure Meinung zum Grundriss für das EG 28
15Meinung zum Grundriss eines geplanten Bauhauses 23
16Meinungen zu Grundriss "Haus am Hang" erbeten - Seite 231
17Grundriss Einfamilienhaus. Eure Anregungen sind gefragt. - Seite 317
18Grundriss für Einfamilienhaus 12
19Grundriss Einfamilienhaus mit Wohnkeller am Hang ? - Seite 538
20Eure Meinungen zu unserem Grundriss und Angebot 22

Oben