Grundriss eines barrierefreien Bungalow

4,70 Stern(e) 6 Votes
Zuletzt aktualisiert 22.11.2025
Sie befinden sich auf der Seite 24 der Diskussion zum Thema: Grundriss eines barrierefreien Bungalow
>> Zum 1. Beitrag <<

Z

zizzi

Wenn du den Rolli in der Nische nur abstellen willst, geht das bestimmt. Aber Platz um beispielsweise vom Rolli mit nassen Rädern auf den trockenen Therapiestuhl umzusetzen sehe ich bei der Nische eher nicht.

Zu Punkt 4: Von welchem Grundriss hast du oben eigentlich gesprochen beim Tausch von Kinderzimmer und Schlafzimmer und verkleinern des Arbeitszimmers? Ist das der im anderen Thread? Ich hab auch Probleme beim Zuordnen der Himmelsrichtungen. Irgendwas passt da nicht zusammen.

Thema Böden: Fliesen finde ich persönlich im Kinderzimmer und Wohnbereich zu kalt um sich auf dem Boden aufzuhalten. Vinyl oder Parkett ist da angenehmer.

Badewanne und Wasseranschluss sind gute Ideen.
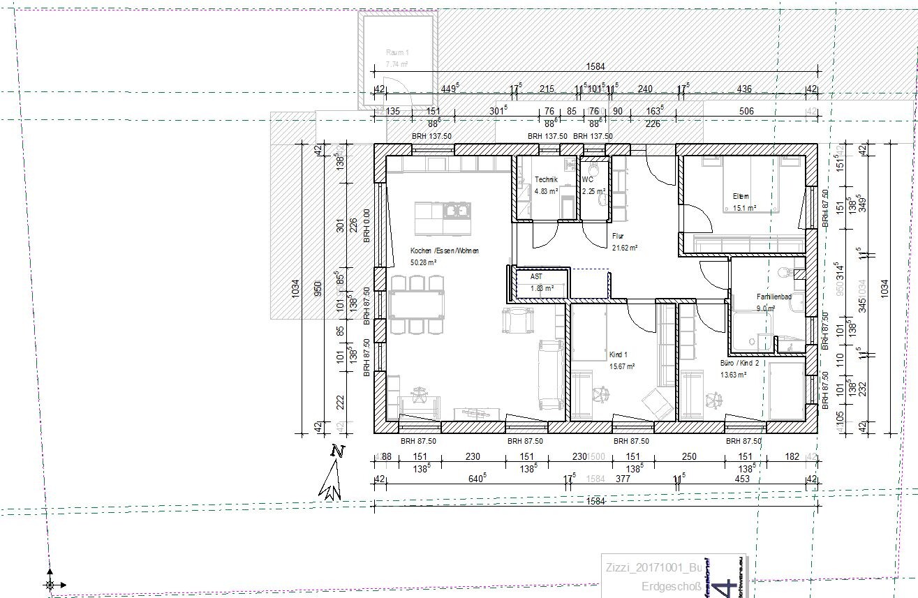
https://www.hausbau-forum.de/attachments/erdgeschoss_-jpg.16641/
Das Badezimmer obwohl keine Badewanne da ist
Eine Nische als Abstellraum für Rolli und Platz für Garderobe mit Spiegel ist nicht dort realisierbar?
Andere Hilfsmittel wird in seinen Zimmer abgestellt.
 
A

Anitra

Du könntest ja die Garderobe auch an die Wand vom Waschbecken des Gäste-WC machen. Daneben dann Platz für Rolli zum offenen Flur hin ohne Wand. Nische geht wahrscheinlich aber auch. Mit den gewünschten Änderungen der Zimmer und durch die Badewanne ändert sich aber vielleicht auch dieser Bereich mit.
 
kbt09

kbt09

Zizzi, in deine Badplanung paßt keine Badewanne. Generell finde ich den Badraum super ungünstig geschnitten. Dusche vorm Fenster, WC im Nassbereich der Dusche .. und ein zweites Waschbecken willst du ja auch noch.

Und, möbliere doch bitte mal das Wohnzimmer in deiner Planung mit ordentlichen Möbeln, TV-Platz und einer Küche, wo mehr als 1 Hochschrank steht.

Tut mir leid, ich verstehe die Entscheidung nicht. Mit dem Winkelbungalow hast du die Enge am Carport und was der Vorteil vom Winkel sein soll, erschließt sich mir nicht. Und, in der Enge willst du noch einen rollstuhlgerechten Nebeneingang zum Hauswirtschaftsraum haben. Wie genau soll der Rolli da die Schwelle überbrücken?

Die Rollstuhlnische ist ja in deiner Planung nicht nur die Rollstuhlnische, sondern soll auch noch die Familiengarderobe sein. Halte ich für sehr unpraktisch, wenn da der Rolli steht.
-------------------
Noch mal zum Vergleich, beide Grundriss identisch ausgerichtet:

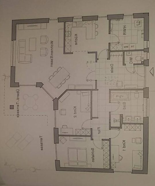
Grundriss eines Hauses mit roter Außenwand; Innenräume (Küche, Wohnen, Schlafen) und Terrasse.




Grundriss Erdgeschoss: offener Kuechen- und Wohnbereich, Flur, Technik, WC, Eltern- und Kinderzimmer.
 
Z

zizzi

Zizzi, in deine Badplanung paßt keine Badewanne. Generell finde ich den Badraum super ungünstig geschnitten. Dusche vorm Fenster, WC im Nassbereich der Dusche .. und ein zweites Waschbecken willst du ja auch noch.

Und, möbliere doch bitte mal das Wohnzimmer in deiner Planung mit ordentlichen Möbeln, TV-Platz und einer Küche, wo mehr als 1 Hochschrank steht.

Tut mir leid, ich verstehe die Entscheidung nicht. Mit dem Winkelbungalow hast du die Enge am Carport und was der Vorteil vom Winkel sein soll, erschließt sich mir nicht. Und, in der Enge willst du noch einen rollstuhlgerechten Nebeneingang zum Hauswirtschaftsraum haben. Wie genau soll der Rolli da die Schwelle überbrücken?

Die Rollstuhlnische ist ja in deiner Planung nicht nur die Rollstuhlnische, sondern soll auch noch die Familiengarderobe sein. Halte ich für sehr unpraktisch, wenn da der Rolli steht.
-------------------
Noch mal zum Vergleich, beide Grundriss identisch ausgerichtet:
Anhang anzeigen 16993


Anhang anzeigen 16992
Ich gebe dir recht. Alles was du bemängelt hast, sage ich auch und die Planung gefällt mir auch noch nicht. Jetzt heißt das, es gibt keine bessere Planung für barrierefreie Winkelbungalow mit 130-140 qm und dargestellten Anzahl von Räumen?
Ich schaue gerade ein Grundriss für andere WB die nicht Barrierefrei ist und keine AZ hat. Es gefällt mir echt gut. Kann man das nicht irgendwie umsetzen?
Grundriss eines Hauses mit Küche, Wohnraum, Diele, Flur, Bad, Schlafen, Kind 1, Kind 2, Terrasse.
 
Z

zizzi

Vor paar tagen habe ich eine andere Planung von BU bekommen, die haben paar Sachen verbessert aber hier gibt's auch die Sachen die für mich unakzeptabel sind. Deshalb das habe ich hier nicht gesendet.
Eine Foto von die Planung sende ich aber, habe schon sogar mein Gedanken reingemahlt
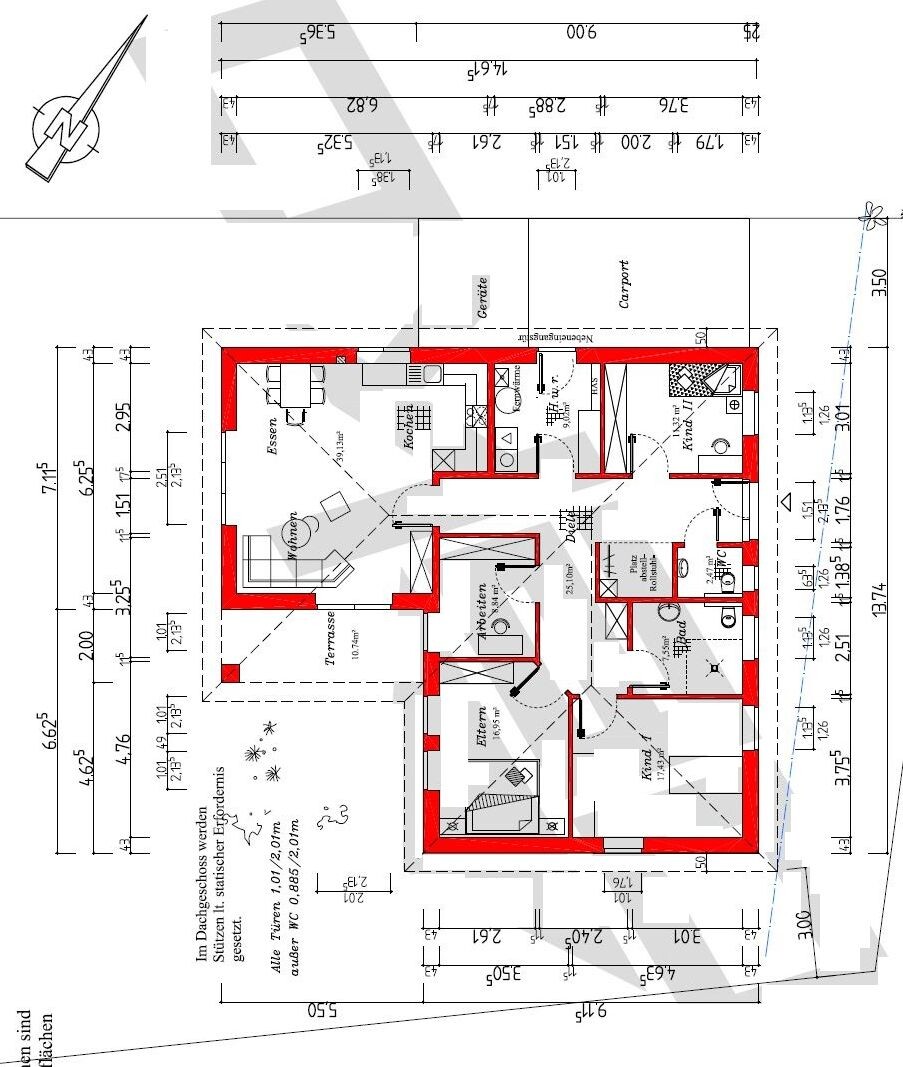
Grundriss eines Wohnhauses, Erdgeschoss, gelb markierter Flur im Zentrum.
 
kbt09

kbt09

Zu Grundriss, der dir gefällt --- mal gedreht, so dass Norden planoben ist, wie die anderen Grundrisse in Beitrag 141.:

Grundriss eines Hauses mit Wohnzimmer, Küche, Diele, Bad, WC, Schlafzimmer und Essbereich


Ich fürchte, das Haus ist noch breiter als 13,74 m und passt dann mit einem behindertemgerechten Carport überhaupt nicht mehr.

Zu dem angepaßten GU-Grundriss ...
Das Wohnzimmer immer schrecklicher, Möblierung gar nicht angepasst.
Ansonsten werden im behindertengerechtem Kinderzimmer durch die neue Eingangssituation unnötige und hinderliche Ecken geschaffen.
--------------------------

Warum muss es denn unbedingt ein Winkelbungalow werden?
 
Zuletzt aktualisiert 22.11.2025
Im Forum Grundrissplanung / Grundstücksplanung gibt es 2535 Themen mit insgesamt 87984 Beiträgen


Ähnliche Themen zu Grundriss eines barrierefreien Bungalow
Nr.ErgebnisBeiträge
1Renovierung-Tipps für sehr kleines Bad mit Dusche statt Badewanne - Seite 336
2Bad-Grundriss 8,7qm, mit Dusche und Badewanne 16
3Gestaltung Grundriss. Was sind eure Meinungen / Vorschläge? 15
4Grundriss Einfamilienhaus mit Keller 19
5Grundriss Satteldachhaus 172 qm - Bitte um eure Meinungen - Seite 323
6Grundriss Einfamilienhaus 170qm Tipps und meinungen 21
7Stadtvilla Grundriss - Änderungsvorschläge? 192
8Grundriss / Planung eines Einfamilienhaus mit Einliegerwohnung im OG - Seite 775
9Erster Entwurf Einfamilienhaus 150m² mit Keller - Seite 338
10Platzierung der Möbel im Wohnzimmer im Grundriss 10
11Grundriss: Offenes Wohnzimmer inkl. Kamin - Feedback 11
12Grundriss für 150qm Einfamilienhaus mit Wohnzimmer nach Norden 21
13Grundriss ca. 170 m² Einfamilienhaus, ohne Keller mit Carport - Seite 489
14Anschluss Badewanne an Dusche 21
15Fußbodenheizung unter Badewanne und Dusche 13
1613.000 für alte Dusche und Badewanne erneuern? 17
17Grundriss Einfamilienhaus mit Doppelgarage und Terrasse - Seite 219
18Planung Grundriss / Erster Entwurf für erstes Feedback - Seite 332
19Anregung - Kritik Grundriss Einfamilienhaus 320qm 29
20Meinungen und Tipps zu unserem Grundriss 12

Oben