Grundriss eines barrierefreien Bungalow

4,70 Stern(e) 6 Votes
Zuletzt aktualisiert 23.11.2025
Sie befinden sich auf der Seite 3 der Diskussion zum Thema: Grundriss eines barrierefreien Bungalow
>> Zum 1. Beitrag <<

Z

zizzi

Wir haben jetzt das Problem, dass der Eingangsthread mit den Anforderungen und Grundstück hier fehlt bzw nicht verlinkt ist.
Grundsätzlich sehe ich mehr Potential für einen barrierefreien Bungalow, allerdings mit weniger Arbeitszimmer, eventuell nur eine Arbeitsnische oder so.
Nochmal: steht der Anbieter fest? War das tatsächlich ein Bauträger, also inkl. Grundstück, oder seid ihr flexibel?
Du hast doch gerade erst die Frage um den Kauf des Grundstücks gestellt, warum wird der Hausentwurf so übereilt geplant?


Mobiler Gruß von unterwegs
Das Arbeitszimmer haben wir mehr dafür gedacht, dass meine Frau als Steuerfachangestellte von zu Hause auch tätig sein kann (Homeoffice) bzw. im Zukunft nebenbei eigene Büro.
Sonst eine Arbeitsnische finde ich auch vollkommen ausreichend.
 
Z

zizzi

Schau doch mal ganz oben in diesem Unterforum "Grundrissplanung" im angepinnten Thread, lese und fülle aus.
Wie soll man denn Verbesserungen machen, wenn nur 2 von 100 wissen, dass Du ein behindertes Kind hast etc.
Barrierefrei ist ja eine Oberbegriff, jetzt ist ja egal ob man selber eine Behinderung hat oder ein Person von der Familie.
Sonst es geht mehr um die Raumaufteilung und nicht um Nachbarschaft und im Grundriss sieht man auch die Ausrichtung von das Grundstück.
 
Z

zizzi

Ein durchdachter Entwurf entsteht nicht innerhalb einer Stunde und auch nicht ohne Basiswissen.
Wenn sich hier welche intensive Gedanken machen, müssen die grundlegenden Dinge auf den Tisch.
Es investiert keiner viel Zeit, wenn es später heißt, das und das ist nicht gewollt oder erlaubt.
Wahrscheinlich hast hast du meine erste Beitrag nicht bzw. nicht vollständig gelesen. Da steht alles was gewollt ist. Und wenn man ein Bungalow bauen will, es gibt nicht viele Einschränkungen außer was selbstverständlich ist z.B. 3m Abstand oder Max. erlaubt versiegelte Fläche etc.
 
Y

ypg

Wahrscheinlich hast hast du meine erste Beitrag nicht bzw. nicht vollständig gelesen. Da steht alles was gewollt ist. Und wenn man ein Bungalow bauen will, es gibt nicht viele Einschränkungen außer was selbstverständlich ist z.B. 3m Abstand oder Max. erlaubt versiegelte Fläche etc.
Irgendwie hakt es heute!

Ich habe diesen Thread vollständig gelesen und weiß - trotz mehrmaliger Aufforderung- nicht, wie breit das Haus sein darf. Wie tief das Baufenster ist, wie viel Grenzbebauung erlaubt ist.

Wenn Du etwas Hilfe zu dem Entwurf haben möchtest, dann musst Du auch mit den Rahmenbedingungen rüber kommen.

Ich bitte Dich nicht noch einmal, die Zeit jetzt ist auch verbraucht für heute... Für großes Gedankengut habe ich die nächsten Tage keine Zeit.

Vielleicht hat jemand anderes Zeit und Muse, Hilfe hat Dein Planer zumindest nötig.

Gute Nacht.
 
Z

zizzi

Ich habe diesen Thread vollständig gelesen und weiß - trotz mehrmaliger Aufforderung- nicht, wie breit das Haus sein darf. Wie tief das Baufenster ist, wie viel Grenzbebauung erlaubt ist.
Wie gesagt, oben steht alles. Maximale Hausbreite steht im Grundriss. Wenn ich dort 131qm Haus plane d.h. es ist auch erlaubt (das plane ich ja nicht selbst, sondern das mach Architekt )

Ich bitte Dich nicht noch einmal, die Zeit jetzt ist auch verbraucht für heute... Für großes Gedankengut habe ich die nächsten Tage keine Zeit.
Und wenn ich sehe manche versuchen solche schlagfertige Antworten geben, kann ich nur mein Kopf schütteln. [emoji6]

Good Night you too! [emoji42]
 
11ant

11ant

Wegen Aktionsraum, es ist jetzt so, weil wir ein Arbeitszimmer und zwei Kinderzimmer gewünscht haben. Sonst Küche war in die richtige Stelle(eine Seite Terrasse und die andere Seite Wohnzimmer).
Ich verstehe da keinen Zusammenhang (?)

Wie gesagt, oben steht alles. Maximale Hausbreite steht im Grundriss.
Sie meint, welche Maße das Baufenster hat.

Mir scheint, wir reden aneinander vorbei - was ist Deine Muttersprache ?

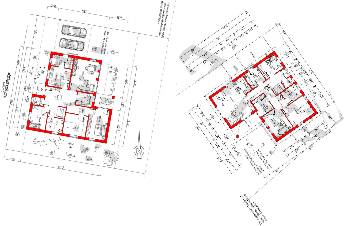
Der Architekt hat wohl irgendwie ein gespaltenes Verhältnis zum Grundstück, ich habe den alten und den aktuellen Entwurf mal gleichorientiert (beide genordet) nebeneinandergelegt:

Zwei architektonische Grundrisse eines Hauses mit roter Umrandung, Innenaufteilung und Parkplatz.
 
Zuletzt aktualisiert 23.11.2025
Im Forum Grundrissplanung / Grundstücksplanung gibt es 2535 Themen mit insgesamt 87994 Beiträgen


Ähnliche Themen zu Grundriss eines barrierefreien Bungalow
Nr.ErgebnisBeiträge
1Grundriss-Entwurf: Einfamilienhaus mit Keller; 560qm Grundstück - Seite 765
2Erster Grundriss-Versuch für Kettenhaus auf kleinem Grundstück 94
3Grundriss Einfamilienhaus ca. 300qm, Grundstück 780qm 24
4Grundriss-Entwurf Einfamilienhaus in Hanglage, Einliegerwohnung, Doppelgarage - Seite 271
5Einfamilienhaus-Grundriss Entwurf 23
6Unser Grundriss-Entwurf, eure Meinungen 20
7Unser Grundriss-Entwurf für ein günstiges Haus - Seite 4348
8Entwurf Grundriss Einfamilienhaus (als Zweifamilienhaus im Alter möglich) in Hanglage - Seite 753
9Grundriss Einfamilienhaus 133qm Grundstück 850qm 16
10Hausbau 2.0 - erster Grundriss-Entwurf - Seite 13155
11Bitte schaut kritisch über unseren Grundriss-Entwurf 13
12Ideen für einen Grundriss? - Seite 211
13Grundriss Stadtvilla mit Walmdach ca. 170 qm - Seite 361
14Stadtvilla Grundriss - Feedback erwünscht 97
15Grundriss Stadtvilla 180m², Keller, 3 Kinder - Eure Meinungen dazu? - Seite 851
16Grundriss Haus mit Einliegerwohnung - Verbesserungsvorschläge? - Seite 15221
17Grundriss-Hilfe für Bungalow benötigt 33
18Süd Hang Grundstück 700qm Einfamilienhaus ca. 150qm, Ideen Input? 43
19Grundrissoptimierung Einfamilienhaus mit Keller auf kleinem Grundstück 178
20Grundriss 200qm mit integriertem Wintergarten und Galerie 32

Oben