Grundriss Bungalow 160-170qm mit Keller

4,70 Stern(e) 9 Votes
Zuletzt aktualisiert 18.11.2025
Sie befinden sich auf der Seite 13 der Diskussion zum Thema: Grundriss Bungalow 160-170qm mit Keller
>> Zum 1. Beitrag <<

vonBYnachSH

vonBYnachSH

Gib doch einfach mal im Internet „Bungalow 2 Kinderzimmer“ ein, da findest Du auf Anhieb so viele Grundrisse, die deutlich besser geschnitten sind. Manchmal hilft es nix, da muss man sich dann einfach eingestehen, dass da Profis ran müssen. Ich bin definitiv keiner, ich würde mir sowas aber auch nicht zutrauen. Aber erkennen kann ich, dass das nichts wird (sorry, nicht böse gemeint).
 
kbt09

kbt09

3 Beiträge für die Informationen, ... Haus in Darstellung immer so, dass man sich in den "Norden" eindenken muss, einige Maße kaum lesbar, nicht erkennbar wo bodentiefe Fenster sind ... überhaupt Fenster in die Raumecken geplant. Lass einen Fachmann ran.

Wo ist der Keller? Ich weiß immer noch nicht, wofür der ist. Es gibt ja auch keine Zeichnung, die mal die notwendigen Lichthöfe berücksichtigt usw.

Und, da hier keine Entwicklung vom ersten Grundriss erkennbar ist, was erwartest du?

Mal ein paar Grundrisse, die mir ganz gut gefallen, Eingang immer Richtung planoben=Norden gedreht, alles ohne Keller.
Hauscompagnie

Grundriss eines Einfamilienhauses mit mehreren Zimmern, Küche, Fluren und Terrasse.


eskjhus ... dabei würde ich da den Eltern/Kinderbereich tauschen und den gesamten Bereich etwas anders aufteilen. Kinder Richtung Süden, Eltern Richtung Norden, Bibliothek integrieren

Grundriss eines Hauses mit Garage, Küche, Ess- und Wohnbereich, Schlafzimmern, Bad und Terrasse.


Gedreht und gespiegelt Danwood 171

Grundriss eines Einfamilienhauses: Räume, Küche, Wohnzimmer, Schlafzimmer, Bad, Garage.





Extravagant ... Elk atrium ;)

Grundriss eines Einfamilienhauses mit Garage, Wohnzimmer, Küche, Essbereich, Schlafzimmer.


Und immer gerne wieder mal ein Alt-Entwurf von mir, wobei ich da die Schlafzimmerwand jetzt unten bündig ziehen würde. Raum 1 links ist Garage ... viel Stauraum im Flur.

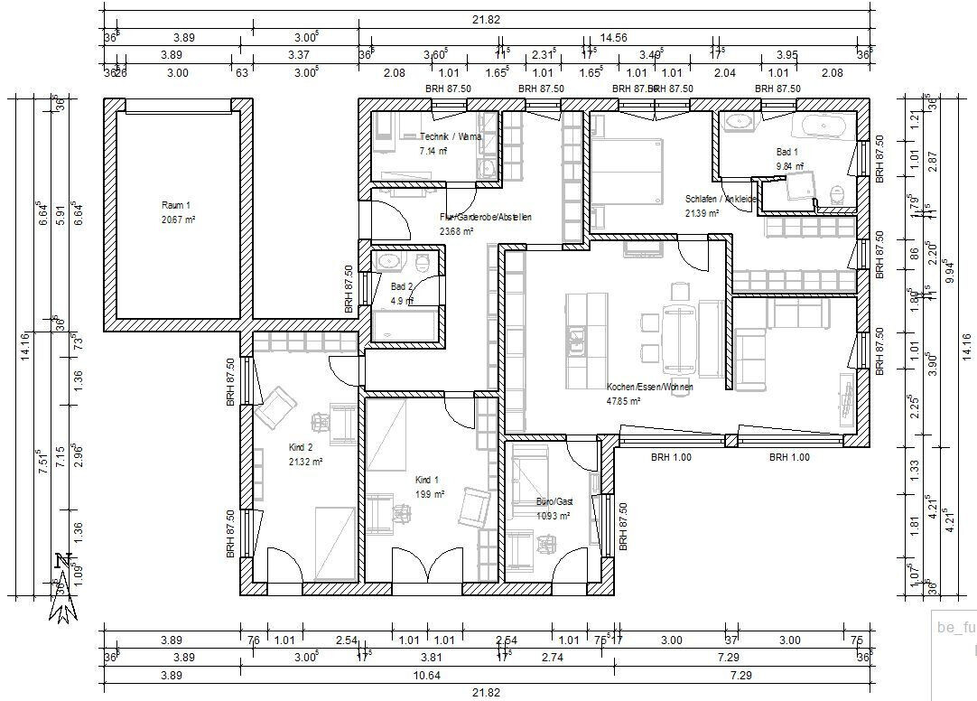
Grundriss eines Einfamilienhauses: Küche, Wohnen, Bad, Schlaf- und Kinderzimmer, Büro/Gast
 
I

Iotafreak

3 Beiträge für die Informationen, ... Haus in Darstellung immer so, dass man sich in den "Norden" eindenken muss, einige Maße kaum lesbar, nicht erkennbar wo bodentiefe Fenster sind ... überhaupt Fenster in die Raumecken geplant. Lass einen Fachmann ran.

Wo ist der Keller? Ich weiß immer noch nicht, wofür der ist. Es gibt ja auch keine Zeichnung, die mal die notwendigen Lichthöfe berücksichtigt usw.

Und, da hier keine Entwicklung vom ersten Grundriss erkennbar ist, was erwartest du?

Mal ein paar Grundrisse, die mir ganz gut gefallen, Eingang immer Richtung planoben=Norden gedreht, alles ohne Keller.
Hauscompagnie
Anhang anzeigen 60203

eskjhus ... dabei würde ich da den Eltern/Kinderbereich tauschen und den gesamten Bereich etwas anders aufteilen. Kinder Richtung Süden, Eltern Richtung Norden, Bibliothek integrieren
Anhang anzeigen 60205

Gedreht und gespiegelt Danwood 171
Anhang anzeigen 60206




Extravagant ... Elk atrium ;)
Anhang anzeigen 60204

Und immer gerne wieder mal ein Alt-Entwurf von mir, wobei ich da die Schlafzimmerwand jetzt unten bündig ziehen würde. Raum 1 links ist Garage ... viel Stauraum im Flur.
Anhang anzeigen 60207
Danke erstmal, das du dir die Zeit nimmst...
Ich dachte nicht das ich den ganzen Text zum Keller und warum erneut schreiben sollte...
Der Keller wird an das EG angepasst, D,h wenn der Grundriss steht, gehts mit dem Keller weiter.. der ist Prio 2
Wieso soll ich jetzt den Grundriss planen, wenn das EG noch nicht klar ist.. dort sind wir dan sehr Flexibel.

Deine Grundrisse mögen ja ganz gut sein, aber keiner entspricht unseren Wünschen..
Ich kann auch verstehen, das der Grundriss so optimal und praktisch wie möglich gestaltet werden sollte, um keinen unnötigen Platz zu verschenken=Kosten..
Uns geht es in ERSTER Linie darum unsere Wünsche zu verwirklichen und deshalb versuchen wir diese auf eine Blatt zu bringen und von Erfahrenen Leuten auf Fehler hingewiesen zu werden. Eine Meinung wie: du hast kein Raumgefühl, der Eingangsbereich ist zu groß.. etc, hilft mir null weiter.
Nochmal, es geht nicht darum kostenoptimal alles zu planen, sondern nach unseren Wünschen.
Großer Eingangsbereich,
Keine kleinen dunklen Flure
Große Fenster
Einigermaßen große Zimmer
Kinder/Eltern Bereich getrennt
Terrasse mind. Ca.3x6m

Meine Skizze soll lediglich die Raumaufteilung darstellen, nicht alle Maße cm.genau und auch die Fenster sind keineswegs bereits richtig.. Es geht nur um die Raumaufteilung.

Außer das die Kinderzimmer ungewohnt liegen und nicht direkt in einer Zone mit dem Schlafzimmer und Bad Etc. würde ich gerne weitere Kritik hören um auf Fehler einzugehen... Ich bin sehr dankbar für Tipps und bin nicht fixiert auf den Grundriss, habe schon andere Möglichkeiten probiert.. Eingang seitlich etc... Nichts kommt auch nur in die Nähe unserer Vorstellungen...

Der eine schreibt... Haus Vita ist was ganz anderes, es geht alles in einander über.. der andere schreibt ich soll Zonen einrichten.....

Danke trotzdem...
 
Y

ypg

Eine Meinung wie: du hast kein Raumgefühl, der Eingangsbereich ist zu groß.. etc, hilft mir null weiter.
Nochmal, es geht nicht darum kostenoptimal alles zu planen, sondern nach unseren Wünschen.
Ich gebe Dir gern meine Kontonummer. @kbt09 wohl auch. Wenn dort 5000€ geflossen sind. bekommst Du unsere ganze Aufmerksamkeit und einen Plan nach Deinen Wünschen, der mit dem Keller anfängt und dem EG aufhört. Wenn nichts gefällt, bekommst Du 3000€ zurück. Deal?
Oder Du gehst gleich zu einem Architekten. Wundere Dich nicht, dass ein Keller in Abhängigkeit zum ganzen Haus steht. Soll ja ein Wohnkeller mit Lichthöfen werden.
 
kbt09

kbt09

Ich dachte nicht das ich den ganzen Text zum Keller und warum erneut schreiben sollte...
Ich verstehe nicht, was du im Keller willst und Yvonne hat es ja schon gesagt, die Kellerplanung hängt am Erdgeschoss.

Wenn dein vorhandener Grundriss deinen Wünschen entspricht, dann verstehe ich das Nachfragen nicht.

Hinweise auf Ungereimtheiten gab es ja nun genug
- Fenster in den Raumecken
- Bad/Kinderzimmersituation
- Raumtiefe der Speisekammer, da geht nichtmal ein Tiefkühlschrank auf
- Durchgangsraum Garage / Haus mit Kellertreppe
- schräge Wand in der Ankleide .. weil sonst der Übergang Essen/Wohnen gar nicht funktioniert, dafür funktioniert mit der schrägen Wand die Nutzung der Ankleide nicht.
- Raumverschwendung im Flur, der wohl 300 cm breit ist (Zahlen kann man schlecht lesen) ... aber schlecht möblierbar ist, dann wäre dort wenigstens Stauraum.
usw. usw. usw.
 
Zuletzt aktualisiert 18.11.2025
Im Forum Grundrissplanung / Grundstücksplanung gibt es 2536 Themen mit insgesamt 87964 Beiträgen


Ähnliche Themen zu Grundriss Bungalow 160-170qm mit Keller
Nr.ErgebnisBeiträge
1Entwurf Einfamilienhaus mit 3 Kinderzimmer, Keller und Grenzbebauung 32
2Holzdecke und Teilisolierung für Keller mit Garage - Seite 215
3Grundriss Einfamilienhaus ohne Keller, 3 Kinderzimmer und Büro 18
4Grundriss Einfamilienhaus 136m² mit Garage & Keller 17
5Grundriss Einfamilienhaus 155m², ohne Keller, 3 Kinderzimmer, 1 Büro 38
6Einfamilienhaus Grundriss mit Keller, Version 2 23
7Grundrissentwurf Stadtvilla mit Keller Verbesserungsvorschlag? - Seite 677
8Grundriss Einfamilienhaus ~165m² plus Keller - Seite 7165
9Erstes Angebot, 157m2 mit Keller, KFW 70, Garage 14
10Häuser ohne Keller: Stauraum Hobby-Keller? 49
11Hanghaus 235 qm mit Garage im Keller auf 3600 qm Grundstück 15
12Ideen zu Entwurf für Einfamilienhaus mit Keller - Seite 847
13Grundriss Einfamilienhaus mit Garage 18
14Grundriss Einfamilienhaus geplant, Fenster gefallen uns - Seite 343
15Einfamilienhaus mit Keller - Optimierungsvorschläge? 12
16Grundrissplanung Einfamilienhaus (Stadtvilla) ca.140m² (3 Kinderzimmer) 42
17Grundrissplanung Stadtvilla Neubau mit Keller - Seite 336
18200m2 Einfamilienhaus für 4-5 Personen ohne Keller auf schmalem Grundstück 67
19Grundriss Einfamilienhaus ca. 200qm Doppelgarage Keller - Seite 232
20Einfamilienhaus 160m2 mit Keller, 500m2 Grundstück - Seite 2108

Oben