Grundriss Einfamilienhaus ~165m² plus Keller

4,80 Stern(e) 10 Votes
Zuletzt aktualisiert 18.11.2025
Sie befinden sich auf der Seite 7 der Diskussion zum Thema: Grundriss Einfamilienhaus ~165m² plus Keller
>> Zum 1. Beitrag <<

H

hanghaus2023

Ich würde das Haus noch etwas höher (h= 111,00 m Fertigfußboden EG) und Richtung Süden setzen.

Somit verschattet der Nachbar nicht so sehr Deine Westseite und du hast etwas Gefälle zur Straße.

Der Kelleraushub sollte zur Geländemodellierung ausreichen.

Eine gute Befestigung und Auffüllung der Garageneinfahrt stellt gleichzeitig einen guten Kranstandplatz.
 
G

Gregor_K

Gibt es schon erste Entwürfe vom neuen GU?
Nein noch nicht. Ich denke, die bekommen wir vielleicht morgen zugeschickt.

Das wird aber ein anderer Entwurf sein da ich den GU erstmal machen lassen wollte. ;)


Ich würde das Haus noch etwas höher (h= 111,00 m Fertigfußboden EG) und Richtung Süden setzen.

Somit verschattet der Nachbar nicht so sehr Deine Westseite und du hast etwas Gefälle zur Straße.

Der Kelleraushub sollte zur Geländemodellierung ausreichen.

Eine gute Befestigung und Auffüllung der Garageneinfahrt stellt gleichzeitig einen guten Kranstandplatz.
Das Haus etwas weiter Richtung Süden setzen hatten wir auch vor.
 
Zuletzt bearbeitet:
G

Gregor_K

Anbei der Grundriss vom GU mit Feedback von mir.

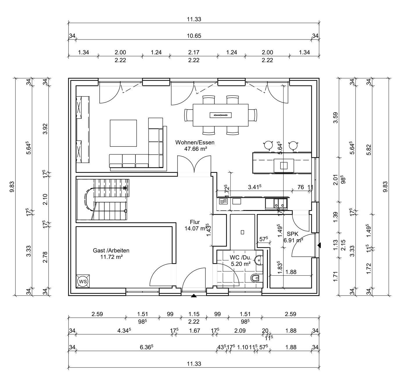
EG:
-Eingangsbereich nur 1,67m breit, okay aber besser sind 2m
-riesige Speisekammer, ist okay aber kleiner wäre besser
-2,10m breite Treppe, besser sind aber 2,25m
-Gäste Bad gefällt richtig gut weil schön groß
-Fenster im Treppenbereich fehlt für mehr Licht
-den Bereich für den Esstisch fanden wir im Erker Grundriss schöner
-Treppe weg vom Eingangsbereich ist sehr positiv

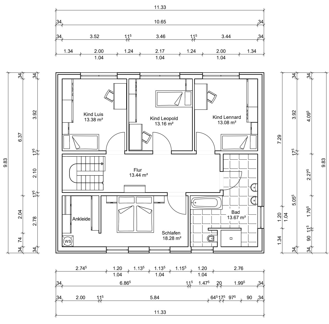
DG:
-Schlafzimmerbreite nur 2,78m und damit etwas sehr knapp, besser 2,80m oder sogar 2,90m
-Wäscheschacht im Ankleidezimmer statt im Bad
-Bad Möblierung schwierig, Thema Waschbecken
- Kinderzimmer nur 13qm groß statt 14 oder 15qm
- schmale Dusche

Keller:
-Fenster fehlen

Lageplan:
- Garage + Stellplätze auf der Westseite

Grundsätzliche Frage zum Lageplan: Wie findet ihr es wenn die Garage auf die Westseite kommt? Am 22.07.2022 stand ich 20:27 auf dem Grundstück und habe ein Foto gemacht. Siehe Anhang. Man sieht das die Sonne kurze Zeit später hinter dem Haus verschwinden würde. Das Haus wird grundsätzlich etwas schräg auf das Grundstück gesetzt. Vorteil wäre das wir die "lange" Ecke besser für die 2 Stellplätze nutzen können und Garage + Stellplätze nicht trennen müssen so wie von mir in #36 angegeben.


Mein Bauchgefühl sagt mir das es nicht der richtige Grundriss ist weil er zu viele Probleme hat. Daher würde ich wieder auf den Erker Grundriss gehen.

@katja und jpg Habt ihr noch gute Grundrisse? Wie würdet ihr bauen?

Grundrissplan eines Hauses mit Wohnbereich, Essbereich, Küche, Flur, WC und Gastbereich


Lageplan mit Wohnhaus, Bahnhofstraße, Maßlinien und Grundrissangaben


Obergeschoss-Grundriss eines Hauses mit Flur, Schlafzimmer, Bad und Kinderzimmer


Keller-Grundriss mit fünf wohnbereiten Räumen, Treppe, Türen und Flächenangaben (m²).


Starke Sonneneinstrahlung erzeugt Linseneffekte über einer unscharfen Straßenszene mit Bäumen am Rand.
 
Y

ypg

@katja und jpg Habt ihr noch gute Grundrisse? Wie würdet ihr bauen?
Meinst Du mich? Ich finde den Entwurf nicht gut. Vieles wurde schon gesagt. Ich finde zusätzlich den Flur vor der Treppe zu überdimensioniert, den Essbereich reingequetscht, den Flur oben zu groß. Die Treppe ist falsch an der kurzen Seite des Hauses positioniert, sodass sich schmale Räume ergeben und einen großen Flur.
Ich hatte nicht viel zu meckern an dem ersten Entwurf! Und es gab auch kaum etwas… es gab nur die Kellerproblematik.
Und ja, ich würde keine Garage an die Westseite stellen, sondern dort für ein großes Fenster sorgen.
Am Bad muss man noch tüfteln.
 
Zuletzt aktualisiert 18.11.2025
Im Forum Grundrissplanung / Grundstücksplanung gibt es 2536 Themen mit insgesamt 87962 Beiträgen


Ähnliche Themen zu Grundriss Einfamilienhaus ~165m² plus Keller
Nr.ErgebnisBeiträge
1Grundriss Entwurf Neubau Einfamilienhaus - Grundstück 610qm - Meinungen erwünscht - Seite 850
2Entwurf Einfamilienhaus mit Garage/Carport - bitte um Bewertung 22
3Grundriss Einfamilienhaus (ca. 170 qm) mit Garage - Hanglage 35
4Grundriss Einfamilienhaus mit Keller 19
5Grundriss Einfamilienhaus ca. 190qm mit Keller auf Millimeterpapier 78
6Grundriss-Entwurf Stadtvilla mit Doppelgarage - Seite 238
7Grundriss-Entwurf: Einfamilienhaus mit 4 Schlafzimmern und Büro, 160qm - Seite 1482
8Grundriss Einfamilienhaus 136m² mit Garage & Keller 17
9Grundriss-Entwurf: Einfamilienhaus mit Keller; 560qm Grundstück - Seite 365
10Grundriss Einfamilienhaus 2 Vollgeschosse 195 qm Satteldach in Bayern - Seite 425
11Ideensammlung Grundriss Einfamilienhaus, Bauweise offen - Seite 543
12Grundriss Einfamilienhaus ohne Keller, 3 Kinderzimmer und Büro 18
13Grundriss Einfamilienhaus 2 Vollgeschosse +Keller ca. 130m² Wohnfläche 30
14Grundriss Stadtvilla 180m², Keller, 3 Kinder - Eure Meinungen dazu? - Seite 751
15Unser Grundriss-Entwurf, eure Meinungen 20
16Einfamilienhaus ohne Keller - Diskussion Grundriss 19
17Erstes Angebot, 157m2 mit Keller, KFW 70, Garage 14
18Entwurf Grundriss Einfamilienhaus (als Zweifamilienhaus im Alter möglich) in Hanglage - Seite 753
19Grundriss 165 m² mit Keller eure Meinung - Seite 552
20Hausbau 2.0 - erster Grundriss-Entwurf - Seite 13155

Oben