Einfamilienhaus - Entwurfsplanung - Bitte um Feedback

4,30 Stern(e) 3 Votes
M

MBS2201

Hallo,
hiermit möchte ich einen neuen Thread bezüglich der Entwurfsplanung erstellen.

Früherer Thread: Einfamilienhaus - Meinungen zu unserem Entwurf
https://www.hausbau-forum.de/threads/Einfamilienhaus-Meinungen-zu-unserem-Entwurf.25622/

Anbei die wichtigsten Punkte:

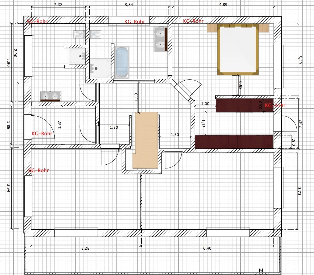
Bodenplatte bereits vorhanden: 12,49x12,49m2 und 30 cm stark.
Die Bodenplatte wurde von einem Energieberater und von einem Bauingenieur bezüglich Qualität geprüft. --> Keine Beanstandung
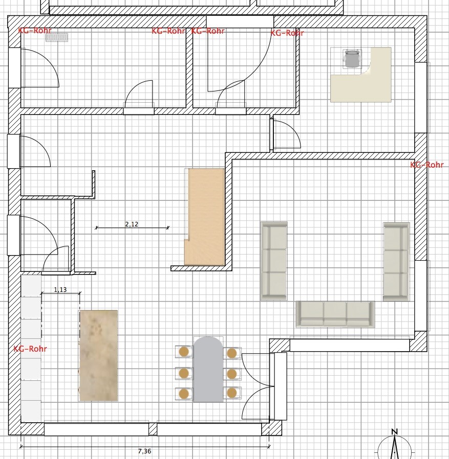
Positionen der KG Rohre ist im Bild "Grundplatte-KG Rohre" eingezeichnet.

Das Haus soll auf die bereits bestehende Bodenplatte gebaut werden. Ein Abriss ist nicht geplant.

Das Haus muß als ein E+1 mit einem Satteldach 22° Dachneigung bebaut werden.

Ursprünglicher Eingabeplan vom Vorbesitzer wurde beantragt, liegt aber noch nicht vor.
Eigener Eingabeplan vom Architekten vorhanden --> wurde jedoch von den meisten als nicht gelungen bewertet.

Negative Punkte im Eingabeplan:
  • EG+OG
    • Treppe von EG und OG ist nicht korrekt dimensioniert
  • EG
    • Treppe unpassend, benötigt zu viel Platz, Eingang in den Wohnraum durch die Küche
    • Durchgang Garage-Haus passt wegen dem Höhenunterschied nicht
  • OG
    • Treppe unpassend, Raumaufteilung und dunkler Flur + Flurbreite von 1,10m
    • Balkon über die gesamte Hauslänge
      • Siehe Ansicht Osten bei unter dem Bild "Ansicht alle Seiten"
        • Der Balkon wurde verlängert, da das OG um 70cm zum EG herausragt Somit wurde die daraus entstehenden Nase kaschiert. Im vorherigen Plan war der Balkon nur über dem Erker.
Eigene Wünsche:

Das EG gefällt und von der Raumaufteilung ganz gut. Die Podesttreppe soll aber durch eine weniger Platz beanspruchende Variante ersetzt werden.
Die Treppe wurde Mittig ins Haus gesetzt, um die gewünschten Räume erstellen zu können.


  • Technikraum an der eingezeichneten Position belassen, zwecks Anschlüsse, die am Wendehammer liegen.
  • Position der Haustür wie eingezeichnet belassen --> Zugang von der Garage + Gäste die vor der Garage parken
  • Zentrale Treppe zwecks kurzer Wege
  • Treppenart: Eck, 1/4 gewendelt, 2x 1/4 gewendelt, gerade Treppe. Nicht gewünscht ist eine Wendeltreppe
  • Modernes Haus mit offener Küche und Wohnraum
  • Arbeitszimmer
  • Gäste-WC mit Dusche
  • Speisekammer für Gefriertruhe und Lebensmittel und Getränke
  • Große Kinderzimmer --> wenn möglich Südseite
  • Raum für begehbare Ankleide
  • Separater Eingang Eltern-Schlafzimmer und nicht über Ankleide
  • 1x Elternbad + 1x Kinderbad
  • Kleiner Hauswirtschaftsraum-Raum (ca.6-8m2) im OG für Waschmaschine und Trockner
  • Kachelofen, wobei der Kaminschacht nicht durch die Kinderzimmer gehen soll. Bevorzugt durchs Bad oder Hauswirtschaftsraum Raum

------------------------------------------------------------------------

Bebauungsplan/Einschränkungen
Größe des Grundstücks: Parzelle 35, 775m2
KFW 55
Hang: Ja
Grundflächenzahl: 0,35
Geschossflächenzahl: 0,80
Baufenster, Baulinie und –Grenze: siehe Lageplan
Randbebauung: Nein
Anzahl Stellplatz: 2
Geschossigkeit: 2
Dachform: Satteldach 22°
Stilrichtung / Ausrichtung: Süd - Südost
Maximale Höhen/Begrenzungen: Gebäudegröße Max = 14m x 10m + eingeschossiger Anbau von Länge, Max 10m Tiefe Max.3m

Anforderungen der Bauherren
Stilrichtung, Dachform, Gebäudetyp: Satteldach, 22° Neigung
Keller, Geschosse: ohne Keller, 2 Vollgeschosse
Anzahl der Personen, Alter: 4 Personen( 3xW, 1xM), 40, 38, 12, 9

Raumbedarf im EG, OG: Da ohne Keller, fällt der Raumbedarf pro Etage höher aus à 90m2

Büro: Familiennutzung oder Homeoffice? Geplant für Homeoffice, später eventuell Schlafzimmer / Schlafgäste pro Jahr: 6

Offene oder geschlossene Architektur: offene Architektur, zumindest im EG versucht

Konservativ oder moderne Bauweise: moderne Bauweise

Offene Küche, Kochinsel: offene Küche mit Kochinsel

Anzahl Essplätze: 1
Kamin: ja, soll im WZ platziert werden, da der Kamin nicht durch die Kinderzimmer verlaufen soll.

Musik/Stereowand: Nein

Balkon, Dachterrasse: Ja, nein

Garage, Carport: Doppelgarage mit Abtrennung

Weitere Wünsche/Besonderheiten/Tagesablauf, gern auch Begründungen, warum dieses oder das nicht sein soll: Photovoltaikanlage + eventuell Batteriespeicher, aktives Lüftungssystem mit Wärmerückgewinnung, Luftwärmetauscher, Zisterne

Hausentwurf
Von wem stammt die Planung: Architekt
-Planer eines Bauunternehmens: Nein
-Architekt: Ja
-Do-it-Yourself: Nein
Was gefällt besonders? Warum? EG, durch die offene Bauweise mit großen Fenstern

Was gefällt nicht? Warum? OG Aufteilung

Preisschätzung lt Architekt/Planer: ?Persönliches Preislimit fürs Haus, inkl Ausstattung:400 k€

Favorisierte Heiztechnik: Luftwärmetauscher mit Fußbodenheizung

Wenn Ihr verzichten müsst, auf welche Details/Ausbauten
-könnt Ihr verzichten: Batterie

Könnt Ihr nicht verzichten:
Warum ist der Entwurf so geworden, wie er jetzt ist? ZB
Standardentwurf vom Planer? Nein, Ideen anhand Musterhäuser + Grundrisse im Internet + Architekt

Was ist die wichtigste/grundlegende Frage zum Grundriss in 130 Zeichen zusammengefasst?

Wie kann ich das Haus besser aufgeteilt werden?

Detailierter Baugrundplan mit Gebäudeflächen, Wegen und Grünflächen


Lageplan eines Baugebiets mit Grundstücken, Straßen, Grünflächen und Gebäudeeinheiten


Konstruktionsplan der Bodenplatte mit Wasserleitungen, Abflussrohren und Zisterne


Grundriss eines Einfamilienhauses: Küche/Essen, Wohnen, Terrasse, Bad, Garage.


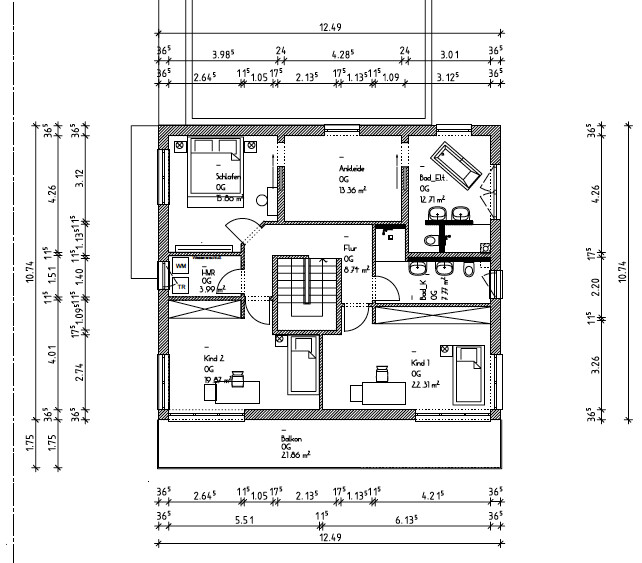
Grundriss des Obergeschosses: Schlafzimmer, Ankleide, Bad, zwei Kinderzimmer, Flur, Balkon.


Grundriss eines zweigeschossigen Hauses mit EG-Wohnbereich und OG-Schlaf-/Kinderzimmern, Innenhof.


Mehrfachansicht eines modernen Hauses: Ost-, Süd-, West-, Nordansicht und Wohnhausschnitt


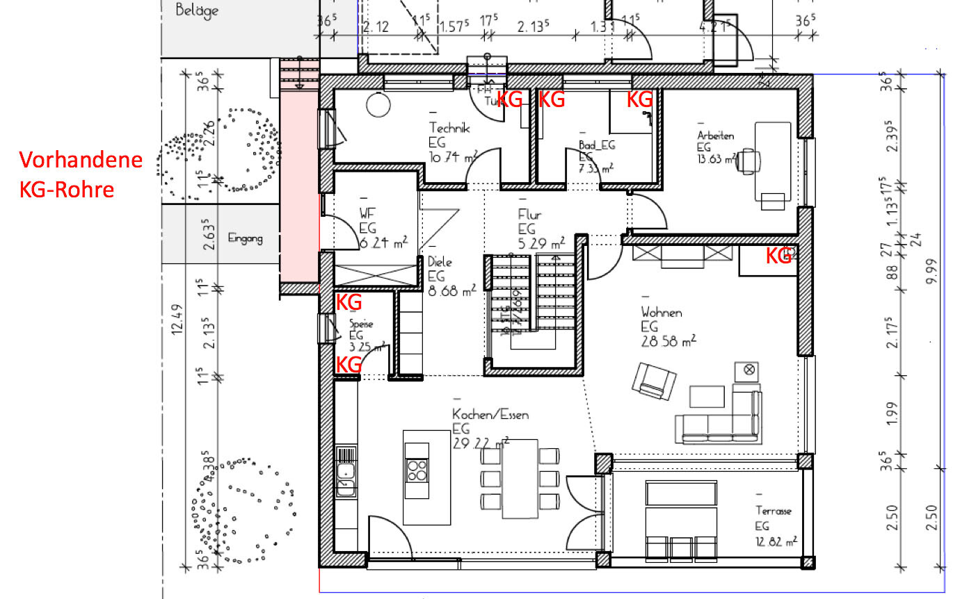
Grundriss eines Hauses mit KG und EG: Küche, Wohnen, Flur, Bad, Technik, Terrasse.


Offener Grundriss eines Wohn- und Essbereichs mit Kücheninsel, Esstisch und Sofa-Lounge.


Grundriss einer Wohnung: Bad mit Badewanne, Küche, Schlafzimmer mit Bett, Wohnzimmer mit Tisch.
 
M

MBS2201

Anbei ein paar Spielereien von meiner Seite, da ich im ersten Thread nicht mehr als 10 Dateien hochladen konnte.

3D-Grundriss: Offenes Wohnzimmer, Küche mit Esstisch, Bürobereich, Gartenansicht


Oberer Grundriss einer Wohnung mit zwei Schlafzimmern, Bad, Küche und Wohnzimmer.


Moderne zweistöckige Haus-Renderung mit großen Glasfronten, Terrasse und Balkon.
 
M

MBS2201

Anbei noch ein Ausschnitt des für mich gültigen Bebauungsplanes.
Deswegen hat der Architekt das OG verkürzt.

Textdokument mit Bauleitfäden zur Gestaltung des Hauptgebäudes und Anbauzonen (WA)
 
kaho674

kaho674

Ist die Bodenplatte tatsächlich an der einen Ecke schon ausgeklinkt? Wie sind da die genauen Maße?
 
M

MBS2201

Hallo, nein ist nicht ausgeklinkt. Die Bodenplatte ist quadratisch mit den Maßen 12.49x12.49 m2
 
kaho674

kaho674

Kann denn die Garage auch 1m weg stehen mit Überdachung / Gang und Treppe dazwischen oder muss die direkt am Haus stehen? Wegen des Höhenunterschiedes meine ich?
 
Zuletzt aktualisiert 12.11.2025
Im Forum Grundrissplanung / Grundstücksplanung gibt es 2530 Themen mit insgesamt 87787 Beiträgen


Ähnliche Themen zu Einfamilienhaus - Entwurfsplanung - Bitte um Feedback
Nr.ErgebnisBeiträge
1Grundriss Einfamilienhaus ohne Keller, 3 Kinderzimmer und Büro 18
2Grundriss Einfamilienhaus 136m² mit Garage & Keller 17
3Preisdifferenz Bodenplatte zu Keller. Kann man das abschätzen? - Seite 432
4Planung Einfamilienhaus ca. 190m² mit Satteldach, Keller, Doppelgarage 11
5Optimierung Grundriss Einfamilienhaus mit 180qm Satteldach ohne Keller 17
6Hanghaus 235 qm mit Garage im Keller auf 3600 qm Grundstück 15
7Grundriss Einfamilienhaus 155m², ohne Keller, 3 Kinderzimmer, 1 Büro 38
8Grundrissplanung Einfamilienhaus (Stadtvilla) ca.140m² (3 Kinderzimmer) 42
9Grundrissplanung und Überdachung Garage 11
10Grundriss Einfamilienhaus-Sattelhaus mit Keller, ca. 200 qm 76
11Keller ohne zusätzlichen Bodenbelag / Reinigung Bodenplatte 34
12 2 Vollgeschosse, Durchgang Garage, Hauswirtschaftsraum unter Treppe 25
13Keller oder Bodenplatte für Grundstückssituation sinnvoller? - Seite 755
14Einfamilienhaus mit >180qm / Keller / Garage 68
15Entwurf Einfamilienhaus mit 3 Kinderzimmer, Keller und Grenzbebauung 32
16Holzdecke und Teilisolierung für Keller mit Garage 15
17Häuser ohne Keller: Stauraum Hobby-Keller? 49
18Grundriss Einfamilienhaus / Garage im EG? 10
19Grundrissplanung Keller, EG + DG 12
20Grundriss, längliches Einfamilienhaus, integrierte Garage kein Keller 16

Oben