Einfamilienhaus - Entwurfsplanung - Bitte um Feedback

4,30 Stern(e) 3 Votes
Zuletzt aktualisiert 07.10.2025
Sie befinden sich auf der Seite 26 der Diskussion zum Thema: Einfamilienhaus - Entwurfsplanung - Bitte um Feedback
>> Zum 1. Beitrag <<

S

Solveigh

Ich habe in meiner Variante 3 noch einen Fehler entdeckt. Der Kamin im Kinderbad geht im Bereich Tür durch. Also den Kamin mit der Türe spiegeln, dann stimmt es wieder.

Zum Flurbereich in der DG Variante 3: Grundsätzlich bin ich kein Freund von so großen Flurgebilden. Ich persönlich schlage diese Flächen lieber den Zimmern zu. Bei Euch, aufgrund der trotzdem großen Räumen, könnte ich mir diesen Flur mit einer schönen Treppenbrüstung, in der Tat, interessant vorstellen.
 
11ant

11ant

Wieso erschließt du den Elternbereich vom Schlafzimmer aus, wenn es ohne irgendeine Mühe von der Ankleide aus geht.
Da gebe ich Dir recht, aber: nach meiner Ansicht kommen solche Details bei der Überarbeitung der Genehmigungspläne noch gut zum Zuge, aber der Sack in Sachen Vorentwurfsphase sollte nun mal zu gemacht werden - sonst tritt man doch nur wieder in ein Zickzack von Änderungen ein, die mehr aufhalten als Gewinn bringen. Das Pareto-Optimum sehe ich nun satt erfüllt.

Im übrigen schließe ich mich Onkel Dagobert (heute 08:11 im grünen Forum) vollumfänglich an.
 
M

MBS2201

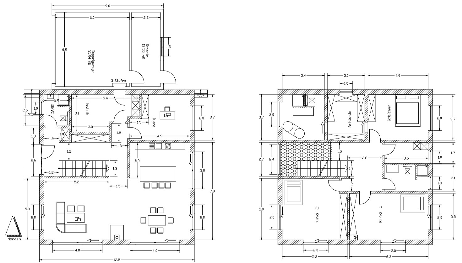
Hallo, anbei die aktuellste Kreation. Danke euch für die Tipps.
Ich habe versucht, soweit möglich, eure Ideen und Vorschläge mit einfließen zu lassen.

EG --> Ist die Flurbreite von 1.50m zu eng bemessen?

--> Schaut der Gang ohne Galerie eher drückend/langweilig aus?
Das er unnötig ist, habt ihr schon erwähnt, jedoch soll das Haus auch optisch was hergeben.

--> Zugang Kind 2 zum Flur (Vorschlag war Plan links zu platzieren) finden wir zu weit weg vom Elternschlafzimmer. Wenn das Kind z.B in der Nacht krank wird, würden wir es nicht hören/mitbekommen.

--> Wie könnte man das Eck, Eingang zum Technikraum/Büro entschärfen? Zu viele Ecken?
Separater Zugang ist notwendig, falls doch mal ein Familienangehöriger mit einzieht.

--> Seht ihr eine Möglichkeit, noch eine Speisekammer zu platzieren (z.B Technikraum/Büro)?

--> Kamin ist an der Außenwand, da ich ansonsten keinen passenden Platz gefunden habe. Außerdem wäre der Kamin so von allen Seiten sichtbar.

--> Würdet ihr noch eine Tür vom Elternbad auf den Flur setzen? z.B als 2 Fluchttür (Brand usw.)

Wenn ihr den Grundriss soweit für ok findet, würde ich nun den Bauzeichner beauftragen.

Danke euch allen

Zweistöckiger Hausgrundriss mit Wohnbereich, Küche, Bad, Schlaf- und Kinderzimmern sowie Treppen.
 
Zuletzt bearbeitet:
11ant

11ant

--> Schaut der Gang ohne Galerie eher drückend/langweilig aus?
Eher umgekehrt: die Höhe macht schmaler.

--> Würdet ihr noch eine Tür vom Elternbad auf den Flur setzen?
Ja.

jedoch soll das Haus auch optisch was hergeben.
Ein Grund mehr gegen diesen unnötigen Schacht.

EG --> Ist die Flurbreite von 1.50m zu eng bemessen?
Nein.

Wenn ihr den Grundriss soweit für ok findet, würde ich nun den Bauzeichner beauftragen.
Das macht der Architekt.
 
Zuletzt aktualisiert 07.10.2025
Im Forum Grundrissplanung / Grundstücksplanung gibt es 2510 Themen mit insgesamt 87182 Beiträgen


Ähnliche Themen zu Einfamilienhaus - Entwurfsplanung - Bitte um Feedback
Nr.ErgebnisBeiträge
1Unterdruckwächter / Kamin 4 pa ? - Seite 536
2Welcher Funkenschutz vor dem Kamin?? 29
3Technikraum in Garage einbauen? Ist dies möglich? - Seite 335
4Treppe im Flur, Grundriss steht eigentlich schon :o( - Seite 320
5Hauseingang mit Flur oder ohne 15
6Welcher Bodenbelag im Eingang/Flur? Wer hat Erfahrungen? Bilder? 14
7Grundrissplanung: Flur im EG breit genug? 57
8Probleme bei der Flur-Möblierung, wer hat Ideen? - Seite 443
9Parkett von Flur in Zimmer durchlegen - Seite 217
10Einrichtung Ankleidezimmer Tür zum Badezimmer - Seite 234
11Grundriss - was sagt Ihr? - Seite 225
12Luftwärmepumpe mit Kamin, wasserführender Ofen, Warmwassererhitzung 26
13Erdwärmepumpe, Solar und Kamin als Heizung? 15
14Nibe F750 Wärmepumpe mit Kamin zur Entlastung? 16
15Gasbrennwert-Therme oder LW Wärmepumpe zum wasserführenden Kamin? 18
16Luft-Wasser-Wärmepumpe mit Solarthermie und Kamin? Kosten/Nutzen/Sinn 34
17Kamin mit Wärmerückgewinnung 10
18Kombination aus Luftwärme-Pumpe und wasserführenden Kamin 14
19Kamin ab 01.04.16 bei KFW 55 nicht mehr erlaubt ? - Seite 219
20braune Flecken über dem Kamin - Seite 210

Oben