Hausbau - Ratgeber
Bauherrenhilfe
- Bauherrenhilfe vor Vertragsabschluss
-- Warum einen unabhängigen Baubetreuer?
-- Vertragsgrundlagen
-- Bausumme
-- Zahlungsplan zur Kostenkontrolle
-- Pflichten des Bauherren vor Vertragsabschluss
-- Unterlagen beim Hausbau vor Vertragsabschluss
- Bauherrenhilfe nach Vertragsabschluss
-- Bauantrag bei Behörden
-- Bau-Genehmigungsverfahren bei Baubehörden
-- Bauspezifische Versicherungen
-- Bauzeitenplan
-- Baubeginn - die Letzten Pflichten der Bauherrschaft
- Bauherrenhilfe während der Bauzeit
- Gewährleistungsansprüche
- Bauabnahme
Baufinanzierung
- Baufinanzierung - Allgemeine Fragen
- Kreditarten
- Kredit-Konditionen
- Bausparen
- Staatliche Förderungen
- Verkehrswert
- Haushaltsrechnung und Bonität
Hausbau Planung
- Haustypen
- Hausbau Vorbereitungsarbeiten
- Das Baugrundstück
- Baugrund beim Hausbau
- Baurecht
- Gebäudeschutz
- Erdarbeiten und Wasserhaltung
- Stützmauern
- Einfriedung
- Untergeschoss
- Kanalisation
- Tragende Elemente
- Nichttragende Innenwände
- Fundation / Fundament
- Deckenkonstruktionen
- Dächer
- Kaminanlagen
- Treppen Rampen Leitern
- Dachbeläge und Spengler
- Fenster
- Sonnen und Wetterschutz
- Aussenputze
- Einbauten, Küchen, Türen
- Bodenbeläge und Unterlagsböden
- Parkett
- Gips, Wand, Decke
Haustechnik und Energie
- Heiztechnik
- Lüftung und Klimatechnik
- Sanitärtechnik
- Elektrotechnik
- Erneuerbare Energie
Whirlpools / Jacuzzi
Hausbau Magazin
- Baufinanzierung trotz Krise?
- Das Blockhaus
- Moderne Dämmstoffe im Vergleich
- Erker Vor- und Nachteile
- Glasflächen beim Hausbau
- Günstig ein Haus Bauen
- Mediterraner Hausbaustil
- Mehrgenerationenhaus
- Moderne Architektur
- Gartengestaltung leicht gemacht
- Traditioneller Ziegelbau
- Villa als höchster Traum
- Im Eigenheim Ruhestand geniessen
- Altbau sanieren
- Kauf einer Holzgarage
- Immobilienmakler
- Arbeitshandschuhe für den Winter
- Zuhause verschönern
- Outdoor-Plissees
- Schlafzimmer planen
- Terrassenüberdachung
- Wohngebäudeversicherung
- Zaunarten und Eigenschaften
- Hauseingang gestalten
- Der perfekte Grundriss
- Sparsamer heizen im Altbau
- Einfamilienhaus smart finanzieren
- Planung einer PV-Anlage
- Neues Haus
- Immobilienfinanzierung
- Installation einer Photovoltaikanlage
- Asbest erkennen und entfernen
- Sauna im Fokus - Wellness zuhause
- Erfolgreich vermieten
- Die perfekte Winterbekleidung
- Das Niedrigenergiehaus
- Der April und seine Stürme
- Architektonische Vielfalt
- Ökologisch und nachhaltig bauen
- Das perfekte Schlafzimmer
- Nachhaltige Energieversorgung
- Zukunftsorientiert bauen
- Nachhaltigkeit beim Hausbau
- Tiny Houses
- Wärmepumpen als nachhaltige Heizvariante
- Maßgeschneiderten Kleiderschrank
- Der richtige Baukredit
- Ratgeber für erfolgreichen Hausbau
- Haus als Altersvorsorge
Do-it-yourself Anleitungen
- Verlegeanleitung für Bodenbeläge und Parkett
- Bodenbeläge und Parkett reinigen und pflegen
- Malerarbeiten am Haus
- Garten Tipps
- Umzug und Reinigung

ᐅ Einfamilienhaus - Entwurfsplanung - Bitte um Feedback


Erstellt am: 08.01.18 00:46

M
MBS2201
08.01.18 00:46
Hallo,
hiermit möchte ich einen neuen Thread bezüglich der Entwurfsplanung erstellen.

Früherer Thread: Einfamilienhaus - Meinungen zu unserem Entwurf
https://www.hausbau-forum.de/threads/Einfamilienhaus-Meinungen-zu-unserem-Entwurf.25622/

Anbei die wichtigsten Punkte:

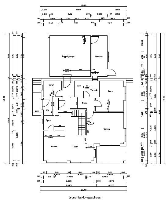
Bodenplatte bereits vorhanden: 12,49x12,49m2 und 30 cm stark.
Die Bodenplatte wurde von einem Energieberater und von einem Bauingenieur bezüglich Qualität geprüft. --> Keine Beanstandung
Positionen der KG Rohre ist im Bild "Grundplatte-KG Rohre" eingezeichnet.

Das Haus soll auf die bereits bestehende Bodenplatte gebaut werden. Ein Abriss ist nicht geplant.

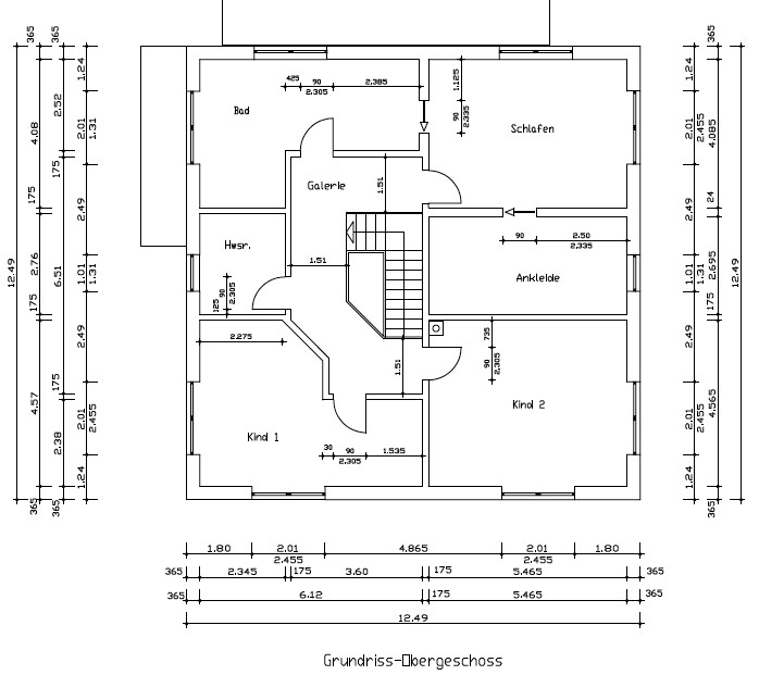
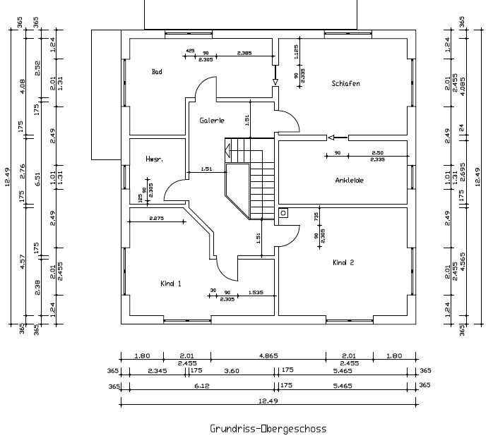
Das Haus muß als ein E+1 mit einem Satteldach 22° Dachneigung bebaut werden.

Ursprünglicher Eingabeplan vom Vorbesitzer wurde beantragt, liegt aber noch nicht vor.
Eigener Eingabeplan vom Architekten vorhanden --> wurde jedoch von den meisten als nicht gelungen bewertet.

Negative Punkte im Eingabeplan:
  • EG+OG
    • Treppe von EG und OG ist nicht korrekt dimensioniert
  • EG
    • Treppe unpassend, benötigt zu viel Platz, Eingang in den Wohnraum durch die Küche
    • Durchgang Garage-Haus passt wegen dem Höhenunterschied nicht
  • OG
    • Treppe unpassend, Raumaufteilung und dunkler Flur + Flurbreite von 1,10m
    • Balkon über die gesamte Hauslänge
      • Siehe Ansicht Osten bei unter dem Bild "Ansicht alle Seiten"
        • Der Balkon wurde verlängert, da das OG um 70cm zum EG herausragt Somit wurde die daraus entstehenden Nase kaschiert. Im vorherigen Plan war der Balkon nur über dem Erker.
Eigene Wünsche:

Das EG gefällt und von der Raumaufteilung ganz gut. Die Podesttreppe soll aber durch eine weniger Platz beanspruchende Variante ersetzt werden.
Die Treppe wurde Mittig ins Haus gesetzt, um die gewünschten Räume erstellen zu können.


  • Technikraum an der eingezeichneten Position belassen, zwecks Anschlüsse, die am Wendehammer liegen.
  • Position der Haustür wie eingezeichnet belassen --> Zugang von der Garage + Gäste die vor der Garage parken
  • Zentrale Treppe zwecks kurzer Wege
  • Treppenart: Eck, 1/4 gewendelt, 2x 1/4 gewendelt, gerade Treppe. Nicht gewünscht ist eine Wendeltreppe
  • Modernes Haus mit offener Küche und Wohnraum
  • Arbeitszimmer
  • Gäste-WC mit Dusche
  • Speisekammer für Gefriertruhe und Lebensmittel und Getränke
  • Große Kinderzimmer --> wenn möglich Südseite
  • Raum für begehbare Ankleide
  • Separater Eingang Eltern-Schlafzimmer und nicht über Ankleide
  • 1x Elternbad + 1x Kinderbad
  • Kleiner Hauswirtschaftsraum-Raum (ca.6-8m2) im OG für Waschmaschine und Trockner
  • Kachelofen, wobei der Kaminschacht nicht durch die Kinderzimmer gehen soll. Bevorzugt durchs Bad oder Hauswirtschaftsraum Raum

------------------------------------------------------------------------

Bebauungsplan/Einschränkungen
Größe des Grundstücks: Parzelle 35, 775m2
KFW 55
Hang: Ja
Grundflächenzahl: 0,35
Geschossflächenzahl: 0,80
Baufenster, Baulinie und –Grenze: siehe Lageplan
Randbebauung: Nein
Anzahl Stellplatz: 2
Geschossigkeit: 2
Dachform: Satteldach 22°
Stilrichtung / Ausrichtung: Süd - Südost
Maximale Höhen/Begrenzungen: Gebäudegröße Max = 14m x 10m + eingeschossiger Anbau von Länge, Max 10m Tiefe Max.3m

Anforderungen der Bauherren
Stilrichtung, Dachform, Gebäudetyp: Satteldach, 22° Neigung
Keller, Geschosse: ohne Keller, 2 Vollgeschosse
Anzahl der Personen, Alter: 4 Personen( 3xW, 1xM), 40, 38, 12, 9

Raumbedarf im EG, OG: Da ohne Keller, fällt der Raumbedarf pro Etage höher aus à 90m2

Büro: Familiennutzung oder Homeoffice? Geplant für Homeoffice, später eventuell Schlafzimmer / Schlafgäste pro Jahr: 6

Offene oder geschlossene Architektur: offene Architektur, zumindest im EG versucht

Konservativ oder moderne Bauweise: moderne Bauweise

Offene Küche, Kochinsel: offene Küche mit Kochinsel

Anzahl Essplätze: 1
Kamin: ja, soll im WZ platziert werden, da der Kamin nicht durch die Kinderzimmer verlaufen soll.

Musik/Stereowand: Nein

Balkon, Dachterrasse: Ja, nein

Garage, Carport: Doppelgarage mit Abtrennung

Weitere Wünsche/Besonderheiten/Tagesablauf, gern auch Begründungen, warum dieses oder das nicht sein soll: Photovoltaikanlage + eventuell Batteriespeicher, aktives Lüftungssystem mit Wärmerückgewinnung, Luftwärmetauscher, Zisterne

Hausentwurf
Von wem stammt die Planung: Architekt
-Planer eines Bauunternehmens: Nein
-Architekt: Ja
-Do-it-Yourself: Nein
Was gefällt besonders? Warum? EG, durch die offene Bauweise mit großen Fenstern

Was gefällt nicht? Warum? OG Aufteilung

Preisschätzung lt Architekt/Planer: ?Persönliches Preislimit fürs Haus, inkl Ausstattung:400 k€

Favorisierte Heiztechnik: Luftwärmetauscher mit Fußbodenheizung

Wenn Ihr verzichten müsst, auf welche Details/Ausbauten
-könnt Ihr verzichten: Batterie

Könnt Ihr nicht verzichten:
Warum ist der Entwurf so geworden, wie er jetzt ist? ZB
Standardentwurf vom Planer? Nein, Ideen anhand Musterhäuser + Grundrisse im Internet + Architekt

Was ist die wichtigste/grundlegende Frage zum Grundriss in 130 Zeichen zusammengefasst?

Wie kann ich das Haus besser aufgeteilt werden?

Detailierter Baugrundplan mit Gebäudeflächen, Wegen und Grünflächen


Lageplan eines Baugebiets mit Grundstücken, Straßen, Grünflächen und Gebäudeeinheiten


Konstruktionsplan der Bodenplatte mit Wasserleitungen, Abflussrohren und Zisterne


Grundriss eines Einfamilienhauses: Küche/Essen, Wohnen, Terrasse, Bad, Garage.


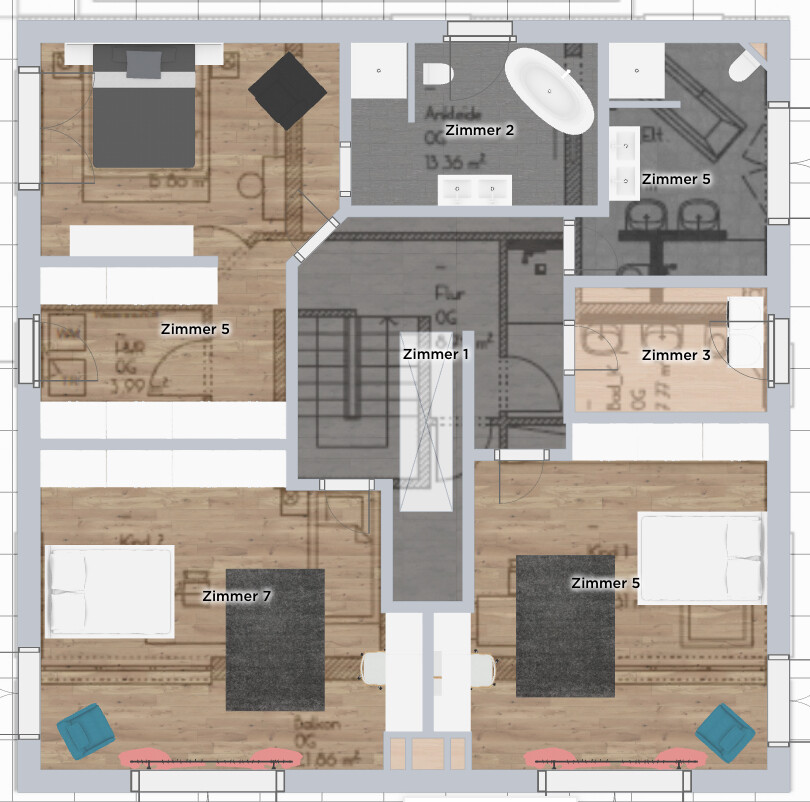
Grundriss des Obergeschosses: Schlafzimmer, Ankleide, Bad, zwei Kinderzimmer, Flur, Balkon.


Grundriss eines zweigeschossigen Hauses mit EG-Wohnbereich und OG-Schlaf-/Kinderzimmern, Innenhof.


Mehrfachansicht eines modernen Hauses: Ost-, Süd-, West-, Nordansicht und Wohnhausschnitt


Grundriss eines Hauses mit KG und EG: Küche, Wohnen, Flur, Bad, Technik, Terrasse.


Offener Grundriss eines Wohn- und Essbereichs mit Kücheninsel, Esstisch und Sofa-Lounge.


Grundriss einer Wohnung: Bad mit Badewanne, Küche, Schlafzimmer mit Bett, Wohnzimmer mit Tisch.
M
MBS2201
08.01.18 00:49
Anbei ein paar Spielereien von meiner Seite, da ich im ersten Thread nicht mehr als 10 Dateien hochladen konnte.

3D-Grundriss: Offenes Wohnzimmer, Küche mit Esstisch, Bürobereich, Gartenansicht


Oberer Grundriss einer Wohnung mit zwei Schlafzimmern, Bad, Küche und Wohnzimmer.


Moderne zweistöckige Haus-Renderung mit großen Glasfronten, Terrasse und Balkon.
M
MBS2201
08.01.18 07:41
Anbei noch ein Ausschnitt des für mich gültigen Bebauungsplanes.
Deswegen hat der Architekt das OG verkürzt.

Textdokument mit Bauleitfäden zur Gestaltung des Hauptgebäudes und Anbauzonen (WA)
K
kaho674
08.01.18 12:15
Ist die Bodenplatte tatsächlich an der einen Ecke schon ausgeklinkt? Wie sind da die genauen Maße?
M
MBS2201
08.01.18 12:19
Hallo, nein ist nicht ausgeklinkt. Die Bodenplatte ist quadratisch mit den Maßen 12.49x12.49 m2
K
kaho674
08.01.18 12:36
Kann denn die Garage auch 1m weg stehen mit Überdachung / Gang und Treppe dazwischen oder muss die direkt am Haus stehen? Wegen des Höhenunterschiedes meine ich?
treppearchitekturbodenplattegarageküchebalkonsatteldacheingabeplankinderzimmerkeller