Stadtvilla Grundriss - Änderungsvorschläge?

4,00 Stern(e) 26 Votes
Zuletzt aktualisiert 23.12.2025
Sie befinden sich auf der Seite 24 der Diskussion zum Thema: Stadtvilla Grundriss - Änderungsvorschläge?
>> Zum 1. Beitrag <<

Y

ypg

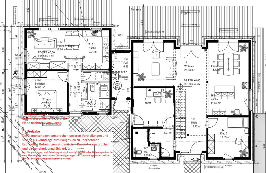
Auf die Schnelle fällt mir auf, dass das WZ, also die 3,70 x 3,x0, nicht maßstabsgetreu möbliert ist. Ein normales Familiensofa müsste mit in die Freifläche gestellt werden. Das wird aber alles andere als gemütlich. Man sitzt dann ja in der Eingangsflucht. Wo finden sich denn die QM des Mitteltraktes? Zoniert und eingerichtet ist ja hier dass Ziel, ohne die Mitte auszukommen und diesen Trakt als großzügiges Hausteil zu sehen. Allerdings muss alles auch in dieser Flucht mitbenutzt werden. Ich glaube nicht, dass das so gewollt ist.
Zum Büro/Praxis: unser Büro mit 14qm finde ich schon megaklein für Bürotätigkeit. Ich glaube nicht, dass Euch bewusst ist, was nicht in unter 11qm möglich ist bzw was ein Raum mit 3 Türen nicht kann.
Hier ist mind. eine Tür zu viel. Ansonsten würde ich Hauswirtschaftsraum und Toi tauschen und die Verbindung von Flur zum Hauptflur mit einer Tür verschließen.
Einliegerwohnung finde ich pers. für ein Paar Mitte 60 zu klein, aber das muss ja jeder selbst wissen, womit er auskommt
Ankleide ist auch fast ungenutzt. Ein Jammer für die teuren Quadratmeter. Gleiches gilt fürs Kinderbad.
P.s. Wir haben übrigens auch den Eingangsflur offen und die Flucht als Essplatz. Ich würde es nicht wieder machen, weil es dort nicht gerade gemütlich ist. Für Essbereich, also aktiver Fläche ist es noch ok, aber als Chillbereich würde ich mir da noch etwas anderes ausdenken.
 
B

benutzer 1004

Das Riesen Flachdach halb begrünen und halb als Dachterrasse - da könnte ich mir was außergewöhnliches vorstellen. Braucht ihr aber nicht, weil Garten ausreichend groß, oder?
 
kbt09

kbt09

Küche ist schlecht möbliert, also nicht Maßstabsgerecht. Insel kann so nicht werden.

Wohnzimmer würde ich auch eher planen, dass Sofa in der Nische steht und TV dann in der Ecke planoben.

Elternbereich ist mit gut 38 qm ganz schön groß, bietet aber letztendlich nur für gut 5 m Schrankplatz. Bett würde ich auf die andere Seite planen und die Durchgangstüren Ankleide/Bad wiederum eher nach rechts. Dann hat man das Kopfteil nicht neben der Eingangstür.

Tür zur Einliegerwohnung sollte andersherum anschlagen.

Warum 2 Türen zum Arbeitsraum? 1 würde ich definitiv sparen. Wenn Wartebereich im Zwischengebäude, dann die Außentür sparen.

Was ich gar nicht sehe, ist eine gescheite Garderobe für eine 4-5-köpfige Familie.
 
kaho674

kaho674

Tja, ich würde sagen, eine Verbesserung zum Ausgangsentwurf ist es auf jeden Fall. Schade, dass man mit dieser Firma offenbar nicht alles umsetzen kann.

Im Grunde wurde schon alles gesagt. Davon wurde m.E. nur wenig umgesetzt. Insbesondere die Garderoben und Stellflächen sind bei Euch viel zu knapp. Ein Großteil der Garderobe des Haupthauses wird bei Kind 3 landen. Jede Wette, dass die sinnfreie Tür in den Garten im Zwischenbau innerhalb kurzer Zeit mit irgendwas zugestellt wird. Ich frag mich, warum es überhaupt jetzt noch diesen Zwischenbau braucht? Verlegt man den Eingang des Anbaus nach vorn, hätte man den gesamten Zwischenbau für irgendwas anderes (hat übrigens annähernd die Größe des HAR ). Oder er kann ersatzlos wegfallen. So ist es nur sinnloser Flur - komisch.

Da es ja nun mal so sein soll:
Das Badequipment im Anbau würde ich alles um 1 Stelle rotieren, so dass das Waschbecken an der Selle der Dusche ist. Alle anderen wandern im Kreis mit.
Schiebetür zwischen Arbeiten und Eingangsflur im Haupthaus hatte ich auch schon gedacht, wie Yvonne empfohlen hat, damit die Kunden nicht ins Wohnhaus schauen können.
 
11ant

11ant

Der Seniorenanbau ist immerhin entschlechtert - das große Wort "verbessert" möchte ich hier nicht mißbrauchen. Machen Heilpraktiker neuerdings überwiegend Hausbesuche ? - mir kommt der Praxisraum nämlich sehr reichlich unpraktisch vor, und die Patienten werden das Bad im Appendix wohl ebenso häufig benutzen wie das Gäste-WC im Haupthaus - wenn das nicht gewünscht ist, sehe ich die Absegnungsreife noch nicht erreicht. Das Ensemble wirkt auf mich "schief", d.h. der Anbau optisch wie "ohne Dach". Was hat es eigentlich mit dieser "temporären Grundstücksgrenze" auf sich, die einen Keil in den Grundriss hackt ?
 
L

Laufi92


Grundriss eines Einfamilienhauses: Wohnzimmer, Küche, Essbereich, Schlafzimmer, Bad, Diele, Terrasse.


Ihr Lieben,

Bitte schaut mal. Ich glaube ich hab's!
Technikraum in die Mitte, hab extra alle Gerätschaften reinkopiert, um der zuständigen Dame zu veranschaulichen, dass es reinpasst. Dann den Eingang der Einliegerwohnung anders gesetzt. Ich glaube das müsste die beste Lösung sein. Vergrößert die Praxis und unser Wohnzimmer und schenkt und Dusche und Garderobe.
 
Zuletzt aktualisiert 23.12.2025
Im Forum Grundrissplanung / Grundstücksplanung gibt es 2554 Themen mit insgesamt 88560 Beiträgen


Ähnliche Themen zu Stadtvilla Grundriss - Änderungsvorschläge?
Nr.ErgebnisBeiträge
1Fenster / Türen / Garderobe 13
2Eckgrundstück mit Einliegerwohnung - Seite 19119
3Hausbau mit Einliegerwohnung - Anbau? - Seite 327
4Treppe im Wohnzimmer als Hype - Pro & Contra? - Seite 426
5Grundriss, Hausanordnung EFW 150m2, Keller + Einliegerwohnung - Feedback erwünscht - Seite 467
6Einliegerwohnung für Eltern: 210 m² Einfamilienhaus und 80 m² Einliegerwohnung - Seite 16129
7Grundriss Einfamilienhaus mit Einliegerwohnung 77
8Grundrissplanung Wohnzimmer und Flur zu schmal? 21
9Meinungen, Anregungen und Verbesserungsvorschläge zur Planung - Seite 659
10Hausbau/Einliegerwohnung, Realisierung ohne Haushaltsrechnung 14
11Lösung für die Garderobe 106
12Pfiffige Schlafzimmer Idee mit Ankleide gesucht - Seite 219
13Stumpfeinschlagende Türen - Anschlag links oder rechts!? 32
14Meinungen zum Einfamilienhaus mit Einliegerwohnung Grundrisse - Seite 954
15Zwei Türen zur Diele berühren sich - Seite 531
16Wie sieht eine gelungene Garderobe aus? 33
17Türen in unserem EG nötig? Grundriss angehängt 36
18Grundrissplanung Einfamilienhaus ca. 250qm mit Einliegerwohnung - Seite 370
19Grundriss - Haus mit Einliegerwohnung 23
20Grundriss Einfamilienhaus Stadtvilla mit Einliegerwohnung - Was meint ihr? - Seite 317

Oben