Stadtvilla Grundriss - Änderungsvorschläge?

4,00 Stern(e) 26 Votes
Zuletzt aktualisiert 20.11.2025
Sie befinden sich auf der Seite 9 der Diskussion zum Thema: Stadtvilla Grundriss - Änderungsvorschläge?
>> Zum 1. Beitrag <<

L

Laufi92

Was dürft ihr ändern?
Warum kein größer Anbau?
Müsst ihr den nehmen?
Der Anbieter war mir als aggressiv und unflexibel in Erinnerung. Zumindest die Verkäufer
Wir dürfen offiziell nur die nicht tragenden Wände und Kleinigkeiten wie Fenster ändern. Der Architekt konnte dann aber doch schon ein paar Dinge abändern. Bin jetzt sehr gespannt, ob die Änderungen, die wir jetzt noch wünschen, umgesetzt werden können. Der Anbau des Generation 8 ist tatsächlich der größte, den sie im Angebot haben und gleich ein Bungalow zu nehmen, wäre zu teuer geworden und hätte auch nicht aufs Grundstück gepasst. Das war jetzt schon eine knappe Geschichte
 
H

haydee

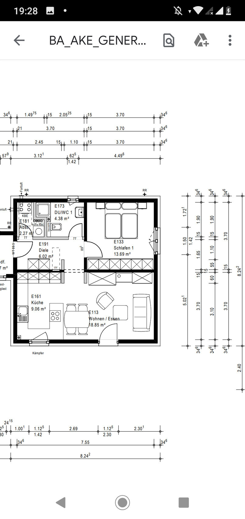
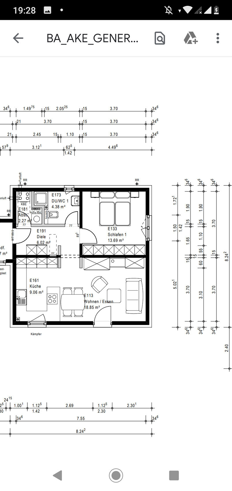
Kannst du das Foto in besser Qualität einfügen?

Ist leider nicht lesbar.

Wart ihr schon in der Bemusterung oder nehmt ihr ein Ausbauhaus?
 
L

Laufi92

Kannst du das Foto in besser Qualität einfügen?

Ist leider nicht lesbar.

Wart ihr schon in der Bemusterung oder nehmt ihr ein Ausbauhaus?
Wenn man es anklickt, wird es größer und die Qualität gut

Wir nehmen ein Ausbauhaus ohne Bodenbeläge etc und vergeben alle Gewerke selbst bzw machen viel selbst.
 
Zuletzt aktualisiert 20.11.2025
Im Forum Grundrissplanung / Grundstücksplanung gibt es 2535 Themen mit insgesamt 87977 Beiträgen


Ähnliche Themen zu Stadtvilla Grundriss - Änderungsvorschläge?
Nr.ErgebnisBeiträge
1Fundament für Anbau: Richtig so, Erfahrungen? 12
2Kosten Anbau an Einfamilienhaus - Zeitspanne Bauantrag/Bewohnbarkeit? 12
3Keller für kleines Tonstudio, oder doch ein Anbau? 16
4Kosten für Anbau und Teilmodernisierung bestehende Immobilie 32
5Anbau EG / Dachstuhlverlängerung OG - Was ist teurer? 17
6Wir planen einen Anbau 24
7Preis für Anbau 12x5m - Energieeinsparverordnung, kein spezieller KFW Standard 20
8Anbau-Planung / Änderung 72
9Hausbau mit Einliegerwohnung - Anbau? - Seite 327
10Umbau Siedlungshaus von 1960 mit Anbau - Feedback erwünscht* 20
11Rohbaukosten für Anbau abschätzen - Wer hat da Erfahrungen? 12
12Planung Anbau für Haus der 60er 63
13Ideen Grundrissanpassung Haus mit Anbau am Westhang 13
14Übernahme des Elternhauses + Anbau für Eltern 43
15Anbau an bestehendes "Mehrfamilienhaus" - Grenzabstand? - Seite 330
16Anbau an Bestandsobjekt machbar oder lieber warten 14
17Cat. 7 Netzwerk von Haupthaus zu Anbau unter der Erde 27
18Stadtvilla ca 200qm mit Anbau 35
19Anbau oder Kniestock Erhöhung ? 12
20Anbau an Altbau von 1965 mit Aufstockung 43

Oben