Stadtvilla Grundriss - Änderungsvorschläge?

4,00 Stern(e) 26 Votes
Zuletzt aktualisiert 20.11.2025
Sie befinden sich auf der Seite 30 der Diskussion zum Thema: Stadtvilla Grundriss - Änderungsvorschläge?
>> Zum 1. Beitrag <<

L

Laufi92

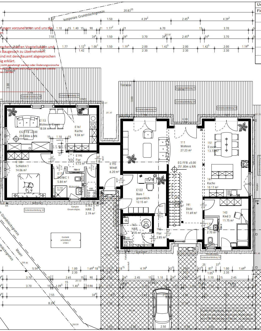
Hallo ihr lieben. Ich wollte mich nochmals für eure Hilfe bedanken!! Ohne euch wäre unser Grundriss nie so toll geworden wie er es jetzt ist. Natürlich möchte ich euch die finale Version nicht vorenthalten Technik in den Durchgang war leider aus mehreren Gründen leider nicht möglich. Aber so wie es jetzt ist, sind wir vollends zufrieden. Sogar die OG Kinderzimmer haben nun beide 15qm Einzig die kleinen Trennwände im Haupthaus Wohnzimmer und Einliegerwohnung Wohnbereich kommen noch weg.
Architekturzeichnung eines zweigeschossigen Hauses mit Satteldach, Fenstern, Außenbereich und Auto.

Grundriss eines Wohnhauses mit Wohnzimmer, Küche, Schlafzimmer, Bad, Terrasse und Garage.

Grundriss eines Hauses: Eltern- und Kinderzimmer, Flur, Bad, HWR, Treppe.
 
kaho674

kaho674

Technik in den Durchgang war leider aus mehreren Gründen leider nicht möglich. Aber so wie es jetzt ist, sind wir vollends zufrieden.
Schade, aber auf jeden Fall eine enorme Verbesserung zum Ausgangsentwurf, finde ich. Da ist ja jetzt doch ein Kinderbad - hihi.

Es ist zwar schon final, aber was mir noch auffällt - die ein oder andere Tür sollte man vielleicht lieber anders herum anschlagen lassen? Ich meine vor allem die hier:


Detaillierter Hausgrundriss mit Wohn-/Essbereich und Küche; rote Kreise markieren Öffnungen.
 
L

Laufi92

Schade, aber auf jeden Fall eine enorme Verbesserung zum Ausgangsentwurf, finde ich. Da ist ja jetzt doch ein Kinderbad - hihi.

Es ist zwar schon final, aber was mir noch auffällt - die ein oder andere Tür sollte man vielleicht lieber anders herum anschlagen lassen? Ich meine vor allem die hier:

Anhang anzeigen 39499
Die Türen & Zargen werden eh bauseits installiert. Darauf werden wir achten, danke
 
kaho674

kaho674

Die Türen & Zargen werden eh bauseits installiert. Darauf werden wir achten, danke
Naja, wenn die Ausführungspläne erst mal draußen und unterschrieben sind, muss man höllisch aufpassen, wenn noch solche Änderungen geplant sind. Sind die Türen erst mal bestellt, sind es unschöne Mehrkosten. Also ab jetzt Brille aufsetzen.
 
kbt09

kbt09

Da unterschreibe ich bei Katja ... was einem jetzt auffällt, sofort ändern, damit es sich nicht durch alle weiteren Pläne durchzieht und damit manifestiert.
 
L

Laufi92

Naja, wenn die Ausführungspläne erst mal draußen und unterschrieben sind, muss man höllisch aufpassen, wenn noch solche Änderungen geplant sind. Sind die Türen erst mal bestellt, sind es unschöne Mehrkosten. Also ab jetzt Brille aufsetzen.
Wir kaufen die Türen und Zargen auch selbst. Haben dieses Ausbaupaket komplett rausgenommen von daher haben wir bei den Plänen gar nicht so sehr auf die Anschläge geachtet. Gehen das eh alles noch mal in Ruhe durch wenn wir die Türen bestellen
 
Zuletzt aktualisiert 20.11.2025
Im Forum Grundrissplanung / Grundstücksplanung gibt es 2535 Themen mit insgesamt 87977 Beiträgen


Ähnliche Themen zu Stadtvilla Grundriss - Änderungsvorschläge?
Nr.ErgebnisBeiträge
1Türen und Zargen von unterschiedlichen Shops? 24
2Kann man diese Türen bzw. Zargen lackieren? Oder neu? 11
3Kontrollierte-Wohnraumlüftung: Luftspalt unter den Türen erforderlich? - Seite 327
4Welche Fenster und Türen empfehlenswert? - Seite 321
5Türen: lichte Höhe 13
6Fenster / Türen / Garderobe 13
7Das leidige Thema viel benutzter Türen bei Küchenschränken 16
8Ikea BRUSALI - Türen re und li passen nicht - Zapfen zu kurz? 10
9Ikea Pax Auli/Färvirk Türen - Schubladen stoßen vor Schiebetür 14
10Ikea Faktum Dämpfung für Türen verfügbar? - Seite 212
11IKEA PAX Fardal dreckige Türen Schmutzfänger 15
12Ankleide - Schrank mit oder ohne Türen? - Seite 227
13Stumpfeinschlagende Türen - Anschlag links oder rechts!? 32
14Abstand zwischen Türen und Böden 25mm 17
15Preisunterschiede Fenster, Türen 11
16Passen hohe Türen zu einer „normalen“ Raumhöhe? 20
17Zwei Türen zur Diele berühren sich - Seite 231
18Gleiche oder unterschiedliche Türen im Haus 23
19Türen in unserem EG nötig? Grundriss angehängt 36
20Dunkler Boden, helle Türen: beißt sich das? 29

Oben