Stadtvilla Grundriss - Änderungsvorschläge?

4,00 Stern(e) 26 Votes
Zuletzt aktualisiert 18.11.2025
Sie befinden sich auf der Seite 31 der Diskussion zum Thema: Stadtvilla Grundriss - Änderungsvorschläge?
>> Zum 1. Beitrag <<

Y

ypg

Wir kaufen die Türen und Zargen auch selbst. Haben dieses Ausbaupaket komplett rausgenommen von daher haben wir bei den Plänen gar nicht so sehr auf die Anschläge geachtet. Gehen das eh alles noch mal in Ruhe durch wenn wir die Türen bestellen
der Estrich ist davon abhängig, die Bodenbeläge auch. So schnell könnt Ihr als Laie gar nicht schauen, wie es umgesetzt wird.

Ich finde den Weg zu Eurem Klo da oben etwas weit
 
kaho674

kaho674

der Estrich ist davon abhängig, die Bodenbeläge auch. So schnell könnt Ihr als Laie gar nicht schauen, wie es umgesetzt wird.
Seh ich auch so. Alle orientieren sich an den Plänen. Zum Beispiel auch die Handwerker, die irgendwelche Installationen im Hauswirtschaftsraum oder bei der Elektrik machen. Wenn die sehen, dass irgendwo die Tür dagegen schlägt oder vor dem Schalter wäre, fragen sie (hoffentlich) erst mal nach. Wenn nicht weil Plan falsch, dann nicht...
 
Ibdk14

Ibdk14

Genau. Gaanz wichtig: Auf jeden Fall für die Elektrik die Pläne gleich richtig machen. Wir hatten bei zwei Türen den Lichtschalter auf der falschen Seite. Das Kabel wurde dann über die Zarge zur anderen Seite geführt und noch mal Löcher gebohrt. Muss ja nicht sein, wenn es sich vermeiden lässt.
 
Y

ypg

fragen sie (hoffentlich) erst mal nach. Wenn nicht weil Plan falsch, dann nicht.
warum sollten sie nachfragen? Ausführungspläne ist deren Bibel. Heutzutage wollen Bauherren sogar Steckdosen in Fensterlaibungen, da wird nichts mehr nachgefragt, da wird gearbeitet, weil erst mal das Telefon in die Hand und über drei Ecken nachfragen, kostet immens Zeit. Also bei Subs ist das so. Bei anderen kostet es aber auch Arbeitszeit.
Wenn die Türen nicht sofort bzw in der Ausführungsplanung richtig sind, gibt es richtig Ärger für die Bauherren. Da die Türen auch noch bauseits gemacht werden, fragt schon gar keiner mehr nach.
 
kaho674

kaho674

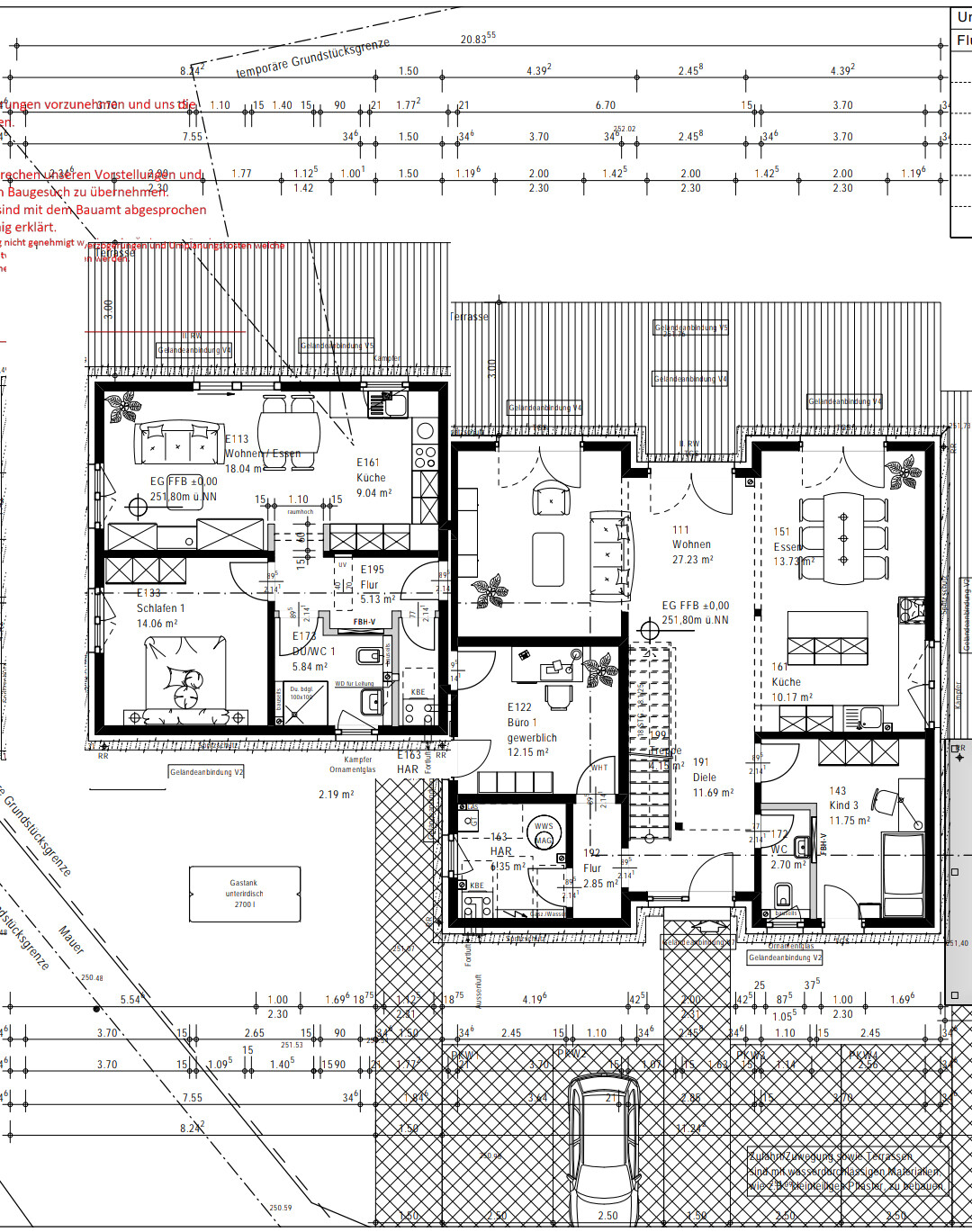
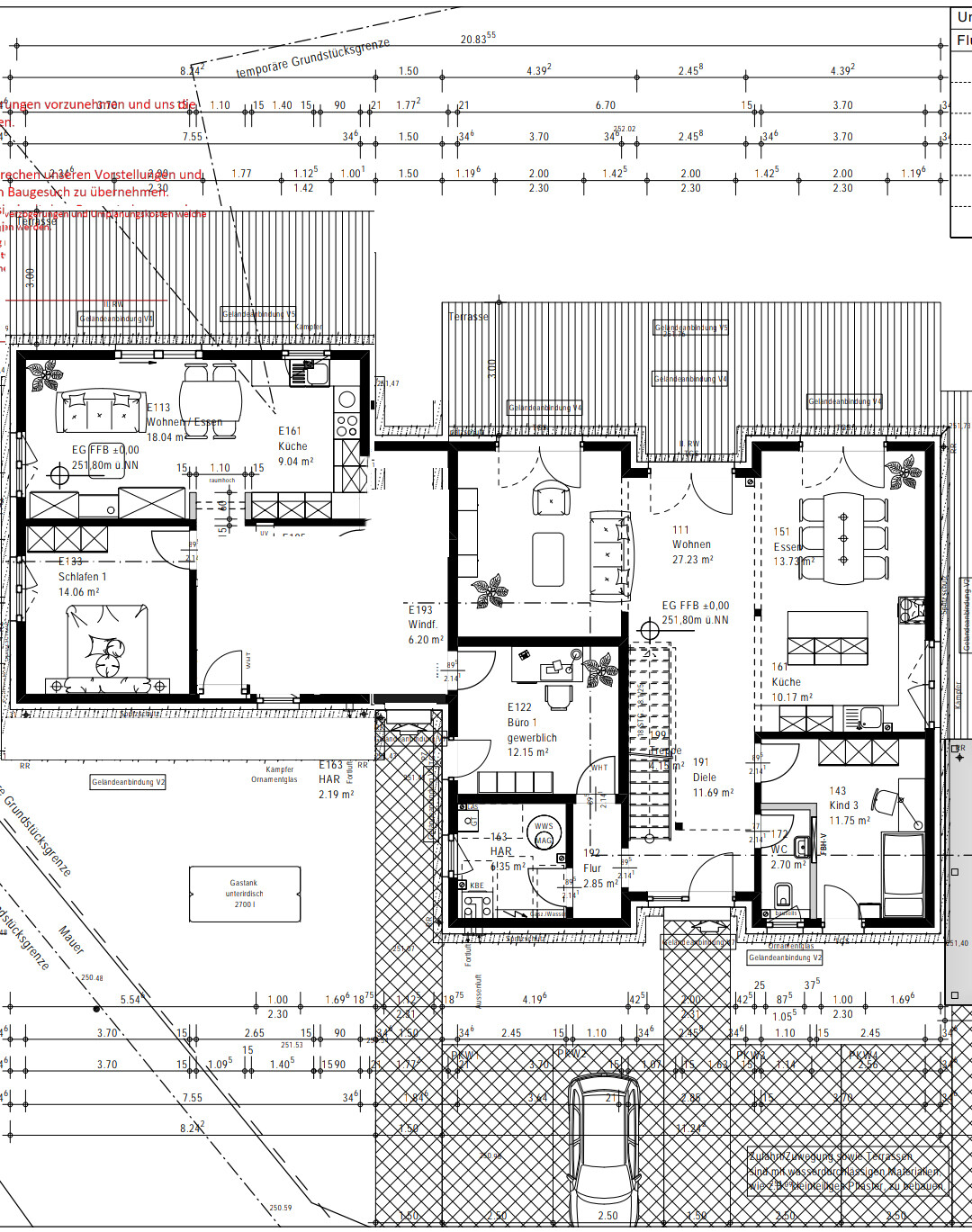
Also ich muss da jetzt noch mal nachhaken und entschuldige mich, wenn ich da in einer Wunde bohre, aber wozu braucht es dann überhaupt diesen Zwischenbau? Der hat m.E. überhaupt gar keinen Sinn und kostet nur Geld. Kann jetzt auch keinen Schönheitseffekt erkennen oder sonst irgend einen famosen Nutzen. Ist das jetzt echt nur, weil "A" so unflexibel beim Grundriss des Anbaus ist, dass die den Eingang nicht nach vorn legen können?

Aus meiner Sicht könnte der komplett wegfallen oder komplett dem Anbau zugeschlagen werden, wobei letzteres natürlich am besten wäre.

Detaillierter Grundriss eines Hauses mit Wohnzimmer, Küche, Schlafzimmer, Terrasse und Eingang


Grundriss eines Hauses mit Wohnzimmer, Küche, Schlafzimmer, Bad, Flur und Terrasse
 
Zuletzt aktualisiert 18.11.2025
Im Forum Grundrissplanung / Grundstücksplanung gibt es 2536 Themen mit insgesamt 87965 Beiträgen


Ähnliche Themen zu Stadtvilla Grundriss - Änderungsvorschläge?
Nr.ErgebnisBeiträge
1Was ist eine moderne Elektrik in einem Haus? Praxisbeispiel... 53
2Welche Fenster und Türen empfehlenswert? - Seite 321
3Türen: lichte Höhe 13
4Fenster / Türen / Garderobe 13
5Kontrollierte-Wohnraumlüftung: Luftspalt unter den Türen erforderlich? 27
6Das leidige Thema viel benutzter Türen bei Küchenschränken 16
7Ikea BRUSALI - Türen re und li passen nicht - Zapfen zu kurz? 10
8Ikea Pax Auli/Färvirk Türen - Schubladen stoßen vor Schiebetür 14
9Ikea Faktum Dämpfung für Türen verfügbar? - Seite 212
10IKEA PAX Fardal dreckige Türen Schmutzfänger 15
11Ankleide - Schrank mit oder ohne Türen? - Seite 227
12Stumpfeinschlagende Türen - Anschlag links oder rechts!? 32
13Abstand zwischen Türen und Böden 25mm 17
14Preisunterschiede Fenster, Türen 11
15Passen hohe Türen zu einer „normalen“ Raumhöhe? 20
16Zwei Türen zur Diele berühren sich - Seite 231
17Türen und Zargen von unterschiedlichen Shops? 24
18Gleiche oder unterschiedliche Türen im Haus 23
19Kann man diese Türen bzw. Zargen lackieren? Oder neu? 11
20Türen in unserem EG nötig? Grundriss angehängt 36

Oben