Stadtvilla Grundriss - Änderungsvorschläge?

4,00 Stern(e) 26 Votes
Zuletzt aktualisiert 24.11.2025
Sie befinden sich auf der Seite 23 der Diskussion zum Thema: Stadtvilla Grundriss - Änderungsvorschläge?
>> Zum 1. Beitrag <<

L

Laufi92

Schaut mal bitte. Was haltet ihr von dieser Option fürs Haupthaus?
Habe herausgefunden, dass unter die Treppe eine Tür passen müsste.
So hätte man eine größere Praxis, ein kleineres (aber immer noch im Rahmen) Gästezimmer, ein größeres Gästebad, Garderobe und den HAR/Hauswirtschaftsraum direkt neben der Küche. Ich glaube das könnte die Lösung sein oder?
Ist zwar noch spiegelverkehrt, aber vom Grunde her sieht das doch nicht schlecht aus oder?
 
L

Laufi92

Schaut mal bitte. Was haltet ihr von dieser Option fürs Haupthaus?
Habe herausgefunden, dass unter die Treppe eine Tür passen müsste.
So hätte man eine größere Praxis, ein kleineres (aber immer noch im Rahmen) Gästezimmer, ein größeres Gästebad, Garderobe und den HAR/Hauswirtschaftsraum direkt neben der Küche. Ich glaube das könnte die Lösung sein oder?
Ach Mist, hatte nicht bedacht, dass die Patienten nun nicht mehr zur Toilette kommen können... Wäre so schön gewesen ☹
 
Y

ypg

Darf ich mal fragen, mit welchen Maßen Du alles vergleichst?
Irgendwie kommt doch da vieles gar nicht hin.... bestes Beispiel ist die Treppe.

Wie alt sind denn Oma und Opa? War es hier, wo ich gelesen habe, dass da ein Rollator im Spiel ist?
 
L

Laufi92

Darf ich mal fragen, mit welchen Maßen Du alles vergleichst?
Irgendwie kommt doch da vieles gar nicht hin.... bestes Beispiel ist die Treppe.

Wie alt sind denn Oma und Opa? War es hier, wo ich gelesen habe, dass da ein Rollator im Spiel ist?
Habe die Maße dem offiziellen und noch unveränderten Grundriss entnommen. Kann natürlich sein, dass ich da etwas falsch gemacht habe.

Oma und Opa sind Mitte 60. Rollator braucht die Oma eigentlich nur bei längeren Ausflügen & nicht im Haus. Sie hatte einen Unfall und ist seitdem leicht gehbehindert
 
L

Laufi92

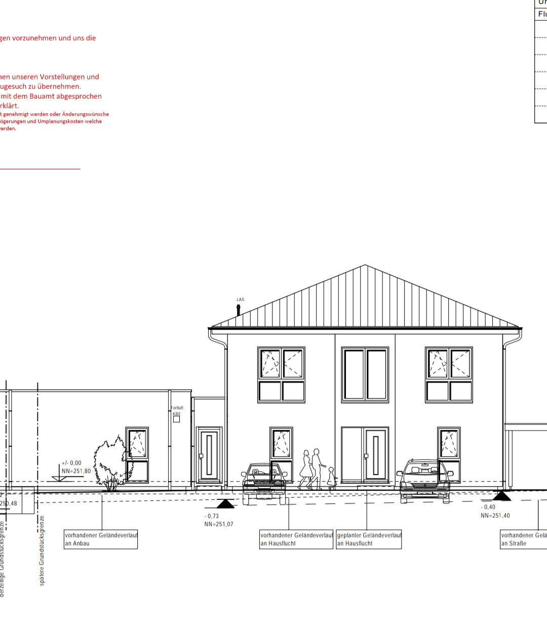
so wir haben jetzt die überarbeiteten Grundrisse zur Freigabe zugeschickt bekommen.
Natürlich möchte ich diese mit euch teilen. Ein paar kleinere Fehler sind mir schon aufgefallen. Zb das nur einfache Fenster im EG Gästezimmer. Fällt euch noch etwas auf? Leitungen etc?

Die Technik in die Mitte zu legen ging leider aus platztechnichen Gründen nicht. Auch musste unsere EG Dusche aus selbigen Gründen weichen
Grundriss eines Einfamilienhauses mit Terrassen, Zimmern und Auto vor der Garage.

Architekturzeichnung: zweigeschossiges Haus mit Satteldach, Fenstern, Autos und Fußgängern.

Architektonische Zeichnung eines zweigeschossigen Hauses mit Terrasse, Auto links, Personen draußen.

Grundriss eines Einfamilienhauses: Küche, Wohnen, Essen, Schlafzimmer, Bad, Flur, Carport.

Grundrissplan eines Gebäudes mit Abmessungen, Linienführungen, Kreisen 1–8 und Legende.

Grundriss eines Hauses mit Eltern-, Kinderzimmern, Flur, Bad, Küche und HWR.
 
Zuletzt aktualisiert 24.11.2025
Im Forum Grundrissplanung / Grundstücksplanung gibt es 2536 Themen mit insgesamt 87999 Beiträgen
Oben