Grundrissplanung REH mit ca. 145qm

4,00 Stern(e) 12 Votes
Zuletzt aktualisiert 19.11.2025
Sie befinden sich auf der Seite 7 der Diskussion zum Thema: Grundrissplanung REH mit ca. 145qm
>> Zum 1. Beitrag <<

M

Muc1985

Bei diesen Mittelgrundstück hat goalkeeper wohl sehr lange Zeit keinen Nachbarn...

Das ist in meinen Augen mehr als grenzwertig dieses Grundstück.
 
E

Escroda

Wenn das Mittelgrundstück aber auch die Stellplatzpflicht hat
Wobei ich nicht weiß, warum es zwei sein müssen. Laut Landesbauordnung ist nur ein Stellplatz pro Wohnung gefordert. Dann könnte er tatsächlich quer vorm Haus liegen.
Das ist in meinen Augen mehr als grenzwertig dieses Grundstück.
Dafür kostet es auch nur 70k.

Hier mal Variante Fort Knox mit gelöschter Geschossflächenzahl, die gar nicht festgesetzt ist und sich trotzdem in meine anderen Pläne eingeschlichen hat:

Lageplan eines Grundstücks mit grauen Gebäudeblöcken, roten Schraffuren und Nordpfeil.
 
Y

ypg

Wenn das Mittelgrundstück aber auch die Stellplatzpflicht hat, bleibt ja eigentlich gar nicht viel anderes, als die Häuser eben nicht 2,95 m von der Straße entfernt beginnen zu lassen (bisheriger Plan), sondern die Häuser müssen weiter ins Grundstück rein. Oder es wird mit dem Versatz gebaut.
Es ist geplant, dass das Mittelhaus nach hinten versetzt wird.

Wenn da überhaupt gebaut wird. Es wird wahrscheinlich eine Baulücke bleiben, Goalkeeper wird ein Einzelhaus bauen
 
H

hampshire

Erfahrung der letzten 18 Jahre:
Wir wohnen in einem Reihenhaus mit ähnlicher Raumaufteilung, etwas schmaler, dafür mit Keller. 2 Kinder.
Offene Treppe ist laut. Geschlossene Treppe nimmt Wohnbereich die Großzügigkeit. Ich habe die offene Treppe manches Mal verflucht, würde es aber wieder so machen.
Küche nach vorne hat sich trotz „Lange Wege zum Grill auf der Terrasse“ bewährt. Kurze Wege nach dem Einkauf, Blick auf die Kinder, die sich im Wohngebiet zum Draußenspielen auf der Straße oft zusammenrotteten, Wohnzimmer zum Garten.
Wir haben unser Schlafzimmer ins Dachgeschoss verlegt und dort ein 2. Bad eingebaut. Das Arbeitszimmer nimmt auch mal einen Gast auf und ist in der „Kinderetage“. Vorteil: Es gibt uns einen Rückzugsraum, wenn alles Andere im Haus zu trubelig wird. Teenager brauchen Platz um mit Freunden zu spielen und zu feiern. Die Kinderzimmer sind dafür zu klein. Da wird hin und wieder das Erdgeschoss geräumt. So kann man dahin gut ausweichen (oder ins Wohnmobil).
Der Flur stand immer eher zu voll. Der Kinderwagen steht eben ein paar Jahre etwas im Weg, so what.
Holt möglichst viel Licht von der Seite ins Haus. Macht die Kinderzimmer ähnlich groß und hell. Kauft oder mietet wenn möglich eine Garage in der Nähe. Wir haben eine Doppelgarage gegenüber unseres Reihenhauses. Ein Auto steht meistens quer davor. Das andere Auto und das Wohnmobil stehen auf der Straße. In der Garage sind Fahrräder und diverse andere Kinderfahrzeuge, Gartenmöbel und Grill (Winter)... nur kein Auto, denn das wurde durch die Kinderbewegungen (Fahrzeuge) immer nur verkratzt.
Lustig auch die Entwicklung. Inzwischen sind einige Kinder volljährig und haben selbst Autos. Die Parkplätze werden manchmal eng.
 
kaho674

kaho674

Na da werfe ich auch mal einen hin:

Bitte beachten: alle Treppen sind KEINE Podesttreppen - Programmfehler.

Was mir leicht unklar ist, sind die Höhen. Laut Ausgangs-Entwurf liegt die TH bei 6,50m. Der Kalksandstein sieht mir aber eher zwergig aus. Sind da die Raumhöhen exorbitant? Bei so einer kleinen Grundfläche geh ich vereinfacht von folgenden Höhen (in m) aus:
BP / Decken = 0,2
Wände = 2,6
Kalksandstein = 0,70

Wär es meins, würde ich die Eltis auch ins Dach planen, wie hampshire es hatte. Die Gaube würde ich mir sparen und für das Geld lieber ein Duschbad im Dach hinzufügen. Treppe vom Flur funktioniert auch im Reihenhaus - so kommt Ruhe ins OG. Fahrradschuppen im Garten würde ich aus Holz anbauen - gibt der Terrasse mehr Gemütlichkeit (nicht darstellbar).


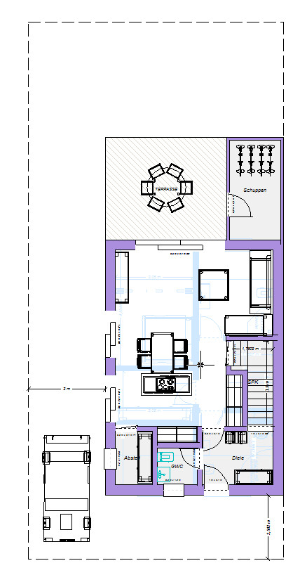
Grundriss eines Hauses mit Terrasse, Essbereich, Küche, Schuppen und Parkplatz.



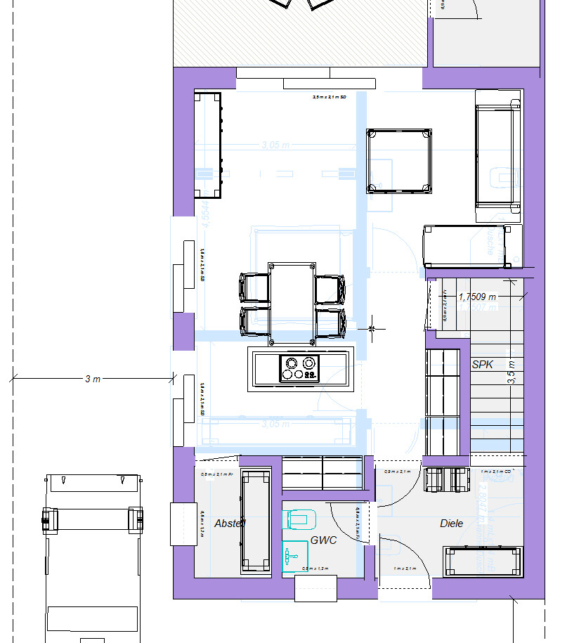
Grundriss: Küche mit Insel, Esstisch, Wohnzimmer, Diele, GWC, Abstellraum, SPK, Treppe.



Grundriss eines Wohnplans: zwei Zimmer (K1, K2), Büro, Bad, Flur und Treppenaufgang.


Grundriss eines Wohnhauses: Schlafzimmer, Einbauschrank, Dusche, Technikraum, Treppenhaus.



Zweistöckiges Haus mit Satteldach, grauer Fassade, vielen Fenstern und rotem Auto davor auf grünem Rasen.


3D-Haus mit grauer Fassade, Satteldach, Terrasse mit Gartenmöbeln, Anbau und rotem Auto.
 
kbt09

kbt09

... ja, die Gaube könnte man wirklich sparen.

Wenn allerdings wirklich 2 Stellplätze erforderlich sind, dann sehe ich die irgendwie nicht, wenn 1 seitlich ist und der andere quer vorm Haus ... da kommt man dann eben nur schlecht zum Eingang.
 
Zuletzt aktualisiert 19.11.2025
Im Forum Grundrissplanung / Grundstücksplanung gibt es 2536 Themen mit insgesamt 87979 Beiträgen


Ähnliche Themen zu Grundrissplanung REH mit ca. 145qm
Nr.ErgebnisBeiträge
1Grundriss Einfamilienhaus 240 m² mit teilüberbauter Garage - Seite 296
2 2 Vollgeschosse, Durchgang Garage, Hauswirtschaftsraum unter Treppe 25
3Grundriss Einfamilienhaus (ca. 170 qm) mit Garage - Hanglage - Seite 335
4Grundriss Einfamilienhaus 155m², ohne Keller, 3 Kinderzimmer, 1 Büro - Seite 538
5Treppe im Flur, Grundriss steht eigentlich schon :o( - Seite 320
6Bungalow Einfamilienhaus 140qm - Grundrissideen erwünscht - Seite 226
7Terrasse vom Nachbar grenzt an Garage 11
8Wie Gebäude platzieren? Haus Terrasse Garage Werkstatt 24
9Garage aus Kalksandstein oder Ytong - Seite 232
10Wohin mit der Treppe? Dachausbau Walmdachbungalow - Seite 319
11Haus ohne Garage und Keller? Ausbau Dachboden? Fresswarze? - Seite 585
12Grundriss Einfamilienhaus / Garage im EG? 10
13Grundriss, längliches Einfamilienhaus, integrierte Garage kein Keller 16
14Einfamilienhaus ca. 150 qm Grundriss - Treppe wie planen? 65
15Wie Hang sichern und Aufgang Garten kostengünstig gestalten? 27
16Stadtvilla 190m² mit Einfahrt & Garten zur Südseite 30
17Schallschutz Kinderzimmer 12
18Grundrissplanung Einfamilienhaus (Stadtvilla) ca.140m² (3 Kinderzimmer) 42
19Grundriss Bungalow 150qm geschlossene Küche, überdachte Terrasse - Seite 440
20Grundrissplanung: Flur im EG breit genug? - Seite 457

Oben