Grundrissplanung REH mit ca. 145qm

4,00 Stern(e) 12 Votes
Zuletzt aktualisiert 19.11.2025
Sie befinden sich auf der Seite 23 der Diskussion zum Thema: Grundrissplanung REH mit ca. 145qm
>> Zum 1. Beitrag <<

G

goalkeeper

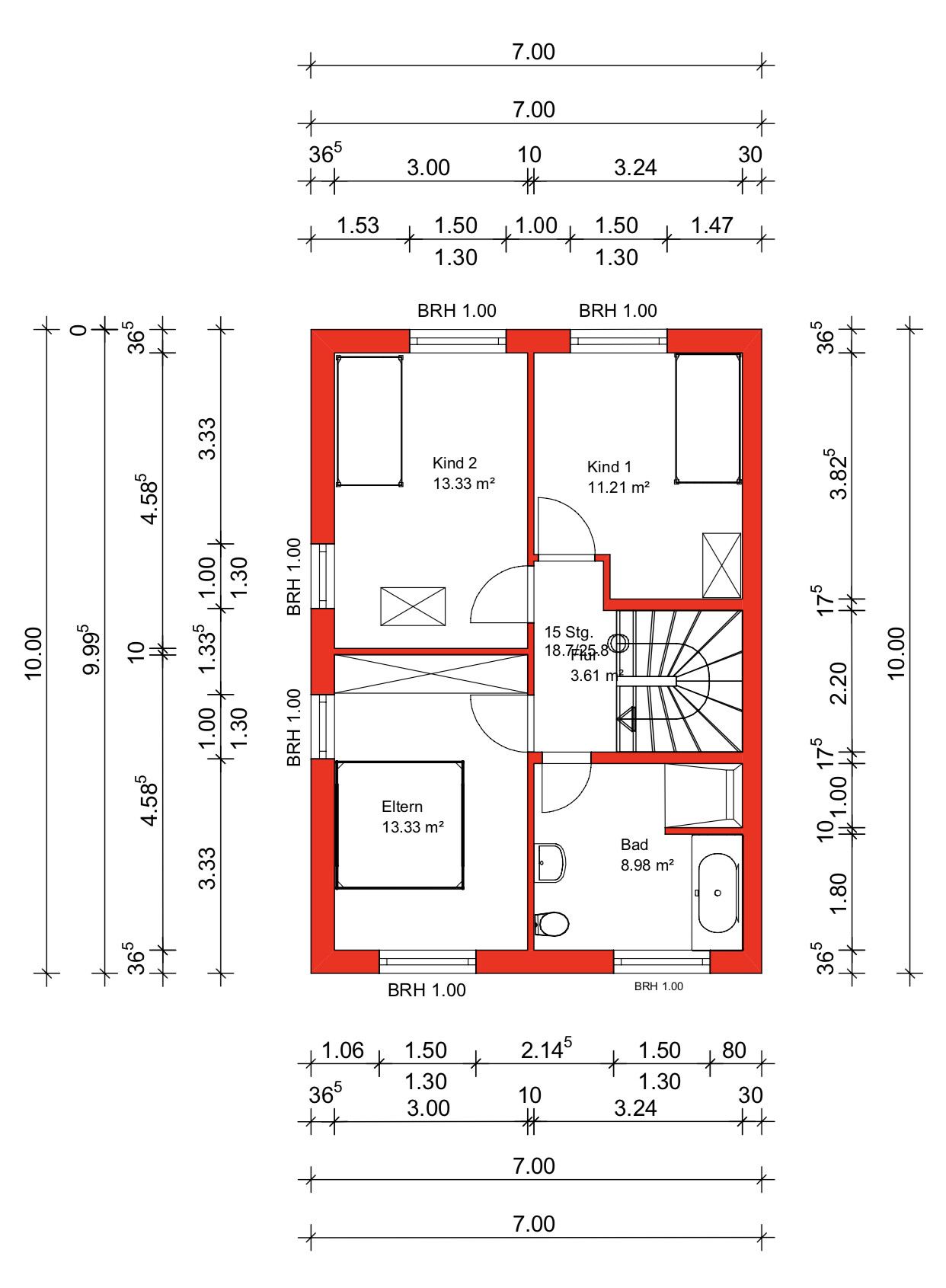
So...wir haben nun vom GÜ den Grundriss ändern lassen. Die beiden gleich großen Räume sollen die Kinderzimmer werden - der andere Raum evtl. unser Büro. Die Zimmerbeschriftungen sind noch nicht korrekt.

Im DG haben wir dann inkl. Gaube ein doch recht großes Eltern-Schlafzimmer und daneben lassen wir uns ein Bad mit Walki-In Dusche anbieten. Zusätzlich noch für den „Komfort“ an heißen Tagen eine Klimaanlage - wurde uns empfohlen. Mal schauen was der Spaß so kostet.

Grundriss eines Hauses mit roter Außenwand; Räume Bad, Technik, Elternzimmer, Flur, Wärmepumpe.


Grundriss eines Obergeschosses mit Elternzimmer, zwei Kinderzimmern, Bad, Treppe; rote Außenwand.
 
N

Niloa

Hihi, in einem Thread will die Frau noch nicht mal über Technikraum schlafen, ihr habt ihn neben dem Schlafzimmer. Nicht falsch verstehen! Finde nur die verschiedenen Sichtweisen interessant.
 
kbt09

kbt09

Dafür möchten wir im Garten jeden Meter für unsere Kinder zum spielen nutzen.
und
Entweder wir weisen einen Stellplatz quer vorm Haus aus oder zwei neben dem Haus (einen davon in einer Garage) und lassen diese dann ein wenig nach hinten überstehen.
Damit wird der Garten dann ein kleines Rechteck ... eher etwas langweilig. Fahrrad- und Autoproblematik ist nicht endgültig gelöst usw.

Und nein .. ich lasse nicht nur meine Argumente gelten, sondern auch andere Argumente. Zum Lesen hier mal die Sammlung

Und zur Veranschaulichung noch mal:


Grundriss eines Hauses mit Küche, Essbereich, Wohnzimmer, Treppe, Bad, Garten, Auto davor.



Vogelperspektive: Haus mit Garten, Terrasse, Wohnzimmer und Esszimmer; zwei Autos in Einfahrt



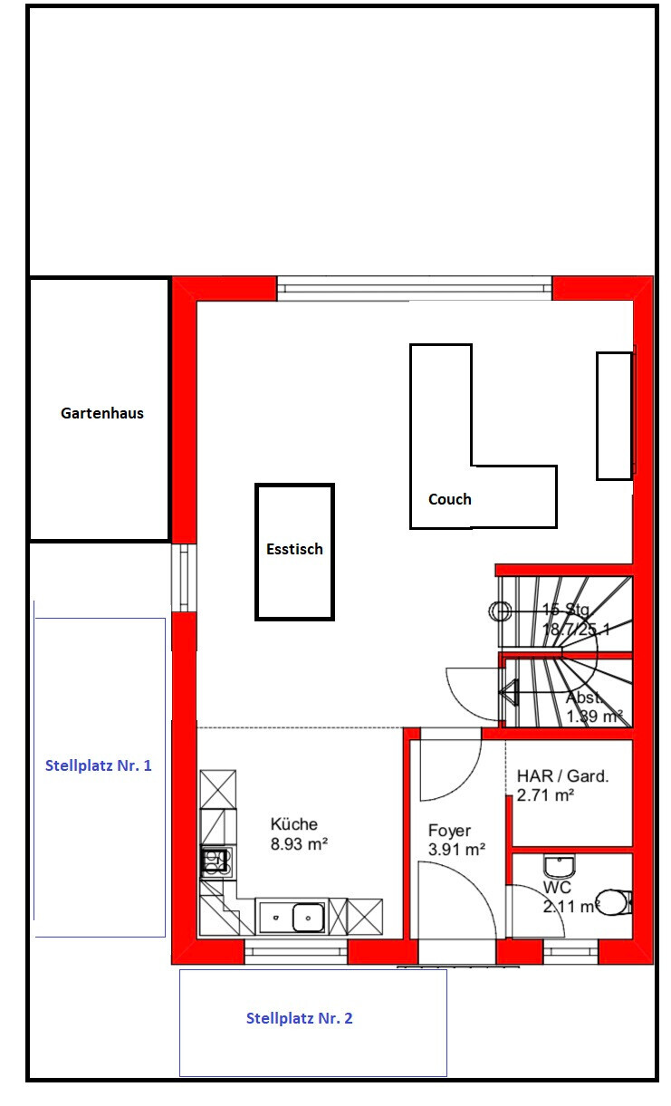
Grundriss eines Hauses: Küche, Esstisch, Couch, Foyer, WC, Treppe, Gartenhaus
 
Zuletzt aktualisiert 19.11.2025
Im Forum Grundrissplanung / Grundstücksplanung gibt es 2536 Themen mit insgesamt 87971 Beiträgen


Ähnliche Themen zu Grundrissplanung REH mit ca. 145qm
Nr.ErgebnisBeiträge
1Bungalow 148m² Grundstücksplanung / Grundrissplanung 280
2Grundrissplanung Einfamilienhaus 145qm bitte um Feedback 45
3Welche Software zur Grundrissplanung und Modellierung? 37
4Grundrissplanung 212qm Bungalow - Verbesserungsvorschläge - Seite 322
5Böses Reh das. - Seite 324
6Kaufpreisbewertung Neubau REH Bayern - Preis plausibel? - Seite 451
7Grundrissänderung bei Kernsanierung Denkmalgeschütztes REH - Seite 334
8REH - Grundrissplanung - Küche zu klein - Seite 230
9was für Farben für das Schlafzimmer ? 44
10Ankleide/Schlafzimmer Problem - Grundrissdiskussion 25
11Schlafzimmer auf der Südseite zu warm? 18
12Heizung Kinderzimmer,schlafzimmer und Bad 14
13Gestaltung Schlafzimmer 35
14Grundriss Elternbad und Durchgang zu Schlafzimmer 13
15Pfiffige Schlafzimmer Idee mit Ankleide gesucht 19
16Größe vom Schlafzimmer und Kinderzimmer - Seite 238
17Schlafzimmer warm im Haus mit Lüftung inkl. Wärmerückgewinnung 24
18Teppich im Schlafzimmer trotz Fußbodenheizung? 36
19Extra-Bad vom Schlafzimmer oder doch Abstellraum? 29
20Schaltung - Schlafzimmer - Deckenleuchte / Nachttischlampe 12

Oben