Grundrissplanung REH mit ca. 145qm

4,00 Stern(e) 12 Votes
Zuletzt aktualisiert 23.11.2025
Sie befinden sich auf der Seite 11 der Diskussion zum Thema: Grundrissplanung REH mit ca. 145qm
>> Zum 1. Beitrag <<

kaho674

kaho674

Genau...das Thema müssen wir bis Mitte Juli geklärt haben
Das nenn ich sportlich. Wieso jetzt dieser Druck?

Also 2 nutzbare Parkplätze. ohne dass die Kiste nach hinten rutscht, das übersteigt meinen Horizont.
Hab mal mit der abben Ecke rumgespielt. Aber da wird bei mir zwangsläufig das Haus länger. Das dürfte dann wieder das Budget sprengen, vermute ich. Mal nur die Skizzen ohne Fenster, DG usw.:


Grundriss eines Hauses mit zwei Garagen, offener Wohn-/Essbereich, Küche, Diele, WC und Treppe.



Grundriss eines Hauses: zwei Küchen (K), Gästezimmer (Gast), Dusche, Bad und Treppenhaus.


@ypg Yvonne, was hattest Du noch für ne Idee?
 
Y

ypg

@ypg Yvonne, was hattest Du noch für ne Idee?
... liegt bei mir zu Haus, warm und trocken
Bei mir war die Treppe ähnlich wie Deine, nur am Anfang auch um 90 Grad gedreht.
Zwischen Küche und Treppe (geschlossen) war der Durchgang.
Ich hatte aber nur 6 Meter Hausbreite, und da passt dann oben die zweite Treppe mit einem Schlafzimmer von mind. 3 Meter Breite ggü nicht mehr. Dann hab ich irgendwann aufgehört, weil auf 3 Meter geht es nicht...
Der Trick mit dem zweiten Stellplatz ist bei mir der, dass ich das OG auf Ostseite um 50cm/1 Meter rüberschauen lasse, sodass der Eingang noch eine Überdachung, der Stellplatz dann auch lang genug ist.*
Das WZ ist dafür eingeknickt, sodass dort etwas mehr Terrasse vorhanden ist. Es gibt in Reihe: Carport, Innenhof, Terrasse mit Abstellhäuschen und zum Schluss über die ganze Breite einen kleinen Rasen zum Spielen.
*So einen Übersprung hatte ich selbst im ERH seitlich, jetzt im Haus auch als Überdachung Eingang. Dann kann es also nicht so teuer zur Umsetzung sein
 
G

goalkeeper

Das nenn ich sportlich. Wieso jetzt dieser Druck?
Lt. GU sollten die Positionen der beiden Stellplätze für die Baueinreichung feststehen - und die wird zu Mitte/Ende Juli erfolgen.

Das mit der abben Ecke überzeugt mich leider nicht ganz - trotzdem erst mal vielen Dank für euren Einsatz.

Wir hatten heute beim Mittagessen noch mal über die grundsätzliche Raum- und Zimmeraufteilung philosophiert. Vermutlich wird sich doch noch mal alles komplett im OG und DG ändern. Für mein Gefühl haben die Kinder einfach zu kleine Zimmer und das Gästezimmer im DG ist einfach zu groß und wohl eher ungenutzt. Evtl. ziehen wir Eltern nun doch hoch, damit auch wir Platz haben. Allerdings werden wir dann wohl bei einem Bad bleiben - finde es schade ein Hauptbad im OG zu machen und dann nur die kleine Dusche im DG zu nutzen.
Aber dies nur mal so als unsere Gedankengänge beim Mittagsessen bei 30 Grad in Rom.
 
kaho674

kaho674

... liegt bei mir zu Haus, warm und trocken
...Der Trick mit dem zweiten Stellplatz ist bei mir der, dass ich das OG auf Ostseite um 50cm/1 Meter rüberschauen lasse, sodass der Eingang noch eine Überdachung, der Stellplatz dann auch lang genug ist.*
Ok - also hast Du den Garten mehr in den Süden verlagert und dafür das Haus auch Richtung Westen geschoben? Was nimmst Du für einen Stellplatz für Maße? Wenn ich an meine Fahrkünste denke, dann sollten es nicht unter 5,80 x 2,70m sein für ein Auto. Und das auch nur, wenn ich gerade rein fahren kann. Quer vorm Haus - da brauch ich dann jeden Abend 20 Minuten nur zum Parken. (Die Nachbarn hätten ihren Spaß. )
 
kbt09

kbt09

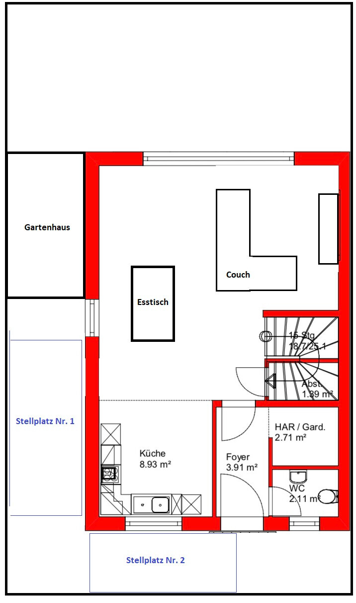
Ich denke, dass 3 m seitlich vorm Haus für den Querplatz halt insgesamt nur 7 m übrig lassen und das soll dann noch mit dem östlichen (planunten) liegendem Hauseingang passen. Deshalb hatte ich die Autos ja schräg vors Haus gesetzt.

Das sind hinter dem Haus 8x10m und vor dem Haus liegt Stellplatz 2 schon vor der Tür, Fahrräder sind von der Straße aus gar nicht unterzubringen:

Grundriss eines Hauses: Küche, Foyer, WC, Wohnzimmer mit Couch, Esstisch, Gartenhaus, Stellplätze.


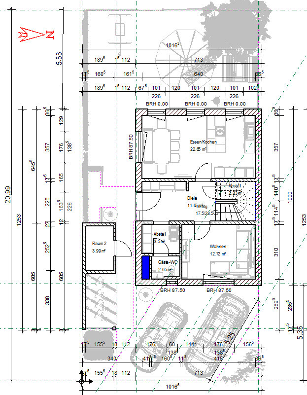
Und das sind aktuell 5,55x10m plus Fortsetzung um die Südecke, vorm Haus aktuell 5,35 m ... könnte man evtl. noch etwas wenig nehmen. Fahrräder von der Straße aus verstaubar, Garten von der Hausseite erreichbar, großzügigere Treppe:

Grundriss eines Hauses mit Küche, Essen/Kochen, Wohnzimmer, Diele, Abstellräumen, Gäste-WC, Garage.


Argument ... Kinder aus der Küche schauen. Sind die Kinder noch klein, dann sind sie im eigenen Garten und können aus der Küche beguckt werden. Dürfen sie dann auf die Straße ohne Begleitung müssen sie auch nicht immer beguckt werden .

Hausaufteilung ermöglicht:
- ruhiger Rückzugsraum zum TV-Gucken
- Kochen/Essen zusammen, auch später gerne mal von Teenager-Kindern genutzt. Als Eltern hat man dann im Rückzugsraum Ruhe
- Oder man bildet 2 Runden .. die einen schauen Fussball, die anderen wollen nur gemütlich sitzen.
 
Zuletzt aktualisiert 23.11.2025
Im Forum Grundrissplanung / Grundstücksplanung gibt es 2535 Themen mit insgesamt 87992 Beiträgen


Ähnliche Themen zu Grundrissplanung REH mit ca. 145qm
Nr.ErgebnisBeiträge
1Unterstützung zur Haus- und Grundstücksplanung - Seite 225
2Ist die Größe der Terrasse ausreichend? 4x4.5m - Seite 213
3Ausgewiesener Stellplatz als Garten nutzen - Seite 213
4Planung Terrasse und Überdachung 50
5Himmelsrichtung Terrasse, Überdachung ja/nein 12
6Beschattung Terrasse - Überdachung, Markise, etc. 43
7Esstisch in einer kleinen Küche - Seite 449
8Stadtvilla 190m² mit Einfahrt & Garten zur Südseite 30
9Erfahrungsaustausch Terrassennutzung / Überdachung - Seite 213
10Planung Außenanlage - Terrasse positionieren - Seite 478
11KD-Überdachung Erfahrungen. Wer hat mit denen gearbeitet? - Seite 15766
12Wohin mit der Treppe? Dachausbau Walmdachbungalow - Seite 219
13Probleme bei der aufteilung Küche, Essen , Wohnen - Seite 216
14Grundrissfrage, Treppe, Fenster, Ausrichtung 12
15 2 Vollgeschosse, Durchgang Garage, Hauswirtschaftsraum unter Treppe 25
16Grobe Schnitzer im Grundriss? Küche zu klein? - Seite 639
17Stadtvilla mit gerader Treppe, offene moderne Bauweise, 140m² 18
18Wie Hang sichern und Aufgang Garten kostengünstig gestalten? 27
19Terrasse an Hanglage auf Stelzen - Holz oder Stahl besser? - Seite 638
20Eingang Grundriss welche Treppenvariante - Seite 231

Oben