Planung Grundriss / Erster Entwurf für erstes Feedback

4,60 Stern(e) 5 Votes
Zuletzt aktualisiert 21.11.2025
Sie befinden sich auf der Seite 3 der Diskussion zum Thema: Planung Grundriss / Erster Entwurf für erstes Feedback
>> Zum 1. Beitrag <<

B

Bauexperte

@ Wanderdüne

Ich versuche nicht zu deuten, deshalb wollte ich von Dir wissen, was Du meinst.

"Introvertiert" übersetzt der Duden mit "nach innen gekehrt, verschlossen" oder auch "auf das eigene Seelenleben gerichtet. Verwendet wird das Adjektiv stets in der Beschreibung eines lebenden Wesens.

Im Zusammenhang mit einer Örtlichkeit, der Eigenschaft eines Raumes ist es mir neu.

Grüße, Bauexperte


Bauexperte, von unterwegs
 
W

Wanderdüne

Wenn man Fremdwörter benutzt, dann richtig - ansonsten ist es peinlich... und Deutungen müssen dann auch nicht sein :rolleyes:
Hätte nicht gedacht, daß ich mit einem griffigem Transfer in ein dudentechnisches Wespennest steche.
Ich bekenne, in dieser Hinsicht sowohl Gedankenverbrecher, als auch zukünftig Wiederholungstäter mit Bekenntnis zu einem nicht-statischem Umgang mit unserer Sprache zu sein.

Ich fürchte, daß das nächste introvertierte Wohnzimmer bereits.... lauert ;) .

WD
 
B

Bauexperte

Guten Abend,

Hätte nicht gedacht, daß ich mit einem griffigem Transfer ...
Mhmm - war doch die ein oder andere Sangria zu viel des Guten ... für mich natürlich? Ich erlaube mir, auch bei diesem Statement um weitere Erklärung zu bitten.

Ich habe ja gelernt, daß Architekten nicht selten Künstlerkinder sind ... bist Du vlt. auch in einem kreativen Beruf unterwegs? By any change, I´m able to change the subject ...

Grüße, Bauexperte
 
L

LiquidSky

Hallo,

freut mich ja das die Diskussion hier weiter gelaufen ist.
Ich hätte auch Fragen müssen was sich genau hinter dem Begriff verbirgt.

Es ist ein freier von uns beauftragter Architekt aber nur bis Stufe 4. Sicher kann man bis da keinen detaillierten Kostenplan erwarten, aber 40% über unserer genannten Preisvorstellung in den ersten groben Angeboten, war einfach nicht machbar. Da lohnt es dann auch nicht im Detail auszuschreiben. Ich will hier auch gar nicht den Architekten kritisieren. Es ist einfach ein kreativer Prozess wo das Ergebnis nicht gleich am Anfang feststeht und er unterstützt uns auch weiter bei der neuen Planung.

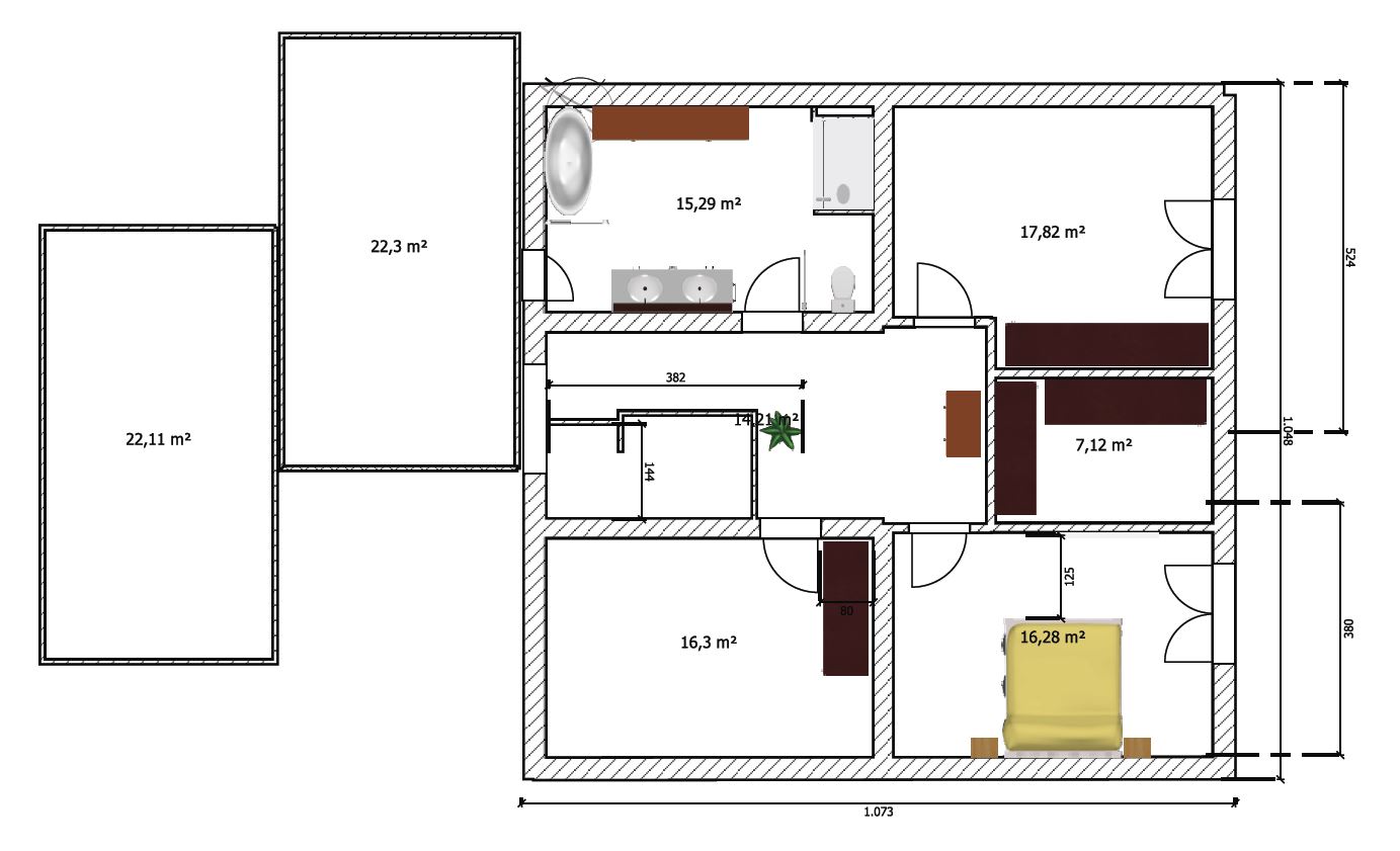
Ich habe mir die Kommentare durch den Kopf gehen lassen, mal weiter überlegt, Wandstärken eingesetzt und durch die andere Türe zum Gäste/Arbeitszimmer das Wohnzimmer etwas 'extrovertierter' gestaltet.

Am Anfang habe ich auch mit Papier geplant, aber dann müsste ich immer wieder von vorne anfangen um was kleines zu ändern. Am Computer kann ich jetzt viel schneller was ausprobieren und dadurch weiter kommen.
Der Grundriss ist sicher nicht aufregend. Soll er auch gar nicht sein. Wir wollen ein vom Grundriss her durchdachtes Haus, welches nicht teurer als nötig wird.

Ich habe ein paar Dinge am Grundriss umgestellt und einen ersten Wurf vom OG angehängt.
Die Fenster sind sicher noch nicht final sondern eher Platzhalter bzw. Test wie was wirkt.
Zum Grundstück habe ich mich mal an einer Skizze versucht. Das geplante Haus ist orange (Dachfirst - rote Linie). Das Baufenster ist das blaue Vieleck. Daneben ist lila das mgl. Baufenster für eine Garage.
Das Grundstück fällt vom Wohnblock in Richtung rechte Villa (schwarzes Rechteck) etwa 1,20m ab.
Der Grundriss vom Haus ist jetzt knapp 10,50 x 10,50 m. Zwischen Haus und Garage soll ein Carport gebaut werden, da gleichzeitig als überdachter Eingang und im hinteren Bereich geschlossen wird und als Schuppen dient.

Ich weiß das noch alles recht Laienhaft aussieht, aber den finalen Schliff soll es auch vom Profi bekommen.

Ich freue mich weiter über konstruktive Kommentare.
Danke!

Viel Glück, LiquidSky

3D-Hausmodell eines modernen Einfamilienhauses mit Garage und Terrasse


3D-Haus Grundriss mit Schlafzimmer, Bad, Terrasse und Wohnzimmer


Detaillierter 2D-Hausgrundriss mit Zimmern, Bad, Flur und Außenbereichen


3D-Hausmodell mit moeblierten Innenraeumen und Terrasse


Grundriss eines Einfamilienhausplans mit Garage, Wohnzimmer, Küche und Terrasse.


2D-Grundrissplan eines Baugrundstücks mit Garage und Abmessungen
 
Zuletzt bearbeitet:
D

Doc.Schnaggls

Hallo,

zum OG:

- Ankleide ohne Tür
- Ankleide ohne Fenster
- Durchgang zum WC zwischen Mauer und Dusche viel zu schmal

Alles in allem, finde ich es gut, dass Du Dir Gedanken über Dir mögliche Raumaufteilung machst, Du nimmst Dir aber auch dadurch viele Möglichkeiten, die Dir ein Profi aufzeigen könnte.

Wir haben in unserem Auswahlprozess eine Anforderungsliste erstellt, die wir dann verschiedenen Bauunternehmern in die Hand gedrückt haben und uns dann vom Ergebnis überraschen ließen.

schlussendlich haben wir dann einem Unternehmen den Auftrag erteilt, in deren Entwurf aber auch noch etliche Elemente aus anderen Angeboten eingearbeitet.

Grüße,

Dirk
 
M

milkie

Hallo,

ich bezweifle ehrlich gesagt dass das alles so funktioniert. Ein Planer wäre sicherlich empfehlenswert! Die Grundidee passt.

Die Dusche im EG ist ein Zustand! Wo soll man seine Kleider ablegen oder sich abtrocknen etc.? Ihr braucht sie doch nicht wirklich.
Ganz ehrlich - die Gäste die ich bei mir nächtigen lassen, die lasse ich auch meine Dusche im OG nutzen...

Der Zugang zum Technikraum sieht knapp aus. Der würde davon profitieren.

Wie soll die Treppe gestaltet werden? Offen kann ich mir das so bei der Haustür nicht vorstellen. Gibt's dazu ein Anschauungsbeispiel?

Im OG: Schließe mich meinem Vorredner an +
ich würde das Schlafzimmer neben das Bad setzen, das trennt die Schlafräume von Eltern und Kindern.



milkie :)
 
Zuletzt aktualisiert 21.11.2025
Im Forum Grundrissplanung / Grundstücksplanung gibt es 2535 Themen mit insgesamt 87978 Beiträgen


Ähnliche Themen zu Planung Grundriss / Erster Entwurf für erstes Feedback
Nr.ErgebnisBeiträge
1Grundstück - Baufenster - Lage von Haus und Garage - Seite 244
2Bungalow mit 140qm und Garage im Grundriss 13
3Grundriss Einfamilienhaus ca. 300qm, Grundstück 780qm 24
4Grundriss-Entwurf: Einfamilienhaus mit Keller; 560qm Grundstück - Seite 765
5Grundriss 200qm mit integriertem Wintergarten und Galerie 32
6Grundriss - Eure Meinungen, Ideen und Vorschläge 31
7Grundriss: Doppelhaushälfte 8x12m Meinungen und kreative Ideen erwünscht :-) 123
8Grundriss Neubau Satteldachhaus 145 qm, 9 x 11,5 m, kurz vor Bauantrag 32
9Vorplanung mit dem Architekten - eigener Grundriss sinnvoll? 18
10Grundriss mit Garage auf Grundstück realisierbar? - Seite 429
11Haus, Garage / Carport auf dem Grundstück platzieren 93
12Erster Grundriss-Versuch für Kettenhaus auf kleinem Grundstück 94
13Erster Grundriss Einfamilienhaus - Eure Ideen auch zum Grundstück - Seite 333
14Einfamilienhaus-Grundriss 170 qm für 4 Personen mit Garage 20
15Einfamilienhaus 150m2 Grundriss + Planung auf dem Grundstück 24
16Grundriss-Planung und Platzierung - Einfamilienhaus ca. 200qm auf 900qm Grundstück - Seite 255
17Grundriss Einfamilienhaus, 2 Vollgeschosse ca. 180qm, 600qm Grundstück - Seite 756
18Grundriss Einfamilienhaus 133qm Grundstück 850qm - Seite 216
19Grundriss Einfamilienhaus mit Flachdach auf 600m² Grundstück - Seite 419
20Grundriss Einfamilienhaus mit Keller und Garage - Seite 250

Oben