kaho674
Hi,
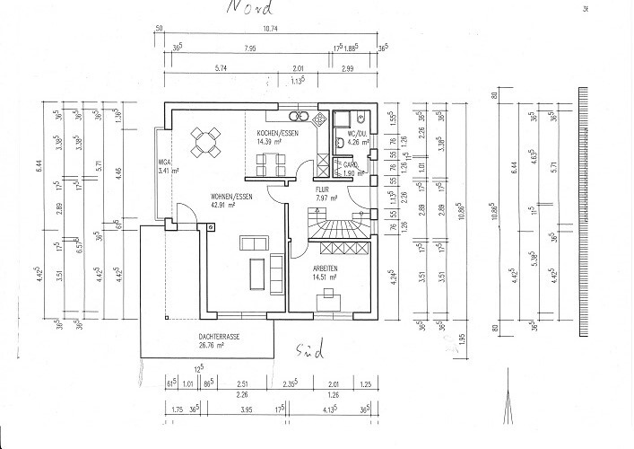
die Terrasse find ich erstmal voll unwichtig.
Viel wichtiger ist doch das Haus. Leider finde ich es echt ungemütlich. Dieser lange Tunnel zum Wohnzimmer und dann diese Ecke vom Wohnzimmer - das sieht alles so unbeholfen aus. Der Hauptbereich mit Wohnzimmer / Essen / Küche wirkt dadurch schlauchförmig und das ganze Raumgefühl ist weg. Die Küche ist gefühlt im Eingangsbereich - man hat den Eindruck, gleich mit den Töpfen zwischen den Jacken und Mänteln zu stehen.
Wenn Du mal eben 2m mehr ans Haus dran basteln kannst, scheint's ja nicht am Geld hapern?
Also ehrlich, da find ich Dir sofort sehr viel schönere Grundrisse. Gerade wenn die Grundfläche klein ist, würde ich versuchen, die Räume groß zu halten. Hier mal mein persönlicher Favorit für ein kleines Haus (128m²) von einem recht bekannten Hersteller, nur so als Denkanregung. Im Internet findest Du endlos mehr. Solange Du keine speziellen Wünsche, Gebenheiten oder Baurechte beachten musst, gibt es ja die freie Auswahl.
Vielleicht stöberst Du lieber erstmal die Kataloge durch, denn dieser Grundriss regt m.E. nicht mal zur Diskussion an.
Viel Glück!
die Terrasse find ich erstmal voll unwichtig.
Viel wichtiger ist doch das Haus. Leider finde ich es echt ungemütlich. Dieser lange Tunnel zum Wohnzimmer und dann diese Ecke vom Wohnzimmer - das sieht alles so unbeholfen aus. Der Hauptbereich mit Wohnzimmer / Essen / Küche wirkt dadurch schlauchförmig und das ganze Raumgefühl ist weg. Die Küche ist gefühlt im Eingangsbereich - man hat den Eindruck, gleich mit den Töpfen zwischen den Jacken und Mänteln zu stehen.
Wenn Du mal eben 2m mehr ans Haus dran basteln kannst, scheint's ja nicht am Geld hapern?
Also ehrlich, da find ich Dir sofort sehr viel schönere Grundrisse. Gerade wenn die Grundfläche klein ist, würde ich versuchen, die Räume groß zu halten. Hier mal mein persönlicher Favorit für ein kleines Haus (128m²) von einem recht bekannten Hersteller, nur so als Denkanregung. Im Internet findest Du endlos mehr. Solange Du keine speziellen Wünsche, Gebenheiten oder Baurechte beachten musst, gibt es ja die freie Auswahl.
Vielleicht stöberst Du lieber erstmal die Kataloge durch, denn dieser Grundriss regt m.E. nicht mal zur Diskussion an.
Viel Glück!


