Grundriss Reiheneckhaus in Planung - Änderungsvorschläge?

4,80 Stern(e) 6 Votes
Zuletzt aktualisiert 24.11.2025
Sie befinden sich auf der Seite 18 der Diskussion zum Thema: Grundriss Reiheneckhaus in Planung - Änderungsvorschläge?
>> Zum 1. Beitrag <<

B

Bauherrin123

Eure Dachform ist doch aber nicht so, sondern der First ist andersherum.

Und da sollten natürlich dann die Häuser ABC dieselbe Kniestockhöhe und Dachneigung haben.



Wenn ich es recht verstehe, sollen A bis C noch genehmigt werden - oder? Hat die Straße eine Hanglage?


Dann ist vielleicht leicht abweichend von den Plänen gebaut worden .. oder er hat den Zwischenboden früher eingezogen. So dass er nicht an der höchsten Stelle im DG 272 cm Raumhöhe hat, sondern vielleicht nur 240 cm.


Ja ich hab es falsch gemalt, also man schaut auf Dächer. Aber ich habe schon doppelhaushälften gesehen, wo es versetzt war und keine Rolle gespielt hat. Wer mit oder ohne Kniestock baut. Aber ob und wie das durchgeht weiß ich nicht, ja die Bauanträge sind noch nicht genehmigt.


Ich will auch einen Speicher. Hab auch das Gefühl, das die Quadratmeterzahl.weniger geworden ist....weil a die Dachneigung steiler ist und es eine Rolle spielt. Mir wurde aber gesagt, dass die Veränderung nicht im sichtbaren Bereich ist, die Häuser wären gleich,....aber wenn mit fast ein Speicher fehlt, dann spielt es eine Rolle für mich.

Ich glaub ich frag den Bekannten nochmals, dass er messen soll.....
 
W

Würfel*

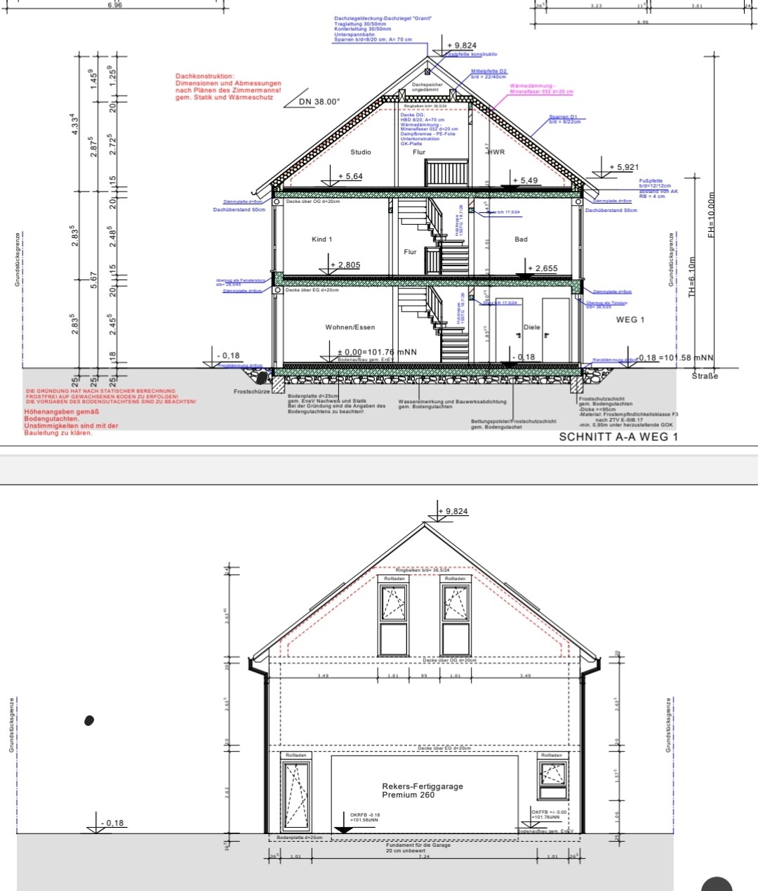
Du brauchst doch im DG keine 272 cm (287 - 15 cm) Deckenhöhe. Wie @kbt09 schon schrieb, reichen doch auch 245 oder so. Du ziehst also den Dachboden weiter runter und hast damit oben mehr Höhe. Konkret: bei 245 cm Deckenhöhe hast du im Dachboden 27 cm mehr - also 90 cm statt 63 cm.


Schnitt durch ein dreigeschossiges Haus mit Räumen, Treppen und Dachkonstruktion.
 
B

Bauherrin123

Hallo ihr Lieben,

anbei teile ich euch jetzt zum Grundriss die Änderungen mit, für die ich mich entschlossen habe:

1. Die Änderung des Bauantrages kosten uns 500 Euro, deshalb lassen wir es so. Die meistens Sachen kann man bei der Werkplanung ändern. Wir sind uns nicht sicher, ob wir eine Doppelgarage (die beantragt werden müsste), oder zwei Einzelgaragen ( brauchen keine Genehmigung) bauen wollen, da wir aber erstmal sowieso keine Garage bauen, ist es erstmal unwichtig. Terrasse auch, ist uns zu klein, aber man kann bedenkenlos eine größere bauen. die GEZ lässt es zu,... wir überschreiten sie nicht.

2. Ich wollte das Haus 1m über Straßenniveau. oder zumindest etwas,..das kann man Vorort besprechen, wenn der Bau losgeht. Aber soll kein Problem sein, auf Straßenniveu zu bleiben,.... etwas höher, wird es natürlich auch teurer.

3. Die Erkertür wird mittig gemacht bei der Werkplanung.

4. Die Stufe zum Balokon ( Brüstungshöhe 25cm, ist aber eine Stufe von 10 cm.) Der Balkon ist 10 cm höher als das OG. Alternative wäre, um es auf eine Ebene zu machen, dass man das OG komplett anhebt, was wesentlich teurer ist. Hat denn hier jemand Erfahrung? Architektin meinte, dass es nicht anders geht, das sei normal?

5.Die Runden Kreise, sind Verteiler, in der Wand. Nicht in der Mitte im Raum. Hausanschlüsse haben wir geklärt und Bodenheizungskasten auch positinoniert, wo wir es wollen. Waren echt dumm verteilt.

6. Fenster Dachboden können wir auch noch später ändern.


Was noch geklärt werden muss, ist tatsächlich die Bürotür. Wir waren bei der Firma, die unsere Türen macht und er war der Meinung, dass im Büro ohne Knick und dies das, eine Tür von 76 cm reinpasst, was gut ist und wollte es mit der Architektin besprechen. Das und das mit dem Dachboden muss geklärt werden, ob man die Decke etwas niedriger machen kann, damit man eine bessere Höhe hat, wie hier ein User geschrieben hat.
Die 2 Sachen sind eventuell relevant für den Bauantrag oder auch nicht, das klär ich am MOntag und gebe das Ding dann endlich ab. Viel mehr wollen und können wir nicht ändern. Ich bedanke mich an alle Helfern hier im Forum für die freundliche Unterstüzung.
500 Euro für einen neuen Bauantrag fand ich aber schon dreist, zumahl die Architektin uns hätte auch fragen können ob Terrasse und Garage in der bestimmten größe oder überhaupt gewünscht ist,....hat sie aber nicht.

Ich mache gleich noch ein Beitrag zum Thema Zusatzleistung und würde gerne mit euch diskutieren, ob preislich es im Rahmen ist, was wir nehmen sollen, was sich nicht lohnt usw. Muss mir gerade die Angebote anschauen.

Bis gleich.
 
B

Bauherrin123

Du brauchst doch im DG keine 272 cm (287 - 15 cm) Deckenhöhe. Wie @kbt09 schon schrieb, reichen doch auch 245 oder so. Du ziehst also den Dachboden weiter runter und hast damit oben mehr Höhe. Konkret: bei 245 cm Deckenhöhe hast du im Dachboden 27 cm mehr - also 90 cm statt 63 cm.

Anhang anzeigen 74279

Ja das ist eine super Idee, ich frag mich, wieso die Architektin es nicht vorschlägt???? Ist das relevant für den Bauantrag oder kann ich das Vorort so machen lassen? Ich lade nochmals hier den Werkplan des Bekannten, der eine angemessene Höhe hat,hoch.... weiß jemand was das rote getrichelte sein soll...
Mein Haus unterscheidet sich trotz dachneigubg danndoch nicht so sehr oder?
Es liegt echt wohl daran, dass er die Decke vielleicht tiefer gemacht hat?

Architekturpläne: Querschnitt durch ein zweigeschossiges Haus mit Dachgeschoss und Garage
 
kbt09

kbt09

Dann ist vielleicht leicht abweichend von den Plänen gebaut worden .. oder er hat den Zwischenboden früher eingezogen. So dass er nicht an der höchsten Stelle im DG 272 cm Raumhöhe hat, sondern vielleicht nur 240 cm.
Hast du deinen Bekannten mal gefragt, welche Höhe er im DG unter dem kleinen Spitzboden hat?

Garagen waren ja im Eingangsbeitrag überhaupt nicht platziert .. da kann man also nichts zu sagen.

Mir wäre da ein wenig zu viel "Werksplanung" dabei ... die sollte langsam mal entstehen.

Die Sache mit der Stufe zum Balkon ist bei "Normalplanung" Standard, da der Balkon als Decke von einem unteren Bauteil entsteht. Man muss sich einfach vostellen, dass da nicht nur die normale Decke, die zwischen 2 Geschossen ist, als Aufbau kommt, sondern auch "Regenschutz" .. und das trägt höher auf und verlangt eine besondere Anpassung, damit man aus dem oberen Geschoss ohne Stufe rausgehen kann. Einfaches Erhöhen der Decke im unteren Geschoss reicht da nicht, man muss auch sehen, wie der Erker dann ausgeführt wird.

Diese Problematik hatten wir hier schon mal im Thread von Hotzenplotz .. leider finde ich den genauen Usernamen gerade nicht.
 
B

Bauherrin123

Hast du deinen Bekannten mal gefragt, welche Höhe er im DG unter dem kleinen Spitzboden hat?

Garagen waren ja im Eingangsbeitrag überhaupt nicht platziert .. da kann man also nichts zu sagen.

Mir wäre da ein wenig zu viel "Werksplanung" dabei ... die sollte langsam mal entstehen.

Die Sache mit der Stufe zum Balkon ist bei "Normalplanung" Standard, da der Balkon als Decke von einem unteren Bauteil entsteht. Man muss sich einfach vostellen, dass da nicht nur die normale Decke, die zwischen 2 Geschossen ist, als Aufbau kommt, sondern auch "Regenschutz" .. und das trägt höher auf und verlangt eine besondere Anpassung, damit man aus dem oberen Geschoss ohne Stufe rausgehen kann. Einfaches Erhöhen der Decke im unteren Geschoss reicht da nicht, man muss auch sehen, wie der Erker dann ausgeführt wird.

Diese Problematik hatten wir hier schon mal im Thread von Hotzenplotz .. leider finde ich den genauen Usernamen gerade nicht.

Also kann ich da eh nichts machen, also wäre das doch okay es so zu lassen? Wenn es keine Alternativen gibt.

ach ja Im EG nehmen wir Badanschlüsse raus, wollen da für uns eh keins bauen, dachte aber es macht Sinn, es zu haben.

Ja mir ist das auch zu viel auf später verschoben, aber wenn es für den Bauantrag nicht relevant ist, ist es okay, muss Dan ding abgeben..den Werkplan mache ich dann 100 Prozent und stell es hier rein, dass ist dann die Finalversion. Werde aber schriftlich per Email festhalten, das die genannten Sachen dann und dann geändert werden.... die Architektin ist sehr jung...Sehr unerfahren....
 
Zuletzt aktualisiert 24.11.2025
Im Forum Grundrissplanung / Grundstücksplanung gibt es 2536 Themen mit insgesamt 88010 Beiträgen


Ähnliche Themen zu Grundriss Reiheneckhaus in Planung - Änderungsvorschläge?
Nr.ErgebnisBeiträge
1Terrasse ebenerdig raus? Oder mit Stufe? 12
2Garage doch höher als im Bauantrag 28
3Balkon auf Garage auf Grenze 11
4Solaranlage mit Speicher in Garage, möglich? - Seite 228
5Terrasse vom Nachbar grenzt an Garage 11
6Wie Gebäude platzieren? Haus Terrasse Garage Werkstatt 24
7 2 Vollgeschosse, Durchgang Garage, Hauswirtschaftsraum unter Treppe - Seite 325
8Garagennebentür öffnet nicht bei ebenerdiger Terrasse - Seite 531
9Garage zu tief wegen Ortsgestaltungssatzung 13
10Planungsfehler Entwässerung Garage - Haften tatsächlich wir? 12
11Balkon über Erker muss der Rahmen sein? 13
12Ölheizungsanlage ca. 25Jahre alt, Speicher defekt 15
13Terrasse anlegen - Probleme mit dem Gefälle - Seite 318
14Sichtschutz / Windschutz an Terrasse / Straße - Ideen? - Seite 226
15Hauskosten je KFW Stufe pro m² 32
16Abdichtung der Garage mit Betonboden? - Seite 421
17Bewertung Angebot Photovoltaikanlage mit Speicher - Seite 478
18Versickerungsfähige Verkehrsflächen im Bauantrag - Seite 217
19Einfamilienhaus Schlüsselfertig und Garage in Eigenleistung - Seite 218
20Geländemodellierung abweichend vom Bauantrag - erlaubt? (NRW) - Seite 536

Oben