Grundriss Reiheneckhaus in Planung - Änderungsvorschläge?

4,80 Stern(e) 6 Votes
B

Bauherrin123

Hallo liebe Forummitglieder,

wir bauen ein Reiheneckhaus 7 mal 10 m ohne Keller. Es werden 2 Volle Geschosse und ein Dachboden darauf. Es geht jetzt darum, welches Dach wir bekommen. Mir wurde ein Haus gezeigt mit 38Grad Satteldach ohne Kniestock, fand ich von den Raumgefühl her sehr schön. Jetzt haben wir mitgeteilt bekommen, dass bei uns nur 35 Grad Satteldach geht, dafür bekommen wir 30cm Knistock. Das was mir nicht bewusst war, dass unser Spitzboden nur 63 cm maximal Höhe hat. Also der Speicher(Spitzboden). Jetzt habe ich keinen Keller und keinen nennenswerten Speicher und ärgere mich etwas darüber, da der Bauantrag jetzt vor mir liegt und ja ich hatte es erst zugestimmt, dass es so okay ist, aber ich hätte doch liber 1m Kniestock. Bebauunsplan gibt aber maximal nur 30 cm vor. Bin so unschlüssig was ich will,.. möchte auch nicht unnötig Geld ausgeben, wenn es nicht so eine große Rolle spielt, da wir ein sehr großen Grundstück haben und Stauraum in Garage und Scheune und Gartenhaus bauen können,.....
Was würdet ihr machen?
A. 38 Grad Satteldach oder B. 35 Grad. Satteldach und 30 cm Knistock oder C. 35 Grad und 1m Kniestock, bei Stadt anfragen....

Wir müssten beim Bauamt die Anfrage stellen, ob man Kniestock auf 1m ändern kann, dann wäre es etwas mehr Aufwand, Bürokratie, das ganze verschiebt sich weiter,.. ich weis auch nicht was es kosten würde und ob es überhaupt geht, aber zerbricht mir den Kopf, da ich im Internet nur Leute mit Häusern lese, die Kniestock gebaut haben auf dem Dachboden. Mir wären die 3000-5000 Euro, wenn es soviele sind, es aber Wert, wenn schönere Räume entstehen und ich einen Speicher bekomme, das höher ist.


Dasnn das zweite Problem. Das Grundstück ist viel tiefer als das Straßenniveau. Wir zahlen 10 000Euro extra, um das Grundstück auf Straßenniveau mit Schotter auffüllen zu könen. Nun wird das Haus so knapp über straßenniveu gebaut, sodass man eine Stufe zum Hauseingang hat. Es werden insgesammt 3 Reihenhäuser gebaut, wir haben das Eckhaus. In unserer Reihe stehen bereits 2 fertige Reihenhäuser anderer Bauträger, dem unsere Häuser angrenzen. Diese sind allerdings 1m über dem Straßenniveau und 3 oder 4 Stufen höher und insgesamt sind sie dann wahrscheinlich höher. Das finde ich erstens optisch bllöd, aber auch vom Gefühl her, will ich das Haus höher haben.
Was sagt ihr dazu?

Ich lade auch mal meinen Grundriss, der meiner Meinung nach fertig ist. Ich versteh nicht, wie hoch die Decken sind, kann das jemand ablesen? Innen im Raum, wie hoch diese sind und allgemein, fällt euch was am Grundriss auf?
Mein Bauantrag liegt hier fertig, allerdings will ich es doch ändern lassen, es passt mir nicht, mit den Plänen, wird bestimmt Ärger geben bei der Firma, wenn die das für uns ändern müssen, aber ich will mich doch nochmals entscheiden können und brauche hier einfach einen Austausch.

Freue mich auf Unterstützung!

LG

Zweigeschossiges Haus mit Dachgeschoss; Schnitte A-A und Front-, Garten- und Rückansicht


Grundriss eines Hauses: Erdgeschoss mit Wohnen/Essen, Küche, Diele, WC, Terrasse.


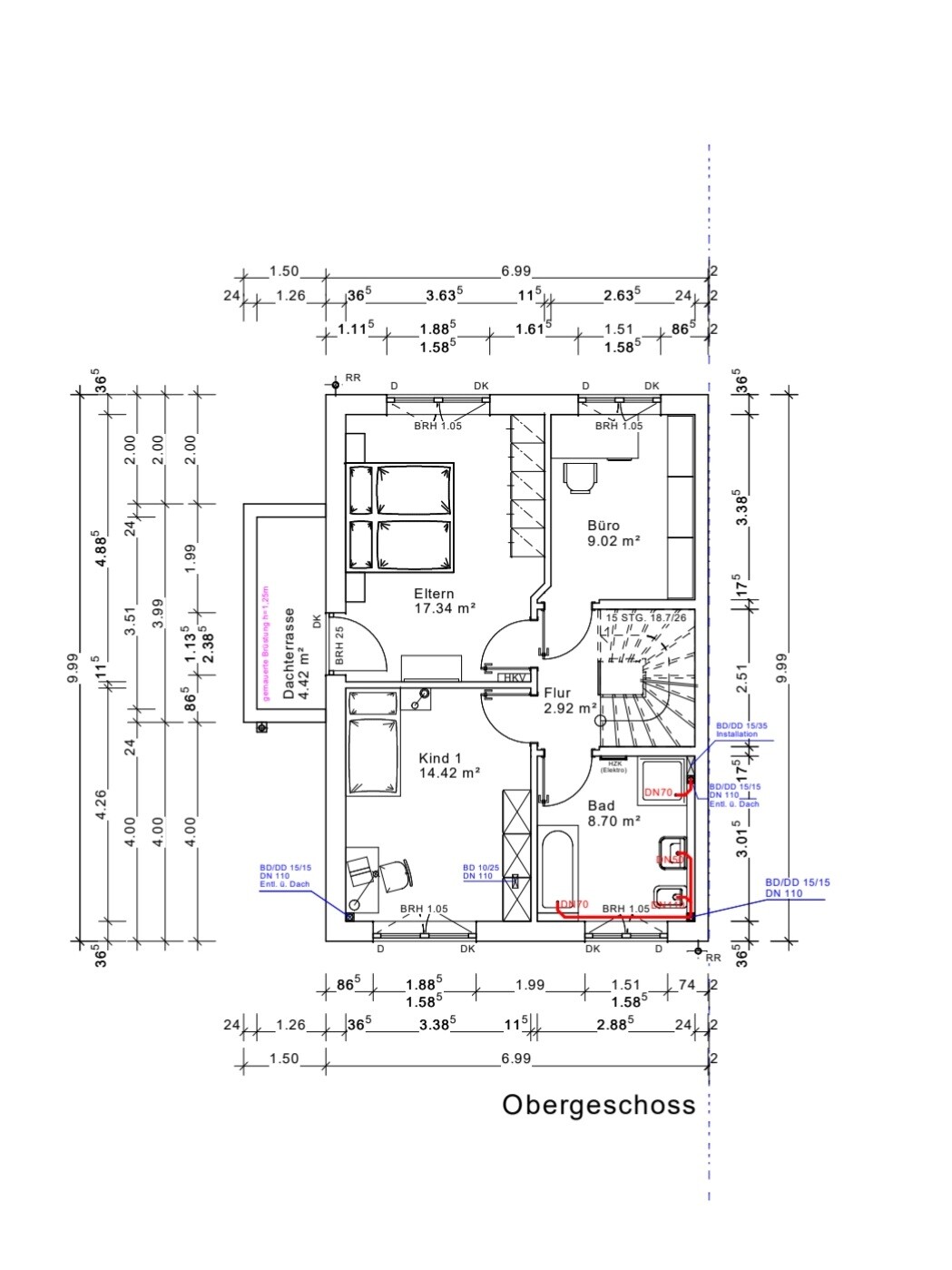
Grundriss Obergeschoss: Eltern, Kind 1, Büro, Flur, Bad, Dachterrasse, Treppe.


Dachgeschoss-Grundriss mit Studio, Bad und HWR, Treppe, Türen und Maßangaben


Schematischer Gebäudeschnitt eines Hauses mit Treppen, Räumen (Büro, Flur, Bad).
 
S

SoL

Grundriss funktioniert grundsätzlich.
Du brauchst aber bei 6m Abstand von Couch zu TV nen sehr großen Fernseher...
 
B

Bauherrin123

Grundriss funktioniert grundsätzlich.
Du brauchst aber bei 6m Abstand von Couch zu TV nen sehr großen Fernseher...

das ist süss, dass es dir auffällt. Tatsäcjlich ist das so, das der Fernseher da hinkommt, wo die Couch steht, und die Couch mittig im Zimmer, ein eil vom Fenster. Also das ist tatsächlich einfach so gemalt,... der Rest müsste aber stimmig sein. Danke trotzdem für deine Antwort, fand es echt süß, dein Hinweis
 
B

Bauherrin123

Drollig! Das sind ua Parameter, woran man die Funktionalität eines Entwurfes überprüft.

Zu Deiner Frage:
Wofür soll denn das Studio bzw der ganze Dachausbau dienen?
Was heißt drollig, wir haben uns umentschieden und der Bauantrag kam aber schon heute. Wir haben uns ein Haus der Firma das genauso wie unseres ist, sich angeschaut und uns umentschieden. Ich habe nachgemessen, es passt rein. Es ist ja nur ein TV und eine Couch die wir umstellen. Oben im Zimmer stehen die Möbel allerdings so, ich sie möchte. Das Elternschlafzimmer, da hat kein Bett und Schrank reingepasst, deshalb haben wir es breiter gemacht, dafür ist die Wand im Büro etwas im Sichtfeld, die alternative wäre eine schmalere Tür, 60 cm, ds wollten wir nicht, was sagt ihr dazu?

Zu deiner Frage, was es im Studio ergeben soll.Momentan sind wir zu 2. Wir wollen aber 2 bis 3 Kinder, eins ist unterwegs. Studio wird später eventuell das 2. Kinderzimmer, wo falls wir 3 Kinder haben, 2 zusammen rein können. Das Bad auf dem Dachboden, da lassen wir uns auch nur die Anschlüsse legen, aber kein Bad bauen, das wird mein Büro. Wir brauchen 2 Büros,....
 
K a t j a

K a t j a

Sofa und Fernseher tauschen kann ich nicht nachvollziehen. Mal es mal ein. Das kollidiert mit dem Tisch, oder?
Zum Grundriss:
Die gesamte Technik ist oben im Hauswirtschaftsraum, die Waschmaschine steht bei der 1m Grenze - da seh ich schwarz. Wo ist die Heizung und was ist das für eine ... und überhaupt, wo ist der ausgefüllte Fragebogen?
Bürotür schlägt in den Laufweg der Schlafzimmer-Tür. Das ist schon bald Körperverletzung. Das Schlafzimmer muss hier noch ein Stück Wand opfern, nur so viel, dass die Tür rein passt und man sie drehen kann. Küchentür schlägt auch in die falsche Richtung.

Wieso denkst Du, dass Du 1m Kniestock durch kriegst? Hat das überhaupt eine Chance auf Erfolg? Vielleicht könnte Dein Architekt mit dem Höhenunterschied argumentieren. Statt unten aufzuschütten, baust Du halt oben höher, damit die "Optik" stimmig ist. Versuchen würde ich das, aber erstmal mündlich vortesten, ob die mich beim Amt nicht auslachen.
 
Zuletzt aktualisiert 07.11.2025
Im Forum Grundrissplanung / Grundstücksplanung gibt es 2526 Themen mit insgesamt 87665 Beiträgen


Ähnliche Themen zu Grundriss Reiheneckhaus in Planung - Änderungsvorschläge?
Nr.ErgebnisBeiträge
1Grundriss Einfamilienhaus 133qm Grundstück 850qm 16
2Grundriss Einfamilienhaus Satteldach - Bitte um eure Tipps 10
3Grundriss Bungalow auf schon genutztem Grundstück 108
4Grundriss Einfamilienhaus, 2 Vollgeschosse ca. 180qm, 600qm Grundstück - Seite 756
5Grundriss-Planung und Platzierung - Einfamilienhaus ca. 200qm auf 900qm Grundstück - Seite 255
6Grundriss Bungalow 125qm konisches Grundstück - Seite 739
7Grundriss verbessern - wie?! 94
8Grundriss Einfamilienhaus - Eure Einschätzung - Seite 320
9alternativer Grundriss Bungalow 140m² - Seite 984
10Selbsterstellter Grundriss - Meinungen und Feedback erwünscht - Seite 546
11Grundriss Bungalow mit Satteldach - Optimierungspotential? 24
12Grundriss Vorteile und Nachteile auf Basis von Satteldach 229m² 25
13Grundstück nicht Rechteckig - Idee für Grundriss gesucht - - Seite 320
14Grundriss Einfamilienhaus mit Flachdach auf 600m² Grundstück - Seite 419
15Erster Grundriss-Versuch für Kettenhaus auf kleinem Grundstück 94
16Erster Grundriss Einfamilienhaus - Eure Ideen auch zum Grundstück - Seite 333
17Planung Grundriss Doppelhaus, kleines Grundstück, Bauhausstil 34
18Grundriss Einfamilienhaus barrierefrei fürs Alter mit Eltern-Schlafzimmer im EG - Seite 744
19Einfamilienhaus 150m2 Grundriss + Planung auf dem Grundstück 24
20Grundriss mit Garage auf Grundstück realisierbar? - Seite 429

Oben