Grundriss Reiheneckhaus in Planung - Änderungsvorschläge?

4,80 Stern(e) 6 Votes
Zuletzt aktualisiert 06.10.2025
Sie befinden sich auf der Seite 23 der Diskussion zum Thema: Grundriss Reiheneckhaus in Planung - Änderungsvorschläge?
>> Zum 1. Beitrag <<

kbt09

kbt09

Was willst du denn mit den vielen Spots in der Küche beleuchten?

Sinnvoll ist Beleuchtung über der Arbeitsfläche, die nicht im Rücken der arbeitenden Person angebracht ist.

Hatten wir das nicht auch schon mal in diesem Thread`?
 
B

Bauherrin123

Ja hatten wir, aber da war ich mit anderen Aachen beschäftigt wollte es jetzt nochmals explizit durchgehen...da ich mir Häuser angeschaut habe, und im Internet nachgelesen habe, da steht, daß man einen gewissen Abstand zur Wand haben muss und zB. Hier nicht direkt über dir Arbeitsplatte machen kann? Ich selbst hab keine Ahnung,...dachte 6 wären zu wenig....Daher mehr reingemacht?
 
B

Bauherrin123

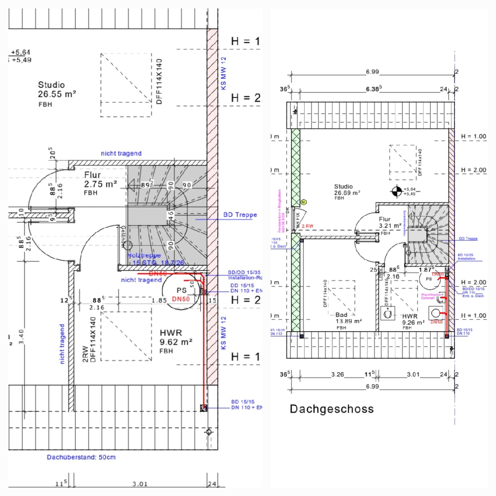
Ich habe hier ein Bild.hochgelade, links das Haus,.was ich gesehen habe,.rechts mein Haus. Dumme Frage,.aber sind die Räume nicht gleich? Links das Haus die Waschküche ist sehr praktisch, alles was.ich will stand da drin, hat reingepasst, wor mein Raum (rechts) nicht genauso groß?Ich bin noch am überlegen, HZK hat die Architektin hier an der Wand wenn man rein kommt rechts, das finde ich blöd, die Tür sollte direkt an der Wand sein, das HZK kann man wo anders positionieren, wird unnötig im Weg sein?

Grundriss Dachgeschoss: zwei Pläne mit Studio, Flur, HWR, Bad, Treppe, Maßangaben.
 
11ant

11ant

Dann stört mich immer noch dass der Speicher so eine geringe Höhe hat, dass man die die Decken nicht tiefer machen kann, ich versteh das nicht, wieso das.nicht geht?
Das bietet zumindest einer der üblichen Verdächtigen auch so an - ich erinnere gerade nicht, welcher (und weiß auch nicht, ob Deiner es anbietet) - aber ich würde es hier nicht machen. Es ist nichttrivial und hier m.E. den Aufwand der Extrawurst (die immer auch ein Komplikationspotential birgt) nicht wert. Ich würde übrigens auch die Spots in der Anzahl so lassen, und lieber die "planlinken" mehr über die Arbeitsfläche ziehen.

HZK hat die Architektin hier an der Wand wenn man rein kommt rechts, das finde ich blöd, die Tür sollte direkt an der Wand sein, das HZK kann man wo anders positionieren, wird unnötig im Weg sein?
Wtf is Alice ... äh, das HZK ?
 
B

Bauherrin123

Das bietet zumindest einer der üblichen Verdächtigen auch so an - ich erinnere gerade nicht, welcher (und weiß auch nicht, ob Deiner es anbietet) - aber ich würde es hier nicht machen. Es ist nichttrivial und hier m.E. den Aufwand der Extrawurst (die immer auch ein Komplikationspotential birgt) nicht wert. Ich würde übrigens auch die Spots in der Anzahl so lassen, und lieber die "planlinken" mehr über die Arbeitsfläche ziehen.


Wtf is Alice ... äh, das HZK ?


Versteh den ersten Absatz nicht, wie würdest du das nicht machen, Decken vom Haus auf dem Dachboden etwas tiefer, dafür mehr Abstellkammer auf dem Speicher? Das will ich, oder das was die Architektin vorschlägt?


Mit HzK meinte ich den Kasten, ach sorry da steht HKV, dieser Kasten wo das Heizungssystem reinkommt. Es ist unnötig, wenn es rechts an der Wand ist, wenn man rein kommt in der Waschküche. Stört da doch nur. Kann man sonst wo positionieren. Stattdessen kann man doch die Tür da an die Wand machen, damit links die Wand länger wird, falls man da was hi stellen will....
 
11ant

11ant

Versteh den ersten Absatz nicht, wie würdest du das nicht machen, Decken vom Haus auf dem Dachboden etwas tiefer, dafür mehr Abstellkammer auf dem Speicher?
Wenn ich recht erinnere, bist Du Hildmann-Käuferin. Von einem der anderen üblichen Verdächtigen (Weisenburgerwernerwengerter) erinnere ich hier in einem Thread erwähnt, daß es die Option gäbe, die Decke zwischen OG und DG tiefer einzuziehen. Ob Dein Anbieter das auch täte, weiß ich gerade nicht - sehe hier aber keinen den Aufwand und das Risiko der Extrawurst werten Gewinn.
Als treue Leserin solltest Du hier und auf bauen-jetzt (der Lotse hat die Domain gewechselt) schon meine Warnungen davor wahrgenommen haben, an Bauträgerobjekten wesentlich über eine Katzenklappe hinausgehendes Customizing zu betreiben.
Mit HzK meinte ich den Kasten, ach sorry da steht HKV, dieser Kasten wo das Heizungssystem reinkommt. Es ist unnötig, wenn es rechts an der Wand ist, wenn man rein kommt in der Waschküche. Stört da doch nur. Kann man sonst wo positionieren.
Bloß das nicht. Der Heizkreisverteiler ist das Herz des Heizungsrohre"schaltplanes" und damit die letzte Stelle, an der Du Ambitionen der Abweichung vom Hauskonzept haben solltest. Zentral und gut zugänglich "schadet nicht", den "Deckel" wirst Du alle Jubelpfingsten mal öffnen, wenn die Anlage einmal richtig kalibriert ist. Diskreter könnte der nirgendwo sonst wirken. Selbst in 11antengelb wird der da nicht ernsthaft auffallen.
 
Zuletzt aktualisiert 06.10.2025
Im Forum Grundrissplanung / Grundstücksplanung gibt es 2510 Themen mit insgesamt 87172 Beiträgen


Ähnliche Themen zu Grundriss Reiheneckhaus in Planung - Änderungsvorschläge?
Nr.ErgebnisBeiträge
1Holzfertighausanbieter für Einfamilienhaus in Niedersachsen - Seite 1175
2Ikea Pax Hauswirtschaftsraum/Waschküche System? - Was habt ihr? - Seite 764
3Schalter für Rollläden am Fenster oder an der Tür? 38
4Ausbesserung der Tür machte es noch "schlimmer" - Seite 225
5Tür Schiebeeinrichtung falschherum - Seite 221
6Suche Gartenhaus 3x3 Meter mit hoher Tür 15
7Kann eine Hebeschiebetür so dicht sein wie eine normale Tür? - Seite 319
8Abdichtung Terrassenaustritt / -Tür bei zweischaligem Mauerwerk - Seite 210
9Anschlagrichtung und Position Tür im Bad OG - Seite 314
10Walk-In Dusche, Spritzwasser, brauche ich eine Tür? 35
11Einrichtung Ankleidezimmer Tür zum Badezimmer - Seite 334
12Duschwanne 140+ cm lang: Tür dadurch einsparen? 24
13Pflastern bis an die Tür - wie Abschluss? 15
14Badplanung - Dusche ohne Tür - Seite 210
15Ikea Faktum Eckhängeschrank - Tür / Scharniere - Seite 210
16Tür Haus/Garage: Nebeneingangstür als Brandschutztür? - Seite 327
17Tür nach innen oder außen aufgehend? Was ist normal? - Seite 432
18Besta-Regal mit Tür und Schublade Inreda/IKEA, brauche Hilfe 11
19Hörmann T30 Tür zwischen Wohnhaus & Garage - U-Wert - Seite 211

Oben