Blockhaus mit Krüppelwalmdach am Wald - Planung verbessern?

4,80 Stern(e) 4 Votes
Zuletzt aktualisiert 20.11.2025
Sie befinden sich auf der Seite 15 der Diskussion zum Thema: Blockhaus mit Krüppelwalmdach am Wald - Planung verbessern?
>> Zum 1. Beitrag <<

H

haydee

Eltern die sich wünschen ein Oktupus zu sein müssen auch die Treppe laufen.

Nach zwei Jahren mit Baby und Kleinkind bin ich froh, dass die Küche endlich beim Garten ist. Kein Mist das Wasser fehlt, Kleinkind, zu recht quengelnd, unterm Arm geklemmt und los.

Das wäre mir die Dachkonstruktion nicht wert.
 
kaho674

kaho674

Ja die Prioritäten sind irgendwie noch in der Babyphase. Eine Dachkonstruktion ist vielleicht wichtig, wenn ich die Elbphilharmonie baue und mächtig Eindruck schinden muss. Ein Wohnhaus sollte aber doch zu allererst Eurem täglichem Leben dienen. Dann gibt's eben ein anderes Dach.
Ich habe letztens gesehen, dass man in Musterhäusern Probe wohnen kann. Irgendwie hat man das Gefühl, das täte Euch gut.
 
K

keychain

Hallo zusammen,

nachdem die Wellen ja nun doch etwas höher schlugen, haben wir uns das Wochenende eine kleine Auszeit genommen. Ihr als (Ex-)Hausbauer kennt das ja sicher auch, das Thema ist nicht ganz emotionsfrei zu betrachten

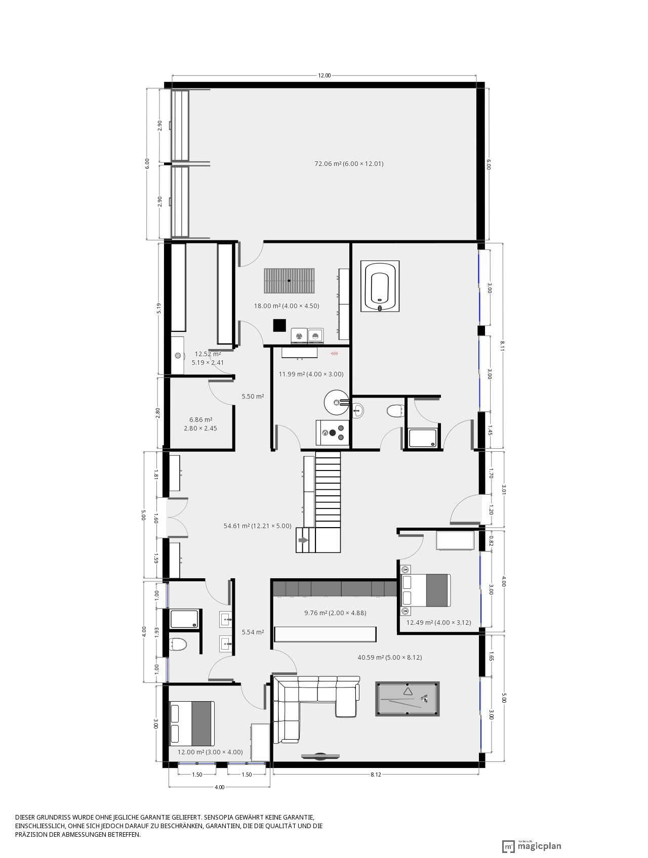
So prioritätslos wie es auf euch wirken mag ist es gar nicht, aber ich verstehe eure Kritik. Also kurz und knapp: Kinder sind keine Priorität, weil wir nicht einmal wissen, ob wir welche bekommen. Wir wollen uns den Weg nicht verbauen, aber sie sind eine Option. Das Haus ist in erster Linie für uns und wir haben eine Vorstellung vom Lebensraum, von der wir mittlerweile wissen, dass wir aus falsch verstandenem Kompromiss bisher darauf verzichtet haben. Das Wohn/Esszimmer war schon beim 1. hier veröffentlichten Entwurf nicht mehr das, was wir ursprünglich wollten. Wir bauen keine Semperoper, aber unser zuhause, das ist uns wichtig- genauso wie es Gästezimmer, Kinderzimmer (oder anfangs Büros) eben sind. Da alle Änderungen am Bauantrag derzeit die gleiche Konsequenz haben, haben wir eben einmal von Grund auf nachgedacht und uns ein Haus ausgewählt, dass uns von außen und Innen zusagt, ein Chalet im Schweizer Baustil.

Eure Bedenken, dass mit Kindern die eine Treppe ein Problem wird, teile ich persönlich nicht, dafür aber die Großeltern in spe, also haben wir darauf geachtet, dass es einen Plan B gibt: Eine zweite Küche im Erdgeschoss mit einem Raum, der als Wohnzimmer umfunktioniert werden kann. Hat den Vorteil, dass man die Einheit abtrennen kann zu einer eigenen Wohnung - für besagte Großeltern.
Außerdem haben wir den zweiten Eingang von der Gartenseite angelegt und beidseits eine Toilette bzw. ein Bad an den Flur gelegt, damit man bei Gartenfeiern oder mit Kindern nicht immer zwangsläufig die Treppe hinauf muss. Als besonderen Clou gibt es in der ersten Etage auf den Kinder- und Badezimmern noch eine Ebene, die zum Wohnzimmer offen ist und als Spielbereich genutzt werden kann.

Um das Haus hell zu bekommen passt die Fachwerkbauweise mit der großen verglasten Front nach Süden doch ganz gut. Alle Fenster und Schiebetüren sind noch Platzhalter, der Grundriss war uns wichtiger!

Grundriss eines Hauses mit Wohnbereich, Küche, Bad, Schlafzimmer, Treppe und Poolbillardtisch.


Grundriss eines Hauses: offener Wohn-/Essbereich mit Küche, zwei Schlafzimmern, Bad und Treppe.
 
kaho674

kaho674

Fehlt da ne Tür zu den Schlafräumen?

Ich kann Deinen Ausführungen leider wenig abgewinnen. Du sagst, Du baust keine Semperoper, aber Dein Zuhause ist Dir wichtig. Ja, wie schön. Wir anderen bauen nur zum Spaß, oder wie?

Wenn ich das recht verstehe, gibt es jetzt also nur ein EG mit diversen Räumen und ein OG mit 140m² (!) Wohn/Essbereich? Erinnert mich irgendwie an einen Bahnhof, aber ok.

Das ist alles so planlos und wirr. Die Treppen passen nicht zusammen. Jetzt geht doch 1/4 gewendelt - vorher war nur Podest drin und die Treppe in der Küche ist jetzt auch kein Thema mehr von wegen Gerüchen. Oder kann man jetzt plötzlich doch Türen schließen? Wäscheraum ist wieder nicht dort, wo er erst gewünscht war. Auch egal geworden.

Ich würde einfach mal abwarten, wie sich das entwickelt. Morgen fällt Euch vielleicht ein, dass Ihr doch einen Leuchtturm wollt oder so. Die Prioritäten wechseln ständig und sind mir teilweise noch zu absurd.
 
H

haydee

Jetzt plant ihr den Keller und das OG für euch als definitive Nutzung und das EG für Puffer Kinder, Großeltern, 2. Küche damit der Weg nicht zu weit ist.

Was haltet ihr von einem Bungalow oder das Wohn/Esszimmer offen bis oben.
Schaut euch mal das Huf Musterhaus in Hannover an.
Schön großes Wohn/Esszimmer, Küche unten, offen bis zum Dach, kleine Büro bzw Kinderzimmerräume
Einen Elternbereich der einfach nur WoW ist. Bei eurer Grundstücksgröße können vermutlich sogar die Badfenster so übernommen werden.
 
K

keychain

Fehlt da ne Tür zu den Schlafräumen?
Ja, das lässt das Magicplan nicht zu- eine nachträglich eingezeichnete Wand kann weder eine Tür, noch etwas anderes "wandgebundenes" bekommen. Türen sind auf beiden Seiten der Treppe.

Die Treppen passen nicht zusammen. Jetzt geht doch 1/4 gewendelt - vorher war nur Podest drin und die Treppe in der Küche ist jetzt auch kein Thema mehr von wegen Gerüchen.
Auch das ist ein Problem, das Programm übernimmt die Treppen nicht von einem Geschoss ins andere. Nach wie vor bevorzugen wir Podeste an den beiden Wendestellen, die Umsetzbarkeit haben wir aber nur rechnerisch überprüft. Ich kann leider immer noch kein CAD

Küche: Mir wurde gerade schon gesagt, dass es nicht eindeutig ist.. Die Küche ist oben neben dem Esstisch. Der Name ist nicht im Plan- warum? Keine Ahnung. Die Küche unten basiert auf eurem Einwurf, dass es ein Problem sein kann, wenn man Kinder hat, die draußen spielen wollen und die Eltern dann ein Stockwerk höher sind. So haben wir zumindest einen Plan B, wenn es für einige Jahre einen braucht- wenn nicht, haben wir alle Anschlüsse um die Wohnung abzutrennen. Gerüche sollten nicht absteigen, die Schlafzimmer sind durch Türen getrennt.

Du sagst, Du baust keine Semperoper, aber Dein Zuhause ist Dir wichtig. Ja, wie schön. Wir anderen bauen nur zum Spaß, oder wie?
Ich weiss nicht, warum du dich derart angegriffen fühlst. Egal, wie harsch deine Kritik teilweise sein mag, ich bemühe mich sie als besonders nett gemeint aufzugreifen. Natürlich ist euch euer zuhause wichtig, aber jeder baut mit seinen Prioritäten, und bei vielen ist das die Familie - ein schönes, praktisches Zuhause. Wir bauen in erster Linie für zwei Erwachsene, Besuch und ggf. die Familie. Das die Ergebnisse oder Prioritäten dann unterschiedlich sind, kann man auch hinnehmen ohne anzugreifen. Ich wollte es zumindest nich und entschuldige mich hiermit, wenn es bei dir falsch angekommen ist.

Wäscheraum ist wieder nicht dort, wo er erst gewünscht war. Auch egal geworden.
Richtig, auch wieder durch euren Einwand, dass es sinnvoller ist, den im EG zu haben um Wäsche aufhängen zu können. Der Abwurfschacht ist misslungen, unten ist eine schwarze Säule eingezeichnet, oben steht ein Gefrierschrank, wo der Abwurfschacht ist - von der Diele aus zugänglich.


Ich würde einfach mal abwarten, wie sich das entwickelt. Morgen fällt Euch vielleicht ein, dass Ihr doch einen Leuchtturm wollt oder so. Die Prioritäten wechseln ständig und sind mir teilweise noch zu absurd
Nein, es hat sich nichts geändert, wir haben konsequent unsere Prioritäten umgesetzt und soviel von euren (sicherlich berechtigten) Einwänden versucht umzusetzen, wie es uns möglich erschien, ohne unseren Entwurf zu vernachlässigen.
 
Zuletzt aktualisiert 20.11.2025
Im Forum Grundrissplanung / Grundstücksplanung gibt es 2535 Themen mit insgesamt 87978 Beiträgen


Ähnliche Themen zu Blockhaus mit Krüppelwalmdach am Wald - Planung verbessern?
Nr.ErgebnisBeiträge
1Stufen zwischen Küche/Esszimmer und Wohnzimmer 52
2Umbau bestehende EG Wohnung - zus. Büro 49
3Kombination Fliesen und Parkett im Wohnzimmer mit offener Küche - Seite 330
4Grundrissplanung Wohnzimmer-Küche 18
5Grundrissplanung: Badezimmer Dusche - Seite 447
6Wohnzimmer / Esszimmer gestalten. Ideen gesucht 10
7Unser Grundriss-Entwurf, eure Meinungen 20
8Wohnen/Essen/Küche: Wie wohnt ihr oder werdet ihr wohnen? 52
9Grundriss Halboffene Küche mit großem Essbereich - Detailfragen 12
10Grundriss-Entwurf Stadtvilla Feedback - Seite 213
11Fenster / Türen / Garderobe 13
12Esstisch in einer kleinen Küche 49
13Einfamilienhaus als Reihenmittelhaus an Hanglage - Entwurf - Seite 318
14Erster Entwurf Einfamilienhaus 150m² mit Keller 38
15Grundriss-Entwurf Stadtvilla mit Doppelgarage - Seite 238
16Haus-Entwurf Einfamilienhaus - Zukünftig als Zweifamilienhaus trennbar - Seite 572
17Meinungen zu unserem Grundriss Entwurf erwünscht - Seite 670
18Zu hohe Luftfeuchtigkeit in der Wohnung. 60-70% im Winter 33
19Grundrissplanung / Entwurf Einfamilienhaus Flachdach mit Doppelgarage 87
20Entwurf für ein Einfamilienhaus mit 160-180qm - Verbesserungsvorschläge? - Seite 7122

Oben