Blockhaus mit Krüppelwalmdach am Wald - Planung verbessern?

4,80 Stern(e) 4 Votes
Zuletzt aktualisiert 20.11.2025
Sie befinden sich auf der Seite 11 der Diskussion zum Thema: Blockhaus mit Krüppelwalmdach am Wald - Planung verbessern?
>> Zum 1. Beitrag <<

H

haydee

Gefällt mit besser.

Mit den Gerüchen würde ich mit nicht soviel Gedanken machen. Ich gehe mal davon aus, das ihr ein Bora System oder ähnliches verwendet.
Solltet ihr mit Lüftungsanlage planen, dann habt ihr zusätzlich Abluft in der Küche.
In der alten Wohnung haben sich trotz geschlossener Bauweise die Gerüche viel mehr verteilt und waren intensiver.

Unbedingt alle Möbel maßstabsgetreu einzeichnen.
 
kaho674

kaho674

Ob das mit der Treppe so geht - da hab ich meine Zweifel. Wie ist die Kopffreiheit vor dem 2. Podest?
Und so habt Ihr nun doch die Abflussleitungen im Wohnzimmer.
Schornstein an der Dachkante ist immer Mist. Sieht wie ein Spargel aus.

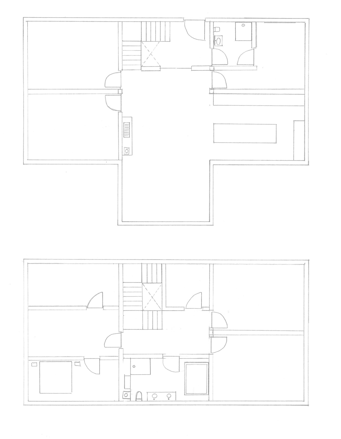
Möglichst keine PDFs - die meisten können die nicht lesen.
Für alle, die kein PDF können:

Zwei Grundrisse eines Hauses: Ober- und Untergeschoss mit Treppen, Türen und Räumen.
 
kaho674

kaho674

Also ich glaub, wer in das Büro will, bekommt ganz schön Kopfschmerzen. Zumindest sieht es blöd aus, unter der Treppe durch die Tür zu "kriechen".
 
H

HausaufGrund

Hi,

wir hatten in unserem ersten Hausentwurf genau diese Treppenlage mit der Eingangstüre rechts davon - genau wie es nun bei Euch geplant ist und haben die Treppe dann in etwa so gelegt wie in meinem gezeigten Entwurf auf Seite 7.
Dadurch können wir durch Schiebetüren (die sogar im Norden und im Süden der Treppe verlaufen und in den Wänden verschwinden) die Treppe wahlweise zum Eingang "dazunehmen" oder davon abgrenzen und der Wohnfläche zuordnen.

Auch praktisch wenn Kinder raufwollen und man unbehelligt im Wohnzimmer sitzt o.ä.

Was uns persönlich daran an dargestellten Treppenlage am meisten gestört hat ist dass wenn wenn man Schlafen geht - was für uns immer auch mit "Rückzug" zu tun hat - man direkt durch den Schmutzbereich kommt und zum anderen eben direkt an der Haustüre durch den Eingangsbereich kommt.

Das fanden wir persönlich extrem ungemütlich - da waren wir gefühlt bevor wir zum Schlafen gehen immer "halb draußen" und es vermittelte uns eher eine "Trennung" der Geschosse als eine Verbindung.
Zudem schaut man aus dem Wohnzimmer immer bei einem Glasschiebeelement auf den Hauseingang - manch einer mag das andere wiederum gar nicht.

Mich persönlich erinnert die Treppenlage (bitte nicht böse sein) an ein Reihenhaus oder an Musterhäuser in Fertighausausstellungen wo dies aus Platzgründen oftmals nicht anders geht.

Für ein Haus mit 300 m2 Fläche in EG und OG, sowie 170 m2 teilweise zur Wohnfläche ausgebauter Keller finde ich das persönlich auch oben noch nicht 100% stimmig.

Zudem empfinde ich den Zugang zum Keller vom Wohnbereich auch nicht als optimal.

Aber wie gesagt das ist meine Meinung und jeder hat andere Bedürfnisse und das ist ja auch gut so, bitte seht das nur als meine Meinung und Anregung.
Ggf. würde ich mir über die Beleuchtung des Flures oben noch mal Gedanken machen wenn Ihr das so umsetzen möchtet, bin nicht sicher ob der besonders hell würde.

Ich würde an Eurer Stelle dies wirklich nur als Anregung verstehen und den Architekten bitten verschiedene Entwürfe noch mal zu machen.
Selbst zeichnen ist prima um ein Gefühl dafür zu bekommen ob das grundsätzlich einem gefallen kann, aber der Architekt kann das i..d.R. dann natürlich besser umsetzen.

Viele Grüße
 
Zuletzt bearbeitet:
K

keychain

@kaho674
Die Höhe unter dem Podest liegt bei 2,20m, das sollte zumindest keine Kopfschmerzen machen. Wir können auch auf 2,35 hochgehen, wenn wir eine weitere Treppenstufe in Richtung Tür setzen. Glaubst du, das ist zu tief?

Die Abflussleitungen über dem Wohnzimmer sollten nicht weiter kritisch sein. Ich frage diesbezüglich noch einmal nach, das liegt aber alles in der Dämmung drin.

@HausaufGrund
Wir haben keine Lüftungsanlage. Ich habe zwangsweise eine im Büro und es stört mich sehr, die Luft ist extrem trocken, wenn wirklich mal Lüftungsbedarf ist kann ich nicht einfach ein Fenster aufreißen oder es steht nicht genügend Fensterfläche zur Verfügung die sich öffnen lässt.. Mir gefällt das Konzept von Fenstern besser.

Als Dunstabzugshaube favorisieren wir derzeit die Berbel Skyline über der Insel. Die bekommen wir zumindest in allen Breiten und Leistungsstufen und brauchen keine extra Zuluft. Der Kamin bekommt eine separate Aussenzuluft.

Dein Argument, dass der Rückzug durch den Schmutz- oder Halbaussenbereich erfolgt, kann ich gut nachvollziehen. Für uns war es in den letzten Tagen, angeregt durch die Tipps, ein großer Diskussionspunkt. Die Möglichkeit, eine Tür zwischen Wohnen, Essen, Kochen und eben Schlafen schließen zu können hat da eindeutig überwogen. Deinen Entwurf von Seite 7 schaue ich mir gleich noch einmal an, damit ich nichts übersehe.

Wir bekommen, ausser in der Version, gefühlt keine Option eines tollen Eingangsbereichs, einer schönen Treppe und der Integration in den Wohnbereich hin. Am Ende kommen wir besser, wenn wir noch einen kleinen Eingangsbereich unter den Carport ziehen, der das ganze optisch trennt und das Wohnzimmer dann komplett in den jetzigen Eingangsbereich öffnen. Die Treppe wird aber immer riesig bleiben durch die Geschosshöhe.. hm, das ist unbefriedigend.
 
H

haydee

Wir haben eine Berbel Moveline. Sind sehr zufrieden.

Lüftungsanlagen reduzieren keine Fensterflächen, vermindern nicht die Möglichkeit zu lüften - nur die Gründe und erzeugen nicht automatisch trockene Luft. Will dir keine verkaufen. Sie bieten einfach einen gewissen Komfort. Keine beschlagenen Fenster, kaum Gerüche im stillen Örtchen, keine Essensgerüche, immer frische Luft und durch einen Enthalpie Wärmeüberträger im Winter nicht ganz so trockene Luft.
Seit dem Frühjahr sind trotzdem die Fenster viel auf. Es fehlt sonst was.
 
Zuletzt aktualisiert 20.11.2025
Im Forum Grundrissplanung / Grundstücksplanung gibt es 2535 Themen mit insgesamt 87978 Beiträgen


Ähnliche Themen zu Blockhaus mit Krüppelwalmdach am Wald - Planung verbessern?
Nr.ErgebnisBeiträge
1Planung Podest im Wohnzimmer 12
2Nicht-bodentiefe Fenster im Wohnzimmer unmodern? Welche Vorhänge? - Seite 217
3Schalter für Rollläden am Fenster oder an der Tür? 38
4Beschlagene Fenster trotz Lüftungsanlage 49
5Darf man bei einer Lüftungsanlage die Fenster nicht mehr öffnen? 15
6Hauswirtschaftsraum Raum ohne Fenster - Lüftungsanlage ausreichend? - Seite 326
7Lüftungsanlage Keller ohne Fenster 18
8Unser Grundriss-Entwurf, eure Meinungen 20
9Grundrissfrage, Treppe, Fenster, Ausrichtung 12
10Sichere Fenster/Haustüre für Randlage - Seite 534
11Einfamilienhaus als Reihenmittelhaus an Hanglage - Entwurf - Seite 318
12Erster Entwurf Einfamilienhaus 150m² mit Keller 38
13Grundriss-Entwurf Stadtvilla mit Doppelgarage - Seite 238
14Erster Entwurf Grundriss Einfamilienhaus (ca. 200qm) - Bitte um Feedback - Seite 746
15Meinungen zu unserem Grundriss Entwurf erwünscht - Seite 670
16Entwurf für ein Einfamilienhaus mit 160-180qm - Verbesserungsvorschläge? - Seite 7122
17Entwurf / Verbesserung Einfamilienhaus 150-175m² mit Walmdach und Keller 39
18Entwurf Einfamilienhaus mit ca. 168m² Feedback - Seite 537
19Entwurf Grundriss: Planung Erdgeschoss - Seite 227
20Einfamilienhaus 180-190qm auf 10x20m Baufenster, erster Entwurf GU - Seite 278

Oben