Blockhaus mit Krüppelwalmdach am Wald - Planung verbessern?

4,80 Stern(e) 4 Votes
Zuletzt aktualisiert 13.01.2026
Sie befinden sich auf der Seite 7 der Diskussion zum Thema: Blockhaus mit Krüppelwalmdach am Wald - Planung verbessern?
>> Zum 1. Beitrag <<

K

keychain

Wie nicht anders erwartet haben eure Beiträge durchaus etwas bewirkt. Zum einen teilen wir manche Kritik, zum anderen sehen wir beim Versuch der neuen Planung innerhalb der vorhandenen Außenwände, warum wir überhaupt erst zu dieser Lösung gekommen sind. Wir haben daher zuerst einmal den Vorschlag aufgegriffen, die Treppe und den Eingangsbereich neu zu gestalten, der Rest muss sich mehr oder weniger danach richten. Um diese Treppe eleganter und passender zum Haus zu gestalten haben wir die Prämisse aufgestellt, dass wir keine steile/unbequeme Treppe akzeptieren. Bei einer Höhe von 332cm haben wir daher eine Teilung von 17,45cm Höhe und 28,1cm Tiefe angenommen und kommen auf 18-19 Stufen, je nachdem, ob man die obere mitzählt.

Ich habe dazu mal zwei Bilder angehangen, die wir uns vorstellen können. Eine Tür ist immer unter der Treppe, wir haben aber mindestens 2,20 Platz, so dass auch eine Vergrößerung der Türen kein Problem darstellen sollte- ebenfalls ein guter Punkt.
Beide Treppen erlauben einen sinnvollen Luftraum, der uns gut gefällt. Vom Licht her ist es noch grenzwertig, aber das sollte hinzubekommen sein.

Im Obergeschoss wollten wir von Anfang an die Trennung des Kinder- und Elternbereichs. Unsere bisherige Lösung sieht nur die Kopplung der Bäder vor, damit die Leitungswege einfach sind. In der riesigen Diele hätten wir aber Platz für das Familienbad mit Badewanne (seien wir ehrlich, die Kinder werden sie wahrscheinlich mehr nutzen). Hat den Nachteil, dass dieses Bad direkt an unserem Schlafzimmer ist, ggf. sollte man also die Zwischenwand deutlich dicker dämmen. Die Dämmung der Wände erfolgt übrigens mit 100mm Holzdämmstoff, der angeblich akustisch besser dämmt als Mineralwolle.

Wir könnten mit der neuen Treppe das Nordzimmer vergrößern, quasi als Ausgleich für den Südblick. Eine andere Überlegung war, beide Kinderzimmer nach Süden zu verlegen, aber dann fällt der separierte Elternbereich komplett weg. Die Gaube zu teilen endet in deutlich kleineren Zimmern, was zwar sicher geht, aber mir nicht fair erscheint angesichts des zur Verfügung stehenden Platzes.

Ein Nachtrag noch zum Keller:
Ja, der Raum ist akustisch nicht schlecht proportioniert, das ist Absicht - aber nicht für ein Kino, da wir beide keine Filmfans sind. Wir haben Nichtmal einen Fernseher. Dafür wird der abgeböschte Bereich natürlich mit großen Terrassentüren versehen, die auch 3,8m breit sind, analog zu den oberen. Es kommt also deutlich mehr Licht herein als man sieht. Den Keller haben wir aber auch schon umgeplant, ich hoffe, ich kann hier auch eine Zeichnung hochladen, die habe ich wohl nur nicht mitgenommen.

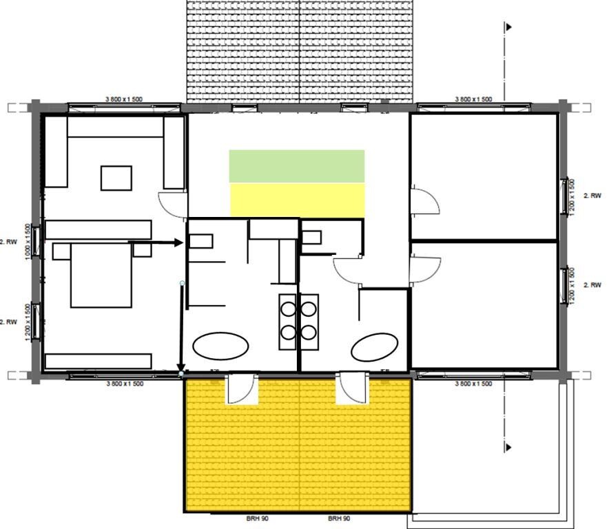
Skizzenhafter Grundriss eines Hauses mit Treppe, Türen und mehreren Zimmern


2D Grundriss eines Gebäudes mit Eingangsbereich und Raumaufteilung, Blaupause
 

Anhänge

kaho674

kaho674

Wie wär es mit einer geraden Treppe?


Grundriss eines Hauses mit Gast, Wohnen, Büro, Entree, Bad, SPK, Treppen und Schrank.


Die Treppe ist oft das Kernstück für die Planung. Was ist Euch wichtig?
Muss sie zwingend im Flurbereich sein oder geht wie im Beispiel auch innerhalb des Essbereichs? Gerade, wenn noch ein großer Wohnbereich abgeteilt ist, ist es toll, wenn man das OG über die Treppe näher ins Leben einbindet. Außerdem ist sie so automatisch außerhalb des Schmutzbereiches. Geschmackssache halt.

Sollte im Alter eine Trennung der Geschosse möglich sein oder ist das unwichtig? Dieser Punkt sollte gut überlegt werden, da er die Treppe in ein enges Korsett zwingt und weniger Optionen bleiben.

Darf sie geschwungen sein mit schrägen Stufen oder sollten nur gerade Stufen (Podest oder gerade Treppe) verwendet werden?

Darf Sie im Eingangs- / Schmutzbereich beginnen oder lieber nicht?
 
kaho674

kaho674

Im Obergeschoss wollten wir von Anfang an die Trennung des Kinder- und Elternbereichs. Unsere bisherige Lösung sieht nur die Kopplung der Bäder vor, damit die Leitungswege einfach sind.
Ein guter Planer bekommt die Leitungen auch von ganz links nach ganz rechts und umgekehrt. Bei solch großen Häusern kann es auch mal 2 Leitungsschächte geben - na und? Die Leitungen sind zwar wichtig und es ist schön, wenn sie nicht gerade mittig im Wohnzimmer runter kommen, aber man sollte auch nicht übertreiben, mit der Minimierung der Wege.
 
K

keychain

Die Treppe ist oft das Kernstück für die Planung. Was ist Euch wichtig?
Muss sie zwingend im Flurbereich sein oder geht wie im Beispiel auch innerhalb des Essbereichs? Gerade, wenn noch ein großer Wohnbereich abgeteilt ist, ist es toll, wenn man das OG über die Treppe näher ins Leben einbindet. Außerdem ist sie so automatisch außerhalb des Schmutzbereiches. Geschmackssache halt.

Sollte im Alter eine Trennung der Geschosse möglich sein oder ist das unwichtig? Dieser Punkt sollte gut überlegt werden, da er die Treppe in ein enges Korsett zwingt und weniger Optionen bleiben.

Darf sie geschwungen sein mit schrägen Stufen oder sollten nur gerade Stufen (Podest oder gerade Treppe) verwendet werden?

Darf Sie im Eingangs- / Schmutzbereich beginnen oder lieber nicht?
Wir wollen eine Treppe, die vom Ambiente her zum Haus passt. Das war bei der ersten Variante nicht gegeben- sie hatte zwar das gewünschte Podest, aber sowohl die Stufenanordnung als auch die gesamte Treppe war extrem ungünstig angelegt. Alle drei neuen Formen finde ich wesentlich weniger gedrängt.
Die Treppe war bisher im Flurbereich, um das Wohnzimmer akustisch ein wenig zu trennen. Wir können nicht einschätzen, wie viel Lärm durch eine Vollholztür in das Kinderzimmer dringt, wenn wir dort abends sitzen und uns mit Freunden unterhalten- die zweite Tür schien sinnvoll. Es ist aber nachvollziehbar, dass wir den Bereich Wohnen/Kochen/Essen künstlich aus dem restlichen Haus ausgliedern, es besteht keine Verbindung. Wird die Treppe ins Wohn-/Esszimmer integriert, hätte das den Vorteil dass es mehr als Einheit wirkt- glaube ich.
Sie darf gerne auch geschwungen sein, die Stufen sollen aber nicht an der einen Seite besonders schmal werden, dass nimmt die Großzügigkeit und macht sie unbequem. Eine filigrane oder besonders elegante Treppe wirkt glaube ich allerdings auch nicht, das Haus ist vom Ambiente ja doch eher etwas rustikal-gemütlich.. Vielleicht in einer Art Luxus-Bauernstil? Viel massives Holz, rustikale grob bearbeitete Steinoberflächen, so in die Richtung.

Vom Schmutzbereich möchte ich es nicht abhängig machen, ich bin selber der erste, der die Schuhe nicht auszieht und quer durchs Haus latscht- Schlechte Angewohnheit und so. Deshalb ist im ganzen EG gerade auch in den Laufwegen von der Haustür zur Terrasse ein entsprechend unempfindlicher Belag geplant. Außerdem haben wir einen Hund, ein weiterer könnte dazukommen, spätestens da ist das ganze EG "Schmutzzone"

Die Trennung der Geschosse im Alter hat für mich keine Relevanz. Eine der Überlegungen ist ja in der Tat, im Alter nur noch das EG zu bewohnen. Ja, das OG hat den schöneren Blick, aber darauf kann ich verzichten, das wird dann eben Gästebereich, bleibt besuchenden Kindern und Enkeln oder dem Staub vorbehalten. Die Fläche im EG ist groß genug, wenn ich keine Treppen mehr laufen kann. Wahrscheinlicher ist, dass wir dann ausziehen und uns etwas anderes suchen. Der Garten, das große Haus, das alles ist nicht wirklich altersgerecht.

Bei deinem Grundriss hast du ja noch mehr verändert, ich mache dafür mal einen zweiten Post um den Überblick zu behalten..
 
K

keychain

Die Leitungen sind mittlerweile kein Problem mehr. Anfangs sollte die Decke im EG auch sichtbare Deckenbalken erhalten, dass hätte einiges erschwert. Wir haben uns dagegen entschieden und können jetzt das meiste unproblematisch innerhalb der Ständerwände und der Decke verlegen. Tabu sind also nur Außenwände und die notwendigen Pfosten. Dadurch sind aber auch deine vorgeschlagenen Änderungen der Küche nicht passend - zum einen steht die Kücheninsel mit ihren 4 Metern fest und kann eigentlich nicht geändert werden, zum anderen müssen wir eben den einen Pfosten berücksichtigen.

Die Speisekammer haben wir schon früher diskutiert und uns gegen sie entschieden. Eine große Vorratskammer gibt es im Keller, die Küche ist so riesig, dass wir kein weiteres Zwischenlager brauchen. Den Platz können wir besser für Küche, Kaffeecke oder etwas anderes benutzen.

Wenn wir die Treppe in das Wohnzimmer integrieren, wo kommt die Treppe zum Keller hin? Den will man wahrscheinlich ja eher nicht im Wohnzimmer haben? Eine zweite Treppe im Flur?
 
H

HausaufGrund

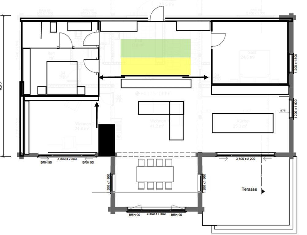
So meinte ich das mit der Treppe die den Wohnraum vom Eingangangsbereich trennt. (Bilder anbei)
Die Treppe ist gelb, man könnte davor noch einen Bereich als Luftraum offen lassen um eine stärkere Verbindung zwischen den Geschossen zu ermöglichen (grün).
Evtl. kann man da eine Aufzugsmöglichkeit planen.
Hätte man oben eine schöne Galerie.
Durch die Schiebetüren im EG zur Treppe könnte man wahlweise den Eingangsbereich mit Arbeitszimmer und Gästezimmer zur Wohnfläche dazunehmen - oder eben nicht (auch Stichwort Kellerabgang)

Bibliothek wäre für mich unten im Bereich links vom Wohnzimmer mit Schiebetüre zum restlichen Wohnraum abtrennbar.
Gästezimmer im EG könnte man wenn gewünscht mit Ensuite Bad (als Option) gestalten.

Ob man rechts die Treppe hoch geht oder links - Geschmacksache.
Ich würde links unten hochgehen, dann kommen die "lauten" Kinder nicht vor meiner Schlafzimmertüre vorbeigelaufen ^^. wenn sie ins EG wollen.
Im OG im Süden würde ich eine Dachterrasse planen, auf die ich von den Bädern komme.
Um Das Thema Entwässerung soll dann sich der Architekt kümmern P ; .

Im Elternbad habe ich die Sauna geplant, eine große Schiebetüre zwischen Schlafen und Badezimmer macht aus beiden Räumen bei Bedarf eine schöne großzügige Situation.
Ein Wäscheabwurfschacht könnte im Flur im OG beginnen, ggf. oben rechts in der Ecke zum nördlichen Kinderzimmer und unten im EG durch den Einbauschrank verkleidet in den Keller führen.

Im Moment wäre das Elternbad ein reines En Suite Bad - möchte man das nicht (möchte einer länger schlafen) könnte man umplanen mit Zugang zum Flur o.ä.

Sportgeräte etc. hätte ich nun aufgrund Deiner Beschreibung mit den größeren Fenstern im Keller eher dort untergrbacht,dafür lieber die anderen Räume dann oben großzügiger.

Soll natürlich nur als Anregung dienen damit man sich mal eine andere Situation vorstellen kann, ich bin natürlich kein Architekt.
Eine neue Treppenlage eröffnet aber immer neue Möglichkeiten der Erschließung der Räume.
Mit dieser Treppenlage könnte man ggf. sogar OG vom EG abtrennen.
Habt ihr eine gerade Treppe in dem Grundriss mal mit dem Architekten diskutiert?

Das ist ja auch alles aber immer stark Geschmacksabhängig, aber so ähnlich kam mir das gestern in den Sinn als ich Euren Grundriss sah.
Könnte ich mir persönlich gut vorstellen.

Keine Ahnung ob da irgendwas dabei ist was Euch gefallen könnte, aber ich dachte ich mach mir jetzt mal die Mühe und skizziere mal etwas.
Zumal die Zeit bei Euch ja zu drängen scheint.

Viele Grüße

Grundriss eines Hauses mit Wohnraum, Küche, Essbereich und Terrasse; zentrale Öffnungen.


Überblick-Grundriss: Haus von oben, gelbe Veranda am Eingang, zentrale Küche, linkes Schlafzimmer.
 
Zuletzt aktualisiert 13.01.2026
Im Forum Grundrissplanung / Grundstücksplanung gibt es 2566 Themen mit insgesamt 88819 Beiträgen


Ähnliche Themen zu Blockhaus mit Krüppelwalmdach am Wald - Planung verbessern?
Nr.ErgebnisBeiträge
1Grundriss Einfamilienhaus ohne Keller, 3 Kinderzimmer und Büro 18
2Grundriss Einfamilienhaus 155m², ohne Keller, 3 Kinderzimmer, 1 Büro 38
3Grundriss Einfamilienhaus ca. 200qm mit Keller - Hinterbebauung 20
4Grundriss für 150qm Einfamilienhaus mit Wohnzimmer nach Norden 21
5Grundriss für Einfamilienhaus 210 m² + Keller - Eure Meinungen 16
6Grundriss 165 m² mit Keller eure Meinung - Seite 352
7Grundriss Einfamilienhaus 2 Vollgeschosse +Keller ca. 130m² Wohnfläche 30
8Grundriss Einfamilienhaus 190m2 mit Keller Feedback? 41
9Besonderer Grundriss oder langweilig mit Keller? - Seite 220
10Grundriss Einfamilienhaus in Hanglage mit Keller - Seite 651
11Unser anvisierter Grundriss - bitte um Einschätzungen 67
12160m2 Einfamilienhaus in Holzständerbauweise am Nordhang mit Keller 100
13Grundriss mit Rücksprung - ja oder nein?! 77
14Grundriss Neubau Einfamilienhaus optimieren 46
15Einfamilienhaus,Zwei Varianten Grundriss vom Architekt - Seite 239
16Finanzierung Hausbauangebot 138qm Einfamilienhaus 2 Vollgeschosse + Keller - Seite 232
17Planungsphase Grundriss Einfamilienhaus - Seite 315
18Grundriss Einfamilienhaus mit Keller 19
19Einfamilienhaus ohne Keller - Diskussion Grundriss 19
20Grundriss Einfamilienhaus Hanglage mit Keller 19

Oben